inVENTer aV100 ALD Air Supply Vent

WHAT IS IN THE BOX

TOOLS

WARNING

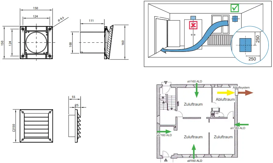
DIMENSION


INSTALLATION






This documentation is only valid in conjunction with the inverter ventilation system‘s and controller’s original instructions
inventer GmbH Ortsstraße 4a D-07751 Löberschütz www.inventer.de





















