7100R Rim Exit Device-Reversible
Instruction Manual
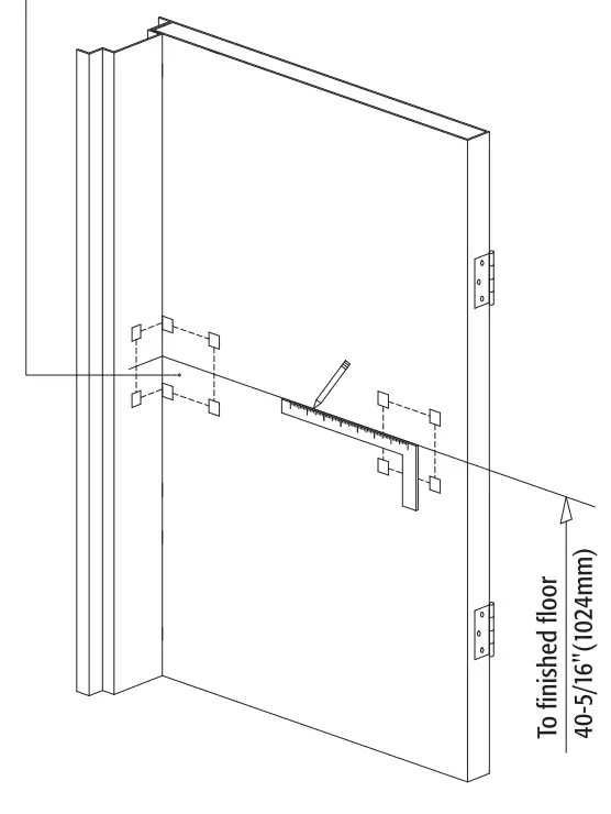
7100R RIM EXIT DEVICE-RERVERSIBLE INSTALLATION INSTRUCTIONS LHR door shown , RHR door opposite
For steel prepared doors , drill / tap and use supplied machine screws.
For thin gauge metal , non-prepared doors and wood doors use wood screws.
A :Strie
B: Head assembly
C: End plate
D : Push bar
E : Dogging
Dogging :
Depress push bar, insert dogging wrench and turn 900
The push bar will remain depressed
The latch will rimain retracted
Strike Install
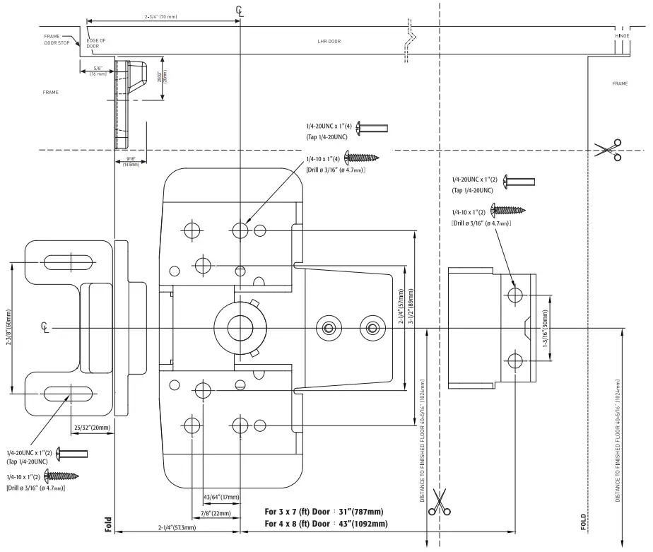
Device template
Install the strike to the frame with 2 screws as shown
Head assembly and end plate Install
Step 1: Install the head assembly to the door with 4 screws as shown
Step 2: Install the end plate to the door with 2 screws as shown
7100R Rim Safety Rated Panic Device Template

F710OR RIM FIRE RATED EXIT DEVICE-RERVERSIBLE INSTALLATION INSTRUCTIONS
LHR door shown , RHR door opposite
For steel prepared doors , drill / tap and use supplied machine screws.
For thin gauge metal , non-prepared doors or for labeled wood doors use thru bolts.
See template for details on mounting screws. 
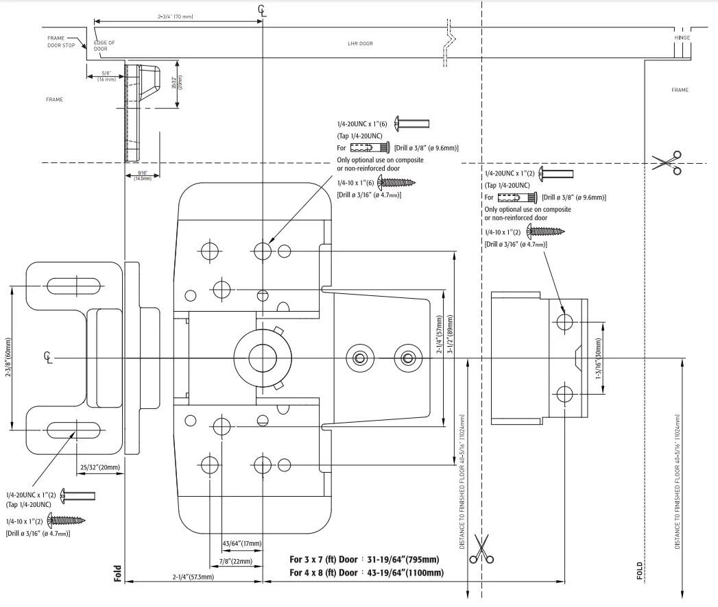
Device template
Install the strike to the frame with 2 screws as shown
Head assembly and end plate Install
Step 1: Install the head assembly to the door with 4 screws as shown
Step 2: Install the end plate to the door with 2 screws as shown
F7100R Rim Fire Rated Panic Device Template


















