
Installation Instructions
379L, 379L-BE, E379L-BE
INSTALLATION INSTRUCTIONS
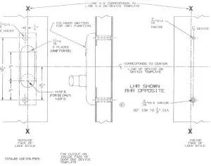
- Prepare door for exit device. See exit device instructions for locations of holes, backset (line X-X), and center lines.
- Prepare door for lever control:
a. Transfer line X-X from inside (exit device side) of the door to outside (control side) of the door. Use extra care if the edge of the door is beveled. Be sure line X-X is parallel to the edge of the door.
Φ Note: See the backside of the sheet for hole preparation for metal or wood.
b. Locate and prepare holes as indicated. - Install cylinder into lever control if required (Figures 1 & 2). Ensure cylinder cam is set for required function and replace if necessary.
- The exit device must be an NL function, which has input cams for a 379L spindle. If device input cams are needed, order #050105.
- Attach 379L bottom hex stud to door with 12-24 x 5/8” OPHMS.
- While aligning 379L spindle with lower input cam on device center case, insert upper device center case mounting screw (12-24 x 1-1/2” OPHMS) through the center case and into top hex stud of 379L.
- Attach lower device center case mounting screw (#12 x 1-1/2” OPHMS or OPHWS) through the device into the surface of the door only (screw does not align with bottom hex stud of 379L.)
- Test key, lever control, and device action.

TL (Classroom) Function – Key locks/unlocks lever. Control remains unlocked when the key is removed.
NL (Storeroom) Function – Requires use of a key to operate. Control relocks when the key is removed. For NL function replace TL cylinder plate (std. on all controls) with NL cylinder plate (included in polybag), replacing screw and washer. Note: Control must be in the locked position when installing the cylinder plate. Figure 1

![]() | ![]() |
| Metal Door Application | Wood Door Application |
![]()

Lever Control for 55 Rim Device on Metal or Wood Door
Customer Service
1-877-671-7011 www.allegion.com/us
© Allegion 2020
Printed in the U.S.A.
47347712 Rev. 11/20-a




















