

Installation plan
Commercial dryer
PDR 944/544 EL
Electrically heated
To avoid the risk of accidents or damage to the machine, it is essential to read these instructions before it is installed and used for the first time.
M.-Nr. 11 866 910
Installation notes
Installation requirements
The tumble dryer must only be installed and commissioned by Miele Customer Service Department or an authorized dealer.
- The tumble dryer must be installed in accordance with all relevant regulations and standards.
- The dryer must only be operated in a room that has sufficient ventilation and which is frost-free.
Electrical connection
The electrical connection must be established by a qualified electrician.
- The electrical connection may only be made to an electrical system provided in accordance with all appropriate local and national legislation, regulations, and guidelines. Please also observe the regulations set out by your insurance provider and energy supplier, accident prevention regulations, as well as recognized codes of practice.
- Reliable and safe operation of this tumble dryer is only ensured if it has been connected to the mains electricity supply.
The required supply voltage, power rating, and fuse rating can be found on the data plate on the tumble dryer. Ensure that the supply voltage matches the voltage quoted on the data plate before establishing the electrical connection to the tumble dryer. Connection to a supply voltage other than the one quoted on the data plate can damage the tumble dryer if the voltage is too high. - If more than one voltage is specified on the data plate, the tumble dryer can be converted for connection to the relevant input voltage. This conversion must be performed by the Miele Customer Service Department or by an authorized dealer. During the conversion, the wiring instructions given on the wiring diagram must be followed.
The tumble dryer can either be hard-wired or connected using a plug-and-socket connection in accordance with IEC 60309-1. For a hard-wired connection, an all-pole isolation device must be available at the installation site.
An isolation device is a switch that ensures a contact opening of more than 3 mm. These include circuit breakers, fuses, and contactors (IEC/EN 60947).
If the mains supply cannot be permanently disconnected, the isolation device (including plug and socket) must be safeguarded against being switched on either unintentionally or without authorization.
Tip: We recommend connecting the tumble dryer to the power supply via a plug and socket so that it is easier to conduct electrical safety checks (e.g. during maintenance or repair work). - The tumble dryer must not be connected to devices such as timers which would switch it off automatically.
If it is necessary to install a residual current device (RCD) in accordance with local regulations, a residual current device type B (sensitive to universal current) must be used.
- Equipotential bonding with a good contact connection should be carried out in accordance with local and national installation regulations. Equipotential bonding with a leakage current of >10 mA should be carried out. Accessories required for equipotential bonding (washers and nuts) are not supplied with the machine.
Supply air/exhaust air
The tumble dryer may only be operated when the ducting has been connected and the room is sufficiently ventilated (see installation instructions).
- Accessory parts may only be fitted when expressly approved by Miele. If other parts are used, warranty, performance, and product liability claims will be invalidated.
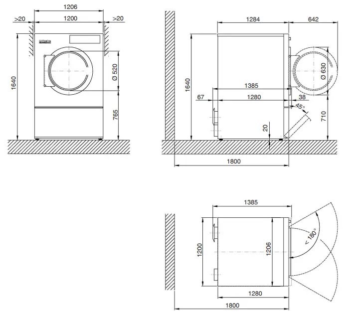
Dimensions

Installation

| EL | Electrical connection |
| AL | Vented |
| ZL | Air intake |
| PA | Equipotential bonding (option) |
| SLA | Peak load energy management (option) |
| XCI | XCI-/Connector-Box (option) |
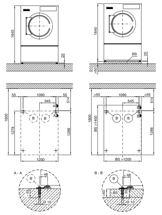
Set up (Standard/Concrete platform)

| B | Fittings/drill hole |
| BS | Concrete platform |
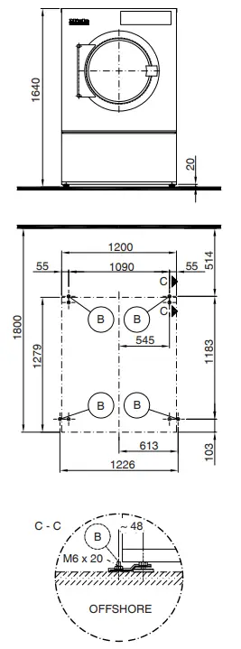
Set up (Offshore)

| B | Fittings/drill hole |
Technical data
Voltage variants/electrical data
Voltage variant 1
| Voltage | 3N AC 400 V |
| Frequency | 50/60 Hz |
| Total connected load | 37.7 kW |
| Fuse rating (on-site) | 3×63 A |
| Connection cable, min. cross-section | 5×16 mm² |
| Cable gland | M50 |
Voltage variant 2
| Voltage | 3 AC 230 V |
| Frequency | 50/60 Hz |
| Total connected load | 37.7 kW |
| Fuse rating (on-site) | 3×100 A |
| Connection cable, min. cross-section | 4×35 mm² |
| Cable gland | M63 |
Waste air
| Max. nominal airflow invented mode (PDR 9xx only) | 1100 m³/h |
| Max. nominal airflow (PDR 5xx only) | 1000 m³/h |
| Max. permissible pressure loss | 300 Pa |
| Connection on machine side (ext. diameter) | 150 mm |
| Connection pipe provided on-site (int. diameter) | 150 mm |
| Max. temperature | 80 °C |
As relative humidity inside the vent ducting can be as high as 100%, suitable measures must be taken to prevent a backflow of condensate into the machine
Air intake
Standard connection: Air intake from the installation site
| Unobstructed air intake into room recommended: (corresponding to 3 times the vent cross-section of the machine). | 531 cm² |
| A sufficient supply of fresh air should be ensured to replace the air extracted. |
Alternative connection: Ducted air intake (from the outside building)
| Connector on the machine (int. diameter) | 161 mm |
| Connection pipe provided on site (ext. diameter) | 160 mm |
Lid removal exposes live components. For safety reasons, the pipe connected to the central air intake should be at least 900 mm long and secured using two screws.
Equipotential bonding (option)
| Connection with male thread | 10×35 mm |
| Washers and nut | M10 |
| Accessories to be ordered separately |
Peak load energy management (option)
| Control contact voltage | AC 230 V |
| Connection cable, min. cross-section | 5×1.5 mm² |
Connection via a flexible supply lead with a separate isolator is recommended. The isolator should be visible and easily accessible after machine installation.
Machine data
| Overall machine width | 1206 mm |
| Overall machine height | 1640 mm |
| Overall machine depth | 1385 mm |
| Niche width | 1550 mm |
| Recommended distance between the front of the machine and the wall | 1800 mm |
| The minimum distance between the rear edge of the lid and the wall | 500 mm |
| Packaging width | 1390 mm |
| Packaging height | 1766 mm |
| Packaging depth | 1474 mm |
| Maximum gross volume | 3618.3 l |
| Maximum gross weight | 312.4 kg |
| Maximum net weight | 294.3 kg |
| Max. floor load in operation | 3535 N |
| Exhaust air spigot diameter | 150 mm |
| Drum diameter | 1100 mm |
| Drum opening diameter | 520 mm |
| Drum depth | 876 mm |
| Drum volume | 800 l |
| Door opening diameter | 520 mm |
| Max. door opening angle | 180° |
| Emission sound pressure level | 63 dB(A) re 20 µPa |
| Sound power level | 72 |
| Heat dissipation rate to the installation site | 4 MJ/h |
| Permitted ambient temperature | 2–40 °C |
Mounting variants
Mounting without base
| Quantity | Screw size | |
| Clamps | 2 | |
| Wood screws DIN 571 (Ø×lenght) | 2 | 6×40 mm |
| Dowel (Ø×lenght) | 2 | 10×50 mm |
The machine should be bolted to the floor. Fixing materials for a floating screed floor are to be provided on-site.
Mounting on a concrete platform
| Quantity | Screw size | |
| Clamps | 2 | |
| Wood screws DIN 571 (Ø×lenght) | 2 | 6×40 mm |
| Dowel (Ø×lenght) | 2 | 10×50 mm |
The machine must be bolted to the floor.
Fixing materials for a floating screed floor are to be provided on-site.
Optional extras
Concrete platform (on-site)
| Minimum width | 1200 mm |
| Recommended height | 100 mm |
| Minimum height | 50 mm |
| Minimum depth | 1400 mm |
| The quality and density of concrete must comply with the load. The concrete platform must be firmly secured to the floor. | |

United Kingdom
Miele Co. Ltd., Fairacres, Marcham Road
Abingdon, Oxon, OX14 1TW
Professional Sales, Tel: 0845 365 6608
E-mail: [email protected]
Internet: www.miele.co.uk/professional
Australia
Miele Australia Pty. Ltd.
ACN 005 635 398, ABN 96 005 635 398
1 Gilbert Park Drive, Knoxfield, VIC 3180
Tel: 1300 731 411
Internet: www.miele.com.au/professional
E-mail: salesemiele-professional.com.au
China Mainland
Miele Electrical Appliances Co., Ltd.
1-3 Floor, No. 82 Shi Men Yi Road
Jing’ a District, 200040 Shanghai, PRC
Tel: +86 21 6157 35130, Fax: +86 21 6157 3511
E-mail: [email protected],
Internet: www.Miele.cn
Hong Kong, China
Miele (Hong Kong) Ltd.
41/F – 4101, Manhattan Place
23 Wang Tai Road, Kowloon Bay, Hong Kong
Tel: (852) 2610 1025,
Fax: (852) 3579 1404
Email: [email protected]
Website: www.Miele.HK
India
Miele India Pvt. Ltd.
1st Floor, Copia Corporate Suites,
Commercial Plot 9, Mathura Road, Jasola,
New Delhi – 110025
E-mail: [email protected],
Website: www.Miele.in
Ireland
Miele Ireland Ltd.
2024 Bianconi Ave., Citywest Business Campus, Dublin 24
Tel: (01) 461 07 10, Fax: (01) 461 07 97
E-Mail: [email protected],
Internet: www.Miele.ie
Malaysia
Miele Sdn Bhd
Suite 12-2, Level 12
Menara Sapura Kencana Petroleum
Solaris Dutamas No. 1, Jalan Dutamas 1
50480 Kuala Lumpur, Malaysia
Phone: +603-6209-0288
Fax: +603-6205-3768
New Zealand
Miele New Zealand Limited
IRD 98 463 631
8 College Hill
Freemans Bay, Auckland 1011, NZ
Tel: 0800 464 353
Internet: www.miele.com.au/professional
E-mail: [email protected]
Singapore
Miele Re. Ltd.
29 Media Circle, #11-04 AUCE@Mediapolis
Singapore 138565
Tel: +65 6735 1191, Fax: +65 6735 1161
E-Mail: infoemiele.com.sg
Internet: www.Miele.sg
South Africa
Miele (Pty) Ltd
63 Peter Place, Bryanston 2194
P.O. Box 69434, Bryanston 2021
Tel: (011) 875 9000, Fax: (011) 875 9035
E-mail: inforlimiele.co.za
Internet: www.miele.co.za
United Arab Emirates
Miele Appliances Ltd.
Showroom 1, Eiffel 1 Building
Sheikh Zayed Road, Umm AI Sheif
P.O. Box 114782 – Dubai
Tel. +971 4 3044 999, Fax. +971 4 3418 852
800-MIELE (64353)
E-Mail: [email protected],
Website: www.Miele.ae
Manufacturer: Miele & Cie. KG
Carl-Miele-Straße 29, 33332 Gütersloh, Germany
Alteration rights reserved / Publication date: 20.21
PDR 944/544 EL
Electrically
heated
M.-Nr. 11 866 910 / 00



















