Miele PDR 928 Gas Heated Commercial Dryer

To avoid the risk of accidents or damage to the machine, it is essential to read these instructions before it is installed and used for the first time.
Installation requirements
- The tumble dryer must only be installed and commissioned by Miele Customer Service Department or an authorised dealer.
- The tumble dryer must be installed in accordance with all relevant regulations and standards.
- The dryer must only be operated in a room that has sufficient ventilation and which is frost-free.
Electrical connection
- The electrical connection must be established by a qualified electrician.
- The electrical connection may only be made to an electrical system provided in accordance with all appropriate local and national legislation, regulations and guidelines. Please also observe the regulations set out by your insurance provider and energy supplier, accident prevention regulations, as well as recognised codes of practice.
- Reliable and safe operation of this tumble dryer is only ensured if it has been connected to the mains electricity supply.
The required supply voltage, power rating and fuse rating can be found on the data plate on the tumble dryer. Ensure that the supply voltage matches the voltage quoted on the data plate before establishing the electrical connection to the tumble dryer. Connection to a supply voltage other than the one quoted on the data plate can damage the tumble dryer if the voltage is too high.
- If more than one voltage is specified on the data plate, the tumble dryer can be converted for connection to the relevant input voltage. This conversion must be performed by the Miele Customer Service Department or by an authorised dealer. During the conversion, the wiring instructions given on the wiring diagram must be followed. The tumble dryer can either be hard-wired or connected using a plug-and-socket connection in accordance with IEC 60309-1. For a hard-wired connection, an all-pole isolation device must be available at the installation site.
An isolation device is a switch which ensures a contact opening of more than 3 mm. These include circuit breakers, fuses and contactors (IEC/EN 60947). If the mains supply cannot be permanently disconnected, the isolation device (including plug and socket) must be safeguarded against being switched on either unintentionally or without authorization.
Tip: We recommend connecting the tumble dryer to the power supply via a plug and socket so that it is easier to conduct electrical safety checks (e.g. during maintenance or repair work).
- The tumble dryer must not be connected to devices such as timers which would switch it off automatically.
If it is necessary to install a residual current device (RCD) in accordance with local regulations, a residual current device type B (sensitive to universal current) must be used.
Gas connection
- The gas connection must only be carried out by a registered installation technician in accordance with the applicable national regulations (see installation instructions).
- The use of a gas socket is not permitted at the specified heater rating as the flow rate is too low.
- The gas heating is configured at the factory in line with the gas specifications on the sticker on the rear of the appliance.
- If the gas family is changed, a conversion kit must be requested from the Miele Customer Service Department (please specify the appliance type, serial number, gas family, gas group, gas connection pressure and country of installation). Follow the installation instructions.
- This conversion may only be carried out by a registered specialist.
Supply air/exhaust air
- The tumble dryer may only be operated when the ducting has been connected and the room is sufficiently ventilated (see installation instructions).
- Accessory parts may only be fitted when expressly approved by Miele. If other parts are used, warranty, performance and product liability claims will be invalidated.
Dimensions
PDR 928/528, gas heated

- Measurements in millimeters
Installation

Measurements in millimeters
- EL: Electrical connection
- G: Gas connection
- AL: Vented
- ZL: Air intake
- XCI: XCI-/Connector-Box (option)
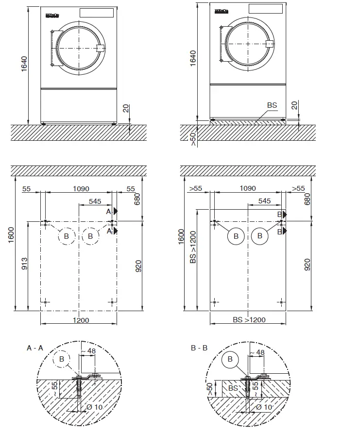
Set up (Standard/Concrete platform)

Measurements in millimeters
- B: Fittings/drill hole
- BS: Concrete platform
Technical data
Voltage variants/electrical data

Gas connection

- Connection pressure according to DIN EN 437. Connection to gas supply must comply with national regulations.
Waste air/gas

- As relative humidity inside the vent ducting can be as high as 100%, suitable measures must be taken to prevent a backflow of condensate into the machine.
Air intake
Standard connection: Air intake from the installation site
Unobstructed air intake into room recommended: 531 cm²
(corresponding to 3 times the vent cross-section of the machine).
A sufficient supply of fresh air should be ensured to replace the air extracted.

- Lid removal exposes live components. For safety reasons, the pipe connected for central air intake should be at least 900 mm long and secured using two screws.
Machine data


Mounting variants
Mounting without base

Mounting on a concrete platform

Optional extras
Concrete platform (on site)

CONTACTS
United Kingdom
- Miele Co. Ltd., Fairacres, Marcham Road Abingdon, Oxon, OX14 1TW
- Professional Sales, Tel: 0845 365 6608
- E-mail: [email protected]
- Internet: www.miele.co.uk/professional
Australia
Miele Australia Pty. Ltd
- ACN 005 635 398, ABN 96 005 635 398 1 Gilbert Park Drive, Knoxfield, VIC 3180
- Tel: 1300 731 411
- Internet: www.miele.com.au/professional
- E-mail: [email protected]
Hong Kong, China
Miele (Hong Kong) Ltd
- 41/F – 4101, Manhattan Place 23 Wang Tai Road, Kowloon Bay, Hong Kong
- Tel: (852) 2610 1025
- Fax: (852) 3579 1404
- Email: [email protected]
- Website: www.miele.hk
South Africa
Miele (Pty) Ltd
- 63 Peter Place, Bryanston 2194 P.O. Box 69434, Bryanston 2021
- Tel: (011) 875 9000
- Fax: (011) 875 9035
- E-mail: [email protected]
- Internet: www.miele.co.za
United Arab Emirates
Miele Appliances Ltd
- Showroom 1, Eiffel 1 Building Sheikh Zayed Road, Umm Al Sheif P.O. Box 114782 – Dubai
- Tel: +971 4 3044 999
- Fax: +971 4 3418 852
- 800-MIELE (64353)
- E-Mail: [email protected]
- Website: www.miele.ae
Alteration rights reserved
Publication date: 21.21




















