w eau
WMI-003 Mini Inverter Heat Pump
Installation & Operation Manual
![]()
Model: WMI-003/004
Thank you very much for purchasing our product,please keep and read this manual carefully before you install heat pump.
Fluorinated greenhouse gas (R32)
The device contains the fluorinated greenhouse gas (R32) which is required for the device to work.
Industrial designation HFC-32
Common designation R32
Global warming potential (GWP) 675
Further information can be found on the device itself or the Specifications.
WARNING!
Risk of fire and explosion through leaking finned heat exchanger!
The refrigerant circuit of the finned heat exchanger contains highly pressurised, easily flammable, odourless gas. Risk of fire and explosion in the event of uncontrolled gas leakage.
- Action of filling gas must be conducted by professional with R32 operating license.
- Keep the heat pump away from heat sources and naked flames.
- Do not drill into or scorch the heat pump.
- Do not use any objects apart from those permitted by the manufacturer to speed up the defrosting process.
- Immediately shut off the heat pump if you suspect a gas leakage.
- The refrigerant is odourless. Always keep ignition sources away from the installation site of the heat pump.
- Contact an authorized expert if you suspect a gas leakage.
WARNING!
Risk of electric shock!
A faulty electrical installation or a mains voltage that is too high can lead to electric shock.
- Have the installation, initial start-up and maintenance of the heat pump carried out by authorized technician only.
- Please always cut the power supply if you want to open the cabinet to reach inside the heat pump as there is high voltage electricity inside.
- Only start work on the heat pump after checking all safety regulations.
- Only connect the heat pump if the mains voltage from the power socket matches the voltage indicated on the rating plate.
- Do not operate the heat pump if there is visible damage or the mains cable or the mains plug is defective.
- Do not open the housing. Leave repairs to qualified specialists. Liability and warranty claims are excluded in the event of repairs carried out on your own, improper operation.
- Ensure that children do not insert any objects into the fan blade and heat pump.
- Ensure that the electrical system to which the heat pump is connected has an earth conductor.
- If the unit would be installed where is vulnerable to lightning stroke, lightning protection measurements must be carried out.
ATTENTION!
- The manufacturer declines any responsibility for the damage caused with the people,objects and of the errors due to the installation that disobey the manual guideline. Any use that is without conformity at the origin of its manufacturing will be regarded as dangerous.
- Please always keep the heat pump in the ventilation place and away from anything which could cause fire.
- Don’t weld the pipe if there is refrigerant inside machine. Please keep the machine out of the confined space when make gas filling by the authorized technician.
- Please always empty the water in heat pump during winter time or when the ambient temperature drops below 0, or else the Titanium exchanger will be damaged because of being frozen, in such case, it will be out of warranty for this machine.
- Please well keep the display controller in a dry area to protect the display controller from being damaged by humidity.
Specifications
Technical data pool heat pumps
| Model No. | WMI-003 | WMI-004 |
| • Heating Capacity at Air 26t, Humidity 80%, Water 26t in, 28t out | ||
| Heating Capacity (kW) | 3.1~0.72 | 4.1~0.94 |
| Power Input (kW) | 0.56~0.07 | 0.73~0.09 |
| COP | 10.3~5.5 | 10.4~5.6 |
| • Heating Capacity at Air 15t, Humidity 70%, Water 26t in, 28C out | ||
| Heating Capacity (kW) | 2.4~0.55 | 3.1~0.75 |
| Power Input (kW) | 0.55~0.08 | 0.7~0.11 |
| COP | 6.8~4.4 | 6.8~4.4 |
| • General data | ||
| Power suply | 220V/1/50Hz | |
| Max Power Input (kW) | 0.80 | 1.05 |
| Max Current (A) | 3.6 | 4.7 |
| Water Flow Volume (m3/h) | 1.5 | 2.0 |
| Advised pool size m3 | 0~12 | 5~16 |
| Refrigerant | R32 | |
| Heat Exchanger | Screwed titanium tube | |
| Water connection (mm) | 32/38 | |
| Air Flow Direction | Horizontal | |
| Cind of defrosting | by 4-way valve | |
| Water temp. range under heating (C) | 15-40 | |
| Water temp. range under cooling (t) | 8-28 | |
| Working temp. range (t) | -7-43 | |
| Casing Material | Metal | |
| Water proof level | IPX4 | |
| Noise level dB(A) 10m | 22~28 | 23~29 |
| Noise level dB(A) lm | 37~43 | 38~44 |
| Net Weight (kg) | 25 | 25 |
| Gross Weight (kg) | 28 | 28 |
| Net Dimensions (mm) | 420’375’440 | |
| Package Dimensions (mm) | 480’435’510 | |
*Above data is subject to modification without prior notice.
Dimension (mm)
WMI-003/004

Installation and connection
Attention: Please observe the following rules when installing the heat pump:
- Any addition of chemicals must take place in the piping located downstream from the heat pump.
- Always hold the heat pump upright. If the unit has been held at an angle, wait at least 24 hours before starting the heat pump.
Heat pump location
The unit will work properly in any desired location as long as the following three items are present:
1. Fresh air
2. Electricity
3. Swimming pool filters
The unit may be installed in virtually any outdoor location as long as the specified minimum distances to other objects are maintained. Please consult your installer for installation with an indoor pool.
ATTENTION: Never install the unit in a closed room with a limited air volume in which the air expelled from the unit will be reused, or close to shrubbery that could block the air inlet. Such locations impair the continuous supply of fresh air, resulting in reduced efficiency and possibly preventing sufficient heat output.
Initial operation
Note: In order to heat the water in the pool (or hot tub), the filter pump must be running to cause the water to circulate through the heat pump. The heat pump will not start up if the water is not circulating.
Electrical connection
Before connecting the unit, verify that the supply voltage matches the operating voltage of the heat pump.

The RCD plug has been included with power cable, which can offer electrical protection.
Attention:
| Ensure the power plug is secure If the plug is not secure, it may cause an electric shock, over-heating or fire | Never pull out the power plug during operation Otherwise, it may cause an electric shock or a fire due to over-heating. | Never use damaged electric wires or unspecified electric wires. Otherwise it may cause an electric shock or a fire. |
![]() | ![]() | ![]() |
After all connections have been made and checked, carry out the following procedure:
- Switch on the filter pump. Check for leaks and verify that water is flowing from and to the swimming pool.
- Connect power to the heat pump and press the On/Off
button on the electronic control panel. The unit will start up after the time delay expires (see below). - After a few minutes, check whether the air blowing out of the unit is cooler.
- When turn off the filter pump, the unit should also turn off automatically.
Depending on the initial temperature of the water in the swimming pool and the air temperature, it may take some time to heat the water to the desired temperature. A good swimming pool cover can dramatically reduce the required length of time.
Time delay – The heat pump has a built-in 3-minute start-up delay to protect the circuitry and avoid excessive contact wear. The unit will restart automatically after this time delay expires.
If first power on or additional power interruptions, the heat pump starts 10s later after pressing `ON/OFF’ button.
Condensation
The air drawn into the heat pump is strongly cooled by the operation of the heat pump for heating the pool water, which may cause condensation on the fins of the evaporator. The amount of condensation may be as much as several litters per hour at high relative humidity. This is sometimes mistakenly regarded as a water leak.
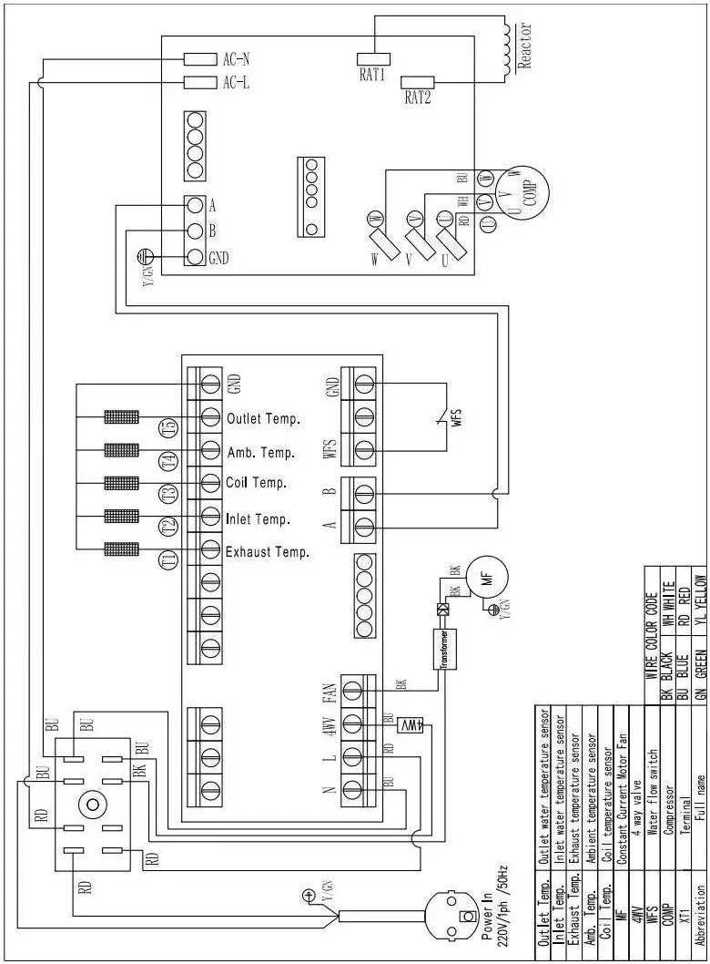
Electrical wiring
Swimming pool heat pump wiring diagram

NOTE:
- Above electrical wiring diagram only for your reference, please subject machine posted the wiring diagram.
- The swimming pool heat pump must be connected to ground wire well, although the unit heat exchanger is electrically isolated from the rest of the unit. Grounding the unit is still required to protect you against short circuits inside the unit. Bonding is also required.
Disconnect: A disconnecting means (circuit breaker, fused or un-fused switch) should be located within sight of and readily accessible from the unit. This is common practice on commercial and residential heat pumps. It prevents remotely-energizing unattended equipment and permits turning off power at the unit while the unit is being serviced.
Display controller operation
The interface of LED wire controller
* When the heat pump is running or standby, the display shows the water inlet temperature.
* When the heat pump is Power-on, the display shows `OFF’
* Red LED will light on when machine under Heating mode
* Green LED will light on when machine under Cooling mode
* Red LED will flash when machine under defrosting 5.2 Lock/Unlock the display
NOTE: The display will be locked automatically if there is no operation on the display for 3 seconds!
Unlock the display: Hold
and
for 3 seconds until all buttons light on.
Please do unlock the display before you operate the display.
Turn on/off the heat pump
Hold
for 2 seconds to turn on/off the heat pump
NOTE: There is 3 min of time delay protection for the compressor.
NOTE: the heat pump can run only if the water circle/filtration system is running.
Switch Heating & Cooling mode
Under main interface, press
to switch Heating & Cooling mode.
Set the desired water temperature
When machine is under main interface in Heating or Cooling mode, press
or
directly to adjust the desired water temperature, the data will be saved in 3 seconds or you can press
to save the data.
Real data checking
Hold
for 3 seconds to enter the real running data checking.
Press
and
to check below parameters , press
to check the data of selected parameter, press
again to return back. Press
to return back the main interface.
| Parameter | Name | Range |
| A01 | Inlet water temp. | -30~99℃ |
| A02 | Outlet water temp. | -30~99℃ |
| A03 | Ambient temp. | -30~99℃ |
| A04 | Exhaust temp. | 0~125℃ |
| A06 | Piping system temp. | -30~99℃ |
| A10 | Compressor current | |
| A11 | Radiator temp. | |
| A12 | DC bus voltage | |
| A13 | Compressor speed | |
| A14 | PCB current | |
| A15 | DC fan motor speed | 0~1590 |
NOTE: The other parameters which is not shown on below sheet is for reservation, no real function.
Parameters checking
Hold
for 3 seconds to enter the real running data checking.
Press
and
to check below parameters , press
to check the data of selected parameter, press
again to return back. Press
to return back the main interface.
| Parameter | Name | Range | Default |
| P01 | Return water temp. difference | 1℃~18℃ | 1℃ |
| P04 | Desired water temp. under cooling | 8℃~28℃ | 27℃ |
| P05 | Desired water temp. under heating | 15℃~40℃ | 27℃ |
| P06 | High exhaust temp. protection value | 80℃~125℃ | 120℃ |
| P07 | Exhaust temp. recovery value | 50℃~100℃ | 95℃ |
| P08 | Compressor current protection value | 2A~50A | 12 |
| P09 | Inlet water temp. compensation | -5℃~15℃ | 0℃ |
| P11 | Accumulated running time of Compressor | 20~90MIN | 45MIN |
| P12 | Piping temp. of enter defrosting | -15℃~-1℃ | -3℃ |
| P13 | Defrosting period | 5~20MIN | 8MIN |
| P14 | Piping temp. of exit defrosting | 1℃~40℃ | 20℃ |
| P15 | Difference of ambient temp. and piping temp. | 0℃~15℃ | 0℃ |
| P16 | Ambient temp. of enter defrosting | 0℃~20℃ | 17℃ |
ATTENTION!
The logic of Inverter pool heat pump is much more complicated than the traditional ON/OFF system, we do advise not to adjust the key parameters which may affect the reliable operation of the unit.
Manual defrosting
When piping temp. Is lower than Parameter P12, hold
and
for 3 seconds to enter Manual defrosting function.
Trouble shooting
Error code on the LED controller
| Code | Description | Reason | Solutions |
| E03 | Water flow failure | 1. Insufficient or no water flow. 2. The wiring for water flow switch is in loose situation. | 1. Check the water pump or water piping system. 2. Check the wiring or change a new water flow switch. |
| E04 | Freezing protection | Low ambient temp. | Its a protection for the system. |
| E09 | Communication failure | 1. Bad connection. 2. Controller or PCB broken. | 1. Check the wiring between PCB and controller. 2. Change a new controller or PC8. |
| E1O | Communication failure | 1. Bad connection. 2. Controller or PCB broken. | 1. Check the wiring between driver board and controller. 2. Change a new controller or driver board. |
| E12 | High exhaust temp. protection | Insufficient gas in the system. | Check if there is gas leakage in piping system |
| E15 | Inlet temp. sensor failure | Temp. sensor open circuit or short circuit. | 1. Check the sensor wiring. 2. Replace the new temp. sensor. |
| E16 | Piping temp. sensor failure | Temp. sensor open circuit or short circuit. | 1. Check the sensor wiring. 2. Replace the new temp. sensor. |
| E18 | Exhaust temp. sensor failure | Temp. sensor open circuit or short circuit. | 1. Check the sensor wiring. 2. Replace the new temp. sensor. |
| E20 | Abnormal inverter module failure | Check the running situation of heat pump. | Its a protection for the system. |
| E21 | Ambient temp. sensor failure | Temp. sensor open circuit or short circuit. | 1. Check the sensor wiring. 2. Replace the new temp. sensor. |
| E23 | Outlet water temp. too low under cooling mode | Insufficient water flow. | Check the water pump or water piping system |
| E27 | Outlet temp. sensor failure | Temp. sensor open circuit or short circuit. | I. Check the sensor wiring. 2. Replace the new temp. sensor. |
| E27 | Outlet water temp. too high under heating mode | Insufficient water flow. | Check the water pump or water piping system |
| E46 | DC fan motor failure | 1. Bad connection. 2. Fan motor broken. | 1. Check the wiring of fan motor. 2. Change a new fan motor. |
Other Malfunctions and Solutions (No display on LED wire controller)
| Malfunctions | Observing | Reason | Solution |
| Heat pump is not running | LED wire controller no display. | No power supply. | Check cable and circuit breaker if it is connected. |
| LED wire controller displays the actual water temperature. | 1. Water temperature is reaching to setting value, HP under constant temperature status. 2. Heat pump just starts to run. | 1. Verify water temperature setting. 2. Start up heat pump after a few minutes. | |
| Short running | LED displays actual water temperature, no error code displays. | 1. Fan NO running. 2. Air ventilation is not enough. 3. Refrigerant is not enough. | 1. Check the cable connections between the motor and fan, if necessary, it should be replaced. 2. Check the location of heat pump unit and eliminate all obstacles to make good air ventilation. 3. Replace or repair the heat pump unit. |
| Water stains | Water stains on heat pump unit. | 1. Concreting. 2. Water leakage. | 1.No action. 2. Check the titanium heat exchanger carefully if it is any defect. |
Maintenance
- You should check the water supply system regularly to avoid the air entering the system and occurrence of low water flow, because it would reduce the performance and reliability of HP unit.
- Clean your pools and filtration system regularly to avoid the damage of the unit as a result of the dirty of clogged filter.
- You should discharge the water from heat pump if it will stop running for a long time (especially during the winter season).
- In another way, you should check the unit is water fully before the unit start to run again.
- When the unit is running, there is all the time a little water discharge under the unit.






















