FUJITSU 18LUAS1D Inverter Driven Heat Pump Instruction Manual
PRODUCT FEATURES
- Automatic Changeover
- Auto/Cool/Dry/Fan/Heat Modes
- 24 Hr./Weekly timer
- Built in Condensate Pump
- Auxiliary Heat Control Logic
- Auto Restart
TABLE OF CONTENT
| MODEL NUMBERS | ||||
| Indoor Unit | ADUH18LUAS | |||
| Nominal Capacity | 18,000 | |||
| LINESET REQUIREMENTS | ||||
| Connection Method | n (mm) | Flare | ||
| Liquid | Ø1/4 (Ø6.35) | |||
| Gas | Ø1/2 (Ø12.70 | |||
| Drain hose | Material | PVC | ||
| in | Ø 1 (I.D.), Ø 1-1/4 (O.D) | |||
| mm | Ø 25 (I.D.), Ø 32 (O.D.) | |||
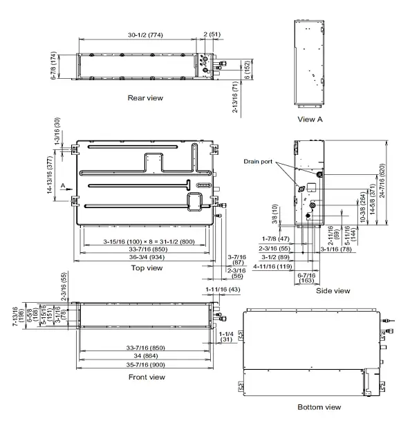
| INDOOR DIMENSIONS & WEIGHT | ||||
| Net (H x W x D) | in | 198 × 900 × 620 | ||
| Gross (H x W x D) | mm | 10-13/16 × 37-3/16 × 30-3/8 | ||
| Net Weigh | in | 274 × 1,145 × 772 | ||
| Gross Weight | mm | 44 (20 | ||
| lb (kg) | 57 (26) | |||
| ELECTRICAL SPECIFICATIONS | ||||
| Voltage/Frequency/Phase | 208/230 V ~ 60 Hz | |||
| Voltage Rang | 187—264 V | |||
| Running Curren | W | 0.44 | ||
| Input Power | A | 73 | ||
| SOUND PRESSUR | ||||
| Indoor Unit | Cooling | High | dB (A) | 32 |
| Medium | 31 | |||
| Low | 30 | |||
| Quiet | 29 | |||
| High | 33 | |||
| Medium | 32 | |||
| Heating | Low | 31 | ||
| Quiet | 29 | |||
| FAN DATA | ||||
| Airflow Rate | Cooling | High | CFM (m3/h) | 553 (940) |
| Medium | 518 (880 | |||
| Low | 483 (820) | |||
| Heating | Quiet | 441 (750) | ||
| High | 553 (940) | |||
| Medium | 518 (880) | |||
| Low | 483 (820) | |||
| Recommended Static Pressure | WG (Pa) | 0 to 0.36 (0 to 90) |
7 Year Compressor, 5 Year Parts out-of-the-box Warranty
10 Year Compressor, 10 Year Parts Warranty when registered within
60 days of installation in a residence
12 Year Compressor, 12 Year Parts Warranty when registered within 60 days of installation in a residence, and installed by a Fujitsu Elite contractor.
| ACCESSORIES | |
| UTY-RNRUZ Series | Wired Remote Controller |
| UTY-RSRY | Simple Remote Controlle |
| UTY-RHRY | Simple Remote Controller |
| UTY-LBTUM | IR Kit (Remote & IR Receiver Unit |
| UTY-TFSXZ2 | Wireless LAN Interface |
| UTY-TTRXZ1 | 24V Thermostat Interface |
| UTD-VMSX | MODBUS Converte |
| FJ-AC-BAC-1L | BACnet Gateway |
| UTD-GXTB-W | Auto Louver Grille Kit |
| UTY-XWZXZG | External Connect Kit |
DIMENSIONS

The Fujitsu logo is a worldwide trademark of Fujitsu General Limited. The Halcyon logo and name is a worldwide trademark of Fujitsu General Limited and is a registered trademark in Japan, the USA and other countries or areas. Copyright 2022 Fujitsu General America, Inc. Fujitsu’s products are subject to continuous improvements. Fujitsu reserves the right to modify product design, specifications and information in this brochure without notice and without incurring any obligations.
Note: Specifications are based on the following conditions: Cooling: Indoor temperature of 80°F (26.7°C) DB/67°F (19.4°C) WB, and outdoor temperature of 95°F (35°C) DB/75°F (23.9°C) WB. Heating: Indoor temperature of 70°F (21.1°C) DB/60°F (15.6°C) WB, and outdoor temperature of 47°F (8.3°C) DB/43°F (6.1°C) WB. Pipe length: 25ft. (7.5m), Height difference: 0ft. (0m) (Outdoor unit – indoor unit).
Fujitsu General America, Inc. • 340 Changebrige Rd, Pine Brook, NJ 07058 • Toll Free: (888) 888-3424 • www.fujitsugeneral.com




















