Antec DP503 Mid-Tower Case

Models Include:
T3SSK75F28
28 Door Kit with Fused Outputs
Fully assembled kit includes:
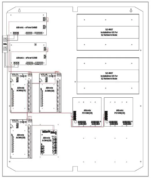
- Trove3 enclosure with TSS3 Altronix/Lenel-S2 (S2 Security Platform) backplane
- One (1) eFlow104NB – Power Supply/Charger
- One (1) eFlow102NB – Power Supply/Charger
- Three (3) ACM8 – Fused Access Power Controllers
- One (1) ACM4 – Fused Access Power Controller
- Two (2) PD16W – Fused Power Distribution Module
- One (1) RSB2* – Rocker Switch Bracket with Two (2) Rocker Switches (Not evaluated by UL)
T3SSK75F28D
28 Door Kit with PTC Outputs
Fully assembled kit includes:
- Trove3 enclosure with TSS3 Altronix/Lenel-S2 (S2 Security Platform) backplane
- One (1) eFlow104NB – Power Supply/Charger
- One (1) eFlow102NB – Power Supply/Charger
- Three (3) ACM8CB – PTC Access Power Controllers
- One (1) ACM4CB – PTC Access Power Controller
- Two (2) PD16WCB – PTC Power Distribution Module
- One (1) RSB2* – Rocker Switch Bracket with Two (2) Rocker Switches (Not evaluated by UL)
All components of this Trove kit are UL Listed sub-assemblies. Please refer to the included corresponding Sub-Assembly Installation Guides for further information.
Installation Guide
All registered trademarks are property of their respective owners.
Overview:
Altronix T3SSK75F28 and T3SSK75F28D Trove S2 kits are pre-assembled and consist of Trove enclosures/backplanes with factory installed Altronix power supply/chargers and sub-assemblies. Both kits accommodate Lenel-S2 (S2 Security Platform) S2-INST Installation Kit for S2 Network Node for up to twenty-eight (28) (T2SSK7F8) doors in a single enclosure.
Configuration Chart:
| Altronix Model Number | 120VAC 60Hz Input Current (A) | power Supply Board Input Fuse Rating | Power Supply Board Battery Fuse Rating | Nominal DC Output Voltage |
Maximum Supply Current for Main and Aux. Outputs on Power Supply board and ACM8(CB) Access Power Controllers’ outputs | Fail-Safe/Fail-Secure Outputs | Additional Fused Outputs | ACM8(CB) Board Input Fuse Rating | ACM8 Board Output Fuse Rating | ACM8CB Board Output PTC Rating | ACM4(CB) Board Input Fuse Rating | ACM4 Board Output Fuse Rating | ACM4CB Board Output PTC Rating | PD16W Board Output Fuse Rating | PD16WCB Board Output PTC Rating | |||
| Power Supply 1 | Power Supply 2 | |||||||||||||||||
| [DC] | [Aux] | [DC] | [Aux] | |||||||||||||||
| Output Rang(VDC) | Output Range (VDC) | Output Range (VDC) | Output Range (VDC) | |||||||||||||||
| T3SSK75F28 |
7.5 | eFlow104NB 6.3A/ 250V eFlow102NB 5A/ 250V | 15A/ 32V | 20.17- 26.4 | 20.28 26 | 9.7 13.2 | 10.03 3.2 | 24VDC @9.4A 12VDC @ 10A | 28 | 16 | 10A/ 250V | 3.5A/ 250V | 10A/ 32V | 3A/ 32V | 3.5A/ 250V | |||
| T3SSK75F28D | 2.5A | 2.5A | 2.5A | |||||||||||||||
Installation Instructions:
Wiring methods shall be in accordance with the National Electrical Code/NFPA 70/ANSI, and with all local codes and authorities having jurisdiction. Product is intended for indoor use only.
- Remove backplane from enclosure. Do not discard hardware.
- Mark and predrill holes in the wall to line up with the top two/three keyholes in the enclosure. Install two/three upper fasteners and screws in the wall with the screw heads
protruding. Place the enclosure’s upper keyholes over the two/three upper screws; level and secure. Mark the position of the lower three holes. Remove the enclosure. Drill the lower holes and install the three fasteners. Place the enclosure’s upper keyholes over the two/three upper screws. Install the three lower screws and make sure to tighten all screws. - Mount included UL Listed tamper switches (Altronix Model TS112 or equivalent) in desired locations, opposite hinge. Slide the tamper switch bracket onto the edge of the enclosure approximately 2” from the right side (Fig. 1, pg. 2). Connect tamper switch wiring to the Enclosure Access Control Panel input or the appropriate UL Listed reporting device. To activate alarm signal open the door of the enclosure.
- Mount S2-INST Installation Kit to backplane, refer to page 3.
- Refer to the fellow Power Supply/Charger Installation Guide for eFlow102NB and eFlow104NB and corresponding Sub-Assembly Installation Guides for ACM4(CB), ACM8(CB) and PD16W(CB) for further installation instructions.
Hardware:
- Lock Nut

T3SSK75F28(D): Access Controller Position Chart for the S2-INST Installation Kit:
- Align S2-INST mounting holes with perms on TSS3 (Fig. 2, pg. 3).
- Attach S2-INST to backplane with lock nuts (provided) (Fig. 2a, pg. 3).
- Mount backplane to enclosure with hardware.
- Fasten TSS3 backplane to Trove3 enclosure utilizing hardware (provided). Fig. 2


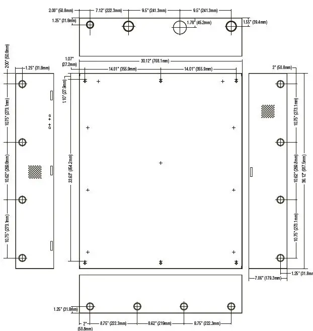
- Trove3 Enclosure Dimensions (H x W x D approximate):
- 36.12” x 30.125” x 7.06” (917.5mm x 768.1mm x 179.3mm)

Altronix is not responsible for any typographical errors. 140 58th Street, Brooklyn, New York 11220 USA
phone: 718-567-8181
fax: 718-567-9056
web site: www.altronix.com
e-mail: [email protected]
Lifetime Warranty IITrove3 SS Kits

















![Nzxt Premium Compact Mid-tower Atx Case [h510 Elite] User Manual Nzxt Premium Compact Mid-tower Atx Case [h510 Elite] User Manual](https://static-data1.manualsee.com/1/img/81/17014/2020/12/Pasted-into-Nzxt-Premium-Compact-Mid-Tower-ATX-Case-H510-Elite-User-Manual.png)
