OASIS PWSMFEBF Surface Mounted Electronic Bottle Filler Instruction Manual
WARNING
THE WARRANTY FOR THIS MACHINE IS AUTOMATICALLY VOIDED IF THIS MACHINE IS ALTERED, MODIFIED, OR COMBINED WITH ANY OTHER MACHINE OR DEVICE. ALTERATION OR MODIFICATION OF THIS MACHINE MAY CAUSE SERIOUS FLOODING.
EXCEPT AS SET FORTH HEREIN, THE MANUFACTURER MAKES NO OTHER WARRANTY, GUARANTEE OR AGREEMENT EXPRESS, IMPLIED OR STATUTORY, INCLUDING ANY IMPLIED WARRANTY OR METCHANTABILITY OR FITNESS FOR A PARTICULAR PURPOSE.
Getting Started
What’s Included
Fitting, reducing union
4” straight tube
Inline strainer
Tubing insulation
Versafilter III
Versafilter III is only included for the PWSMFEBF model
Tools required:
- #15 torx bit driver
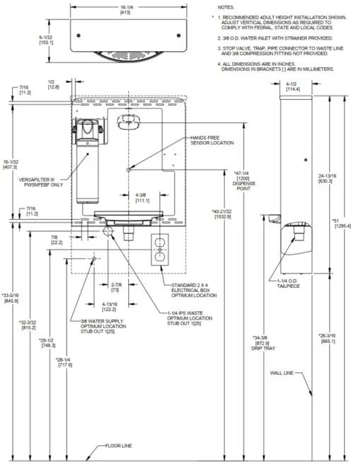
Rough In Drawing

Plumbing Diagram

Installation
A. INSPECTION
Inspect the cartons and various components for evidence of rough handling and concealed damage. Damage claims should be filed with the carrier.
B. INSTALLATION & ELECTRICAL / PLUMBING CONNECTIONS
- Note: The following states require a licensed plumber to install cooler; AR, GA, MA, MI, OK, RI, SC, SD, TX, VT and WI.
- CA, KS, MN, NM, and OR allow for state-registered installer or contractor as well. State and local plumbing codes may prohibit use of saddle tapping valves for water line connection in some applications. All connections must conform to applicable plumbing codes.
- Plumbing and electrical rough-in and wall opening should be prepared as shown on Roughing-in drawing in Section 2. This drinking water cooler is designed to be operated at a water supply line pressure of up to 100 psi (690 kPa). A pressure regulator must be installed prior to the unit’s water inlet if the water pressure (including any possible pressure spikes) could exceed 100 psi (690 kPa).
- Check the available power supply against the dispenser data plate to assure the correct electrical service. This drinking water dispenser is intended to be connected to a ground fault circuit interrupting (GFCI) device to meet UL requirements.
- Prep the unit for installation by removing the internal wall frame from cabinet. Remove 2 torx screws (T15) from the sides. Save the screws for reassembly later.
- Place the wall frame in the appropriate location and attach to the wall. Refer to the Rough In Drawing in Section 2.The back panel has 4 rows of slots to provide optimum securing location. NOTE: As the frame is put in place, slide the drain tube into the drain stub extending from the wall.
- If a chiller is providing cold water to the bottle filler insulate the bottle filler ¼” OD water lines with tubing insulation provided.
- As you put the bottle filler in place on the frame, attach the green grounding wire from the cabinet to the electrical box ground. Plug in the power cord for sensor operation.
- For non-filtered models, connect the water supply line and check for leaks. Proceed to step 11.
- For filtered models, the filter needs to be flushed before turning on the water supply. To do this, disconnect the water line at the solenoid as shown in the plumbing diagram in Section 3. Direct that water line to the drain. Connect the water supply line and flush the filter until the water is clear. Reconnect the water line to the solenoid valve and check all plumbing connections for leaks.
- The display on the upper right of the cabinet should be illuminated. Follow the set up guide for bottle filler electronics in Section 5 to adjust the program settings. Water will shut off immediately after a container is removed from alcove. Maximum run time is 30 seconds should someone tamper with sensor.
- Fasten the cabinet to the frame using the 2 torx screws removed earlier.
- On new plumbing installations, run water through the spout until the water taste is satisfactory. Place a cup or bottle into the alcove to activate the sensor and open the solenoid valve. The sensor will automatically shut off the solenoid valve after the programmed run time is reached. To reactivate, move the container away for an instant and then again place it in front of sensor.
- Assemble the top onto the cabinet using the 2 torx screws.
Set-up guide for bottle filler electronics
Factory default program settings are:
a. Units – Gallons
b. Unfiltered unit
c. Flow Rate = 1.0 GPMD
d. Filter Capacity = 4750 gallons [18000 liters] for VersaFilter III
e. Bottle Count = 0.5L (1 Bottle)
f. 20 second maximum dispense time
To access the bottle filler electronics, the bottle filler top cap will need to be set aside until programming is complete. Remove the top cap by unscrewing two (2) T15 torx screws. Remove wire tie bundling pushbutton inside bottle filler. You can then adjust program using pushbutton.
To change the program settings, follow these steps
| Display | Action |
| 000000000BOTTLES REUSED(Home Screen) | Depress button for 3 seconds to enter into the following menu settings and make changes.Note: at anytime it will exit menu and save settings when idle for 10 seconds (no button press) and revert back to Home Screen. |
| LTR/GAL GAL[LTR] | Depress button 3 seconds to change from Gallons to Liters, or momentary press to advance to next menu. |
| UNFILT/FILT? UNFILTERED UNIT[FILTERED UNIT] | Depress button 3 seconds to change from Unfiltered to Filtered unit, or momentary press to advance to next menu. |
| SELECT RATE1.0 GPMD UNIT [3.8 LPM UNIT] | To change flow rate, momentarily depress button to change whole gallon digit. Hold button 3 seconds to advance to TENTHS of gallon digit.Depress momentarily to change the digit.Hold button 3 seconds to advance to the next menu. |
| RESET 00000000 GALLON COUNT? [LTR COUNT?] | Depress button for 3 seconds to reset water usage count, or momentary press to advance to next menu. |
| FILT CAPAC OF 4750 GAL[18000 LTR] | Depress button for 3 seconds to change filter capacity to 1250 GAL [5000 LTR] for VersaFilter I. Depress button for 3 seconds to change filter capacity to 3000 GAL [11000 LTR] for VersaFilter II. Depress button for 3 seconds to change filter capacity to 4750 GAL [18000 LTR] for VersaFilter III.or momentary press to advance to next menu. |
| 3 sec rule ?3 sec [0.5L] | Depress button for 3 seconds to switch from 3 sec rule to 0.5L bottle, or momentary press to advance to next menu.(The 3 sec rule increases the bottle count by 1 if the water is dispensed for 3 sec or more.) |
| RESET 00000000BOT COUNT? | Depress button for 3 seconds to reset BOTTLES REUSED count to zero (Home Screen),or momentary press to advance to next menu. |
| Bot FillerSet time: 20 s | Depress button for 3 seconds to change maximum dispense time to 10, 20 or 30 seconds,or momentary press to advance to next menu. |
Parts Breakdown

| ITEM | QTY | P/N | Description | ITEM | QTY | P/N | Description | |
| 1 | 1 | 036687-003 | FRAME | 29 | 1 | 038168-001 | CORD ASSEMBLY, DC POWER SUPPLY | |
| 2 | 1 | 027189-011 | SNAP BUSHING, 2″ | 30 | 1 | 038036-003 | POWER SUPPLY, 100-240VAC/12VDC | |
| 3 | 1 | 042372-001 | DRIPTRAY, SURFMOUNT | 31 | 2 | 026642-004 | SCREW, HEX HD TAPPING #8 X 3/8″ | |
| 4 | 2 | 026642-006 | SCREW, HEX HD TAPPING #8 X 1/2″ | 32 | 2 | 032839-004 | P-CLIP, 5/8″ | |
| 5 | 2 | 031875-003 | SCREW, TRUSS HD TAPPING TORX | 33 | 1 | 030152-034-SP | TUBE, PE WHITE 17″ | |
| 6 | 1 | 038003-008 | WRAPPER, PWSMEBF OASIS | 34 | 1 | 021339-102 | LEAD WIRE ASSY 6GG | |
| 7 | 1 | 038004-001 | PLATE, WRAPPER BOTTOM | 35 | 1 | 021339-214 | LEAD WIRE ASSY 42GG | |
| 8 | 4 | 031875-003 | SCREW, TRUSS HD TAPPING TORX | 36 | 1 | 041405-002-SP | VHB PCB BRACKET ASSEMBLY | |
| 9 | 1 | 042370-001 | COVER, FRONT | 37 | 1 | 042575-001 | LENS, LCD | |
| 10 | 2 | 026642-003 | SCREW, HEX HD TAPPING #8 X 3/8″ | 38 | 1 | 038915-103 | MYLAR A POLYESTER FILM 1.50″ X 4.25″ | |
| 11 | 1 | 042374-001 | GRILLE, DRIPTRAY | 39 | 1 | 042064-002 | PCB, MAIN | |
| 12 | 3 | 026675-003 | SCREW, FLAT HD TAPPING #8 X 3/8″ | 40 | 2 | 026630-004 | SCREW, PAN HD TAPPING #6 X 3/8″ | |
| 13 | 1 | 041405-001-SP | VHB ALCOVE ASSEMBLY | 41 | 1 | 042068-001 | LED ASSEMBLY | |
| 14 | 1 | 042369-001 | SPOUT | 42 | 1 | 042067-001 | BUTTON ASSEMBLY | |
| 15 | 1 | 038032-001 | FLOW NOZZLE ASSEMBLY | 43 | 1 | 042066-001 | 5-PIN WIRE, IR SENSOR | |
| 16 | 1 | 038029-001 | ADAPTER, FLOW NOZZLE | 44 | 1 | 041405-003-SP | VHB IR BRACKET ASSEMBLY | |
| 17 | 1 | 026642-006 | SCREW, HEX HD TAPPING #8 X 1/2″ | 45 | 1 | 038915-102 | MYLAR A POLYESTER FILM 2.0″ X 4.0″ | |
| 18 | 1 | 029962-103 | FITTING, REDUCING ELBOW | 46 | 1 | 038916-101 | MYLAR POLYESTER TAPE, 1.25″LG | |
| 19 | 2 | 026642-003 | SCREW, HEX HD TAPPING #8 X 3/8″ | 47 | 1 | 038027-001 | LENS, IR BOTTLE FILLER | |
| 20 | 1 | 017340-512 | LEAD WIRE ASSY 10FR BLACK | 48 | 1 | 042065-001 | PCB, IR SENSOR | |
| 21 | 1 | 021929-129 | LEAD WIRE ASSY 10FR RED | 49 | 2 | 028706-046 | SPACER – NON METAL | |
| 22 | 2 | 026642-004 | SCREW, HEX HD TAPPING #8 X 3/8″ | 50 | 2 | 016377-004 | WASHER, METAL | |
| 23 | 1 | 036686-001 | CAP, PWSBF | 51 | 2 | 026630-004 | SCREW, PAN HD TAPPING #6 X 3/8″ | |
| 24 | 2 | 031875-003 | SCREW, TRUSS HD TAPPING TORX | 52 | 1 | 017681-045-SP | INSULATION, SPONGE TUBE 55″ | |
| 25 | 1 | 029994-103 | FITTING, ELBOW PLUG IN | 53 | 1 | 033264-003 | STRAINER, IN-LINE | |
| 26 | 1 | 038030-002 | SOLENOID VALVE 12VDC | 54 | 1 | 026794-014 | TUBE, STRAIGHT 3/8″ OD X 4″ LG | |
| 27 | 2 | 026642-004 | SCREW, HEX HD TAPPING #8 X 3/8″ | 55 | 1 | 028668-101 | FTG, PP REDUCING UNION | |
| 28 | 1 | 042576-001 | BRACKET, PWEBF ELECTRONICS | 56 | 1 | 030152-046-SP | TUBE, PE WHITE 38″ |
PWFEBF with VersaFilter III only
| PWFEBF with VersaFilter III only | |||
| 57 | 1 | 041410-002 | FILTER BRAKET FRAME |
| 58 | 1 | 041145-001 | FILTER CARTRIDGE, VERSAFLITER III |
| 59 | 1 | 041146-001 | FILTER HEAD ASSEMBLY, SINGLE STAGE |
| 60 | 1 | 029994-103 | FITTING, ELBOW PLUG IN |
| 61 | 1 | 030152-022-SP | TUBE, PE WHITE 12″ |
| 62 | 2 | 026642-004 | SCREW, HEX HD TAPPING #8 X 3/8″ |
| 63 | 1 | 017681-049 | INSULATION, SPONGE TUBE 66″ |
OASIS INTERNATIONAL
222 East Campus View Blvd. • Columbus, OH 43235 U.S.A.
1-800-950-3226
www.oasiscoolers.com
OASIS, Versafiller, Aqua Pointe and Versafilter are registered trademark of LVD Acquisition, LLC dba Oasis International
© 2022 LVD Acquisition, LLC
030099-687 1/2023




















