
3612F Outdoor Bottle Filler Dual Drinking Fountain
Instruction Manual
INSTALLATION, OPERATION & MAINTENANCE INSTRUCTIONS
1455 Kleppe Lane
Sparks, NV 89431-6467
(775) 359-4712
Fax (775) 359-7424
E-mail: [email protected]
website: www.hawsco.com
No. 0580001180 (2)
3612F Outdoor Bottle Filler Dual Drinking Fountain
MODELS 3612 & 3612F
Outdoor Bottle Filler/Dual Drinking Fountain
NOTE TO INSTALLER: Please leave this information with the Maintenance Department.
LIMITED WARRANTY
HAWS warrants that all of its products are guaranteed against defective material or poor workmanship for a period of one year from the date of shipment. The foregoing notwithstanding, HAWS warrants certain specific products or components thereof for an adjusted period. A list of these excepted products and components and a description of their respective warranty terms may be found here: www.hawsco.com/warranty. HAWS’ liability under this warranty shall be discharged by furnishing without charge F.O.B. HAWS factory any goods, or part thereof, which shall appear to the Company upon inspection to be of defective material or not of first-class workmanship, provided that a claim is made in writing to Company within a reasonable period after receipt of the product. Where claims for defects are made, the defective part or parts shall be delivered to the Company, prepaid, for inspection. HAWS shall not be liable for the cost of repairs, alterations or replacements, or the labor required to implement them, or for any expense connected therewith made by the owner or owner’s agents, except upon written authority from HAWS. HAWS shall not be liable for any damages caused by defective materials or poor workmanship, except for replacements, as provided above. Buyer agrees that HAWS has made no other warranties either express or implied in addition to those above stated, except that of title with respect to any of the products or equipment sold hereunder and that HAWS shall not be liable for general, special, incidental, or consequential damages claimed to arise under the contract of sale. Equipment manufactured by HAWS is warranted to function if installation and maintenance instructions provided are adhered to. The units also must be used for the purpose for which they were intended. Any HAWS emergency equipment is intended to supplement first-aid treatment. Due to widely varying conditions, HAWS cannot guarantee that the use of this emergency equipment will prevent serious injury or the aggravation of existing or prior injuries.
EXCEPT AS EXPRESSLY STATED HEREIN, HAWS HEREBY DISCLAIMS ALL WARRANTIES, WHETHER EXPRESS OR IMPLIED, ARISING BY LAW OR OTHERWISE, INCLUDING WITHOUT LIMITATION, ANY IMPLIED WARRANTIES OF MERCHANTABILITY AND FITNESS FOR A PARTICULAR PURPOSE. THIS WARRANTY MAY NOT BE MODIFIED OR EXTENDED WITHOUT THE WRITTEN CONSENT OF HAWS. REMEDIES AND REPLACEMENTS STATED HEREIN ARE EXCLUSIVE. IN NO EVENT SHALL HAWS BE LIABLE FOR ANY SPECIAL, PUNITIVE, CONSEQUENTIAL OR INCIDENTAL DAMAGES TO ANY PERSON INCLUDING BUT NOT LIMITED TO DAMAGES FOR LOSS OF USE OR PROFITS, SUBSTITUTE PRODUCTS OR COSTS, PROPERTY DAMAGE, OR OTHER MONETARY LOSS.
SHOULD YOU EXPERIENCE DIFFICULTY WITH THE INSTALLATION OF THIS MODEL, PLEASE CALL:
TECHNICAL SUPPORT: 1-800-766-5612
FOR CUSTOMER SERVICE: 1-888-640-4297
RECOMMENDED TOOLS:
– Measuring Tape
– PVC Pipe Cutter
– Plastic Tubing Cutter
– PVC Solvent Weld Glue
– ¼” Bit-Holding Screwdriver
– Level
– 10” Pipe Wrench
– Adjustable Plier
– 1/8 and 5/32 Tamper Resistant Hex Bits (Supplied)
– 9/16” and 5/8” Box/Open Combination Wrenches, 8” Max Length
– 3/8” Socket Wrench/Rachet, 8” Max Length
– 9/16” Deep Socket
– 15/16” Socket
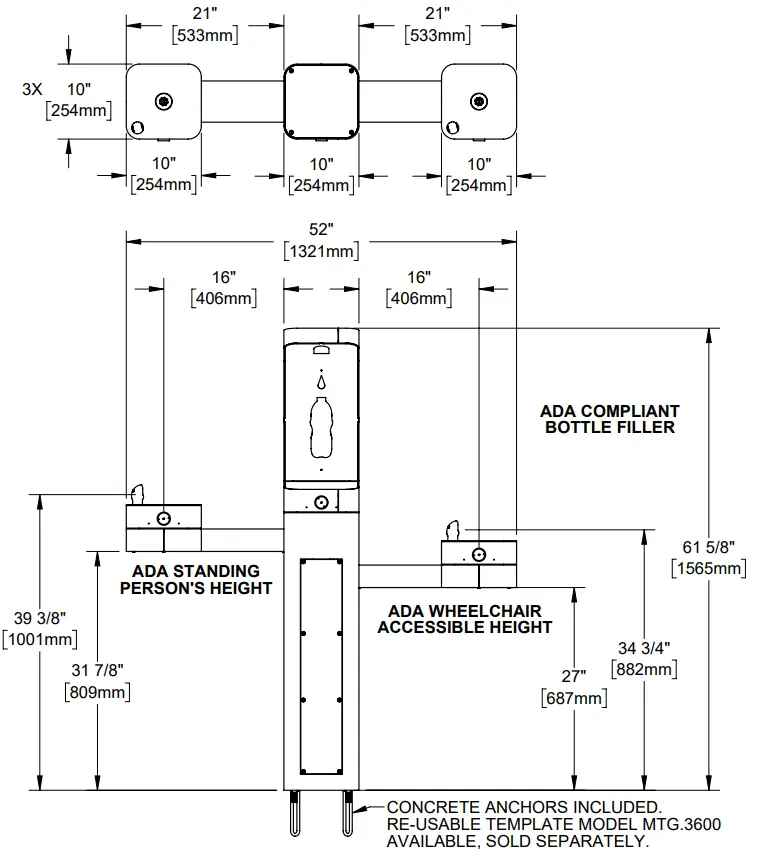
LOCATION OF UNIT: The Model 3612/3612F (with Filter) Bottle Filler and Dual Fountain can be installed and assembled to be ADA accessible by first locating the pedestal base with at least 8 inches of clear unobstructed hardscape behind the pedestal. Provide a hardscape that is at least 74 inches wide. When the right pedestal arm is installed in the high orientation, the height dimensions shown on the model specification sheet meet current Federal Americans with Disabilities Act (ADA) wheelchair requirements. When the left pedestal arm is installed in the highest position, the height dimensions shown on the model specification sheet meet current ADA standing height requirements. The bottle filler meets ADA requirements for either a front approach or a side approach. When installing this unit, local, state and federal (including ADA) codes must be adhered to. If height other than shown is required, then dimensions must be adjusted accordingly.
ATTENTION: For model 3612F (model with Filter), the Operating Temperature Range for the 6477 Filter Kit Assembly (Required – supplied separately) is 40° F – 100° F (4.4° C – 37.8° C).
SUPPLY LINE: Model 3612 – The minimum recommended line size is 1/2“IPS with 30-90 psi (2-6 ATM) flowing pressure. Where sediment or mineral content is a problem, an inlet filter is recommended. Model 3612F (with Filter) – The minimum recommended line size is 1/2“IPS with 40-90 psi (2.76-6 ATM) flowing pressure.
PLUMBING CONNECTIONS: Model 3612 – The water supply inlet connection is a 3/8“O.D. compression fitting. The waste outlet is 1-1/2” PVC pipe. Model 3612F – The water supply inlet and outlet connection (for Filter) is a 3/8“O.D. push-in type fitting. The waste outlet is 1-1/2” PVC pipe. Plumbing connections will vary depending on how each model is configured during assembly. Please consult the installation drawings below for supply and waste fitting arrangements and assembly for your specific model.
MAINTENANCE:
Models 3612 & 3612F Periodically clean the pushbutton valve strainer.
Refer to 5874 Series Valve Operation and Maintenance Manual for more information. Model 3612F – Filter replacement to occur at 1 year maximum or 3,000 gallons aximum, whichever comes first. Replace filter per Filter Replacement instructions listed on model 6477 Operation & Maintenance Manual.
INSTALLATION PROCEDURE
GENERAL NOTES:
1. For all compression fitting connections, only connect NSF-61 copper or plastic 3/8” outside diameter tubing. The following assembly instructions must be followed to ensure a watertight connection:
a. Cut tubing square and clean. Deburr if necessary.
b. Place compression nut and ferrule over end of the tubing.
c. For plastic tubing (must be ¼” inside diameter), insert supplied tubing insert into the end of the tubing.
d. Push the tube into the fitting until it bottoms out.
e. Thread nut onto the fitting and tighten snugly with 5/8” wrenches.
| Tube Sizes | O.D. Tolerance | Insertion Depth |
| 3/8” | ±.005” | 3/4” |
TROUBLESHOOTING
| PROBLEM | REPAIR CHECKLIST |
| 1. Insufficient bubbler flow (FromDrinking Fountain) | 1a. For 3612 – Verify minimum 30 psi flowing supply pressure. For 3611F – Verify minimum 40 psi flowing supply pressure b. Check that the inlet screwdriver stop valve is wide open. Clean inlet strainer or adjust the valve to increase flow. See 5874 Series Valve Manual*. c. For 3612F (Only) – Check the water filter. Replace at 1 year or 3,000 gallons (max.), whichever comes first. |
| 2. Insufficient bottle filler flow | 2a. For 3612 – Verify minimum 30 psi flowing supply pressure. For 3612F – Verify minimum 40 psi flowing supply pressure. b. The nozzle strainer is clogged. Use a nozzle removal tool to remove the strainer and replace it. Replacement strainers may be ordered by calling Customer Service. C. Check that the inlet screwdriver stop valve is wide open. Clean the inlet strainer or adjust the valve to increase flow. See 5874 Series Valve Manual*. D. For 3612F (Only) – Check the water filter. Replace at 1 year or 3,000 gallons (max.), whichever comes first. |
*For more information about Haws products, see our website: www.hawsco.com
© 2021 Haws® Corporation – All Rights Reserved
HAWS® and other trademarks used in these materials are the exclusive property of Haws Corporation.
THIS DOCUMENT IS TRUE AND CORRECT AT THE TIME OF PUBLICATION. CONTINUED PRODUCT IMPROVEMENTS MAKE SPECIFICATIONS AND MEASUREMENTS SUBJECT TO CHANGE WITHOUT NOTICE.
REPLACEMENT PARTS DRINKING FOUNTAIN
![]() | ||
| MODEL 5703M BUBBLER HEAD | MODEL 5874PB PUSHBUTTON | MODEL VRK5874 VALVE REPAIR KIT |
REPLACEMENT PARTS BOTTLE FILLER
![]() | ||
| 0410000564 BOTTLE FILLER DRAIN COVER PLATE | MODEL VRK5874HF VALVE REPAIR KIT, HIGH FLOW | MODEL VRKNOZ1 QTY 10 AERATORS AND INSTALL TOOL |
REPLACEMENT PARTS FOUNTAIN & BOTTLE FILLER
![]() | |
| MODEL PBA7 BUTTON ASSEMBLY | MODEL 6428 FILTER CARTRIDGE (FOR 36XXF SERIES MODELS) |
![]() | |
| 0006983506 SPANNER WRENCH | 0510001030 HEX BIT, PINNED, 5/32″ …….0510001029 HEX BIT, PINNED, 1/8″ |
OPTIONAL ACCESSORIES
![]() | |
| MODEL 3661 HOSE BIB (NOT FREEZE RESISTANT) | MODEL 3660 LOCKABLE HOSE BIB (NOT FREEZE RESISTANT) |
![]() | |
| MODEL 3670 DOG BOWL (NOT FREEZE RESISTANT) | MODEL MTG.3600 INSTALLATION AID |
THIS DOCUMENT IS TRUE AND CORRECT AT THE TIME OF PUBLICATION. CONTINUED PRODUCT IMPROVEMENTS MAKE SPECIFICATIONS AND MEASUREMENTS SUBJECT TO CHANGE WITHOUT NOTICE.
AVAILABLE SUB-COMPONENT MODELS

NOTES:
1. WHEN INSTALLING THIS UNIT, LOCAL, STATE, OR FEDERAL CODES SHOULD BE ADHERED TO. INSTALL A TRAP IN THE WASTE LINE AND A SCREWDRIVER STOP IN THE SUPPLY LINE IF REQUIRED.

HAWS MODEL 3612/3612F IS FULLY COMPLIANT WITH THE FEDERAL 2010 AMERICANS WITH DISABILITIES ACT (ADA) ACCESSIBILITY REQUIREMENTS WHEN INSTALLED AS SHOWN ERE AND WHEN INSTALLED WITH PROPER CLEARANCES AND ACCESS. LOCATE THE PEDESTAL BASE WITH AT LEAST 8″ OF CLEAR UNOBSTRUCTED HARDSCAPE BEHIND THE PEDESTAL. IT IS THE RESPONSIBILITY OF THE INSTALLER TO ADHERE TO LOCAL, STATE,AND FEDERAL CODES WHEN INSTALLING THIS UNIT. DISTANCE TO SURROUNDING OBJECTS, APPROACH SURFACES, ETC. SHOULD BE CONSIDERED.
© 2021 Haws Corporation – All Rights Reserved. HAWS® and other trademarks used in these materials are the exclusive property of Haws Corporation.
INSTALLATION INSTRUCTIONS

STEP 1
MOUNT PEDESTAL TO CONCRETE SLAB IN DESIRED ORIENTATION. SLAB TO BE 30″ MINIMUM SQUARE AND 6″ MINIMUM THICK (BY OTHERS). PLUMBING CAST IN CONCRETE MUST FIT IN 7″ DIAMETER AREA CENTERED UNDER THE PEDESTAL LOCATION.
STEP 2
REMOVE BOTTOM COVER PLATES FROM ARMS BY REMOVING 3 1/4″ BUTTON HEAD SCREWS. INSTALL ONE FOUNTAIN ARM ON THE RIGHT SIDE AS SHOWN. USE 1/4″ FLAT HEAD SCREWS (SUPPLIED) TO INSTALL THE PLATE. USE 3/8″ BOLTS AND NUTS (SUPPLIED) AND TORQUE TO 18 FT-LBS TO INSTALL THE ARM.
STEP 3
INSTALL REMAINING ARM ON LEFT SIDE AS SHOWN. USE 1/4″ FLAT HEAD SCREWS (SUPPLIED) TO INSTALL PLATES. USE 3/8″ BOLTS AND NUTS (SUPPLIED) AND TORQUE TO 18 FT-LBS TO INSTALL ARM.
STEP 4
PLACE SQUARE TRIM RING ON BOTTOM OF BOTTLE FILLER AND PLACE BOTTLE FILLER ON TOP OF PEDESTAL, FACING THE FRONT. USE 3/8″ BOLTS AND NUTS VIA THE FRONT ACCESS PANEL TO SECURE THE BOTTLE FILLER TO THE PEDESTAL. PLACE TRIM RING AND INSTALL FOUNTAINS ON ARMS AS SHOWN. CAREFULLY CENTER BOTTLE FILLER, FOUNTAIN, AND TRIM RINGS, THEN TORQUE BOLTS/NUTS TO 18 FT-LBS
MODEL 3611F (WITH FILTER) SHOWN
STEP 5
INSTALL SUPPLIED DRAIN COMPONENTS AS SHOWN. RED COMPRESSION WASHERS ADAPT FROM 1-1/4″ TO 1-1/2″ AT EACH DRAIN TAIL PIECE. BLACK COMPRESSION WASHERS ARE USED IN TRAP ADAPTERS AT TEES. USE APPROPRIATE PVC CEMENT TO MAKE SOLVENT CEMENT CONNECTIONS. TRIM WASTE BEND AND/OR TAIL PIECE LENGTH IF REQUIRED. NOTE THAT EXTRA PARTS MAY BE INCLUDED TO FACILITATE OTHER CONFIGURATIONS OF THIS FOUNTAIN.
3612 SUPPLY PLUMBING
STEP 6
COMPLETE WATER SUPPLY PLUMBING AS SHOWN. OPEN SUPPLY VALVE(S) AND TEST. REPLACE ARM BOTTOM PLATES AND PEDESTAL ACCESS PLATES.
3612F FILTER BRACKET MOUNTING
STEP 7
INSTALL FILTER MOUNTING BRACKET (SUPPLIED WITH MODEL 6477) TO LEFT INSIDE VERTICAL RAILS USING 2 BUTTON HEAD SCREWS AS INDICATED ABOVE. INSTALL FILTER HEAD-ON HANGER ANGLE WITH 4 SUPPLIED SELF-TAPPING SCREWS. INSTALL FILTER HANGER ANGLE BRACKET IN RIGHTMOST HOLES AS SHOWN. SEE MODEL 6477 OPERATION AND MAINTENANCE MANUAL FOR ADDITIONAL DETAILS.
NOTES ON OPTIONAL CONFIGURATIONS
HAWS 3600/3600F SERIES OUTDOOR FOUNTAINS ARE MODULAR AND CAN BE ASSEMBLED AND CONFIGURED IN MANY DIFFERENT WAYS. DISPLAYED HERE ARE A FEW EXAMPLES. CONFIGURATIONS OTHER THAN THAT SHOWN IN THE INSTALLATION INSTRUCTIONS FOR THE 3612/3612F MAY AFFECT COMPLIANCE WITH ADA REGULATIONS. IT IS THE RESPONSIBILITY OF THE INSTALLER TO UNDERSTAND LOCAL, STATE, AND FEDERAL REGULATIONS AS APPLICABLE IF INSTALLING THIS FOUNTAIN IN CONFIGURATIONS OTHER THAN THAT INDICATED ON SHEET 1 (PAGE 6 OF 11).

| ADA ARM HEIGHT POSITION OPTIONS | ||||
| LEFT SIDE* | RIGHT SIDE* | ARM HEIGHT (LOWER EDGE) | BUBBLER NOZZLE HEIGHT | |
| STANDING ADA | YES (STD) | NO | 31-7/8 [809 mm] | 39-3/8 [999 mm]** |
| WHEELCHAIR ADA | YES | YES (STD) | 27 [687 mm] | 34-5/8 [878 mm] |
| CHILD ADA | YES | YES | 22-1/4 [566 mm] 29-7/8 | [757 mm] |
| * RIGHT AND LEFT CAN BE REVERSED IF THE PEDESTAL IS ROTATED 180°. **NOZZLE HEIGHT IS 41-1/2″ WHEN FOUNTAIN IS INSTALLED ON TOP OF THE PEDESTAL. | ||||
1455 KLEPPE LANE
SPARKS, NEVADA 89431
(775) 359-4712 FAX (775) 359-7424
E-MAIL: [email protected]
WEBSITE: WWW.HAWSCO.COM
| ECN: 5666 | REV. ECN: 5719 | BY: DP | MODEL(S) 3612 & 3612F | PART NUMBER 0580001180.D | ||
| DRAWN: DHP | DATE: 6/11/20 | CHK’D.: BJM | ||||
| REVISION 2 | ||||||
| APPROVED: FV | DATE: 09/16/21 | |||||
| SCALE: 1:24 | I DRAWING TYPE: INSTALLATION | SIZE: A | SHEET 6 OF 6 | |||
© 2021 Haws Corporation – All Rights Reserved. HAWS® and other trademarks used in these materials are the exclusive property of Haws Corporation.
























