OASIS MWEBF Electronic Bottle Filler
INSPECTION
Inspect the cartons and various components for evidence of rough handling and concealed damage.
Damage claims should be filed with the carrier.
INSTALLATION, PLUMBING & ELECTRICAL CONNECTIONS
- a) Note: The following states require a licensed plumber to install cooler; AR, GA, MA, MI, OK, RI, SC, SD, TX, VT and WI. CA, KS, MN, NM and OR allow for a state-registered installer or contractor as well. State and local plumbing codes may prohibit the use of saddle tapping valves for water line connection in some applications. All connections must conform to applicable plumbing codes.
- b) Plumbing rough-in and wall opening should be prepared as shown on roughing-in drawing. This drinking water cooler is designed to be operated at a water supply line pressure of up to 100 psi (690 kPa).
A pressure regulator must be installed in front of the unit’s water inlet if the pressure (including any possible pressure spikes) could exceed 100 psi (690 kPa). - c) Insert frame assembly into wall opening and secure to studs. NOTE: FRONT FLANGE OF FRAME(S) MUST BE FLUSH WITH THE FINISHED WALL SURFACE.
- d) Install drain receptor to frame with screws provided.
- e) A 2X4 junction box is provided for the installation of a 115 volt receptacle. The bottle filler is provided with a power cord with a grounded NEMA 15 plug. This unit is intended to be connected to a ground fault circuit interrupting (GFCI) device to meet UL requirements. It is recommended that flexible conduit be used to supply power to the junction box and chiller if used. Check the electric current available. Type and voltage must be the same as listed on the unit data plate.
- f) As the bottle filler panel assembly is being placed on the frame assembly, feed the long green ground wire and the terminals on the power supply cord through the bushings in the frame assembly.
- g) Attach the long green ground wire to the frame assembly junction box ground, then plug in bottle filler power cord.
- h) Refer to the appropriate connection diagram for water and drain connections. Check for leaks.
- i) The lower panel can be secured with the provided key locks or screws. The M8EBF features one lockable and one non lockable lower panel; these are interchangeable.
MODELS WITH CHILLER - j) Attach cradle mounting angles to unit mounting cradle with 4 screws provided. Slide unit mounting cradle into frame and secure in place with 4 screws, provided. (Cradle is used only when cooling unit is to be installed). NOTE: BOTTOM FLANGE ON CRADLE IS TO BE BEHIND FRAME FRONT FLANGE.
- k) Slide cooling unit onto cradle.
M8EBF & M12EBF WITH FOUNTAIN - l) Install the fountain mounting plate to the frame assembly using the provided screws.
- m) Place the upper panel in place on the frame top angle and fasten with 2 screws, provided, at the bottom.
- n) Remove the bottom plate from the fountain arm. Save the screws.
- o) Snap the reveal gasket over the back end of the fountain arm.
- p) Add compression connector, furnished by others, to the fountain waste tube and slide back approximately 3” out of the way. Refer to the appropriate connection diagram.
- q) Hang the fountain on the mounting plate studs. NOTE: AS THE FOUNTAIN IS HUNG, FEED THE WASTE TUBE INTO THE WASTE STUB ON THE WALL SIDE.
- r) Tighten the fountain to the mounting plate with the 5/16-18 nuts and washers and the 1/4-20 bolts and washers provided.
- s) Slide the reveal gasket(s) back into the notch between the panel and the arm. The gasket serves as an appearance item only (to close up any opening around the panel and the mounting plate).
OVERLOAD PROTECTION (systems with chiller)
The compressor motor is equipped with an automatic reset protector which will disconnect the motor from the line in case of overload.
LUBRICATION (systems with chiller)
This unit is equipped with a hermetically sealed compressor. No additional lubrication is required. The fan motor installed on this unit seldom needs oiling. If required, a few drops of SAE 10 oil should be used.
TO DISCONTINUE USE OF SYSTEMS WITH CHILLER
Drain cooler when removed from service: (1) Remove grille, (2) Close supply valve, (3) Provide container to catch water, and remove drain plug.
MAINTENANCE (systems with chiller)
The only maintenance required is the removal of dirt and lint from the condenser. Inspection should be made at 3 month intervals. Remove the grille and clean the condenser with a vacuum attachment. WARNING: The warranty and Underwriters’ Laboratory Listing for this machine are automatically voided if this machine is altered, modified, or combined with any other machine or device. Alteration or modification of this machine may cause serious flooding and/or hazardous electrical shock or fire. EXCEPT AS SET FORTH HEREIN, THE MANUFACTURER MAKES NO OTHER WARRANTY, GUARANTEE OR AGREEMENT EXPRESSED, IMPLIED, OR STATUTORY, INCLUDING ANY IMPLIED WARRANTY OR MERCHANTABILITY OR FITNESS FOR A PARTICULAR PURPOSE.
IMPORTANT REQUIREMENT
CAUTION: Ensure bottle filler is properly grounded. It is required to attach the long green ground wire to the frame assembly junction box in order for the unit to function properly. Refer to the steps described in the steps on Page 13.
LED INDICATOR KEY

| LED Color | Display | Condition | Action |
| GREEN | “BOTTLES SAVED” | Standby mode – filter life <80% used. | No action needed. |
| YELLOW | “BOTTLES SAVED” | Standby mode – filter life >80% used but <100%. | Order new filter. |
| RED | “BOTTLES SAVED” | Standby mode – filter life =100% used. | Replace the filter. |
OASIS AQUA POINTE® ELECTRONIC BOTTLE FILLER MODELS MWEBF, MW8EBF, MW12EBF

NOTES:
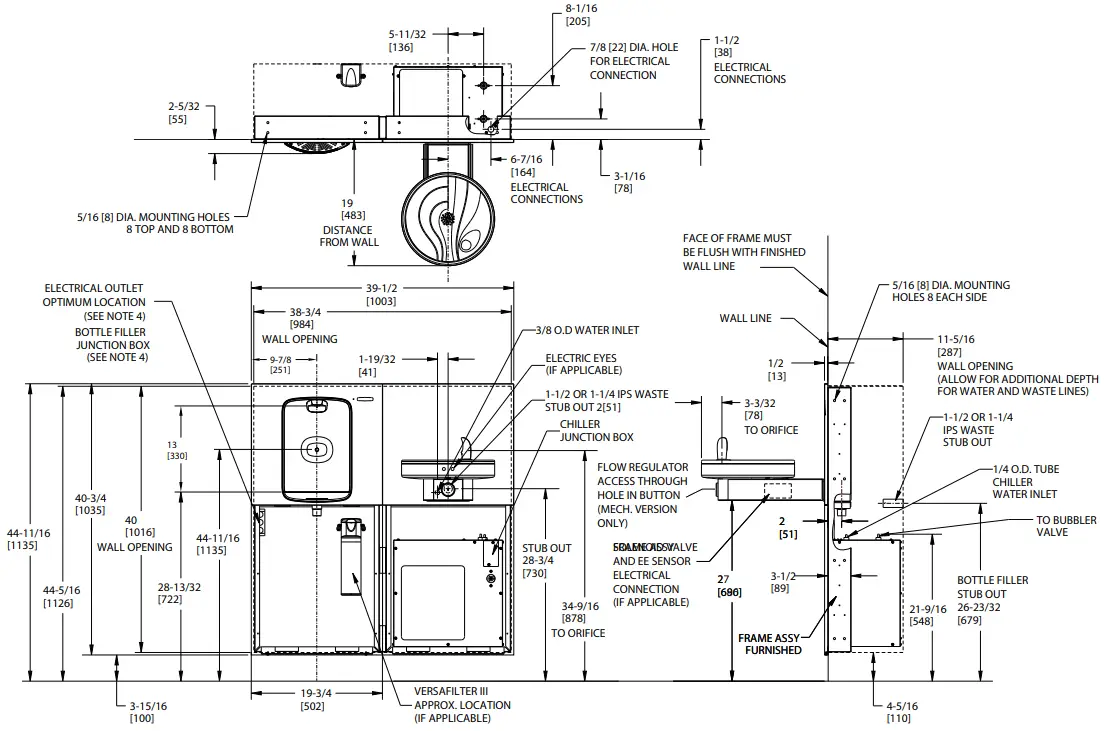
- RECOMMENDED ADULT HEIGHT INTALLATION SHOWN. ADJUST VERTICAL DIMENSIONS AS REQUIRED T OCOMPLY WITH FEDERAL, STATE AND LOCAL CODES.
- STOP VALVE, TRAP, PIPE CONNECTOR TO WASTE LINE NOT PROVIDED. SHORT RADIUS TRAP REQUIRED.
- ALL DIMENSIONS ARE IN INCHES. DIMENSIONS IN [ ] ARE IN MILLIMETERS.
- 115V GROUNDED NORTH AMERICAN DUPLEX REEPTACLE REQUIRED. THIS DRINKING WATER COOLER IS INTENDED TO BE CONNECTED TO A 20A MINIMUM GROUND FAULT CIRCUIT INTERRUPTING (GFCI) DEVICE TO MEET UL REQUIREMENTS.
OASIS AQUA POINTE® ELECTRONIC BOTTLE FILLER MODELS MEBF, M8EBF, M12EBF, MEBFEE, M8EBFEE, M12EBFEE

NOTES:
- RECOMMENDED ADULT HEIGHT INSTALLATION SHOWN. ADJUST VERTICAL DIMENSIONS AS REQUIRED TO COMPLY WITH FEDERAL, STATE AND LOCAL CODES.
- STOP VALVE, TRAP, PIPE CONNECTOR TO WASTE LINE NOT PROVIDED. SHORT RADIUS TRAP REQUIRED.
- ALL DIMENSIONS ARE IN INCHES. DIMENSIONS IN [ ] ARE IN MILLIMETERS.
- 115V GROUNDED NORTH AMERICAN DUPLEX RECEPTACLE REQUIRED. THIS DRINKING WATER COOLER IS INTENDED TO BE CONNECTED TO A 20A MINIMUM GROUND FAULT CIRCUIT INTERRUPTING (GFCI) DEVICE TO MEET UL REQUIREMENTS.
- FILTER INSTALLATION LOCATIONS WILL VARY BY MODEL.
OASIS AQUA POINTE® SURFACE MOUNT ELECTRONIC BOTTLE FILLER MODELS MWSMEBF, MWSM8EBF, MWSM12EBF

NOTES:
- RECOMMENDED ADULT HEIGHT INSTALLATION SHOWN. ADJUST VERTICAL DIMENSIONS AS REQUIRED TO COMPLY WITH FEDERAL, STATE AND LOCAL CODES.
- STOP VALVE, TRAP, PIPE CONNECTOR TO WASTE LINE NOT PROVIDED. SHORT RADIUS TRAP REQUIRED.
- ALL DIMENSIONS ARE IN INCHES. DIMENSIONS IN [ ] ARE IN MILLIMETERS.
- 115V GROUNDED NORTH AMERICAN DUPLEX RECEPTACLE REQUIRED. THIS DRINKING WATER COOLER IS INTENDED TO BE CONNECTED TO A 20A MINIMUM GROUND FAULT CIRCUIT INTERRUPTING (GFCI) DEVICE TO MEET UL REQUIREMENTS.
- CHILLER, IF APPLICABLE, MUST BE ADEQUATELY SUPPORTED BY SOMETHING OTHER THAN THE FRAME.
- FILTER INSTALLATION LOCATIONS WILL VARY BY MODEL.
SECTION 1: BOTTLE FILLER ASSEMBLY WITH CHILLER OVERVIEW

SECTION 2: INSTALLATION
STEP 1: INSTALL MOUNTING FRAME
- A. Install Frame per rough-in drawing. Note: If applicable, refer to trim bezel installation instructions on page 11 before continuing with step 1B.
- B. Place drip tray in frame but do NOT fasten in place. Do NOT place grille on tray until last step (Section 6).
- C. Install snap bushings.
STEP 2: MWEBF (WITHOUT CHILLER ONLY)
- A. Install provided ball valve and 3/8” O.D. copper tube to building water supply.
- B. Install tubing as shown before mounting the panel assembly
- C. Uncoil EBF push button wire lead and route through same opening in frame as the tubing.
- D. Install upper panel assembly (screws provided)
- E. Install lower louver panel using supplied locks or screws.
- F. Install drip tray grille using 3 flathead screws, provided.
SECTION 3: MW8EBF, MW12EBF (CONNECTING THE CHILLER)
- A. Attach cradle to frame per rough-in drawing. (Screws Provided – 4)
- B. Place chiller in frame.
- C. Install 1/4” union fittings on chiller inlet and outlet.
- D. Connect water line from bottle filler solenoid valve out to chiller water in. Connect chiller water out to bottle filler delivery fitting. Note: squeeze ends of tubes back to round shape as needed after cutting.

SECTION 4: M8EBF/M12EBF CHILLER AND FOUNTAIN CONNECTIONS
- A. Install Chiller in Frame.
- B. Install 1/4” Union on Chiller inlet.
- C. Connect 1/4” Union Tee to Chiller Outlet.
- D. Determine tube length needed to connect bottle filler solenoid “in” to chiller tee. (Use line with attached ball valve) Cut 1/4” O.D. tube and connect to branch of tee. Squeeze tube end back to round shape as needed before connecting.
- E. Attach remaining tubing from ball valve to chiller inlet.

- A. Remove reducer fitting and copper tube from fountain water line. Install provided 1/4” union.
- B. Determine length of tube needed to connect bottle filler solenoid “out” to bottle filler delivery fitting. Cut off excess.
Squeeze tube end back to round shape as needed. - C. Use excess tube to connect fountain to chiller tee.
SECTION 5: TRIM BEZEL INSTALLATION (FOR SURFACE MOUNT MODELS)
- A. Install frame assembly to a flat surface. Use appropriate fastening hardware (not included). Refer to rough-in for correct installation height.
- B. Remove Bottom Plate from Trim Bezel (4 screws)
- C. Install Trim Bezel around the Frame Assembly and replace Bottom Plate with screws.
- D. Place drip tray in frame but do NOT fasten in place. Do NOT place grille on tray at this time. Install Snap Bushing and any other accessories included.
SECTION 6: PANEL INSTALLATION
- A. Uncoil EBF push button wire lead and route through same opening opening in frame as the tubing.
- B. Install Upper and Lower Front Panel. Install drip tray grille using 3 flathead screws, provided.

SECTION 6: Electrical Connections
- A. A 2 x 4 junction box is provided for the installation of 115V receptacle. This unit is intended to be connected to a ground fault circuit interrupting (GFCI) device to meet UL requirements. It is recommended that a flexible conduit be used to supply power to the junction box and chiller if used. Check the electric current available. Type and voltage must be the same as listed on the product data plate.
- B. As you put the bottle filler panel assembly in place on the frame assembly, feed the long green ground wire and the terminals on the power supply cord through the bushings in the frame assembly.
- C. Attach the long green ground wire to the frame assembly junction box ground then plug in the bottle filler power cord.
SECTION 7: SET-UP GUIDE FOR BOTTLE FILLER ELECTRONICS
Factory Default Program Settings Are:
- a. Units – Gallons
- b. Unfiltered Unit
- c. Filter Capacity = 4750 gal (18000L) for a VersaFilter III
- d. Bottle Count = 0.5L (1 Bottle)
- e. Flow Rate = 1.0GPM
- f. 20 sec. Maximum Dispense Time
For Hands-Free Aqua Pointe Models: Remove lower front panel (if applicable) or lift out lower edge of upper panel to reach remote push button.
| Display | Action |
| 000000000 BOTTLES REUSED (Home Screen) | Depress button for 3 seconds to enter into the following menu settings and make changes. Note: at any time it will exit menu and save settings when idle for 10 seconds (no button press) and revert back to Home Screen. |
| LTR/GAL GAL[LTR] | Depress button 3 seconds to change from Gallons to Liters, or momentarily press to advance to the next menu. |
| UNFILT/FILT? UNFILTERED UNIT [FILTERED UNIT] | Depress button 3 seconds to change from Unfiltered to Filtered unit, or momentarily press to advance to next menu. |
| SELECT RATE 1.0 GPM UNIT [3.8 LPM UNI] | To change flow rate, momentarily depress button to change whole gallon digit. Hold button 3 seconds to advance to TENTHS of gallon digit. Depress momentarily to change the digit. Hold button 3 seconds to advance to the next menu. |
| SELECT RATE 1.0 GPM UNIT [3.8 LPM UNIT] | To change flow rate, momentarily depress button to change whole gallon digit. Hold button 3 seconds to advance to TENTHS of a gallon digit. Depress momentarily to change the digit. Hold button 3 seconds to advance to next menu. |
| RESET 0000000000 GALLON COUNT? [LTR COUNT?] | Depress button for 3 seconds to reset Gallon or Liter count, or momentarily press to advance to next menu. |
| FILT CAPAC OF 4750 GAL [18000 LTR] | Depress button for 3 seconds to change filter capacity to 1250 GAL [5000 LTR] for VersaFilter I. Depress button for 3 seconds to change filter capacity to 3000 GAL [11000 LTR] for VersaFilter II |
| 3 SEC RULE? 3 sec [0.5L] | Depress button for 3 seconds to switch from 3 sec rule to 0.5L bottle, or momentarily press to advance to next menu. |
| RESET 000000000 BOT COUNT? | Depress button for 3 seconds to switch from 3 sec rule to 0.5L bottle, or momentarily press to advance to next menu. (The 3 sec rule increases the bottle count based on a 3 second dispense. |
| BOT FILLER SET TIME: 20 S | Depress button for 3 seconds to change maximum dispense time to 10, 20 or 30 seconds, or momentary press to advance to next menu. |
| RUN CAL AGAIN? | Depress button 3 seconds to run calibration again, or momentarily press to advance to next menu. |
SECTION 8: PARTS BREAKDOWN

SECTION 10: PARTS BREAKDOWN
| ITEM | DESC. | PART # | QTY |
| 1 | BUSHING, SNAP 2.5” | 027189-012 | 2 |
| 2 | GRILLE, DRIPTRAY | 042374-001 | 1 |
| 3 | SCREW, FLAT HD TAPPING | 026675-003 | 3 |
| 4 | ASM, VHB ALCOVE | 041405-001 | 1 |
| 5 | ASM, VHB PCB BRACKET | 041405-002 | 1 |
| 6 | ASM, VHB IR BRACKET | 041405-003 | 1 |
| 7 | BUTTON ASSY – EBF | 042067-001 | 1 |
| 8 | COVER, FRONT | 042370-001 | 1 |
| 9 | ASSY, LED – EBF | 042068-001 | 1 |
| 10 | PANEL, EBF UPPER OASIS | 041374-101 | 1 |
| 11 | PANEL, MWSBF LOWER LOUVER | 027697-005 | 1 |
| 12 | LOCK ASSY | 031657-006 | 2 |
| 13 | POWER SUPPLY, 12VDC | 038036-003 | 1 |
| 14 | PCB, IR SENSOR | 042065-001 | 1 |
| 15 | LENS, PWEBF LCD | 042575-001 | 1 |
| 16 | SPOUT | 042369-001 | 1 |
| 17 | LEAD WIRE ASSY 10FR (BLACK) | 017340-512 | 1 |
| 18 | LEAD WIRE ASSY 10FR (RED) | 021929-129 | 1 |
| 19 | SOLENOID VALVE 12VDC | 038030-002 | 1 |
| 20 | FTG, PP REDUCING UNION | 028668-101 | 1 |
| 21 | ADAPTER, FLOW NOZZLE | 038029-001 | 1 |
| 22 | FLOW NOZZLE ASSY | 038032-001 | 1 |
| 23 | LENS, IR BOTTLE FILLER | 038027-001 | 1 |
| 24 | LEAD WIRE ASSY 16GG (GREEN) | 021339-177 | 1 |
| 25 | LEAD WIRE ASSY 24GG (GREEN) | 021339-149 | 1 |
| 26 | DRIPTRAY, SURFM | 042372-001 | 1 |
| 27 | ANGLE, CRADLE MTG | 026210 | 2 |
Customer Service
Modular Series
Electronic Bottle Fillers
OASIS INTERNATIONAL
222 East Campus View Blvd.
Columbus, OH 43235
www.oasiscoolers.com
1-800-646-2747






















