PWFEBF Versa Filler Sports Bottle Filler
Installation Guide
PWFEBF Versa Filler Sports Bottle Filler
Models:
- PWEBF
- PWFEBF with Versa Filter III
The Hands-Free Versa Filler is an extension of the Aqua Pointe® product line that mounts directly above Versa cooler® I and II products. If the cooler outlet does not have two useable plugs, an outlet splitter will need to be used.
If installed onto a refrigerated cooler, chilled water can be dispensed through the Versa Filler. Otherwise, room temperature water will be dispensed.
The Versa Filler is shipped partially assembled.
On the combo units, the cooler is plumbed and ready to attach to the Versa Filler.
When completed, the finished assembly will look like this:

Getting Started
What’s Included:
Tools required:
- 3/8” pilot drill and either a step drill bit up to 7/8” diameter that will drill through SS top or 7/8” diameter punch die (retrofit version only)
- Electric drill; wrench for punch die
- Small tubing cutter for copper tube
- 1/4“ nut driver
- # 2 Phillips screw driver
- #15 torn bit driver
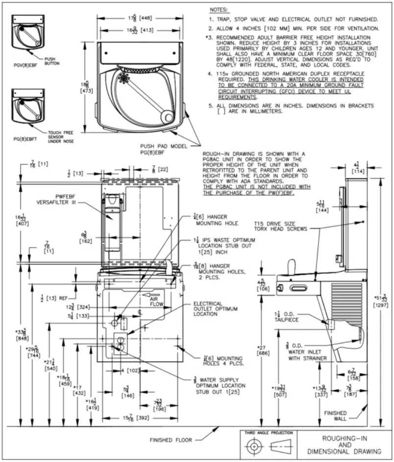
Rough In Drawing
Oasis PWEBF & PWFEBF: Versa cooler® II Models PGAC, PG8AC, PGVAC, PGV8AC, PGACT, PG8ACT with Hands-Free Versa Filler
Oasis PWEBF & PWFEBF: Versacooler® II Split Level Models with Hands-Free VersaFiller

- On split level models, the VersaFiller must be mounted on the low unit in order to meet ADA guidelines.
Installation
Note: Proceed to Sect 3B Step 5 “Final steps for both product families” if the cooler is purchased “VersaFiller ready”.
A: Drilling hole in the top for water line connection.
- Disconnect power by UNPLUGGING unit. It might be necessary to remove the front panel to get access to the power.
- Turn OFF water supply to the unit. It might be necessary to remove the front panel to access the water stop valve.
- Place hole template onto cooler top so it is aligned with the left side of unit and wall. SEE NEXT PAGE FOR TEMPLATE
- Mark hole location
- Remove top from unit.
Remove top from cooler by removing six, #15 torx head screws on sides of top.
- Using a step drill bit or 7/8” punch die, make a 7/8” hole through top. You may want to drill a pilot hole to get these started.
- Install snap bushing into hole to protect tubing from being cut.


USE THIS TEMPLATE TO MARK THE HOLE LOCATION ON COOLER TOP
Versa cooler to Bottle Filler Plumbing Diagram
Two Versa coolers to Bottle Filler Plumbing Diagram
B: Connecting the water line
Note: If you are retrofitting the VersaFiller to an existing cooler, follow the instructions starting on page 11.
For the single “Versafiller ready” cooler, the tube to connect to the Versafiller is found inside the access panel (the compressor compartment) or found inside the Bottle Filler. This tube supplies cold water from the cooling tank to the VersaFiller.

For split level “Versafiller ready” coolers, the tube to plumb in the Versafiller is packaged in the dummy unit or found inside the Bottle Filler.

The tee and tube to the Versafiller are packaged with the PWEBF unit. One branch of the tee will supply the valve on the dummy unit, the other branch of the tee will connect to the Versafiller.
If a filter is being installed, cut a piece of tubing about 3” long to insert (optional) flow switch right after filter and before tee. This allows Versafiller counter to accurately calculate amount of water passing through filter.

Go to Step 5 “Final steps for both product families:”
To retrofit the Versafiller to an existing unit, follow the instructions below:
If the cooling tank is non-pressurized, then go to the “Pressurizing the cooling tank” addendum section. Otherwise, proceed to step 1 below.
Non-pressurized units are single units made since December of 2009.
Refer to the schematic below to identify the system that you have.
![]() | ![]() |
- With the cooler top removed, find the tube going from the cooling tank outlet to the valve. The TEE fitting (supplied) will need to connect between the cooling tank and valve.
For the P8AC Version: Versa cooler II - Disconnect tubing from the elbow on the valve.

- Using the 38” piece of tubing provided, cut 6” and install it on the end of the TEE. Install the remaining tubing onto the branch of the TEE. Connect the other end of the TEE to the tank outlet tubing (tube that was disconnected from the elbow).

- Route the TEE and tubing under the waste drain and connect the 6” length to the water valve elbow.

Go to Step 5 “Final steps for both product families:”
For the P8AM Version: Versa cooler I
- Remove tar tape from the insulation on the outlet tube.
Remove tar tape
- Pull back insulation and cut the copper tube with a tubing cutter. Cut where there is at least 1 inch of straight tubing on each side of the cut.

- Install TEE fitting by connecting the copper tubing to each end. Then install the 32” piece of plastic tubing to the TEE branch.

- Feed black and blue tubing up through bushing in top.
• For single unit, also feed white tube attached to tee through bushing.
• For split level, connect tee and white tube packed with bottle filler per schematic below.
Attach top to cooler. If flow switch was installed, cord from flow switch must also pass through this bushing.

Mounting the frame to the wall
- Place rubber gasket on top of the cooler so it is centered left/right and against the wall.
- Set the wall frame onto the gasket. Center it left/right and push it against the wall and mark hole locations for wall fasteners. The gasket will set the frame at the proper height.

- Secure frame to the wall with fasteners (not provided). Pull plastic tubing up through the hole in the frame.
Installing and Flushing Filter Cartridge (PWFEBF only)
- Insert filter cartridge, rotate ¼ turn until locked.
- Route water supply plastic tube attached to filter head inlet (left side) through hole in fame and top. Connect to fountain water supply.
- Route filter outlet tube attached filter head outlet (right side) to fountain drain in top. Flush filter cartridge before connecting to fountain cooling tank inlet fitting.

- Slide sponge tubing insulation over water line. Connect the tubing to the INLET of the solenoid on the back of the Hands-free VersaFiller assembly and (optional) flow switch connector into port on circuit board.
Attaching the Tether - Install bottle filler tether with the steps below.
The tether keeps the bottle filler secured to the frame when changing the filter. Make sure the tether is installed properly to avoid accidental damage to the unit.
- Before the Bottle Filler cabinet is set into place, feed the terminals on the power supply power cord and the long green ground wire through the bushing on the cooler top.
- Connect male terminals on the bottle filler power supply to female terminals on power cord. Make sure that the power cord is firmly connected to the power supply.
- Attach the long green ground wire to cooler power cord ground located on cooler frame or to electrical box ground.
- MAKE SURE the cabinet fits into the groove in the rubber gasket on both sides and front of the wrapper.
See next page to secure Bottle Filler assembly to frame with torn screws.
- Attach Bottle Filler assembly to the frame using two (2) torn screws. If you are going to change the electronics default settings, remove the Top Cap and two (2) torx screws.
- Plug bottle filler cord into the electrical outlet. The program should be set up specific for that installation. See the program guide on next page. Access programing Pushbutton through top of Bottle Filler.
- Turn ON water supply and check for leaks. Place a container in the alcove to release any trapped air from the system. Plug in the power cord and replace the front panel.
- If everything works correctly, place the Top Cap back on the Bottle Filler and the two (2) torn screws to fasten it in place. Otherwise, Calibrate the sensor per the instructions on the next page.
INSTALLATION COMPLETE
Factory default program settings are:
- Units – Gallons
- Unfiltered unit
- Flow Meter = Rate Selected
- Filter Capacity = 1250 gallons [4731 liters] for a Versa Filter
- Bottle Count = 0.5L (1 Bottle)
- Flow Rate = 1.2 GPM
- 20 second maximum dispense time

To change the program settings, follow these steps:
| Display | Action |
| 000000000 BOTTLES REUSED (Home Screen) | Depress button for 3 seconds to enter into the following menu settings and make changes. Note: at anytime it will exit menu and save settings when idle for 10 seconds (no button press) and revert back to Home Screen. |
| LTR/GAL GAL | Depress button 3 seconds to change from Gallons to Liters, or momentary press to advance to next menu. |
| UNFILT/FILT? UNFI LT UNIT | Depress button 3 seconds to change from Unfiltered to Filtered unit, or momentary press to advance to next menu. |
| FLOW METER? RATE SELECTED | Depress button 3 seconds to change from Rate Selected to (Flow) Meter Enabled, or momentary press to advance to next menu. Not included on all models. |
| SELECT RATE 1.2 GPM UNIT | To change flow rate, momentarily depress button to change whole gallon digit. Hold button 3 seconds to advance to TENTHS of gallon digit. Depress momentarily to change the digit. Hold button 3 seconds to advance to the next menu. |
| RESET 00000000 GALLON CNT [LTR COUNT] | Depress button for 3 seconds to reset Gallon or Liter count, or momentary press to advance to next menu. |
| FL LT CAPAC OF 1250 GAL [4731 LTR] | Depress button for 3 seconds to change filter capacity to 3000 GAL [11355 liters] for Galaxy green filter, or Repeat this step to program for 4750 [18050 liters] gallons for Versa filter III or momentary press to advance to next menu. |
| 3 sec rule? 0.5L | Depress button for 3 seconds to switch from 0.5L bottle to 3 sec rule, or momentary press to advance to next menu. (The 3 Sec rule increases the bottle count based on a 3 second dispense.) |
| Reset 00000000 BOT COUNT? | Depress button for 3 seconds to reset (Home Screen) BOTTLES REUSED count, or momentary press to advance to next menu. |
| Bot Filler Set time: 20 s | Depress button for 3 seconds to change maximum dispense time to 10, 20 or 30 seconds, or momentary press to advance to next menu. |
| RUN CAL AGAIN? | Depress button 3 seconds to run calibration again, or momentary press to advance to next menu. |
Addendum Section: Pressurizing Cooling Tank
The water should already be turned OFF and the power disconnected.

STEP 1
Unplug un-insulated water line from water valve inlet (quick-connect elbow located left side of water valve facing the front of the cooler). Set tubing aside (careful to not contaminate water contact end).

STEP 2
Unplug tubing from quick-connect elbow leading to cooling tank inlet.

STEP 3
Plug un-insulated tubing that was removed in step 1 into quick-connect elbow leading to the cooling tank from step 2.

STEP 4
Unplug tubing that is connected to the water valve outlet (quickconnect elbow located on the right side of valve facing the cooler).
STEP 5
Connect tubing from step 4 to quick-connect elbow on the left side of the valve.

Step 6
Unplug quick-connect tubing from the cooling tank outlet. Do not set it down.

Step 7
Using tubing removed in step 6, plug into quick-connect elbow on the right side of the valve. (be sure to route the tubing under existing tubing installed in step 4 as shown)

Step 8
Using tubing that is connected to the quick-connect elbow left side of valve (done in step 4), and plug the other end into the quick-connect fitting at the top of the cooling tank.
Return to Section 3 B “Connecting the water line”
Parts Breakdown

| ITEM | QTY | P/N | Description |
| 1 | 1 | 036687-003 | FRAME |
| 2 | 1 | 036686-001 | CAP, PWSBF |
| 3 | 2 | 031875-003 | SCREW, TRUSS HD TAPPING TORX |
| 4 | 1 | 038026-002 | ELECTRONICS ASSY, IR/LCD |
| 5 | 1 | 038027-001 | LENS, IR BOTTLE FILLER |
| 6 | 4 | 026824-026 | NUT, HEX NYLON |
| 7 | 1 | 038030-002 | SOLENOID VALVE 12VDC |
| 8 | 1 | 030152-009 | TUBE, PE WHITE 7.5″ |
| 9 | 1 | 028668-101 | FTG, PP REDUCING UNION |
| 10 | 1 | 038032-001 | FLOW NOZZLE |
| 11 | 1 | 031434-014 | NAMEPLATE, OASIS |
| 12 | 1 | 036190-003 | ALCOVE, EBF |
| 13 | 1 | 036691-007 | WRAPPER, PWEBF |
| 14 | 2 | 031875-003 | SCREW, TRUSS HD TAPPING TORX |
| 15 | 1 | 038031-005 | LABEL, LCD BEZEL |
| 16 | 1 | 038031-007 | LABEL, PANEL EBF |
| 17 | 1 | 038031-006 | LABEL, ALCOVE SENSOR |
| 18 | 1 | 029199-103 | FTG, PP UNION TEE WHITE |
| 19 | 1 | 028481-101 | FTG, PP UNION ELBOW WHITE |
| 20 | 1 | 027189-008 | BUSHING, SNAP |
| 21 | 1 | 027189-001 | BUSHING, SNAP |
| 22 | 1 | 036191-002 | DRAIN, MSBF, SHORT |
| 23 | 1 | 036689-001 | GASKET, PWSBF |
| 24 | 1 | 038168-001 | CORD ASSY, DC POWER SUPPLY |
| 25 | 1 | 038036-003 | POWER SUPPLY,100-240VAC/12VDC |
| 26 | 2 | 036049-002 | SCREW, OVAL HD PLASTITE |
| 27 | 1 | 036695-001 | TRAY, GRILLE DRIP |
| 28 | 1 | 036688-001 | TRAY, DRIP PWSBF |
| 29 | 1 | 036697-001 | CAP, DRIP TRAY BOTTOM |
| 30 | 2 | 026642-023 | SCREW, HEX HD TAPPING #8 |
| 31 | 1 | 036701-001 | DRIP TRAY ASSEMBLY |
| 32 | 1 | 030152-046-SP | TUBE, PE WHITE 38″ |
| 33 | 1 | 017681-035-SP | NSULATION, SPONGE TUBE 32″ |
| 34 | 1 | 041146-001 | HEAD ASSY, SINGLE STAGE MANIFOLD |
| 35 | 2 | 026642-004 | SCREW, HEX HD TAPPING |
| 36 | 1 | 029994-103 | FTG, PP ELBOW, PLUG IN WHITE |
| 37 | 1 | 030152-014-SP | TUBE, PE WHITE 48″ |
| 38 | 1 | 041145-001 | FILTER CARTRIDGE, VERSAFILTER III |
| 39 | 1 | 030152-046-SP | TUBE, PE WHITE 38″ |
| 40 | 1 | 041410-002 | FRAME ASSEMBLY |
Accessories:
Vandal resistant screw kit: P/N 036704-001, includes torx bits and replacement screws.
Gasket, Sunroc/Haws : P/N 036689-101: (replaces item 2) KIT P/N 036752-001
Gasket Adapter Elkay/Halsey Taylor P/N 041114-001
P/N 030099-570 Rev. G Date: 10/2022
© 2022 LVD Acquisition, LLC
Oasis, Aqua Pointe, Versa cooler and VersaFiller are registered trademarks of
LVD Acquisition, LLC dba Oasis International
Haws is a registered trademark of HAWS Corporation.
Elkay and Halsey Taylor are registered trademarks owned or licensed by Elkay Sales Inc. and/or its parent Elkay Manufacturing Company
OASIS INTERNATIONAL
222 East Campus View Blvd.
Columbus, OH 43235
614-861-1350
www.oasiscoolers.com




For the P8AC Version: Versa cooler II






Attaching the Tether
The tether keeps the bottle filler secured to the frame when changing the filter. Make sure the tether is installed properly to avoid accidental damage to the unit.
See next page to secure Bottle Filler assembly to frame with torn screws.



















