OASIS PWEBF Drinking Fountain VersaFiller Combo
Introduction
The Hands-Free VersaFiller is an extension of the Aqua Pointe®product line that mounts directly above Versacooler® I and II products.
If installed onto a refrigerated cooler, chilled water can be dispensed through the VersaFiller. Otherwise, room temperature water will be dispensed.
The VersaFiller is shipped partially assembled.
On the combo units, the cooler is plumbed and ready to attach to the VersaFiller.
When completed, the finished assembly will look like this:
Section 1: Getting Started
What’s Included:
- VersaFiller Hands-Free Bottle Filler
- 38” of ¼ OD plastic tubing with 38” of sponge tubing insulation

- Snap bushings 7/8” and 1½”

- Quick connect tee fitting

- Quick connect elbow fitting

- VersaFilter III (Model PWFEBF only)

- Installation instructions

Tools required:
- 3/8” pilot drill and either a step drill bit up to 7/8” diameter that will drill through SS top or 7/8” diameter punch die (retrofit version only)
- Electric drill; wrench for punch die
- Small tubing cutter for copper tube
- 1/4“ nut driver
- # 2 Phillips screwdriver
- #15 torx bit driver
Section 2A: IMPORTANT REQUIREMENT
CAUTION: ENSURE BOTTLE FILLER IS PROPERLY GROUNDED. IT IS REQUIRED TO ATTACH THE LONG GREEN GROUND WIRE TO THE FRAME ASSEMBLY. REFER TO THE STEPS DESCRIBED ON STEPS 3-5 ON PAGE 20.
Section 2B: LED Indicator Key

| LED Color | Display | Condition | Action |
| Green | “BOTTLES SAVED” | Standby mode – filter life <80% used. | No action needed. |
| Yellow | “BOTTLES SAVED” | Standby mode – filter life >80% used but <100%. | Order new filter. |
| Red | “BOTTLES SAVED” | Standby mode – filter life =100% used. | Replace the filter. |
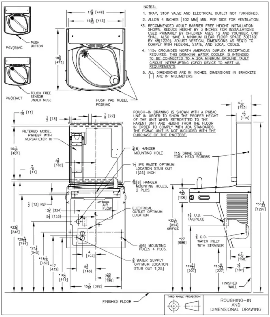
Section 3: Rough In Drawing
Oasis PWEBF & PWFEBF: Versacooler® II Models PGAC, PG8AC, PGVAC, PGV8AC, PGACT, PG8ACT with Hands-Free VersaFiller
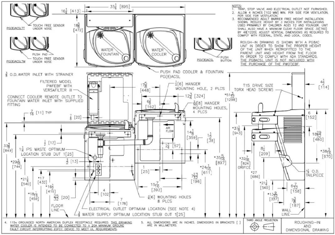
Oasis PWEBF & PWFEBF: Versacooler® II Split Level Modelswith Hands-Free VersaFiller
On split level models, the VersaFiller must be mounted on the low unit in order to meet ADA guidelines.
Section 4A: Installation
Note: Proceed to Sect 3B Step 5 “Final steps for both product families” if the cooler is purchased “VersaFiller ready”.
A: Drilling hole in the top for water line connection.
- Disconnect power by UNPLUGGING unit. It might be necessary to remove the front panel to get access to the power.
- Turn OFF water supply to the unit. It might be necessary to remove the front panel to access the water stop valve.
- Place hole template onto cooler top so it is aligned with the left side of unit and wall. SEE NEXT PAGE FOR TEMPLATE4. Mark hole location
- Remove top from unit.

Remove top from cooler by removing six, #15 torx head screws on sides of top.
- Using a step drill bit or 7/8” punch die, make a 7/8” hole through top. You may want to drill a pilot hole to get these started.
- Install snap bushing into hole to protect tubing from being cut.



USE THIS TEMPLATE TO MARK THE HOLE LOCATION ON COOLER TOP
Versacooler to Bottle Filler Plumbing Diagram
Two Versacoolers to Bottle Filler Plumbing Diagram
Section 4B: Installation
B: Connecting the water line
Note: If you are retrofitting the Versafiller to an existing cooler, follow the instructions starting on page 11.
For the single “Versafiller ready” cooler, the tube to connect to the Versafilleris found inside the access panel (the compressor compartment) or found inside the Bottle Filler. This tube supplies cold water from the cooling tank to the Versafiller.
For split level “Versafiller ready” coolers, the tube to plumb in the Versafiller is packaged in the dummy unit or found inside the Bottle Filler.
Remove tube from bag.
First, remove plug from fitting on tank drain
Next, insert end of tube into fitting.
The tee and tube to the Versafiller are packaged with the PWEBF unit. One branch of the tee will supply the valve on the dummy unit, the other branch of the tee will connect to the Versafiller.
If a filter is being installed, cut a piece of tubing about 3” long to insert (optional) flow switch right after filter and before tee. This allows Versafiller counter to accurately calculate amount of water passing through filter.


Go to Step 5 “Final steps for both product families:”
To retrofit the Versafiller to an existing unit, follow the instructions below:
If the cooling tank is non-pressurized, then go to the “Pressurizing the cooling tank” addendum section. Otherwise, proceed to step 1 below. Non-pressurized units are single units made since December of 2009. Refer to the schematic below to identify the system that you have.
- With the cooler top removed, find the tube going from the cooling tank outlet to the valve. The TEE fitting (supplied) will need to connect between the cooling tank and valve.

Section 4B: Installation: For the P8AC Version: Versacooler II - Disconnect tubing from the elbow on the valve.

- Using the 38” piece of tubing provided, cut 6” and install it on the end of the TEE. Install the remaining tubing onto the branch of the TEE. Connect the other end of the TEE to the tank outlet tubing (tube that was disconnected from the elbow).

- Route the TEE and tubing under the waste drain and connect the 6” length to the water valve elbow.

Section 4B: Installation: For the P8AM Version: Versacooler I - Remove tar tape from the insulation on the outlet tube.

- Pull back insulation and cut the copper tube with a tubing cutter. Cut where there is at least 1 inch of straight tubing on each side of the cut.

- Install TEE fitting by connecting the copper tubing to each end. Then install the 32” piece of plastic tubing to the TEE branch.

Section 4B: Installation: Final steps for both product families: - Feed black and blue tubing up through bushing in top.
• For single unit, also feed white tube attached to tee through bushing.
• For split level, connect tee and white tube packed with bottle filler per schematic below.
Attach top to cooler. If flow switch was installed, cord from flow switch must also pass through this bushing.

Section 4C: Installation
C: Mounting the frame to the wall
- Place rubber gasket on top of the cooler so it is centered left/right and against the wall.
- Set the wall frame onto the gasket. Center it left/right and push it against the wall and mark hole locations for wall fasteners. The gasket will set the frame at the proper height.

- Secure frame to the wall with fasteners (not provided). Pull plastic tubing up through the hole in the frame.
Section 4D: Installation
D: Installing and Flushing Filter Cartridge (PWFEBF only)
- Insert filter cartridge, rotate ¼ turn until locked.
- Route water supply plastic tube attached to filter head inlet (left side) through hole in fame and top. Connect to fountain water supply.
- Route filter outlet tube attached filter head outlet (right side) to fountain drain in top. Flush filter cartridge before connecting to fountain cooling tank inlet fitting.4. Turn ON the water supply and flush the filter for one-minute or until the water runs clear.
- Connect the filter outlet tube to cooling tank inlet.

Section 4E: Installation
- Slide sponge tubing insulation over water line. Connect the tubing to the INLET of the solenoid valve elbow fitting on the back of the Hands-free VersaFiller assembly.

E: Attaching the Tether - Install bottle filler tether with the steps below.





The tether keeps the bottle filler secured to the frame when changing the filter. Make sure the tether is installed properly to avoid accidental damage to the unit.
- Before the Bottle Filler cabinet is set into place, feed the terminals on the power supply power cord and the long green ground wire through the bushing on the cooler top.
- Connect male terminals on the bottle filler power supply to female terminals on power cord. Make sure that the power cord is firmly connected to the power supply.
- Attach the long green ground wire to cooler power cord ground located on cooler frame or to electrical box ground.
- MAKE SURE the cabinet fits into the groove in the rubber gasket on both sides and front of the wrapper.

See next page to secure Bottle Filler assembly to frame with torx screws. - Attach Bottle Filler assembly to the frame using two (2) torx screws. If you are going to change the electronics default settings, remove the Top Cap and two (2) torx screws.
- Plug bottle filler cord into the electrical outlet. The program should be set up specific for that installation. See the program guide on next page. Access programing Pushbutton through top of Bottle Filler.
- Turn ON water supply and check for leaks. Place a container in the alcove to release any trapped air from the system. Plug in the power cord and replace the front panel.
- If everything works correctly, place the Top Cap back on the Bottle Filler and the two (2) torx screws to fasten it in place. Otherwise, calibrate the sensor per the instructions on the next page.
INSTALLATION COMPLETE
Section 5: Set-up guide for bottle filler electronics
Factory default program settings are:
- a. Units – Gallons
- b. Unfiltered unit
- c. Flow Rate = 1.0 GPMD
- d. Filter Capacity = 4750 gallons [18000 liters] for VersaFilter III

- e. Bottle Count = 0.5L (1 Bottle)f. 20 second maximum dispense time
To change the program settings, follow these steps:
| Display | Action |
| 000000000 BOTTLES REUSED (Home Screen) | Depress button for 3 seconds to enter into the following menu settings and make changes. Note: at anytime it will exit menu and save settings when idle for 10 seconds (no button press) and revert back to Home Screen. |
| LTR/GAL GAL[LTR] | Depress button 3 seconds to change from Gallons to Liters, or momentary press to advance to next menu. |
| UNFILT/FILT? UNFILTERED UNIT [FILTERED UNIT] | Depress button 3 seconds to change from Unfiltered to Filtered unit, or momentary press to advance to next menu. |
| SELECT RATE 1.0 GPMD UNIT [3.8 LPM UNIT] | To change flow rate, momentarily depress button to change whole gallon digit. Hold button 3 seconds to advance to TENTHS of gallon digit. Depress momentarily to change the digit. Hold button 3 seconds to advance to the next menu. |
| RESET 00000000 GALLON COUNT? [LTR COUNT?] | Depress button for 3 seconds to reset water usage count, or momentary press to advance to next menu. |
| FILT CAPAC OF 4750 GAL [18000 LTR] | Depress button for 3 seconds to change filter capacity to 1250 GAL [5000 LTR] for VersaFilter I. Depress button for 3 seconds to change filter capacity to 3000 GAL [11000 LTR] for VersaFilter II. Depress button for 3 seconds to change filter capacity to 4750 GAL [18000 LTR] for VersaFilter III. or momentary press to advance to next menu. |
| 3 sec rule ? 3 sec [0.5L] | Depress button for 3 seconds to switch from 3 sec rule to 0.5L bottle, or momentary press to advance to next menu. (The 3 Sec rule increases the bottle count based on a 3 second dispense.) |
| RESET 00000000 BOT COUNT? | Depress button for 3 seconds to reset BOTTLES REUSED count to zero (Home Screen), or momentary press to advance to next menu. |
| Bot Filler Set time: 20 s | Depress button for 3 seconds to change maximum dispense time to 10, 20 or 30 seconds, or momentary press to advance to next menu. |
Addendum Section: Pressurizing Cooling Tank
The water should already be turned OFF and the power disconnected.
Unit as it appears with top removed
- STEP 1 Unplug un-insulated water line from water valve inlet (quick-connect elbow located left side of water valve facing the front of the cooler). Set tubing aside (careful to not contaminate water contact end).

- STEP 2 Unplug tubing from quick-connect elbow leading to cooling tank inlet.

- STEP 3 Plug un-insulated tubing that was removed in step 1 into quick connect elbow leading to the cooling tank from step 2.

- STEP 4 Unplug tubing that is connected to the water valve outlet (quick connect elbow located on the right side of valve facing the cooler).

- STEP 5 Connect tubing from step 4 to quick-connect elbow on the left side of the valve.

- Step 6 Unplug quick-connect tubing from the cooling tank outlet.
Do not set it down.
- Step 7 Using tubing removed in step 6, plug into quick-connect elbow on the right side of the valve. (be sure to route the tubing under existing tubing installed in step 4 as shown)

- Step 8 Using tubing that is connected to the quick-connect elbow left side of valve (done in step 4), and plug the other end into the quick-connect fitting at the top of the cooling tank.

Return to Section 3 B “Connecting the water line
Section 6: Parts Breakdown

| ITEM | QTY | P/N | Description |
| 1 | 1 | 036687-003 | FRAME |
| 2 | 2 | 026642-006 | SCREW, HEX HD TAPPING #8 X 1/2″ |
| 3 | 1 | 042371-001 | DRIPTRAY, RETRO |
| 4 | 2 | 031875-003 | SCREW, TRUSS HD TAPPING TORX |
| 5 | 1 | 036691-012 | WRAPPER, PWEBF STN LOGO |
| 6 | 1 | 042370-001 | COVER, FRONT |
| 7 | 1 | 036689-001 | GASKET, PWSBF |
| 8 | 1 | 042374-001 | GRILLE, DRIPTRAY |
| 9 | 3 | 026675-003 | SCREW, FLAT HD TAPPING #8 X 3/8″ |
| 10 | 1 | 041405-001-SP | VHB ALCOVE ASSEMBLY |
| 11 | 2 | 026642-003 | SCREW, HEX HD TAPPING #8 X 3/8″ |
| 12 | 1 | 042369-001 | SPOUT |
| 13 | 1 | 038032-001 | FLOW NOZZLE ASSEMBLY |
| 14 | 1 | 038029-001 | ADAPTER, FLOW NOZZLE |
| 15 | 1 | 026642-006 | SCREW, HEX HD TAPPING #8 X 1/2″ |
| 16 | 1 | 029962-103 | FITTING, REDUCING ELBOW |
| 17 | 1 | 017340-512 | LEAD WIRE ASSY 10FR |
| 18 | 1 | 021929-129 | LEAD WIRE ASSY 10FR |
| 19 | 2 | 026642-004 | SCREW, HEX HD TAPPING #8 X 3/8″ |
| 20 | 1 | 036686-001 | CAP, PWSBF |
| 21 | 2 | 031875-003 | SCREW, TRUSS HD TAPPING TORX |
| 22 | 1 | 042576-001 | BRACKET, PWEBF ELECTRONICS |
| 23 | 1 | 029994-103 | FITTING, ELBOW PLUG IN |
| 24 | 1 | 038030-002 | SOLENOID VALVE 12VDC |
| 25 | 2 | 026642-004 | SCREW, HEX HD TAPPING #8 X 3/8″ |
| 26 | 1 | 038168-001 | CORD ASSEMBLY, DC POWER SUPPLY |
| 27 | 1 | 038036-003 | POWER SUPPLY,100-240VAC/12VDC |
| 28 | 2 | 026642-004 | SCREW, HEX HD TAPPING #8 X 3/8″ |
| ITEM | QTY | P/N | Description |
| 29 | 2 | 032839-004 | P-CLIP, 5/8″ |
| 30 | 1 | 030152-034-SP | TUBE, PE WHITE 17″ |
| 31 | 1 | 017681-004-SP | INSULATION, SPONGE TUBE 16″ |
| 32 | 1 | 041405-002-SP | VHB PCB BRACKET ASSEMBLY |
| 33 | 1 | 042575-001 | LENS, LCD |
| 34 | 1 | 038915-103 | MYLAR A POLYESTER FILM 1.50″ X 4.25″ |
| 35 | 1 | 042064-002 | PCB, MAIN |
| 36 | 1 | 026630-004 | SCREW, PAN HD TAPPING #6 X 3/8″ |
| 37 | 1 | 042068-001 | LED ASSEMBLY |
| 38 | 1 | 042067-001 | BUTTON ASSEMBLY |
| 39 | 1 | 042066-001 | 5-PIN WIRE, IR SENSOR |
| 40 | 1 | 038915-102 | MYLAR A POLYESTER FILM 2.0″ X 4.0″ |
| 41 | 1 | 038916-101 | MYLAR POLYESTER TAPE, 1.25″LG |
| 42 | 1 | 038027-001 | LENS, IR BOTTLE FILLER |
| 43 | 1 | 042065-001 | PCB, IR SENSOR |
| 44 | 2 | 028706-046 | SPACER – NON METAL |
| 45 | 2 | 016377-004 | WASHER, METAL |
| 46 | 2 | 026630-004 | SCREW, PAN HD TAPPING #6 X 3/8″ |
| 47 | 1 | 021339-102 | LEAD WIRE ASSY 6GG |
| 48 | 1 | 021339-214 | LEAD WIRE ASSY 42GG |
| 49 | 1 | 041405-003-SP | VHB IR BRACKET ASSEMBLY |
| 50 | 1 | 032459P008 | LANYARD, BOTTLE FILLER |
| 51 | 1 | 029199-103 | FITTING, UNION TEE WHITE |
| 52 | 1 | 028481-101 | FITTING, UNION ELBOW WHITE |
| 53 | 1 | 027189-008 | SNAP BUSHING, 7/8 |
| 54 | 1 | 027189-001 | SNAP BUSHING, 1-1/2 |
| 55 | 1 | 030152-034-SP | TUBE, PE WHITE 38″ |
| 56 | 1 | 017681-013-SP | INSULATION, SPONGE TUBE 38″ |
| PWFEBF Only | |||
| 57 | 1 | 041410-002 | FRAME ASSEMBLY, FILTER |
| 58 | 1 | 041146-001 | FILTER HEAD ASSEMBLY, SINGLE STAGE |
| 59 | 2 | 026642-004 | SCREW, HEX HD TAPPING #8 X 3/8″ |
| 60 | 2 | 029994-103 | FITTING, ELBOW PLUG IN |
| 61 | 1 | 041145-001 | FILTER CARTRIDGE, VERSAFILTER III |
| 62 | 2 | 030152-034-SP | TUBE, PE WHITE 38″ |
Accessories:
Vandal resistant screw kit: P/N 036704-001, includes torx bits and replacement screws.
Gasket Adapter Elkay/Halsey Taylor P/N 041114-001
P/N 030099-680, Rev. A, Date: 12/2022
© 2022 LVD Acquisition, LLC
Oasis, Aqua Pointe, Versacooler and VersaFiller are registered trademarks of
LVD Acquisition, LLC dba Oasis International
Haws is a registered trademark of HAWS Corporation.
Elkay and Halsey Taylor are registered trademarks owned or licensed by Elkay
Sales Inc. and/or its parent Elkay Manufacturing Company
Customer Service
OASIS INTERNATIONAL
222 East Campus View Blvd.
Columbus, OH 43235
614-861-1350
www.oasiscoolers.com
























































