ELKAY LZ8WSSSMC Refrigerated Surface Mount Bottle Filling Station

General Information
Installation Manual
Read all instructions carefully BEFORE starting the installation and familiarize yourself with the various parts of this product.
This manual contains step-by-step installation, adjustment, and maintenance instructions for the EZ8WS and LZ8WS series bottle filling stations. Followed carefully, these instructions will result in trouble-free installation of this Elkay Manufacturing Company (Elkay) product.
Any deviations, additions, and/or deletions from the described methods, without prior written approval of Elkay, will void the warranty covering this product.
Make sure the installation and use of this product meets all local, state, and federal plumbing and electrical codes.
Save these instructions for future reference
![]()
To avoid product or property damage, personal injury, or even possible death, carefully read, understand, and follow all the instructions in this Installation & Use Manual before installing his product.
Improper installation of this product could cause a dangerous situation that results in injury or death.
Do not operate power tools unless you read and understand the instructions and warnings in this and all other applicable labels or manuals. Proper use of tools and the products described in this guide is your responsibility.
Failure to follow these instructions could result in personal injuries, water damage, and other damage to floors, pipes, walls, and other portions of your building or home.
Disclaimer
The information contained in this Installation & Use Manual is given free of charge. It is based upon technical data which we believe to be reliable and is intended for use by persons having knowledge of this technical area at their own discretion and risk. Elkay assumes no responsibility for results obtained or damage incurred from the use of this material either in whole or in part by the buyer.
Serial Number Location
Please use the serial number located on the underside of the water cooler when contacting us with questions concerning the installation of this product.

Contact Information
General Information
Elkay Manufacturing Company
1333 Butterfield Road, Suite 200
Downers Grove, IL 60515
Phone: 630.574.8484
Email: [email protected]
Website: http://www.elkay.com
USA/Canada Customer Care
Phone: 800.476.4106
Email: [email protected]
International Customer Care
Phone: 630.575.4755
Email: [email protected]
Installation Services
Phone: 800.952.8064
Email: [email protected]
Website: http://www.elkay.com/contact-us/install
Notice of Changes
he information, specifications, and illustrations in this manual are based on the information that was available at the time this material was written and can change at any time. In keeping with our policy of continuing product improvement, Elkay reserves the right to change specification without notice.
All dimensions are given in inches (“) and millimeters (mm).
Warranty
This product is covered by a Limited Warranty and Elkay will not be held responsible for damage of any kind in connection with the installation of the product.
Refer to the Elkay website http://www.elkay.com/ warranty and click on drinking water products, ‘Warranty for Drinking Water Products’ article under the Info and Maintenance section (form 96993C).
Safety

General
The Elkay Manufacturing Company (Elkay) cannot anticipate every possible circumstance that might involve a potential hazard during the installation or maintenance of this product. The warnings and instructions in this Installation Manual are, therefore, not all-inclusive. If a tool, installation procedure, or work method that is not specifically recommended by Elkay is used, you must be satisfied that it is safe for yourself and others. You should also make sure that the product will not be damaged by the methods you choose.
Most work related accidents are caused by failure to observe basic safety rules or precautions. An accident can often be avoided by recognizing potentially hazardous situations before an accident occurs. As you install and maintain this product, you must be alert to potential hazards. You should also have the necessary training, skills, and tools to perform any installation or maintenance procedure.
Safety Alert Symbol
This is the safety alert symbol. It is used toalert you to potential personal injury hazards. Obey all safety messages that follow this symbol to avoid possible injury or death.
This manual contains WARNINGS, CAUTIONS, NOTICES, SAFETY INSTRUCTIONS, and NOTES which vmust be followed to prevent the possibility of improper service, damage to the equipment, personal injury, or death. The following key words call the reader’s attention to potential hazards.
Hazards are identified by the “Safety Alert Symbol” and followed by a signal word such as “WARNING” or “CAUTION”.
Personal Safety
![]()
These warnings indicate a potentially hazardous situation which, if not avoided, could result in serious injury or death. Follow all instructions related to the installation and/or maintenance of this product (unit).
Personal Protection
Be sure to use all personal protective equipment, such as sturdy safety glasses, work shoes, hearing protection, and gloves, whenever necessary, to ensure your own safety.
To avoid eye injury, always wear protective glasses with side shields when using power tools. Also, make sure no one else can be injured by flying particles when using power tools.
To prevent possible damage to your hearing, always wear ear protection, such as earmuffs or earplugs, when using power tools.
This product is heavy and can cause bodily injury, due to its weight or if the unit is dropped. Use two people to lift the product when unpacking the unit or installing it onto the hanger brackets.
Wear protective gloves during installation to protect against sharp edges from sheet metal components.
Lifting Hazard
To avoid personal injury, always usethese proper lifting techniques and use two people to move heavy cartons.- Use appropriate lifting devices to move the load.
- Always use two people when lifting heavy or bulky cartons. DO NOT attempt to lift objects that are too heavy.
Power Tool Hazard
To prevent personal injury or possible death, always follow the electrical safety recommendations of the power tool’s manufacturer.
- Do not use power tools in an unsafe manner.
- Power tools should only be connected to a circuit protected by a ground-fault circuit interrupter (GFCI).
- If an extension cord is required, always use an OSHA approved extension cord.
Shock and Electrocution Hazards
Failure to follow these instructions could result in severe burns, significant injuries, and even death.
Water will conduct electric current to create a short circuit, resulting in injury or death.
- Never use electric power tools around water or wet floors/surfaces.
- Keep all liquids away from electrical cords and power tools.
- If an extension cord is required, always use an OSHA approved cord.
- DO NOT create a short circuit between a source of electricity and a liquid by being in contact with both simultaneously
Contacting live electrical wiring with power tools or hand tools can cause serious injury or death.
- Make sure all related circuit breakers are turned OFF.
- Test for live circuits or wiring inside any wall where installation of the product requires cutting into a wall.
Prior to any maintenance, make sure the unit is unplugged and circuit breakers are turned OFF.
Prior to installation, test for live circuits or wiring inside the wall before cutting or drilling into the wall.
![]()
These cautions indicates a potentially hazardous situation which, if not avoided, may result in minor or moderate injury. Follow all instructions related to installation and/or maintenance of this product.
Tripping Hazard
Personal injury can result from tripping over power cords, tools, or other installation items. DO NOT leave items laying around the work area.
Cutting Hazard
The installation of this product may require using power tools.
Keep hands away from the cutting edge of any tool used in the installation of our product.
Placing fingers in or around the cutting blades could result in serious personal injury.
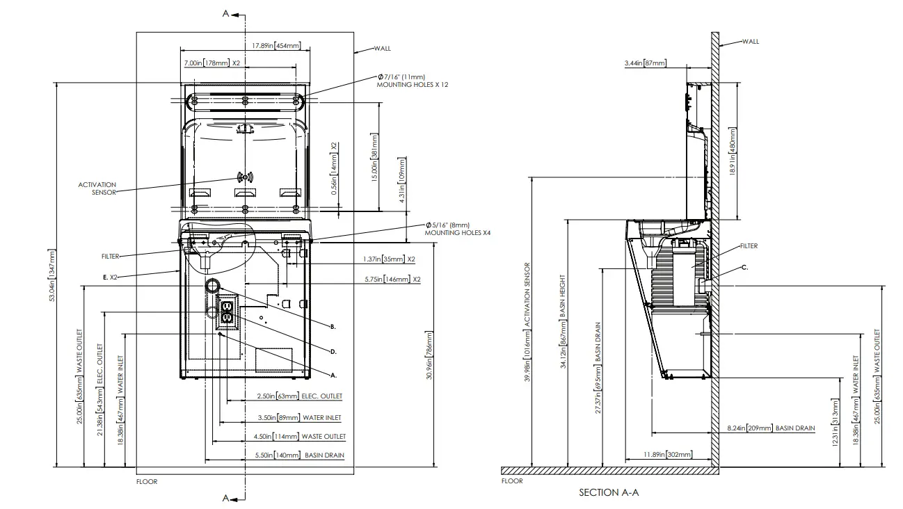
LEGEND
A. RECOMMENDED WATER SUPPLY LOCATION. SHUT-OFF VALVE (NOT FURNISHED) TO ACCEPT 3/8″ O.D. UNPLATED COPPER TUBE. UP TO 3″ (76mm) MAXIMUM OUT FROM WALL.
B. RECOMMENDED WASTE OUTLET LOCATION. TO ACCOMODATE 1-1/4″ NOMINAL DRAIN. DRAIN STUB 2″ (51mm) OUT FROM WALL.
C. 1-1/4″ TRAP. (NOT FURNISHED)
D. ELECTRICAL SUPPLY (3) WIRE RECESSED BOX DUPLEX OUTLET.
E. INSURE PROPER VENTILATION BY MAINTAINING 6″ (152mm) MINIMUM CLEARANCE FROM CABINET LOUVERS TO WALL.
F. 7/16″ (11mm) BOLT HOLES FOR FASTENING TO WALL.

Use Proper Tools
Always use proper tools which are in good working condition during the installation of the product. Using tools other than those listed could adversely affect the product and could result in property damage.
Property Damage
Inspect Before Cutting
Make sure no electrical wiring or plumbing is present before cutting into a wall.
Tools and Supplies
Tools Required
| Tool | Used For |
| Tape Measure | Locating mounting brackets |
| Level | Mounting bracket installation |
| Power Drill | Installation of wall anchors or lag screws for mounting plate |
| Adjustable Pliers | Installation of P-trap |
| Adjustable Wrench | Installation of water inlet valve |
| Hacksaw | Trimming waste outlet pipe |
| Flat Blade Screwdriver | Adjustment of pressure regulator and coldness control valve |
| 5/16” Nut Driver | Removal of mounting bracket and front panel |
| 5/32 Allen Wrench | Removal of bottle filler front cover |
| Tubing Cutters | To trim excess poly tube |
Installer-Supplied Parts
| Description | Qty. |
| 7/16” Wall anchors or lag screws (depending on mounting wall surface) | 13 |
| 1/4” Flat washers | 14 |
| P-trap with 1-1/4” inlet (single units) | 1 |
| Quarter turn shut-off valve with angled 3/8” outlet (filtered units) | 1 |
| Flexible 3/8” tubing and 3/8” tube union fittings (filtered units) | — |
| 1-1/4″ flexible drain pipe | 1 |
Preparation
General Information
- This water cooler is designed for indoor use only and should not be installed outdoors or in a humid environment.
NOTICE A water supply pressure below 20 psi will result in decreased water flow through the unit and damage to the product. A pressure above 105 psi will also cause damage to the product. - Make sure the water supply pressure to the product is between 20 and 105 psi. The LZ filtered units require 40 psi minimum water pressure.
- Use care when opening and removing the packaging to prevent damage to the product.
a. Inspect the product for any shipping damage and report it immediately to the location of purchase. Installation of a damaged product will void the warranty.
b. Confirm that all parts have been included for the proper installation of this product. Contact the location of purchase if damaged parts are found.
NOTICE Make sure no electrical wiring, potable water inlet pipes, or drain water outlet pipes will be damaged during installation of the product. Damage to any of these items can cause electrical damage, fire, and/or water damage. - Shut off the water supply source and disconnect power to the electrical outlet being used to operate the product before starting installation.
NOTICE Mounting hardware to be supplied by customer.
Water, Waste, and Electrical Locations
This section contains general information for the required utilities for the cooler. Use the Location Drawing in each section to determine the exact location of the utilities.
- Install water supply in accordance with local plumbing codes.
a. Use at least 3/8” O.D. unplated copper tube for supply line.
b. Pipe should extend 3” (76mm) maximum from wall.
c. Install a quarter-turn, installer supplied, shut-off valve.
NOTICE Connect shut-off valve to water inlet. Do not use a piercing-type saddle valve for supply water which will reduces Vwater flow and clogs easier.
Note: This water cooler has been designed and built to provide water to the user which has not been altered by materials in the cooler waterways.
The grounding of electrical equipment such as telephones, computers, etc. to water lines is a common procedure. The grounding may be in the building but may also occur away from the building.
This grounding can cause electrical feedback into a water cooler creating an electrolysis, which creates a metallic taste of causes an increase in the metal content of the water.
NOTICE Water cooler must be connected to the water supply using a dielectric coupling. The cooler is furnished with a non-metallic strainer which meets this requirement. The drain trap which is provided by the installer should also be plastic to completely isolate the cooler from the building plumbing system. - Install a waste water drain.
a. Waste outlet must be minimum 1-1/4” O.D. for single units.
b. Pipe should extend 2” (50mm) from wall - Install a grounded, three-prong electrical outlet on a dedicated circuit.
a. 115 Volt, 60 Hz AC.
b. Install a dedicated 20A fused circuit.
c. Ground-fault circuit interrupter (GFCI) may be required. For optimal performance a 20 amp hospital grade GFCI protection device is suggested
To prevent electrical shock, fire, or electrocution, install a grounded three-prong outlet. Do not modify supplied power cord. Do not use an adapter or extension cord.
SAFETY INSTRUCTIONS To ensure proper electrical safety, the electrical supply circuit should have GFCI protection and AFCI protection, as required by federal and local electrical safety codes and standards.
Installation of Cooler
Mounting Instructions.
- Remove the front cover by removing the two 5/16″ hex screws on the bottom side of the cooler.

- Remove the hanger bracket.

- Install the hanger bracket with five screws in 7/16″ diameter mounting holes.
Note: Hanger bracket MUST be supported securely. Add fixture support carrier if wall will not provide adequate support.
- Hang unit onto the hanger bracket.

- Install the two mounting screws to attach cooler to the wall.

- Connect the unit water line to shut-off valve.
Note: Shut-off valve not shown (installer supplied part).
Installation of Bottle Filler
- Remove the two (2) mounting screws securing the top cover to the bottle filler with 5/32″ Allen wrench. Remove the top cover.
Note: Do not discard the mounting screws, they will be needed to reinstall the top cover.
- Remove the wall mounting plate.

- Place mounting plate against wall on top of the basin. Center the mounting plate side to side with the basin. Mark the six (6) mounting holes with a pencil.

- Install the wall mounting plate to the wall using six (6) 7/16″ screws through the mounting holes. Use appropriate fasteners for your wall type.
Note: To prevent scratching the basin, place a towel or soft cloth over the entire basin.
- Set bottle filler onto the basin. Feed the power cord and 3/8″ water line through hole in the basin.
- Feed the power cord and water line through hole on top of the water cooler.
- Attach the bottle filler to the three (3) angled tabs on the mounting plate.
- Tilt top of the bottle filler towards the mounting plate.

- Slide the bottle filler down to nest in place. Rib on the basin should be behind the bottle filler alcove.
- Reinstall the top cover on the bottle filler.

- Connect the bottle filler water line inside the water cooler.

- Connect all drain and water supply fittings.
- Turn on water supply.
Note: If installing a filtered unit, continue to section 7. If installing non-filtered unit, skip to section 8.
Installation of Filter (LZ Only)
Install the filter cartridge
- Remove the filter from the carton.
- Remove the protective cap.
- Mark the current date on the water filter label.
- Attach the filter to the filter head with label facing outward by firmly inserting into the head and by rotating the filter head clockwise, if required.
Note: Filter label should be readable from the front of the filter during installation.
Startup
- Make sure that there are no leaks on the drain connections and installed as per local regulations.
- Plug-in the water cooler and the bottle filler.
- Once power is applied to the bottle filler, the GREEN LED light should illuminate showing good filter status (if equipped with filter) along with the LCD Bottle Counter.
- Verify proper dispensing by placing cup or any object in front of sensor area and verify water dispenses.
Note: The first initial dispenses might have air in line which may cause a sputter. This will be eliminated once all air is purged from the line. - Check all the lines and connections for water leaks. Repair connections if necessary.
- Dispense at least two gallons of water to bleed off any trapped air from supply lines and fine carbon particles from the filter. If there are no leaks and unit is functioning correctly, re-install the front cover by installing the two 5/16″ hex screws on the bottom side of the cooler.
- Upon initial startup, the plastic bottles saved indicator panel should show several bottles saved due to the water used to initially start up of the unit.
GREEN: 0 – 80% of Filter Life or 0 – 11 Months.
YELLOW: 80 – 100% of Filter Life or 11 – 12 Months (Whichever Comes First).
RED: 100% Plus of Filter Life or 12 Months (Whichever Comes First).
Changing the Factory Default Settings (Not Required for Installation)
- Remove the bottle filler top cover by removing the two screws using a 5/32” Allen wrench. Do not discard the screws, they are required for re-assembly.
- Locate the programming button at the top right side of the unit on the control board.
- Depress the program button for approximately two seconds until the display changes, then release.
- The display will scroll through two messages.
a. RST FLTR – Reset Filter Monitor (filtered units only).
b. SETTINGS – System Setting Sub Menu. Depress the program button when the display reads SETTINGS. The display will scroll through four messages:
• RNG SET – Range set for IR sensor. Default is 3.
• UNIT TYP – Type of unit. Default is refrigerated.
• FLT SIZE – Select filter capacity. Default is 3000 GAL.
• RST BCNT – Reset bottle count (filtered units only). - Push the button while the desired message is displayed. If the program button is not pushed, the messages will cycle three times before resetting back to run mode.
Reset the Filter Monitor (Filtered Unit Only)
- Depress the program button when the display reads RST FLTR.
- Depress the program button when the display reads FLTR = and the display will change to FLTR = 0.
- The green LED on the bottle filler panel should now be illuminated indicating that the filter monitor has been reset.
Change the Range Of The IR Sensor
- Depress the program button when the display reads RNG SET.
- The display will show the default RNG = 3. 1-10 is the range, 1 is closest to the sensor, 10 is farthest away.
- Depress the button again to change the value. When the desired range is selected, wait four seconds for the unit to default back to run mode.
- Test the bottle filler by placing a hand or a bottle in front of the sensor.
Change the Unit Type
- Depress the program button when the display reads UNIT TYP.
- The display will show the default REFRIG.
- Depress button to change to refrigerated if NONREFRIG is displayed.
- When the desired range is selected, wait four seconds for the unit to default back to run mode
- Test the bottle filler by placing a hand or a bottle in front of the sensor.
Change Filter Capacity (Filtered Unit Only)
- Depress the program button when the display reads FLT SIZE.
- The display will show the default 3000GAL.
- Depress the button again to change the value to 6000GAL.
- When the desired range is selected, wait four seconds for the unit to default back to run mode.
Resetting the Bottle Count
- Depress the program button when the display reads RST BCNT.
- The display will show the current value, e.g. 0033183.
- Depress the button again to change the value to 0. The display will show BTLCT = 0 for approximately 2 seconds and return to run mode showing 0000000 on the display board.
Note: Once the bottle count is reset to 0, there is no way to return to the previous count. - Test the bottle filler by placing a hand or a bottle in front of the sensor and dispense product until the bottle count changes to 1.
































