Installation & Use Manual
ezH2O® In Wall Bottle Filling Station
LZWSM8* LZWSMD* LZWSM8P* LZWSMDP*
EZWSM8* EZWSMD* EZWSM8P* EZWSMDP*
Installer
To assure you install this model easily and correctly, PLEASE READ THESE SIMPLE INSTRUCTIONS BEFORE STARTING THE INSTALLATION. CHECK YOUR INSTALLATION FOR COMPLIANCE WITH PLUMBING, ELECTRICAL AND OTHER APPLICABLE CODES. After installation, leave these instructions inside the
fountain for future reference.
IMPORTANT
ALL SERVICE TO BE PERFORMED BY AN AUTHORIZED SERVICE PERSON
IMPORTANT! INSTALLER PLEASE NOTE.
THE GROUNDING OF ELECTRICAL EQUIPMENT SUCH AS TELEPHONE, COMPUTERS, ETC. TO WATER LINES IS A COMMON PROCEDURE. THIS GROUNDING MAY BE IN THE BUILDING OR MAY OCCUR AWAY FROM THE BUILDING. THIS GROUNDING CAN CAUSE ELECTRICAL FEEDBACK INTO A FOUNTAIN, CREATING AN ELECTROLYSIS WHICH CAUSES A METALLIC TASTE OR AN INCREASE IN THE METAL CONTENT OF THE WATER. THIS CONDITION IS AVOIDABLE BY USING THE PROPER MATERIALS AS INDICATED. ANY DRAIN FITTINGS PROVIDED BY THE INSTALLER SHOULD BE MADE OF PLASTIC TO ELECTRICALLY ISOLATE THE FOUNTAIN FROM THE BUILDING PLUMBING SYSTEM. WE SUGGEST THAT THE BOTTLE FILLER BE PROTECTED BY A GROUND FAULT CIRCUIT INTERRUPTER (GFCI)

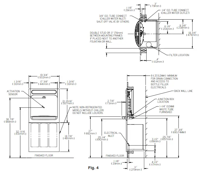
LZWSM8*, LZWSMD* EZWSM8*, EZWSMD* ROUGH-IN

LZWSM8P*, LZWSMDP* EZWSM8P*, EZWSMDP* ROUGH-IN

INSTALLATION INSTRUCTIONS
- Install mounting frame and chiller shelf. See mounting frame instructions.
- Mount the upper BF panel to the mounting frame: Mount upper panel by aligning holes in the hinge brackets with holes in the mounting frame (three places). Mount with adequate size screws (not provided). Close the door and verify that the lock brackets on the side and bottom of the panel align with the slots on the mounting frame. Also verify that the panel is hanging high enough that it covers the top of the mounting frame.
- Mount the lower Chiller panel to the mounting frame: Mount the lower panel by aligning holes in the hinge brackets with holes in the mounting frame (three places). Mount with adequate size screws (not provided). Close the door and verify that the lock brackets on the side of the panel align with the slots on the mounting frame. If adjustments need to be made, open the doors to make adjustments. Open panels for adjustments. Loosen the (4) screws on the hinges of each panel and adjust accordingly and then re-tighten screws. Close and Lock the top panel in place using two set screws (provided) on the side of the panel, and a ¼ x 20 bolt through the front of the panel into the nut in the frame.
- Attach drain: Attach the drain fittings to drain tube. Attach elbow to p-trap and cut waste tube to required length using plumbing hardware and trap as a guide.
- Install remote chiller: See chiller instructions. Remove protective caps from water lines on chiller.
EWF3000 WATERSENTRY PLUS FILTER INSTALLATION (Fig. 5): (Filter units only. For non-filtered units proceed to step 15)
NOTICE: Do not use water that is microbiologically unsafe or of unknown quality without adequate disinfection before or after the system.
CAUTION: If supply pressure will ever exceed 100 psi, install a pressure regulator set to 100 psi or below.
DO NOT ATTACH HOT WATER LINE TO FILTER HEAD.
Filter kits must be installed in compliance with all state and local laws and regulations governing the installation and use of this product.
Maximum inlet water temperature: 100°F (38°C).
See filter instructions for filter head assembly. - Connect Filter Kit: Using the filter mounting bracket and screws supplied, mount filter head using the (3) screw holes on the side of the chiller.
Allow enough room under the filter head for the installation and removal of the filter cartridge (13” minimum). To make tube connections on the filter head, loosen locknut. Push the tube end past both O-rings to a positive stop in the filter head recess – approx. 1″. Screw the locknut hand tight to seal (See Fig. 5). Ends of tubing must be cut square and free of burrs and sharp ends that could cut or nick the O-rings. - Connect filter water outlet: Connect the outlet of the filter head to the inlet of the chiller using the ¼” O.D. poly tubing and ¼” elbow union supplied.
- Place Chiller on Shelf: When mounting unit in a cavity or behind a wall maintain a minimum space of 4” (102mm) on top, sides and a depth of 12” (305mm).
- Connect bottle filter line: Connect water line from BF station by inserting the ¼” O.D. poly tubing into union on the chiller outlet.
- Remove Chiller Front panel: Remove the (10) screws securing chiller front panel.
- Connect electrical to chiller: Make sure power supply is identical in voltage, cycle and phase to that specified on cooler serial plate. Never wire Compressor directly to the power supply. While chiller panel is off, adjust cold control if needed.
- Replace chiller panel: Using the (10) screws re-secure the panel.
- Plug bottle filler into wall box receptacle.
- Install a shut-off valve: Install a shut-off valve and union connection to building water supply (valve and union not provided). Connect 3/8” shut-off valve to 3/8” copper tubing inlet of filter head.
- Install filter cartridge: remove filter from carton, remove protective cap, and attach filter to filter head by firmly inserting into head and rotating filter clockwise.
- Go to step 18.
EWF3000 WATERSENTRY STRAINER INSTALLATION (Fig. 5): - For non-filtered units: Install a shut-off valve and union connection to building water supply (valve and union not provided). Turn on the water supply and flush the line thoroughly. Turn off water supply. Install the in-line strainer between the valve and the chiller. The in-line strainer is not installed on filtered units.
- Connect water supply line: Connect 3/8” shut-off valve to 3/8” copper tubing to inlet of strainer. Connect water line from BF station by inserting the ¼” O.D. poly tubing into union on the chiller outlet. Turn on water supply and check for leaks.
- Place Chiller on Shelf: When mounting unit in a cavity or behind a wall maintain a minimum space of 4” (102mm) on top, sides and a depth of 12” (305mm).
- Remove Chiller Front panel:Remove the (10) screws securing chiller front panel.
- Connect electrical to chiller: Make sure power supply is identical in voltage, cycle and phase to that specified on cooler serial plate. Never wire Compressor directly to the power supply. While chiller panel is off, adjust cold control if needed. Replace chiller panel: Using the (10) screws re-secure the panel.
- Turn on water supply: Turn on the water supply, plug unit into wall (power cord not supplied on 220V models) and activate the electronic eye on in-wall bottle filler until approximately 1 gallon of water is dispensed. Be sure to reinstall fuse to the circuit or switch the circuit breaker back to the “ON” position. Once power is applied to Bottle Filler, the GREEN LED LIGHT and/or LCD Bottle Counter should illuminate, the green light showing good filter status Please. note that the electric eye activation times out at 20 seconds and will need to be activated repeatedly until 1 gallon has been passed. This flushing procedure purges air and fine carbon particles from filter and strainer. When 1 gallon of water has been purged through the bottle filler, carefully inspect all water connections for leaks.
- Verify proper dispensing by placing cup, hand, or any opaque object in front of sensor area and verify water dispenses.
- Close and lock the lower panel in place using two set screws (provided) on the side of the panel.
- Installation Complete.

BF6-BF7-BF8 PROGRAMS
SETTING THE CONTROL BOARD
VERIFY CONTROL BOARD SOFTWARE
- To verify the software program of the control board the unit will need to be shut down and restarted. The chiller (if present) does not need to be shut down and restarted.
- The units lower panel must be open to access the power cord and wall outlet.
- Shut down the unit by unplugging the power cord from the wall outlet.
- Restart the unit by plugging the power cord back into the wall outlet.
- Upon start up the bottle count display will show the software designation of BF6, BF7, BF8, BF9 or BF11.
- Reference the BF6-BF7-BF8-BF9 or BF11 instructions for setting the control board.
ACCESSING THE PROGRAMMING BUTTON
- To access the program button the lower panel of the unit must be must be opened. The programming button is located at the bottom right corner of the upper panel.
This area of the unit is concealed by the lower panel.
RESET THE FILTER MONITOR
- Instructions apply to filtered units only.
- Depress the program button for approximately 2 seconds until the display changes then release. The display will change and scroll through three messages:
“RST FLTR” – Reset Filter Status LED
“RST BCNT” – Reset Bottle Count
“RNG SET” – Range Set for IR Sensor
If the program button is not pushed again the display will scroll through the three messages above for three cycles and then default back to bottle count and be back in run mode. - When the display changes to “RST FLTR”, depress the button again. The display will change to show “FLT=”. Depress the button again and the display will show “FLTR=0”.
- The green LED should now be illuminated indicating that the visual filter monitor has been reset.
SETTING RANGE OF THE IR SENSOR
- Depress the program button for approximately 2 seconds until the display changes then release. The display will change and scroll through three messages:
“RST FLTR” – Reset Filter Status LED
“RST BCNT” – Reset Bottle Count
“RNG SET” – Range Set for IR Sensor - If the program button is not pushed again the display will scroll through the two messages above for three cycles and then default back to bottle count and be back in run mode.
- When display shows “RNG SET” push program button once the display will show current value (can be 1 – 10) e.g. “RNG = 3”.
- Once display shows current value push the program button to scroll through value of 1 – 10. Select the desired range setting.
- Once range is selected allow approximately 4 seconds to pass and then the display will go back to bottle counter and be in run mode.
- Test bottle filler by placing bottle or hand in front of sensor to make sure water is dispensed.
RESETTING BOTTLE COUNT
- Depress the program button for approximately 2 seconds until the display changes then release. The display will change and scroll through two messages:
“RST FLTR” – Reset Filter Status LED
“RST BCNT” – Reset Bottle Count
“RNG SET” – Range Set for IR Sensor
If the program button is not pushed again the display will scroll through the two messages above for three cycles and then default back to bottle count and be back in run mode. - When the display changes to “RST BCNT”, depress the button again. The display will change to show current bottle count value e.g. “00033183”.
- Depress the button again and the display will change to “BTLCT=0” for approximately 2 seconds and then return to run mode displaying 00000000.
- You can test the bottle counter by running water approximately 5 seconds to see bottle counter advance 1.
BF9 PROGRAM
SETTING THE CONTROL BOARD
VERIFY CONTROL BOARD SOFTWARE
- To verify the software program of the control board the unit will need to be shut down and restarted. The chiller (if present) does not need to be shut down and restarted.
- The units lower panel must be open to access the power cord and wall outlet.
- Shut down the unit by unplugging the power cord from the wall outlet.
- Restart the unit by plugging the power cord back into the wall outlet.
- Upon start up the bottle count display will show the software designation of BF6, BF7, BF8, BF9 or BF11.
- Reference the BF6-BF7-BF8-BF9 or BF11 instructions for setting the control board.
ACCESSING THE PROGRAMMING BUTTON
1) To access the program button the lower panel of the unit must be must be opened. The programming button is located at the bottom right corner of the upper panel. This area of the unit is concealed by the lower panel.
RESET THE FILTER MONITOR
- Instructions apply to filtered units only.
- Depress the program button for approximately 2 seconds until the display changes then release. The display will change and scroll through two messages:
“RST FLTR” – Reset Filter Monitor
“SETTINGS” – System Settings Sub Menu
If the program button is not pushed again the display will scroll through the two messages above for three cycles and then default back to bottle count and be back in run mode. - When the display changes to “RST FLTR”, depress the button again. The display will change to show “FLTR =”. Depress the button again and the display will show “FLTR =0”
- The Green LED should be illuminated indicating that the visual filter monitor has been reset.
SETTING RANGE OF THE IR SENSOR
- Depress the program button for approximately 2 seconds until the display changes then release. The display will change and scroll through two messages:
“RST FLTR” – Reset Filter Status LED
“SETTINGS” – System Settings Sub Menu
If the program button is not pushed again the display will scroll through the two messages above for three cycles and then default back to bottle count and be back in run mode. - When the display changes to “SETTINGS”, depress the button again. The display will change to show
“RNG SET“- Range set for IR sensor.
“UNIT TYP“ – Type of unit (REFRIG or NON-RFRG)
“RST BCNT“ – Reset bottle count - When display shows “RNG SET” push program button once the display will show current value (can be 1 – 10) e.g. “RNG = 3”.
- Once display shows current value push the program button to scroll through value of 1 – 10. Select the desired range setting.
- Once range is selected allow approximately 4 seconds to pass and then the display will go back to bottle counter and be in run mode.
- Test bottle filler by placing bottle or hand in front of sensor to make sure water is dispensed.
SETTING UNIT TYPE
- Depress the program button for approximately 2 seconds until the display changes then release. The display will change and scroll through two messages:
“RST FLTR” – Reset Filter Status LED
“SETTINGS” – System Settings Sub Menu
If the program button is not pushed again the display will scroll through the two messages above for three cycles and then default back to bottle count and be back in run mode. - When the display changes to “SETTINGS”, depress the button again. The display will change to show
“RNG SET“- Range set for IR sensor.
“UNIT TYP“ – Type of unit (REFRIG or NON-RFRG)
“RST BCNT“ – Reset bottle count - When display shows “UNIT TYPE” push program button once the display will show current value Can be REFRIG or NON-RFRG
- Push button once to change value. Once value is selected the display will show the new value. (Can be REFRIG or NON-RFRG)
“REFRIG“ – stands for refrigerated product. In this setting the flow rate is estimated at 1.0 gallon per minute.
“NON-RFRG“ – stands for nonrefrigerated product. In this setting the flow rate is estimated at 1.5 gallons per minute.
Both “REFRIG“ and “NON-RFRG“ simulate 1 bottle equal to 20 oz. - Allow approximately 4 seconds to pass and the display will return to bottle counter and be in run mode.
RESETTING BOTTLE COUNT
- Depress the program button for approximately 2 seconds until the display changes then release. The display will change and scroll through two messages:
“RST FLTR” – Reset Filter Status LED
“SETTINGS” – System Settings Sub Menu
If the program button is not pushed again the display will scroll through the two messages above for three cycles and then default back to bottle count and be back in run mode. - When the display changes to “SETTINGS”, depress the button again. The display will change to show
“RNG SET“- Range set for IR sensor.
“UNIT TYP“ – Type of unit (REFRIG or NON-RFRG)
“RST BCNT“ – Reset bottle count
If the button is not pushed again the display will scroll through the three messages above for the cycles and return to run mode. - When display shows “RST BCNT” push program button once the display will show current value e.g. “00033183”.
- Once display shows current value push the program button once more to reset back to 0. The display will show BTLCT = 0 for approximately 2 seconds and then return to run mode showing 00000000 bottles.
- Testing the bottle counter:
REFRIG units: Place bottle or hand in front of sensor for 9.4 seconds to see bottle counter count 00000001. (This is based on filling a 20 oz. bottle)
NON-RFRG units: Place bottle or hand in front of sensor for 6.25 seconds to see bottle counter count 00000001. (This is based on filling a 20 oz bottle)
BF11 – BF12 PROGRAM
SETTING THE CONTROL BOARD
VERIFY CONTROL BOARD SOFTWARE
- To verify the software program of the control board the unit will need to be shut down and restarted. The chiller (if present) does not need to be shut down and restarted.
- The units lower panel must be open to access the power cord and wall outlet.
- Shut down the unit by unplugging the power cord from the wall outlet or switching off the circuit breaker to the unit.
- Restart the unit by plugging the power cord back into the wall outlet or by switching on the circuit breaker to the unit.
- Upon start up, the bottle count display will show the software designation of BF11 or BF12.
ACCESSING THE PROGRAMMING BUTTON
- To access the program button, open the lower panel. Reset button is located at the lower right hand side of the top panel.
RESET THE FILTER MONITOR
- Instructions apply to filtered units only.
- Depress the program button for approximately 2 seconds until the display changes then release. The display will change and scroll through two messages:
“RST FLTR” – Reset Filter Monitor
“SETTINGS” – System Settings Sub Menu
If the program button is not pushed again the display will scroll through the two messages above for three cycles and then default back to bottle count and be back in run mode. - When the display changes to “RST FLTR”, depress the button again. The display will change to show “FLTR =”. Depress the button again and the display will show “FLTR =0”
- The Green LED should be illuminated indicating that the visual filter monitor has been reset.
SETTING RANGE OF THE IR SENSOR
- Depress the program button for approximately 2 seconds until the display changes then release. The display will change and scroll through two messages:
“RST FLTR” – Reset Filter Status LED
“SETTINGS” – System Settings Sub Menu
If the program button is not pushed again the display will scroll through the two messages above for three cycles and then default back to bottle count and be back in run mode. - When the display changes to “SETTINGS”, depress the button again. The display will change to show
“RNG SET” – Range set for IR sensor.
“UNIT TYP” – Type of unit (REFRIG or NON-RFRG)
“FLT SIZE” – Select filter capacity
“RST BCNT” – Reset bottle count - When display shows “RNG SET” push program button once the display will show current value (can be 1 – 10) e.g. “RNG = 3”.
- Once display shows current value push the program button to scroll through value of 1 – 10. Select the desired range setting, “1” being closest to sensor and “10” being farthest away.
- Once range is selected allow approximately 4 seconds to pass and then the display will go back to bottle counter and be in run mode.
- Test bottle filler by placing bottle or hand in front of sensor to make sure water is dispensed.
SETTING UNIT TYPE
- Depress the program button for approximately 2 seconds until the display changes then release. The display will change and scroll through two messages:
“RST FLTR” – Reset Filter Status LED
“SETTINGS” – System Settings Sub Menu
If the program button is not pushed again the display will scroll through the two messages above for three cycles and then default back to bottle count and be back in run mode.
Continued from below: - When the display changes to “SETTINGS”, depress the button again.
The display will change to show
“RNG SET” – Range set for IR sensor.
“UNIT TYP” – Type of unit (REFRIG or NON-RFRG)
“FLT SIZE” – Select filter capacity
“RST BCNT” – Reset bottle count - When display shows “UNIT TYPE” push program button once the display will show current value. Can be REFRIG or NON-RFRG
4) Push button once to change value. Once value is selected the display will show the new value. (Can be REFRIG or NON-RFRG)
“REFRIG“ – stands for refrigerated product. In this setting the flow rate is estimated at 1.0 gallon per minute.
“NON-RFRG“ – stands for nonrefrigerated product. In this setting the flow rate is estimated at 1.5 gallons per minute. Both “REFRIG“ and
“NON-RFRG“ simulate 1 bottle equal to 20 oz. - Allow approximately 4 seconds to pass and the display will return to bottle counter and be in run mode.
RESETTING BOTTLE COUNT
- Depress the program button for approximately 2 seconds until the display changes then release. The display will change and scroll through two messages:
“RST FLTR” – Reset Filter Status LED
“SETTINGS” – System Settings Sub Menu
If the program button is not pushed again the display will scroll through the two messages above for three cycles and then default back to bottle count and be back in run mode. - When the display changes to “SETTINGS”, depress the button again.
The display will change to show:
“RNG SET”- Range set for IR sensor.
“UNIT TYP” – Type of unit (REFRIG or NON-RFRG)
“FLT SIZE” – Select filter capacity
“RST BCNT” – Reset bottle count
If the button is not pushed again the display will scroll through the four messages above for three cycles and return to run mode. - When display shows “RST BCNT” push program button once the display will show current value, e.g. “0033183”.
- Once display shows current value push the program button once more to reset back to 0. The display will show BTLCT = 0 for approximately 2 seconds and then return to run mode showing 00000000 bottles.
NOTE: Once the bottle count is reset to zero there is no way to return to the previous bottle count. - Testing the bottle counter:
REFRIG units: Place bottle or hand in front of sensor for approximately 9 seconds to see bottle counter count 00000001, (This is based on filling a 20 oz. bottle).
NON-RFRG units: Place bottle or hand in front of sensor for approximately 6 seconds to see bottle counter count 00000001, (This is based on filling a 20 oz bottle).
SETTING FILTER CAPACITY
- Depress the program button for approximately 2 seconds until the display changes then release. The display will change and scroll through two messages:
“RST FLTR” – Reset Filter Status LED
“SETTINGS” – System Settings Sub Menu
If the program button is not pushed again the display will scroll through the two messages above for three cycles and then default back to bottle count and be back in run mode. - When the display changes to “SETTINGS”, depress the button again.
The display will change to show:
“RNG SET“- Range set for IR sensor.
“UNIT TYP“ – Type of unit (REFRIG or NON-RFRG)
“FLT SIZE” – Select filter capacity
“RST BCNT“ – Reset bottle count
If the button is not pushed again the display will scroll through the four messages above for three cycles and return to run mode. - When display shows “FLT SIZE” push program button once. The display will show current value. Can be 3000GAL or 6000GAL.
- Push program button again to display the desired “FLT SIZE”.
- Allow approximately 4 seconds to pass and the display will return to bottle counter and be in run mode.
| FILTER PARTS LIST (See Fig. 7) | ||
| ITEM NO. | PART NO. | DESCRIPTION |
| r CNI | 51300C 51469C | Filter Assy-3000 Gal. Assy-Filter & Brkt includes Fltr Head/ Mtg Brkt/John Guest Fittings/Screws |

| REPLACEMENT PART KITS | |
| PART NO. | DESCRIPTION |
| 98543C | Kit – Electrical Package |
| 98544C | Kit – EE Sensor |
| 2000000503 | Kit – Solenoid Valve Replacement |
| 98546C | Kit – Aerator Replacement |
| 98549C | Kit – Hardware & Waterway Parts |
| 98631C | Kit – Electrical Package 220V |
| 2000000502 | Kit – Solenoid Valve Replacement 220V |
| PARTS LIST | ||
| PART NO. | DESCRIPTION | |
| 1000005855 | 115V Power Cord | |
FOR PARTS, CONTACT YOUR LOCAL DISTRIBUTOR OR CALL 1.800.834.4816
PARA PIEZAS, CONTACTE A SU DISTRIBUIDOR LOCAL O LLAME AL 1.800.834.4816
POUR OBTENIR DES PIÈCES, CONTACTEZ VOTRE DISTRIBUTEUR LOCAL OU COMPOSEZ LE 1.800.834.4816
REPAIR SERVICE INFORMATION TOLL FREE NUMBER 1.800.260.6640
NÚMERO GRATIS DE SERVICIO 1.800.260.6640
INFORMATIONS POUR LE SERVICE PAR NUMERO SANS FRAIS 1.800.260.6640
ELKAY MANUFACTURING COMPANY
1333 BUTTERFIELD ROAD SUITE 200 DOWNERS GROVE, IL 60515
630.574.8484
www.elkay.com
2000000485 (Rev. A – 01/22)
PRINTED IN U.S.A.
IMPRESO EN LOS E.E.U.U.
IMPRIMÉ AUX É.-U.
EWF3000 WATERSENTRY STRAINER INSTALLATION (Fig. 5):


















