11328300-07
Installation
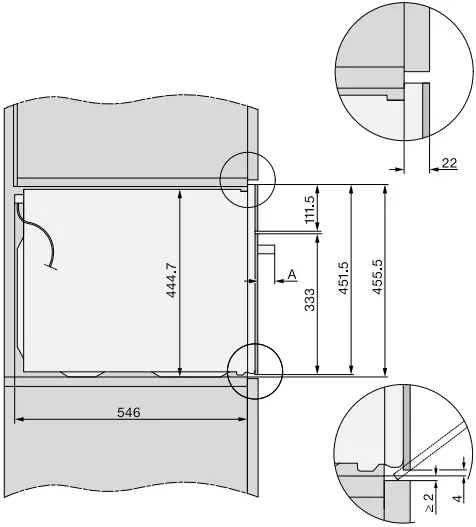
Installation dimensions
Dimensions are given in mm.
Installation in a tall or base unit
When building the oven into a base unit underneath a hob, please also observe the installation instructions for the hob as well as the building-in depth required for the hob.

Side view

A
H 71xx: 43 mm
H 72xx: 47 mm
Connections and ventilation

(1) Front view
(2) Mains connection cable, length = 2000 mm
(3) No connections permitted in this area
(4) Ventilation cut-out, min. 150 cm²
Installing the oven
- Connect the oven to the electrical supply.
- Push the oven into the housing unit and align it.

- Open the door and use the screws supplied to secure the oven to the side walls of the housing unit.
Electrical connection
All electrical work should be carried out by a suitably qualified and competent Miele approved service technician in strict accordance with current national and local safety regulations (BS 7671 in the UK).
This appliance is supplied with a mains cable for connection to a 230 V, 50 Hz single phase supply.
The voltage and connected load are given on the data plate situated at the front of the oven interior. Please ensure that these match the household mains supply.
Connection should be made via a fused connection unit or a suitable isolator, which complies with national and local safety regulations, and the on/off switch should be easily accessible after the appliance has been installed.
If the switch is not accessible after installation (depending on country) an additional means of disconnection must be provided for all poles.
Switches with a minimum all-pole contact gap of 3 mm are suitable for isolating the appliance. These include circuit breakers, fuses and protective devices.
For extra safety it is advisable to protect the appliance with a suitable residual current device (RCD). Please contact a qualified electrician for advice.
If the cable is damaged a new cable must be fitted by a Miele approved service technician.
This appliance conforms with European Standard EN 55011 as a Group 2, Class B product. Group 2 appliances use high frequency energy in the form of electro-magnetic waves to create heat in food. Class B is assigned to appliances that are suitable for domestic use.
Important UK
The wires in the mains lead are coloured in accordance with the following code:
– Green/yellow = earth
– Blue = neutral
– Brown or black = live
WARNING – THIS APPLIANCE MUST BE EARTHED
Temporary or permanent operation on an autonomous power supply system or a power supply system that is not synchronised with the mains power supply (e.g. island networks, back-up systems) is possible. A prerequisite for operation is that the power supply system complies with the specifications of EN 50160 or an equivalent standard. The function and operation of the protective measures provided in the domestic electrical installation and in this Miele product must also be maintained in isolated operation or in operation that is not synchronised with the mains power supply, or these measures must be replaced by equivalent measures in the installation. As described, for example, in the current version of BS OHSAS 18001-2 ISO 45001.


















