7870 XL 30 Inch Combi-Steam Oven
Instructions

DGC 7870 XL – Brilliant White
30” Combi-Steam Oven – PureLine and VitroLine
Features:
- Combi-Steam Ovens: Steam ovens with full fledged oven function
- Lift up panel – conveniently stores the water containers
- M-Touch Display with Motion React – Simple to use touch controls that react when approached
- Roast Probe – Precise temperature control of food
- Mix & Match – use your Miele@home app or the WiFi enabled appliance to create recipes for full meals
Included:
- 1 Universal Tray with Perfect Clean
- 1 Wire rack with Perfect Clean
- 1 pair FlexiClip runners with Perfect Clean
- 2 perforated stainless steel containers
- 1 solid stainless steel container
MATERIAL #
11876180
SPECIFICATIONS
| Overall Unit Dimensions | 29 13 /16” (757 mm) W x 18 7 /8” (479 mm) x 23 1 /” (587 mm) D |
| Niche | |
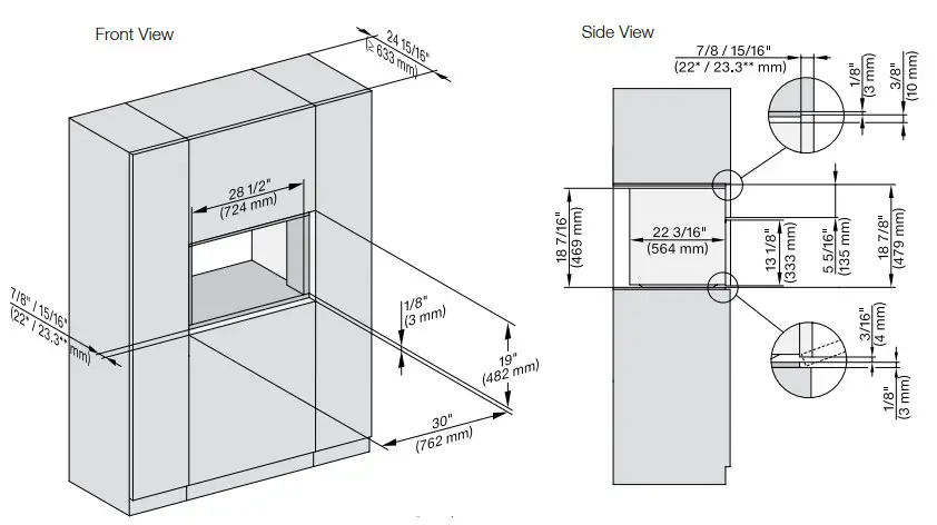
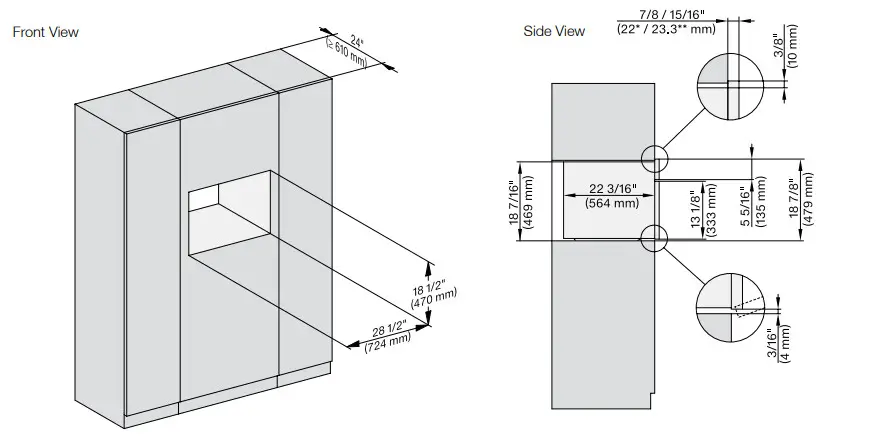
| Minimum Cabinet Niche Opening | 28 1 /2” (724 mm) W x 18 1 /2” (470 mm) H x 24” (610 mm) D |
| Electrical | |
| Electrical Requirements | 208 – 240V, 60Hz, 20 Amps |
| Power Cord | NEMA 6-20 plug, 5 ft (1.52 m) |
| Shipping | |
| Shipping Weight | 143 lbs (65 kg) |
| Shipping Dimensions | 28 5 /8” (726 mm) W x 29 1 /4” (743 mm) H x 32 1 /” (825 mm) D |
PRODUCT DIMENSIONS

FLUSH CUTOUT DIMENSIONS
![]() | ![]() |
A – Cut-out (4” x 28” [100 mm x 720 mm]) in the bottom of the cabinet for the power cord and Ventilation
– Electrical and water supplies are recommended to be placed in adjacent cabinetry.
Additional cabinet depth is required when placing the electrical and water supplies behind the appliance.
![]() | ![]() |
A – Cut-out (4” x 28” [100 mm x 720 mm]) in the bottom of the cabinet for the power cord and Ventilation
– Electrical and water supplies are recommended to be placed in adjacent cabinetry.
Additional cabinet depth is required when placing the electrical and water supplies behind the appliance.
mieleusa.com
Miele Help Desk: 800.999.1360
*Information subject to change





















