Miele DGC 7870X XL 30 Inch Combi Steam Oven

Product Information
DGC 7870X XL and DGC 7870 XL 30
Combi-Steam Oven – ArtLine (handleless) and VirtoLine
The DGC 7870X XL and DGC 7870 XL are 30 Combi-Steam Ovens available in ArtLine (handleless) and VirtoLine models. These ovens are designed to create recipes for full meals.
Specifications
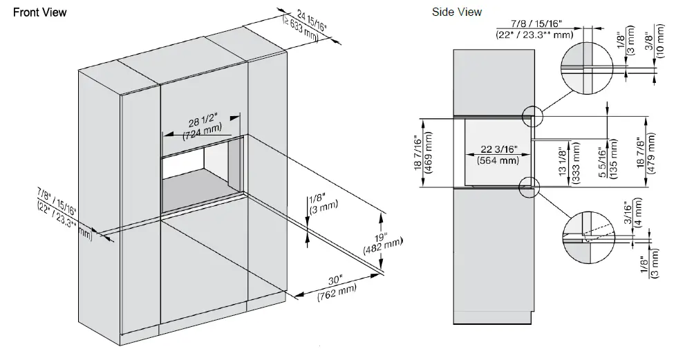
- Overall Unit Dimensions: 2913/16 (757 mm) W x 187/8 (479 mm) H x 231/8 (587 mm) D
- Niche Minimum Cabinet Niche Opening: 281/2 (724 mm) W x 181/2 (470 mm) H x 24 (610 mm) D
- Electrical Requirements: 208 – 240V, 60Hz, 20 Amps
- Power Cord: NEMA 6-20 plug, 5 ft (1.52 m)
- Shipping Weight: 143 lbs (65 kg)
- Shipping Dimensions: 285/8 (726 mm) W x 291/4 (743 mm) H x 321/2 (825 mm) D
| Overall Unit Dimensions | 2913/16” (757 mm) W x 187/8” (479 mm) H x 231/8” (587 mm) D |
| Niche | |
| Minimum Cabinet Niche Opening | 281/2” (724 mm) W x 181/2” (470 mm) H x 24” (610 mm) D |
| Electrical | |
| Electrical Requirements | 208 – 240V, 60Hz, 20 Amps |
| Power Cord | NEMA 6-20 plug, 5 ft (1.52 m) |
| Shipping | |
| Shipping Weight | 143 lbs (65 kg) |
| Shipping Dimensions | 285/8” (726 mm) W x 291/4” (743 mm) H x 321/2” (825 mm) D |
DIMENSIONS

Flush Cutout Dimensions
Side View: A – Cut-out (4 x 28 [100 mm x 720 mm]) in the bottom of the cabinet for the power cord and Ventilation – Electrical and water supplies are recommended to be placed in adjacent cabinetry. Additional cabinet depth is required when placing the electrical and water supplies behind the appliance.

A – Cut-out (4” x 28” [100 mm x 720 mm]) in the bottom of the cabinet for the power cord and Ventilation – Electrical and water supplies are recommended to be placed in adjacent cabinetry. Additional cabinet depth is required when placing the electrical and water supplies behind the appliance.
Proud Cutout Dimensions
Front View: A – Cut-out (4 x 28 [100 mm x 720 mm]) in the bottom of the cabinet for the power cord and Ventilation – Electrical and water supplies are recommended to be placed in adjacent cabinetry. Additional cabinet depth is required when placing the electrical and water supplies behind the appliance.

Cut-out (4” x 28” [100 mm x 720 mm]) in the bottom of the cabinet for the power cord and Ventilation – Electrical and water supplies are recommended to be placed in adjacent cabinetry. Additional cabinet depth is required when placing the electrical and water supplies behind the appliance.
For more information, visit www.miele.ca or call Miele Help Desk at 800 565 6435.
Product Usage Instructions
- Before using the DGC 7870X XL and DGC 7870 XL, ensure that the oven is installed as per the Flush Cutout Dimensions or Proud Cutout Dimensions provided in the user manual.
- Connect the oven to an electrical outlet with a NEMA 6-20 plug, and ensure that the outlet has an electrical supply of 208-240V, 60Hz, and 20 Amps.
- Once the oven is installed and connected to power, refer to the user manual for instructions on how to create recipes for full meals using the appliance.
- Ensure that the oven is cleaned regularly as per the instructions provided in the user manual to maintain its performance and longevity.
Features
- Combi-Steam Ovens: Steam ovens with full fledged oven function
- Lift up panel – conveniently stores the water containers
- M-Touch Display with Motion React – Simple to use touch controls that react when approached
- Roast Probe – Precise temperature control of food
- Mix & Match – use your Miele@home app or the WiFi enabled appliance to create recipes for full meals
Included
- 1 Universal Tray with Perfect Clean
- 1 Wire rack with Perfect Clean
- 1 pair FlexiClip runners with Perfect Clean
- 2 perforated stainless steel containers
- 1 solid stainless steel container
MATERIAL
DGC 7870 DGC 7870X 11876180 11877030
www.miele.ca Miele Help Desk: 800 565 6435 *Information subject to change


















