Miele 11234160-01 Steam Oven
Installation Guide
Installation
Safety instructions for installation
Risk of damage from incorrect installation.
Incorrect installation can cause damage to the steam oven.
The steam oven must only be installed by a qualified person.
- The connection data (frequency and voltage) on the steam oven’s data plate must correspond with those of the electricity supply in order to ensure that no damage can occur to the steam oven. Compare this data before connecting the appliance. If in any doubt, consult a qualified electrician.
- Multi-socket adapters and extension leads do not guarantee the required safety of the appliance (fire hazard). Do not use them to connect the steam oven to the power supply.
- The socket and on-off switch should be easily accessible after the steam oven has been installed.
- The steam oven must be positioned so that you can see the contents of a cooking container placed on the top shelf level. Otherwise there is a risk of injuries or spillages of hot food.
Installation
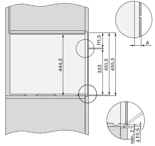
Building-in dimensions
All dimensions are given in mm.
Installation in a tall unit
The furniture housing unit must not have a back panel fitted behind the building-in niche.

Installation in a base unit
The furniture housing unit must not have a back panel fitted behind the building-in niche.
If the steam oven is to be installed in a base unit underneath an electric or induction cooktop, please also observe the installation instructions for the cooktop as well as the building-in height required for the cooktop.

Side view

A Glass front: 22 mm
Metal front: 23.3 mm
Connection and ventilation

- Front view
- Mains connection cable, L = 2000 mm
- Ventilation cut-out, min. 180 cm2
- No connections permitted in this area
Installing the steam oven
- Connect the mains connection cable to the appliance.
Risk of damage from incorrect transportation.
Lifting the steam oven by the door handle could cause damage to the door.
Use the handle cut-outs on the side of the casing to lift the appliance.
The steam generator may malfunction if the steam oven is not on a level surface.
The maximum deviation from the horizontal that can be tolerated is 2°.
- Push the steam oven into the housing unit and align it.
When doing so, make sure that the mains connection cable does not get trapped or damaged. - Open the door.

- Secure the steam oven to the side walls of the unit using the wood screws supplied (3.5 x 25 mm).
- Connect the appliance to the mains electricity supply.
- Check the appliance for correct function in accordance with the operating instructions.
Electrical connection
We recommend that you connect the steam oven to the electricity supply using a suitable switched electrical socket. This simplifies servicing. The socket must be easily accessible after the steam oven has been installed.
Risk of damage from incorrect connection.
Danger of injury! Miele cannot be held liable for unauthorized installation, maintenance and repair work as this can be dangerous to
users.
Miele cannot be held liable for damage or injury (e.g. electric shock) caused by the lack of or inadequacy of an on-site earthing system.
If the plug is removed from the connection cable or if the cable is supplied without a plug, the steam oven must be connected to the electrical supply by a suitably qualified and competent electrician. If the socket is no longer accessible, or if a hard-wired connection is planned, an additional means of disconnection must be provided for all poles. Suitable means of disconnection include switches with an all-pole contact gap of at least 3 mm. These include miniature circuit breakers, fuses and relays. The connection data is given on the data plate. Please ensure this information matches the household mains electricity supply. After installation, ensure that all electrical components are shielded and cannot be accessed by users.
Total power output
See data plate.
Connection data
The connection data is given on the data plate. Please ensure this information matches the household mains supply.
Residual current device
For extra safety, it is advisable to protect the steam oven with a suitable residual current device (RCD) with a trip range of 30 mA.
Replacing the mains connection cable
If replacing the mains connection cable, it must be replaced with a cable type H 05 VV-F, available from Miele.
Disconnecting from the mains
Risk of electric shock! There is a risk of electric shock if the appliance is connected to the mains electricity supply during repair or service work.
After disconnection, ensure the appliance cannot be switched back on by mistake.

















