Miele 11193980 Microwave Oven Installation Guide
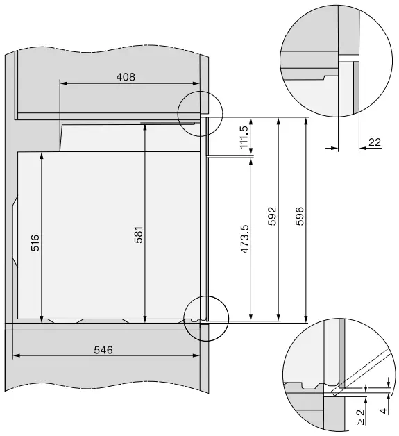
Building-in dimensions
Dimensions are given in mm.
Installation in a tall or base unit
When building the oven into a base unit underneath a cooktop, please also observe the installation instructions for the cooktop as well as the building-in height required for the cooktop.

Side view

Connections and ventilation

- Front view
- Mains connection cable, length = 1,500 mm
- No connections permitted in this area
- Ventilation cut-out, min. 150 cm²
Installing the oven
For safety reasons, the oven may only be used after it has been fully installed.
The oven requires a sufficient supply of cool air for efficient operation. The required supply of cool air must not be excessively heated by other heat sources (e.g. solid fuel stoves).
The following must be observed when installing the appliance: Make sure that the shelf that the oven sits on does not touch the wall.
Do not fit heat insulation strips to the side walls of the housing unit.
- Connect the mains cable from the oven to the electricity supply.
Use the handle cut-outs on the side of the housing to lift the appliance. It is a good idea to remove the door and the accessories before installing the appliance. This makes the oven lighter when you push it into the housing unit. - To remove the door, use the opener supplied to prise the door open at the top in the middle. You can also pull the door open by grasping the sides of the door with both hands and pulling carefully until it opens.
- Remove the door (see “Cleaning and care – Removing the door”) and take the accessories out of the oven.
- Push the oven into the housing unit and align it.
- Reconnect the power supply to the mains socket.
- Touch the
sensor control to open the door if you have not removed it already.
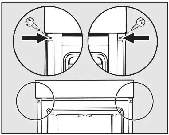
- Use the screws supplied to secure the oven to the side walls of the housing unit through the holes in the oven trim.
- Refit the door, if necessary (see “Cleaning and care – Fitting the door”).
Electrical connection
Danger of injury!
Miele cannot be held liable for unauthorised installation, maintenance and repair work as this can be dangerous to users.
Connection to the electrical mains may only be carried out by a qualified electrician in accordance with national and local regulations and the additional regulations of the local electrical supply companies.
Connection of this appliance must comply with national and local safety regulations.
Connection to a switched socket is recommended as this provides easier access in the case of a service call.
If the appliance is hardwired or if the switch is not accessible after installation, an additional means of disconnection must be provided for all poles.
Suitable means of disconnection include switches with an all-pole contact gap of at least 3 mm. These include isolator switches, fuses and relays in accordance with the wiring rules AS/NZS 3000.
Voltage, rated load and fuse rating are given on the data plate situated at the front of the oven compartment. Please ensure the connection data matches the household supply.
When contacting Miele, please quote the following:
- Model number
- Serial number
- Connection data (voltage/frequency/ maximum rated load)
If the mains connection cable is damaged, it must be replaced by a suitably qualified electrician with a specialist connection cable of type H 05 VV-F, available from Miele, in order to avoid a hazard.
Temporary or permanent operation with a self-sufficient or non-mains synchronous energy supply system (e.g. isolated networks, back-up systems) is possible. A requirement for the operation is that the energy supply system complies with all current local and national requirements that apply to stand-alone, solar and/or battery systems.
The protective measures provided in the domestic installation and in this Miele product must also be assured in their function and operation in isolated operation or in non-mains synchronous operation, or replaced with equivalent measures in the installation.
Oven
Ovens are supplied with a 3-core cable for connection to a 230 V, 50 Hz alternating current supply.
Fuse rating is 16 A.
Maximum rated load: see data plate.

















