VaLBIa Electric Actuators Series 85

Warning
- Please read the following instructions before making any installation of the actuator. The damages caused from the non-observance of these instructions are not covered in the warranty.
- This documentation must be kept in dry place and available for use.
- The actuator is an electronic device and during its working operations some parts are live components. The installation and maintenance of electric actuator must be made only by qualified personnel, in accordance with current electrical engineering and safety standards and all other applicable directives.
- Valbia s.r.l. reserves the right to change the data and the characteristics of this manual at any time and with no notice in the scope of a constant updating and technological improvement.
WARNING: the mechanical and electronic parts, according to which the device is designed, are not eligible for modifications.
Transportation and storage
Valbia electric actuators are supplied in paperboard boxes which are of solid construction for a normal transport. Handle with care and keep the cover until the moment of the installation of the actuator. The storage of the actuators requires a covered, dry and ventilated environment, protected from temperature changes. The device must be stored with the cover mounted. Prior to installation, visual inspection is recommended to detect any anomalies caused by transport or storage.
WARNING: do not lift or move the actuator by the manual hand-wheel.
Field application
VALBIA electric actuators have been designed and tested to ball and butterfly valves and dampers for the industrial sector. Actuators are available in standard version with rotation 0°-90°. On request we can supply actuators with rotation 0°-180° or 0°-270°. For applications other than that above are needed please contact VALBIA sales department.
Valve automation
The mechanical assembling between the electric actuator and the item to be automated (for example: the valve) can be done by direct mounting or by a mounting kit. Both the cases you can verify the right alignment and the correct dimensions of the part to transmit the power in order to avoid axial stress which can damage valve and actuator.
All Valbia electric actuators are in conformity of norm EN ISO 5211 (DIN 3337).
In order to have a right automation of the valve, is necessary to use a Valbia electric actuators whose range has a torque of at least 25% over the valve maximum torque.
Verify the actuator duty rating suitability with the application.
WARNING: do not raise up or moved the motorized valve by using the electric actuator as point of grip or hold.
Specifications and technical information (Tab.1-2)
| TECHNICAL INFORMATION | DATA | |
| Object of device | Electric actuator | |
| Enclosure material | Self-estinguish technopolymer (V0) | |
| Enclosure rating | IP67 | |
| Duty Cycle | 75% | |
| Duty Cycle 12V version | 50% | |
| Ambient temperature range | -20 °C ÷ +55 °C | -4 °F ÷ +131 °F |
| Auxiliary limit switches | 1A @ 250Vac – 1A @ 30 Vdc (resistive load) | |
| Fault auxiliary contact | 1A @ 120Vac- 1A @24Vdc (resistive load) | |
| Terminal block type | Plug in connector | |
| Section of terminal block | 14 ÷ 22 AWG | 2.08 ÷ 0.32 mm2 |
| Minimum conductors temperature | 85 °C | 185 °F |
| Protection class against electric shock | Class I | |
| Restriction of continue operation time (time out) | Standard | |
| Power supply voltage tolerance | ±10% | |
| Multiple parallel actuators wiring | Standard (*) | |
| Cable entries | PG11 electric connections (cable diam. 5÷10mm/0.20”÷0.39”) | |
| Standard stroke | 90° | |
| Position indicator | Standard | |
| Manual override | Standard | |
(*) It is important to verify that the application and its components are properly sized with the actuator characteristics and requirements
| REQUESTED FEATURES FOR UL508 STANDARD | ||
| UL listed file number | NMTR.E303174 | |
| Enclosure Type | Type 4x Indoor Use Only | |
| Connection conductor/wires | Listed flexible cord (ZJCZ) minimum S or SJ | |
| Green terminal block screws maximum tightening capacity of model 100-240 Vac | 0.56 Nm | 5 LbIn |
| Black terminal block screws maximum tightening capacity of model 100-240 Vac | 0.50 Nm | 4.50 LbIn |
| Terminal block screws maximum tightening capacity of model 12-24 Vac/dc | 0.50 Nm | 4.50 LbIn |
| Enclosure screws maximum tightening capacity | 2.5 Nm | 22.15Lbln |
| External pollution degree | 3 | |
| Internal pollution degree | 2 | |
| Overvoltage category | 2 | |
Product in conformity with the European Community norms
LOW VOLTAGE 2014/35/UE (LVD)
ELECTROMAGNETIC COMPATIBILITY 2014/30/UE (EMC)
MACHINERY 2006/42/CE
ROHS 2011/65/UE
REGULATION No 1907/2006 (REACH)
Use copper (CU) conductor
Technical features
Technical characteristics of Valbia electric actuators as below:
- Heater: all actuators are standard equipped with heater to avoid condensation into the actuator (paragraph 6.4);
- A safety system detects when the actuator supplies a torque higher than expected (torque limiter): the device makes three triggering attempts. In case of negative results, it makes a short rotation in the opposite direction to relieve the mechanical tension to the gears. The torque limiter intervention is indicated by a red color LED (paragraph 6.5) and by the opening of the remote signal an auxiliary contact (paragraph 6.2).
- A safety system intervenes to shut off the actuator in case the motor works past over the allowable operation time value (the time value depends on the actuator models). The maximum working time fault is indicated by a red color LED (paragraph 6.5) by the opening of the auxiliary contact of the remote signal (paragraph 6.2).
- Duty rating: the electric actuator was designed to work with a nominal duty rating of 75% (or 50% in the 12V ac/dc models), referred to the working time, the maximum temperature and to the nominal load. This parameter defines the rest time after an operation. The use of the actuator with an higher duty rating or with a temperature above 55°C (131°F) can cause the improper torque limiter intervention or the failure of electronic components.
Power requirements and current draw information (Tab.3)
| MODELS | VB030 | VB060 | VB110 | VB190 | VB270 | VB350 | ||||||
Nominal torque [Nm] | 30 | 60 | 110 | 190 | 270 | 350 | ||||||
| Nominal torque [LbIn] | 266 | 530 | 975 | 1680 | 2390 | 3100 | ||||||
Nominal voltage (H Version) | 100 – 240 Vac | |||||||||||
| Absorbed current (H Version) [A] | 0.4 – 0.2 | 0.6 – 0.3 | 0.4 – 0.2 | 0.6 – 0.3 | 0.6 – 0.3 | 0.75 – 0.4 | ||||||
Absorbed power (H Version) [VA] | 40 – 48 | 60 – 72 | 40 – 48 | 60 – 72 | 60 – 72 | 75 – 96 | ||||||
| Nominal voltage (L Version) | 12Vac/dc | 24Vac/dc | 12Vac/dc | 24Vac/dc | 12Vac/dc | 24Vac/dc | 12Vac/dc | 24Vac/dc | 12Vac/dc | 24Vac/dc | 12Vac/dc | 24Vac/dc |
Absorbed current (L Version) [A] | 2.2 – 1.8 | 1 – 0.7 | 3.8 -2.85 | 1.8 – 1.2 | 2.2 – 1.8 | 1 – 0.7 | 3.8 – 2.85 | 1.8 – 1.2 | 3.8 – 2.85 | 1.8 – 1.2 | 4.75 – 3.65 | 1.95 – 1.65 |
| Absorbed power (L Version) [VA] | 26.5 – 22 | 24 – 17 | 46 – 34 | 43 – 29 | 26.5 – 22 | 24 – 17 | 46 – 34 | 43 – 29 | 46 – 34 | 43 – 29 | 57 – 44 | 47 – 40 |
Frequency [Hz] | 50/60 | |||||||||||
| Rotation time 0° – 90° [sec] | 8 | 9 | 27 | 27 | 50 | 50 | ||||||
Installation instruction

- Remove position indicator “B” by loosening the screws “C”;
- Screw the fasteners “D” to remove the upper cover “A”;
- Raise up the cover “A” carefully to avoid to damage the internal electric parts;
- Turn in the electric supply cable (diameter 5÷10 mm/0.20” ÷ 0.39”) by the properly bolds “E” (PG11);
- Proceed to connect the cable in its proper terminal block “F” by looking at the wiring diagram (Fig.8) according to the different voltage (please also review the tag you find inside the cover).
WARNING: the actuators should be properly grounded and wired in accordance with local electrical code.
WARNING: before performing any maintenance on the actuator, always make sure to shut off the power supply first.
WARNING: make sure that the power supply is set between the values indicated as indicated on the label on the side of the actuator.
WARNING: Valbia electric actuators may be mounted in many positions, however, we do not suggest using it with the cable glands positioned upright, since it cannot guarantee a perfect wiring tightness. We also recommend to avoid using it with the indicator facing down. If the actuator assembly and the respective electrical connection are provided in different moments, make sure that the cable entries are hermetically sealed.
WARNING: please ensure suitably rated cable glands and protection plug are used, according to IP protection rating.
Properly seal the electrical connectors to prevent any liquid and dust infiltration. Warranty is voided if this warning is not respected.
The cables must be of the appropriate size to the type of electrical connector selected. Verify the correct tightening of the electrical connectors.
WARNING: if the device is used not respecting the manufacturer specifications, the provided protection may be impaired.
For the wiring, it is necessary to open the upper cover “A” in order to locate the terminal block on the power supply board.
WARNING: before opening the upper cover shut down the power supply voltage.
To remove the upper cover “A” untighten the screws “D” and make sure to avoid collisions with the internal electrical parts. Insert the power supply cables inside the lower enclosure entries “E”, tighten by the user. The terminal block “F” is composed by two parts, one of which removable. To simplify the procedure, it is possible to remove the removable part, wiring it and insert it once the wiring is done. Proceed to the cable connections in the appropriate terminal block “F” following the wiring diagram (paragraph 6.1).
WARNING: please pay attention during the wiring and setting phases of the electromechanical limit switches, in order to avoid fluids or other substance from getting on or around any electronic components. Moreover, before assembling the upper cover please make sure that the o-ring is seated in the proper groove and there are no impediments that could compromised the enclosure sealing.
Electrical connection
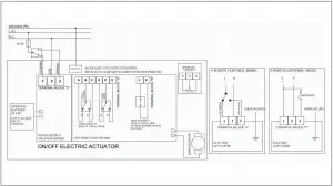
The wiring diagram, which should be followed for proper wiring of the actuators, is shown in Paragraph 10.0 and it can be found also on the label inside the upper cover. Please follow the maximum allowed electrical rating values. The terminal block “F” in the 100-240Vac is shown in Fig. 3, 12Vac/dc and 24Vac/dc in Fig. 2. The cables through the connector must be of the proper size.
- The signal cable of “closing (clockwise rotation)” (positive supply +12Vdc / +24Vdc or phase 12Vac / 24Vac / 100-240Vac) must be connected to the terminal “1” of the terminal-block “F”;
- The signal cable of “opening (counter-clockwise rotation)” (positive supply +12Vdc / +24Vdc or phase 12Vac / 24Vac / 100-240Vac) must be connected to the terminal “3” of the terminal-block “F”;
- The signal cable “common” (0V / neutral) must be connected to the terminal “2” of the terminal-block “F”;
- The grounding cable must be connected to the properly signaled terminal.
In addition to the 3-points control mode, the 2-points control mode is also available.
WARNING: the ground wiring system is mandatory.


Auxiliary switches wirings (Fig.4)
The “G” terminal block is connected to two auxiliary and independent limit switches (SPDT free contacts), FCU1 and FCU2, which indicate the position of the actuator to the final user. The terminal block “G” is composed by two parts, one of which removable for easier wiring. To simplify the procedure, it is possible to remove the removable part, wiring it and insert it once the wiring is done.
Connect to the terminal block “G” between the following terminals:
- “B” and “C” to obtain the signal of closing position.
- “E” and “H” to obtain the signal of opening position.
The opening or closing signal comes when the blue cams push the auxiliary electromechanical limit switch on the logic board. The cams adjustment procedure is described on paragraph 6.6.
WARNING: during the installation it is recommended to verify the alignment of the auxiliary limit switches by using a multimeter/tester
The terminal block “R” is connected to a free contact NO which closes in case of powered actuator and no detected anomaly. In case of anomalies or not powered actuator the contact is open. The terminal block “R” is composed by two parts, one of which removable for easier wiring. To simplify the procedure, it is possible to remove the removable part, wiring it and insert it once the wiring is done.

Potentiometer wirings (optional) (Fig.5)
The actuator with potentiometer includes an extra terminal block “POT” (Fig.5) which grants the possibility to use the resistive information concerning the actuator position. Wiring instruction presented at Paragraph 10.0. When the actuator is at 45°, the resistance value of the potentiometer is 2,5KΩ

Heater (Fig.6)
All the actuators are equipped with “RIS” heating resistor which works only if the actuator is connected to the power supply, when the motor is not rotating and the temperature inside the actuator goes down to 25°C / 77°F. It protects the actuator from the formation of condensation due to temperature changes. The resistor is part of the electronics, it does not require additional wiring and it is disabled when the internal temperature exceed 25°C / 77° F.
WARNING: to guarantee the normal operation of the resistor, it is necessary to keep the actuator connected to the power supply even in the open/close
positions.

Signal lamp unit
On the power supply board there is a green LED indicating that the power is on
On the logic board there is a multicolor LED which indicates the following actuator modes
WORKING STATE | LED COLOR | FLASHING DURATION (SEC) | PAUSE BETWEEN FLASHES (SEC) |
FC powered actuator | green | 0.1 | 0.9 |
| Rotating powered actuator | green | 0.6 | 0.4 |
Power supply shut-off in FC | yellow | 0.1 | 0.9 |
| Power supply shut-off in rotation | yellow | 0.6 | 0.4 |
Every anomaly has a different number of flashes of the RED led on the logic board.
ANOMALY | EFFECT | NO. OF FLASHES | FLASHING DURATION (SEC) | PAUSE BETWEEN FLASHES (SEC) | PAUSE BETWEEN FLASHING CYCLES (SEC) |
| Torque limiter alert | Actuator block | 1 | 0.1 | 0.3 | 1 |
Max torque alert | Actuator block | 2 | |||
Below minimum threshold voltage alert | Re-enable | 3 | |||
Time-out operation intervention alert | Actuator block | 4 | |||
| Fault driver alert | Actuator block | 5 |
WARNING: to reset the anomalies it is recommended to shut off the power supply for more than 10 seconds to ensure the full discharge of the capacitors on the electronic boards.
Setting actuator stop positions (Fig.7)
The opening or closing operation of the electric actuator is reached when the black cams push the electromechanical limit switches on the logic board (POS1 for closing position and POS2 for opening position). The signal of opening and closing operation is obtained when the blue cams push the electromechanical limit switches on the logic board.
The procedure necessary to adjust the actuator stroke is the following:
- Make sure that the power supply is off;
- Remove the upper cover of the actuator (paragraph 6.0);
- to simplify the operation it is recommended to remove the removable parts of the terminal block “G” and “R”;
- Make sure that the automated device (for instance the valve) is in the “OPEN” position. For a more accurate and precise adjustment, use the manual override “H” (paragraph 7.0);
- Loosen the set screw in the cam 1 (black color), and rotate the cam until it pushes the limit switch POS2 and until the “click” of the electromechanical micro switch. Then tighten the set cam screws;
- Loosen the set screw in the cam 3 (blue color), and rotate the cam until it pushes the limit switch FCU2 and until the “click” of the electromechanical micro switch). Then tighten the set cam screws;
- Power on the actuator and carry out the closing operation;
- Wait for the completion of the operation, then shut off the power supply;
- Make sure that the automated device (for instance the valve) is in the “CLOSED” position. For a more accurate and precise adjustment, use the manual override “H” (paragraph 7.0);
- Loosen the set screw in the cam 2 (black color) and rotate the cam until it pushes the limit switch POS1 and until the “click” of the electromechanical micro switch. Then tighten the set cam screws;
- Loosen the set screw in the cam 4 (blue color) and rotate the cam until it pushes the limit switch FCU1 and until the “click” of the electromechanical micro switch. Then tighten the set cam screws.

Closure of electric actuator enclosure (Fig.1)
- After making the proper connection, please proceed to the assembling of cover “A”, by paying close attention not to hit any electronic parts;
- re-assemble the position indicator “B” on “OPEN ” blocking it by screw “C”;
- Make sure that the tightening of cables is secure, by screwing the gland “E”;
- Finish the closing of cover “A” by screwing in the fasteners “D”.
Emergency operation
All the VALBIA electric actuators have an external handwheel “H” (Fig.1), which can manually operate the closing and opening positions.
The manual operation operates by put in a pressure on the top of handwheel and by making a small rotation in order to engage the stem to the handwheel. After engaging the manual operation you can make desired the position you wish by keeping pressure on, and turning the handwheel.
WARNING: the handwheel for the manual override can be used with actuator NOT power supplied. Do not use tools to action the handwheel.
WARNING: do not operate the manual override when the actuator is turning.
Fail-Safe Operation with battery backup (optional)
- The versions with battery of Valbia electric actuator use battery packs with series of cells in NiMh technology and nominal voltage on terminals at 24Vdc.
For the actuators with battery back-up, VALBIA can set up the actuator to automatically carry out one of the following actions in the event of power outage: - Opening: the in-progress/current operation is interrupted.
- Closing: the in-progress/current operation is interrupted.
- Completes the in-progress operation: the motor continues the in progress action until it touches the travel stops/limit switches.
Battery operation is enabled after a delay of about 1 sec, it is instantaneous only if the emergency operation is consistent with the operation in progress (for example, when the actuator is closing, the supply voltage is lost and the battery set to NC intervenes).
The action in progress with the battery power supply is interrupted by a possible mains voltage recovery.
A yellow light (LED) mounted on the power supply board indicates that the board is charging the battery in TRICKLE mode.
When the battery is fully charged the LED light turn off.
The LED signal is reliable if the battery back-up has not been damage
The battery is a component that guarantees a limited number of charge / discharge cycles (over 500), therefore its life is inversely proportional to the number of interventions.
WARNING: to guarantee the emergency battery intervention, it is necessary that the actuator remains powered for more than 3 hours.
WARNING: for the version with battery it is recommended to power the actuator within 3 months from the purchase date
The actuator can also be used in “solenoid” mode (wiring with two wires). To use this mode it is mandatory to follow the warnings above.
Maintenance
The electric actuator does not need any kind of maintenance. The internal lubrication of the gears is sufficient for the device life. For enclosure cleaning, use a light non-aggressive detergent. In case of damages or operation issues, we suggest sending the actuators back to Valbia for inspection.
Valbia s.r.l. declines responsibility and warranty on our actuators repaired from any third party.
Wiring diagrams
The wiring diagram to be followed for the proper cabling to the actuators is showed in Fig.8 and also it is, as tag, inside the cover. In addition to the 3-points control mode it is possible the cabling of the actuator for the 2-points control mode.

Disposal of the electrical actuators at the end of their life cycle
According to the provisions of the European directives 2011/65/UE and 2012/19/UE, concerning the restriction of the use of hazardous substances in electrical and electronic equipment as well as waste management, all the VALBIA electric actuators are designed in order to be completely disassembled when they arrive at the end of their life cycle, separating the different materials for the proper disposal and/or recovery.
The crossed-out rubbish bin symbol indicates that the product, at the end of its life cycle, becomes WEEE (Waste Electrical and Electronic Equipment) and must be collected separately from the other waste.
The device must not be disposed as a mixed urban waste, it must be recycled through the proper collection system for disposal and for its subsequent correct recycling.
The collection system of the equipment at the end of its life is guaranteed on the national territory through the national consortia for the eco-sustainable management of WEEE. For all the information contact VALBIA s.r.l. At the end of the life cycle of the device, for its removal, a series of precaution must be followed:
- The structure and the various components, if not usable, must be demolished and divided up according to the type of product. All this helps collection, disposal and recycling centers and minimizes the environmental impact that this operation requires;
- Appropriate separate waste collection for subsequent sending of the disused equipment for recycling, treatment and compatible environmental disposal contributes to preventing possible negative effects on the environment and favors recycling of the materials of which the equipment is composed;
- The illegal disposal of the product by the user involves the application of the penalties provided by the current regulations regarding such subject.
The product at the end of its life, if properly disposed, is not potentially dangerous for human health and the environment, on the contrary, if unproperly abandoned, it could have a negative impact on the ecosystem.
![]()
















