M-SERIES
SUBMITTAL DATA: MSZ-HM24NA & MUZ-HM24NA
24,000 BTU/H WALL-MOUNTED HEAT PUMP SYSTEM
| Job Name: | |
| System Reference: | Date: |
| Indoor Unit: MSZ-HM24NA | Outdoor Unit: □ MUZ-HM24NA-U1 □ MUZ-HM24NA-U2 | Wireless Remote Controller |
![]() | ![]() | ![]() |
GENERAL FEATURES
- Four fan speed options: Low, Medium, High, Super-high
- Anti-mold filter
- INVERTER-driven compressors and electronic LEVs provide higher efficiency with controlled power usage
- The outdoor unit powers the indoor unit, and should a power outage occur, the system is automatically restarted when power returns
- Cooling operation range: 14° F to 115° F
- Heating operation range: -4° F to 75° F
- Multiple control options available:
– Hand-held Remote Controller (provided with unit)
– kumo cloud® smart device app for remote access
– Third-party interface options
– Wired or wireless controllers - 12-hour timer
- ECONO COOL mode
- AUTO restart
- Blue Fin anti-corrosion treatment applied to the outdoor unit heat exchanger for increased coil protection and longer life
SPECIFICATIONS: MSZ-HM24NA & MUZ-HM24NA
| Cooling1 | Maximum Capacity | BTU/H | 22,500 |
| Rated Capacity | BTU/H | 22,500 | |
| Minimum Capacity | BTU/H | 5,800 | |
| Maximum Power Input | W | 2,575 | |
| Rated Power Input | W | 2,630 | |
| Moisture Removal | Pints/h | 2.3 | |
| Sensible Heat Factor | 0.89 | ||
| Power Factor | % | 99 / 99 | |
| Heating at 47°F2 | Maximum Capacity | BTU/H | 26,000 |
| Rated Capacity | BTU/H | 26,000 | |
| Minimum Capacity | BTU/H | 5,400 | |
| Maximum Power Input | W | 2,445 | |
| Rated Power Input | W | 2,500 | |
| Power Factor | % | 99 / 99 | |
| Heating at 17°F3 | Maximum Capacity | BTU/H | 18,500 |
| Rated Capacity | BTU/H | 18,500 | |
| Maximum Power Input | W | 2,245 | |
| Rated Power Input | W | 2,300 | |
| Heating at 5°F4 | Maximum Capacity | BTU/H | 15,600 |
| Maximum Power Input | W | 2090 | |
| Heating at -4°F5 | Maximum Capacity | BTU/H | N/A |
| Heating at -13°F6 | Maximum Capacity | BTU/H | – |
| Efficiency | SEER | SEER2 | 18.0 | 20.0 | |
| EER1 | EER21 | 8.6 | 8.6 | ||
| HSPF (IV) | HSPF2 (IV) | 10.0 | 10.0 | ||
| COP at 47°F2 | 3.05 | ||
| COP at 17°F in Maximum Capacity3 | 2.42 | ||
| COP at 5°F in Maximum Capacity4 | 2.19 | ||
| ENERGY STAR® certified units (ENERGY STAR products are third-party certified by an EPA-recognized Certification Body.) NO | |||
| Electrical | Voltage, Phase, Frequency 208/230V, 1 phase, 60Hz | ||
| Guaranteed Voltage Range | V AC | 187 – 253 | |
| Voltage: Indoor – Outdoor, S1-S2 | V AC | 208 / 230 | |
| Voltage: Indoor – Outdoor, S2-S3 | V DC | 24 | |
| Short-circuit Current Rating (SCCR) | kA | 5 | |
| Recommended Fuse/Breaker Size (Outdoor) | A | 15 | |
| Recommended Wire Size (Indoor – Outdoor) | AWG | 14 | |
| Indoor Unit | MCA | A | 1 |
| MOCP | A | 15 | |
| Blower Motor Full Load Amperage | A | 0.67 | |
| Blower Motor Output | W | 30 | |
| Airflow Rate at Cooling, Dry | CFM | 702-530-431-353 | |
| Airflow Rate at Cooling, Wet | CFM | 632-477-388-318 | |
| Airflow Rate at Heating, Dry | CFM | 702-579-448-346 | |
| Sound Pressure Level (Cooling) | dB(A) | 50-44-38-33 | |
| Sound Pressure Level (Heating) | dB(A) | 50-44-38-32 | |
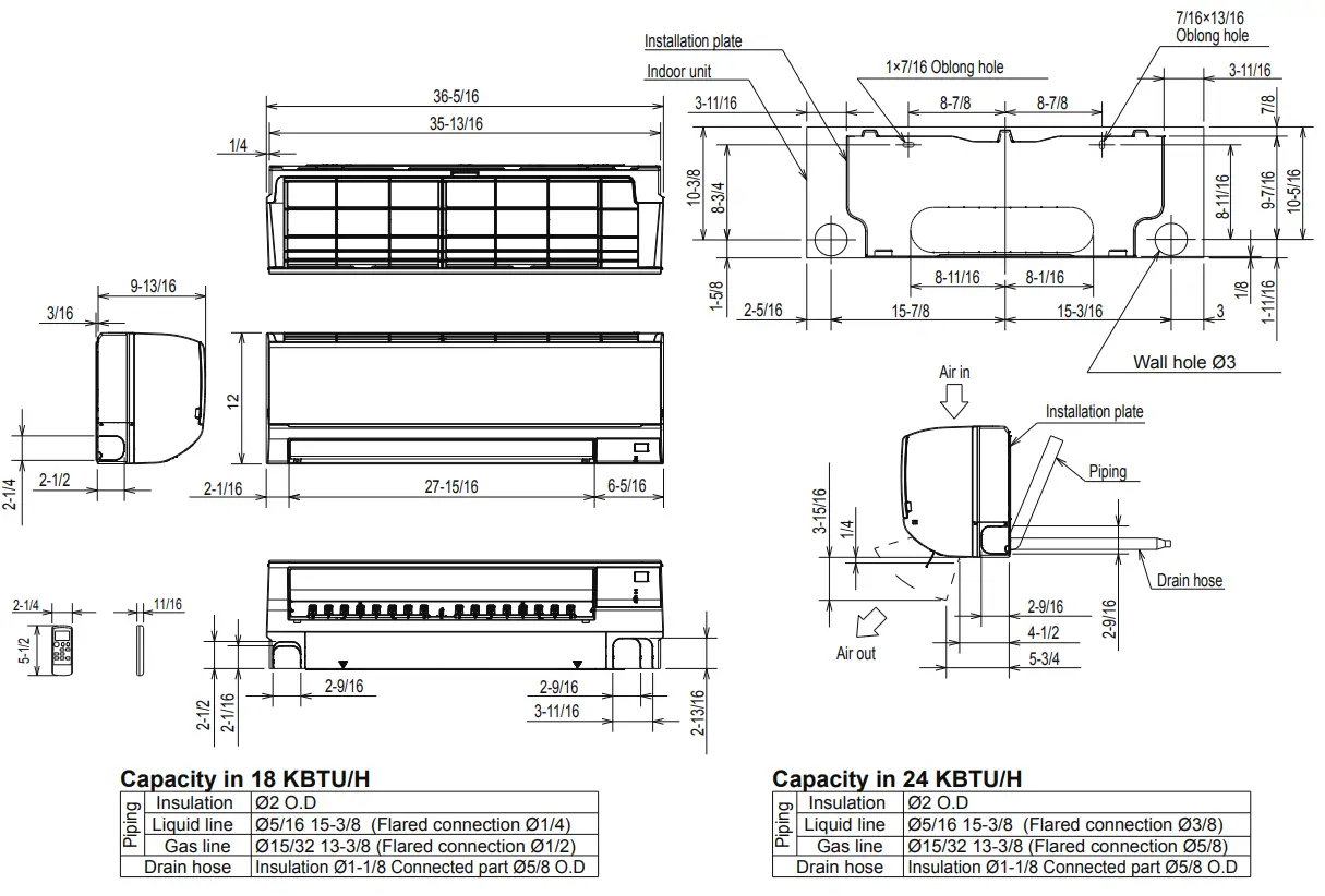
| Drain Pipe Size | In. (mm) | 5/8 (15.88) | |
| Heat Exchanger Type | Plate fin coil | ||
| External Finish Color | Munsell 1.0Y 9.2/0.2 | ||
| W: In. (mm) | 36-5/16 (923) | ||
| D: In. (mm) | 12 (250) | ||
| Unit Dimensions | H: In. (mm) | 9-13/16 (305) | |
| W: In. (mm) | 39 (990) | ||
| D: In. (mm) | 13 (330) | ||
| Package Dimensions | H: In. (mm) | 15 (380) | |
| Unit Weight | Lbs. (kg) | 28 (13) | |
| Package Weight | Lbs. (kg) | 33 (15) | |
| Indoor Unit Operating Temperature Range | Cooling Intake Air Temp (Maximum / Minimum)* | °F | 90 DB, 73 WB / 67 DB, 57 WB |
| Heating Intake Air Temp (Maximum / Minimum) | °F | 80 DB / 70 DB | |
| Outdoor Unit | MCA | A | 14 |
| MOCP | A | 15 | |
| Fan Motor Full Load Amperage | A | 0.93 | |
| Fan Motor Output | W | 77 | |
| Airflow Rate | CFM | 1,691 / 1,691 | |
| Refrigerant Control | LEV | ||
| Defrost Method | Reverse cycle | ||
| Heat Exchanger Type | Plate fin coil | ||
| Sound Pressure Level, Cooling1 | dB(A) | 54 | |
| Sound Pressure Level, Heating2 | dB(A) | 55 | |
| Compressor Type | DC INVERTER-driven Twin Rotary | ||
| Compressor Model | SNB130FQBMT | ||
| Compressor Rated Load Amps | A | 10 | |
| Compressor Locked Rotor Amps | A | 12.5 | |
| Compressor Oil Type // Charge | oz. | FV50S // 11.8 | |
| External Finish Color | Munsell 3Y 7.8/1/1 | ||
| Base Pan Heater | Optional | ||
| W: In. (mm) | 33-1/16 (840) | ||
| D: In. (mm) | 13 (330) | ||
| Unit Dimensions | H: In. (mm) | 34-5/8 [880] | |
| W: In. (mm) | 38-9/16 (980) | ||
| D: In. (mm) | 16-9/16 (420) | ||
| Package Dimensions | H: In. (mm) | 39 (990) | |
| Unit Weight | Lbs. (kg) | 121 (55) | |
| Package Weight | Lbs. (kg) | 141 (64) | |
| Outdoor Unit Operating Temperature Range | Cooling Air Temp (Maximum / Minimum)* | °F | 115 / 14 |
| Cooling Thermal Lock-out / Re-start Temperatures** | °F | -0.333333333 | |
| Heating Air Temp (Maximum / Minimum) | °F | 75 / -4 | |
| Heating Thermal Lock-out / Re-start Temperatures** | °F | 2.25 | |
| Refrigerant | Type | R410A | |
| Charge | Lbs, oz | 3, 9 | |
| Piping | Gas Pipe Size O.D. (Flared) | In. (mm) | 5/8 (15.88) |
| Liquid Pipe Size O.D. (Flared) | In. (mm) | 3/8 (9.52) | |
| Maximum Piping Length | Ft. (m) | 100 (30) | |
| Maximum Height Difference | Ft. (m) | 50 (15) | |
| Maximum Number of Bends | 10 | ||
Notes
| AHRI Rated Conditions (Rated data is determined at a fixed compressor speed) | 1Cooling (Indoor // Outdoor) | °F | 80 DB, 67 WB // 95 DB, 75 WB |
| 2Heating at 47°F (Indoor // Outdoor) | °F | 70 DB, 60 WB // 47 DB, 43 WB | |
| 3Heating at 17°F (Indoor // Outdoor) | °F | 70 DB, 60 WB // 17 DB, 15 WB | |
| Conditions | 4Heating at 5°F (Indoor // Outdoor) | °F | 70 DB, 60 WB // 5 DB, 4 WB |
| *Applications should be restricted to comfort cooling only; equipment cooling applications are not recommended for low ambient temperature conditions. | |||
ACCESSORIES: MSZ-HM24NA
| Anti-allergy Enzyme Filter | □ MAC-408FT-E |
| Remote Controller Holder | □ U01A01083 |
| kumo touch™ RedLINK™ Wireless Controller | □ MHK2 |
| Deluxe MA Remote Controller1 | □ PAR-40MAAU |
| Simple MA Controller1 | □ PAC-YT53CRAU-J |
| Touch MA Controller1 | □ PAR-CT01MAU-SB |
| Wireless Temperature and Humidity Sensor | □ PAC-USWHS003-TH-1 |
| System Control Interface2 | □ MAC-334IF-E |
| Wireless Interface 2 | □ PAC-USWHS002-WF-2 |
| Thermostat Interface | □ PAC-US444CN-1 |
| Thermostat Interface | □ PAC-US445CN-1 |
| kumo station® for kumo cloud® | □ PAC-WHS01HC-E |
| USNAP Interface | □ PAC-WHS01UP-E |
| IT Extender | □ PAC-WHS01IE-E |
| BACnet® and MODBUS® Interface | □ PAC-UKPRC001-CN-1 |
| Lockdown Bracket for Hand-held Remote Controllers | □ RCMKP1CB |
| Blue Diamond Sensor Extension Cable — 15 Ft. | □ C13-103 |
| Blue Diamond Alarm Extension Cable — 6.5 Ft. | □ C13-192 |
| Blue Diamond MultiTank — collection tank for use with multiple pumps | □ C21-014 |
| Blue Diamond Rubber Foot Pads | □ F10-010 |
| Mini Condensate Pump — 230 volt application | □ SI30-230 |
| MegaBlue Advanced Blue Diamond Condensate Pump w/ Reservoir & Sensor | □ X87-835 – 110 to 250V |
| MaxiBlue Advanced Blue Diamond Mini Condensate Pump w/ Reservoir & Sensor (110V) up to 48,000 BTU/H[recommended] | □ X87-711 – 110V |
| Advanced Blue Diamond Mini Condensate Pump w/ Reservoir & Sensor (208/230V) [recommended] | □ X87-721 – 208/230V |
| MicroBlue Blue Diamond Mini Condensate Pump (110/208/230V) up to 18,000 BTU/H | □ X85-003 |
| Fascia Kit for MicroBlue Pump – mounts the MicroBlue and sensor directly beneath the indoor unit | □ T18-016 |
| Refco Condensate Pump (100-240 VAC) up to 120,000 BTU/H | □ COMBI |
| Refco Condensate Pump (100-240 VAC) up to 120,000 BTU/H | □ GOBI-II |
| Drain Pan Level Sensor | □ SS610E |
| (30A/600V/UL) [fits 2″ X 4″ utility box] – Black | □ TAZ-MS303 |
| (30A/600V/UL) [fits 2″ X 4″ utility box] – White | □ TAZ-MS303W |
| Flexible Mini-Split Drain Hose | □ DRX-16 |
1 Requires MAC-334IF-E
2 Allows indoor units to connect to an MA Controller
| Air Outlet Guide | □ MAC-886SG-E |
| Drain Socket | □ MAC-860DS |
| Optional Defrost Heater | □ MAC-642BH-U1 |
| Hail Guard | □ HG-A7 |
| Outdoor Unit 3-1/4 inch Mounting Base (Pair) – Plastic | □ DSD-400P |
| Condensing Unit Mounting Pad 16″ x 36″ x 3″ | □ ULTRILITE1 |
| Outdoor Unit Stand — 12″ High | □ QSMS1201M |
| Outdoor Unit Stand — 18″ High | □ QSMS1801M |
| Outdoor Unit Stand — 24″ High | □ QSMS2401M |
| Heavy Duty Wall Mounting Bracket— Coated Steel | □ QSWB2000M-1 |
| Heavy Duty Wall Mounting Bracket — 316 Series Stainless Steel | □ QSWBSS |
| 10′ x 3/8″ x 10′ x 5/8″ Lineset (Twin-Tube Insulation) | □ MPLS385812T-10 |
| 15′ x 3/8″ x 15′ x 5/8″ Lineset (Twin-Tube Insulation) | □ MPLS385812T-15 |
| 30′ x 3/8″ x 30′ x 5/8″ Lineset (Twin-Tube Insulation) | □ MPLS385812T-30 |
| 50′ x 3/8″ x 50′ x 5/8″ Lineset (Twin-Tube Insulation) | □ MPLS385812T-50 |
| 65′ x 3/8″ x 65′ x 5/8″ Lineset (Twin-Tube Insulation) | □ MPLS385812T-65 |
| 100′ x 3/8″ x 100′ x 5/8″ Lineset (Twin-Tube Insulation) | □ MPLS385812T-100 |
DIMENSIONS: MSZ-HM24NA
Unit: inch

FORM# MSZ-HM24NA / MUZ-HM24NA – 202209
1340 Satellite Boulevard, Suwanee, GA 30024
Toll Free: 800-433-4822 www.mehvac.com
Specifications are subject to change without notice.
© 2022 Mitsubishi Electric Trane HVAC US LLC. All rights reserved.



















