POTTER VSA-S Vault Sound Alarm System

VSA-S VAULT SOUND ALARM SYSTEM
UL Listed
- Dimensions: 12 1/4″H x 8 3/8″W x 3 1/8″D 31,1cm H x 21,3cm W x 7,9 cm D
- Weight: 8 lbs. (3,6 kg.)
- Enclosure: 18 Gauge – Cold Rolled Steel Power Input: 12VAC, 20VA, 60Hz
- Operating Voltage: 6VDC
- Typical Current: 20mA
- Alarm Current: 25mA
- Contact Ratings: Alarm Relay and
Tamper Switch
1.0 Amp at 28VDC
0.1 Amp at 130VDC
Description
- The Model VSA is a sound detection system listed by Underwriters’ Laboratories, Inc. for the primary protection of reverberant and non-reverberant vaults such as bank and mercantile vaults.
- Where U.L. certifi cation is required, the VSA system must be installed in compliance with U.L. 681. Including at least one manual initiating device in the vault and connection of the VSA to a U.L. listed control unit.
- The VSA amplifi er unit is housed in a tampered steel cabinet with provisions for conduit connections.
- The standby battery provides in excess of 80 hours operation in the event of a power failure. An external low voltage plug-in transformer maintains the battery at a fully charged state.
- The amplifi er unit provides SPDT alarm relay contacts and provisions for 1 to 10 microphones to be connected into the supervised microphone circuit.
- The VSA contains a DC differential balance control which is adjusted so that the impedance of the external microphone circuit is balanced with the internal impedance of the differential circuit. The VSA will alarm if the external impedance of the microphone circuit increases or decreases.
- The microphones are available in surface mount (Model PSM) or fl ush mount (Model PSM-F). Audio signals detected in the vault enclosure are fed to the amplifi er unit where the sensitivity control determines the sound level necessary to alarm the unit.
- The Models PSM-T (surface mount) and PSM-FT (fl ush mount) are microphones with a built-in test sounding device. One PSM-T or PSM-FT must be used in every application.
- An alarm indicator light and test switch are provided for system testing by the subscriber. Terminals are provided for remote subscriber and/or central station testing.
- The Model APC (Accumulating Pulse Counter) is a plug-in option which allows the system to alarm after receiving a set number of pulses during a 10 minute time frame. The pulse counter has an adjustable range of 1 to 9 pulses (see page 4).
NOTICE
System must be balanced in order to set up in normal.
- Mount VSA amplifi er unit. (See Fig. 7 Suggested Wire Routing.)
- Connect BLACK battery lead to NEGATIVE battery post.
- Connect RED battery lead to POSITIVE battery post.
- Plug in transformer to unswitched 110VAC outlet and apply 12VAC to terminals 1 and 2 of VSA amplifi er.
- Mount microphones and wire according to installation drawing (see Figs. 1, 2, 3, and 4).
Note: A PSM-T or PSM-FT (microphone with built-in test sounding device) must be used in every installation. - See Fig. 1 for connection of remote test unit Model PTU-B and/or central station test unit if applicable.
Note: Install jumper across terminals 12 and 13 if PTU-B is not used. Maximum of 10 microphones on each VSA amplifi er. Microphone circuit not to exceed 1000 ft. of #22 gauge 2 conductor shielded cable. Maximum loop resistance 1000 ohms. Battery must be charged for 48 hrs. before putting unit into service.
BALANCE ADJUSTMENT
NOTICE
System must be fully installed with all wir es connected.
- Adjust sensitivity to full CCW position.
- Monitor balance adjustment jacks on circuit board with volt meter set on 10VDC scale.
- Jumper terminals 4 and 5 on VSA unit. Note meter reading (4.2 to 5.2 volts).
- Remove jumper from terminals 4 and 5.
- Adjust balance control to half of previous voltage reading (2.1 to 2.6 volts)
- If balance control will not adjust to this reading, check wiring for open shorts or grounds.
SENSITIVITY ADJUSTMENT
- Adjust the SENSITIVITY control to approximately 1/3 scale.
- Strike the vault surface with a plastic mallet and adjust the SENSITIVITY control to provide desired protection.
CAUTION: EXTREME CARE SHOULD BE EXERCISED SO THAT THE PROTECTED SURFACES ARE NOT MARRED OR DAMAGED WHILE PERFORMING THE ATTACK TESTS.
TESTING
- Pressing test button on front of VSA amplifi er applies test signal to sounding device in PSM-T or PSM-FT, causing the VSA to go into the alarm condition, which is indicated by a RED LED adjacent to the test button (RED LED will not indicate when sensitivity is set at 2 or below).
- If system will not test properly, increase sensitivity control setting until reliable manual tests are obtained.
- Verify that reliable tests are obtained at remote test unit Model PTU-B and/or from central station test unit if utilized.
- The subscriber must be instructed to test the system each time the alarm is set per instructions on front of VSA amplifi er unit.
TROUBLE SHOOTING
- VSA stuck in alarm – check balance, check battery, and check wiring. With wires removed from terminals 4,5,6, and 7, resistance across wires should meter:
4 and 7: 40-50 ohms for every microphone
5 and 6: less than 10 ohms - Can not balance circuit: check wiring, make sure all wires and microphones are connected to terminals 4,5,6, and 7.
INSTALLATION


notice
The system must be balanced after installation in order to set up in normal. See balance instructions on page 1.
VSA SOUND ALARM SURFACE-MOUNTED MICROPHONES
VSA SOUND ALARM FLUSH MOUNTED MICROPHONES
TYPICAL MICROPHONE LAYOUTS
MODEL APC ACCUMULATION PULSE COUNTER

- The Accumulation Pulse Counter, Model APC, is a plug-in option designed for applications where extraneous sound levels penetrating the vault environment may cause false alarms.
- The function of the APC option is to allow the system to detect and accumulate sound energy over a period of time and to cause an alarm condition when suffi cient energy has been detected. When used with the APC, the purpose of the VSA is to detect a single noise of high energy content. For this reason, the APC should be adjusted such that it is more sensitive than VSA. An amber LED on the APC indicates when a noise pulse has been counted.
- The pulse counter control is adjustable from 1 to 9. This adjustment determines the number of pulses required, during a 10 minute time frame, to alarm the unit.

- Point A – Pulse level exceeds counter threshold and accumulates.
- Point B – New 10 minute time frame starts. Previous pulses erased.
- Point C – Pulse below counter threshold does NOT accumulate.
- Point D – Pulse accumulates
- Point E – Pulse does NOT accumulate
- Point F and G – Pulses accumulate
- Point H – 10 minute time frame ends with 3 pulses accumulated.
If pulse counter was set at 3 or below, the unit would have alarmed. If pulse counter was set at 4 or above, no alarm would have been received and the 3 accumulated pulses erased.
IF A SINGLE PULSE EXCEEDS THE ALARM THRESHOLD THE UNIT WILL ALARM.
APC SENSITIVITY ADJUSTMENT
- Set the VSA sensitivity control to 0.
- Set the APC pulse counter switch to the desired number (1 thru 9).
- Install the APC and produce the minimum noise level which the APC is to detect. Adjust the APC sensitivity such that the yellow LED light blinks each time this noise is produced (disregard the red alarm light at this time).
- Unplug and remove the APC.
- Produce the minimum noise level at which the VSA should alarm and set the VSA sensitivity control such that the red alarm LED comes on each time this noise is produced. This noise level should be much more intense than that used to set the APC sensitivity.
- Re-install the APC.
TESTING
Slowly pulse the noise used to adjust the APC sensitivity control until the VSA indicates alarm (illuminated red LED) on the VSA unit. The counter in the APC is now reset to 0.
Slowly pulse this noise again. When the number of pulses equals the switch setting on the APC, the VSA will indicate alarm. This verifi es that both the VSA and APC are operating properly at the desired noise level.
ORDERING INFORMATION
VSA-S Vault Sound Alarm System (Surface Mount) consists of:
Qty. Comp. No. Description
- 1 2000103 VSA – Amplifi er with housing
- 1 5270080 Transformer 12V, 20VA
- 1 5130080 Battery 6V, 4 AH
- 2000008 PSM – Microphone (Surface Mount)
- (45 ohm impedance)
- 1 2000041 PSM-T – Microphone with
- Test Sounding Device
Additional Items Available:
Qty. Comp. No. Description
- 1 2000008 PSM – Microphone (Surface Mount)
- 1 2000034 PSM-F – Microphone (Flush Mount) (Includes back box)
- 1 5090008 Back Box for PSM-F
- 1 2020121 PTU-B – Remote Test Unit
- 1 5090033 Back Box for PTU-B
- 1 2009103 VSA – Less housing/PCB only
- 1 2000106 APC – Accumulation Pulse Counter
- * 2020130 HUB-M – Single Action hold up Button
- * 2020132 HUB-T – Double Action hold up Button
Note: * – At least one of either hold up button is required in the vault for U.L. installation.
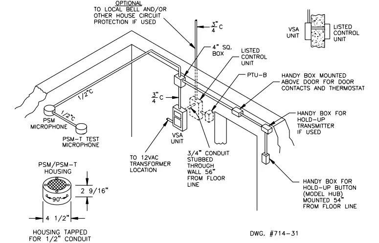
SUGGESTED WIRE ROUTING
- THIS DEVICE CONTAINS CLASS 2 POWER-LIMITED CONDUCTORS AND MAY CONTAIN CLASS 1 AND/OR “NON POWER-LIMITED CONDUCTORS. ALL CIRCUITS POWERED BY THIS UNIT ARE “CLAS 2 POWER-LIMITED”
- ALL FIELD WIRING CONNECTED TO THIS PANEL MUST MAINTAIN A SPACING OF 1/4 BETWEEN
- ALL CLASS 2 POWER-LIMITED CONDUCTORS AND CLASS1 AND/OR “NON POWER-LIMITED” CONDUCTORS.
- THE ENCLOSURE IS PROVIDED WITH MULTIPLE CABLE ENTRY OPENINGS So THAT. POWER-LIMITED CONDUCTORS CAN BE SEGREGATED FROM CLASS 1AND/OR NON POWER-LIMITED CONDUCTORS. NOTE: IF CLASS 2 POWER-LIMITED” cONDUCTORS ARE USED FOR THE RELAY TERMINALS AND/OR THE TAMPER CIRCUIT, THE “CLASS 2 POWER-LIMITED CONDUCTORS SHOULD USE THE CABLE ENTRY OPENINGS ON THE LEFT SIDE OF THE ENCLOSURE. CLASS 1” OR “NON POWER-LIMITED CONDUCcTORS SHOULD USE THE CABLE ENTRY OPENINGS ON THE RIGHT SIDE OF THE ENCLOSURE.























