POTTER UD-1000 Digital Alarm Communicator

Features
- Allows for communication to Monitoring Station
- Communicates using SIA-DCS or Ademco Contact ID Protocols
- For use with 6000 series and P series Addressable Panels
- Status LEDs indicate operation of DACT card
- Installs with ease behind main panel LCD display via User Interface bracket
- Device address is set by dipswitches located on DACT card
- Installation materials including 4 pin connector and screw are supplied with DACT card
- UUKL Listed with Smoke Control
Description
The UD-1000 Digital Alarm Communicator Transmitter (DACT) provides for up to two (2) phone lines for communication to a monitoring station. The UD-1000 communicates using the SIADCS or Ademco Contact ID protocols. When enabled, the DACT automatically monitors each phone line or voltage and has the ability to seize the line and connect with a remote receiver. Once the communication is complete, the DACT will hang up.
The DACT is provided with an RJ-11 jack for each phone line and a RJ-11 to RJ-33 cord. In order for the DACT to work properly, it must be installed on a plain old telephone service (POTS) line or equivalent deemed by the authority having jurisdiction. The DACT must be installed before any other equipment to ensure it can seize the phone line.
Phone lines are high voltage and should be run in a separate conduit from other circuits. The wire conductors connecting the DACT to the phone system should be 26 AWG or larger.
Technical Specifications
| Operating Voltage | 22.0-24.0V |
| Standby Current | 16ma |
| alarm Current | 23ma |
| Max UD-1000s per panel | 1 |
| Dimensions | 4”W * 6”H * 1-5/8”D |
| Operating Tempuratures | 0°C – 49°C (32°F- 120°F) |
| Operating Humidity Range | 10% – 93% @ 30°C (86°F) (non-condensing) |
| Mounting Options | In FaCp Behind keypad |
| Shipping Weight | 0.47 lbs |
Installation
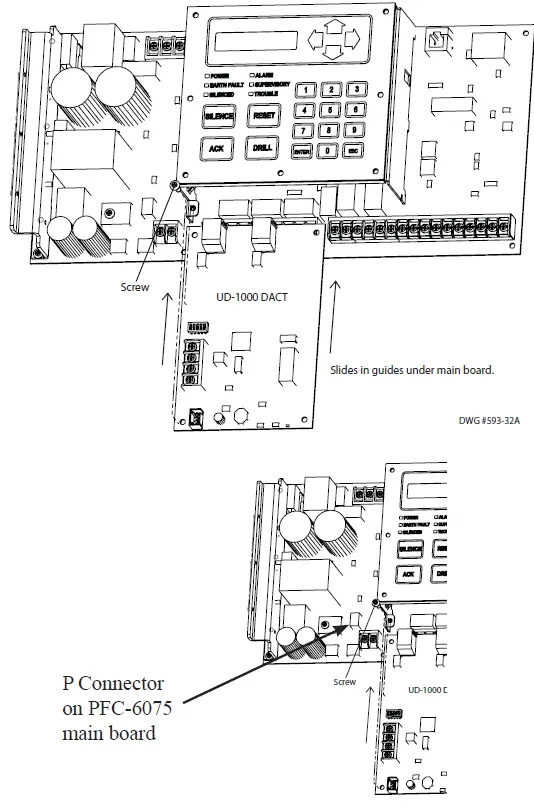
The UD-1000 DACT is connected to the control panel using the provided four-wire cable connection (P/N 5210514) between P4 and UD-1000 P1. The connection is power limited and supervised.
- Power system down.
- Slide the UD-1000 into the card guides located under the User Interface bracket.
- Secure the UD-1000 to the User Interface bracket using the provided #6-32×3/8” screw
- Install the provided four-wire conductor jumper between UD-1000 P1 and P4.
UD-1000 DACT Installation on PFC-6030/6075R

UD-1000 DACT Installation on PFC-6800/6200


Potter Electric Signal Company, LLC • St. Louis, MO •
Tech Support: 866-956-1211
Customer Service: 866-572-3005
www.pottersignal.com



















