
Please scan the QR code to get mobile app and more support to help the installation.
DS3 Series Microinverter
DS3 Series Microinverter Quick Installation Guide
Step 1. Verify the grid voltage to match with microinverter rating
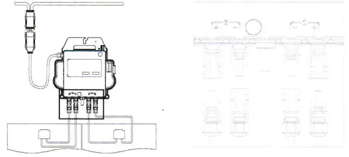
Step 2. The AC bus distribution
a. The AC bus is arranged at the proper position of the microinverter.
b. One end of the AC bus access junction box into power grid.
c. Wire the conductors of the AC bus:L – BROWN; N – BLUE;PE – YELLOW GREEN(European Standard);or Ll – BLACK; L2 – RED; PE – GREEN(American Standard). NOTE: Wiring colour code can be different according local regulation, check all the wires of the installation before connecting to the AC bus to be sure they match.Wrong cabling can damage irreparably the microinverters, such an issue is not covered by the warranty.
Step 3. Attach the APsystems Microinverters to the racking
NOTE: Do not place the microinverters (including DC and AC connectors) where exposed to the sun, rain or snow, even gap between modules. Allow a minimum of 3/4″(1.5cm) between the roof and the bottom of the microinverter to allow proper air flow.The racking of install inverter must be reliably grounding.
NOTE: Forbidden to hand carry the inverter through AC cable.

a. Mark the location of the microinverter on the rack, with respect to the PV module junction box or any other obstructions.
b. Mount one microinverter at each of these locations using hardware recommended by your module racking vendor.When install microinverter, grounding washer Must be facing the racking.

Step 4. Ground the system
a. There already has earth wire inside the AC cable, thus the grounding work could be done directly by it.
b. For those areas that have special requirements, the external grounding work could be done by grounding brackets.

Step 5. Connect the APsystems Microinverter to AC bus cable
Push the microinverter AC connector to the bus cable connector. Listen for the “Click”.
Best Practice: Use the Bus Cable Unlock Tool to split the connectors.

NOTE: AC connector interface as follows.

NOTE: Cover any unused connectors with Bus Cable Y-CONN Cap to protect the connectors.

Step 6. Install a Bus Cable End Cap at the end of AC bus cable

Step 7. Place the PV modules and connect each DS3 series to the PV modules

Step 8. Complete the APsystems installation map
a. Each APsystems Microinverter has removable serial number labels.
b. Peel labels off, affix one to the respective location on the APsystems installation map,and fill in 1,2 in the label below,according to the layout on the roof.
c. The other one serial number label, posted on the solar module frame is easy to view the position. d. After the completion of installation drawings sent to APsystems website. www.APsystems.com.

NOTE: Sequence of steps 1-8 can change for convenience of installation.
Step 9. Start the operation
a. Turn on the AC circuit breaker on each microinverter AC branch circuit.
b. Turn on the main utility-grid AC circuit breaker. Your system will start producing. Power after a two-minute waiting time.
Product information is subject to chancre without notice.!Please download manuals at www.APystems.com).
2021/06/21 Rev1.0




















