APsystems DS3-L Solar Microinverter Installation

The APsystems Microinverter is a photovoltaic grid-connected microinverter that allows for safe installation and operation. This installation manual contains important instructions to follow during installation and maintenance.
Important Safety Instructions
To ensure a safe installation and operation of the APsystems Microinverter, it is important to follow the safety instructions provided in this manual. The following symbols are used throughout the document to indicate dangerous conditions and important safety instructions:
- Danger – Indicates an imminently hazardous situation which, if not avoided, will result in death or serious injury.
- Warning – Indicates a potentially hazardous situation which, if not avoided, could result in death or serious injury.
- Caution – Indicates a potentially hazardous situation which, if not avoided, may result in minor or moderate injury.
- Note – Indicates important information or instruction.
APsystems Microinverter System Introduction
The APsystems Microinverter System is designed to convert DC power from solar panels into AC power for use in the home or business. The system includes one or more microinverters, which are installed on the roof or near the solar panels. The microinverters are connected to a gateway, which communicates with the monitoring system. 3. APsystems Microinverter DS3 Series Introduction The DS3 series microinverters are designed for use in the Philippines. They are compact, lightweight, and easy to install. The DS3 series microinverters are compatible with most solar panels and can be used in both residential and commercial applications.
APsystems Microinverter System Installation
Additional Accessories Supplied by APsystems
When installing the APsystems Microinverter System, additional accessories supplied by APsystems may be required. These accessories include:
- Y-cables
- AC branch circuit breakers
- Communication gateway
- Mounting hardware
Other Required Accessories Not Supplied by APsystems
In addition to the accessories supplied by APsystems, other accessories may be required for installation that are not supplied by APsystems. These accessories include:
- Solar panels
- AC wiring
- Roof mounting hardware
- Junction box
Installation Procedures
The installation procedures for the APsystems Microinverter System are outlined in detail in the installation manual. It is important to follow these procedures carefully to ensure a safe and effective installation. The procedures include:
- Preparing the installation site
- Installing the microinverters Connecting the microinverters to the solar panels and gateway
- Connecting the gateway to the monitoring system
- Testing the system
APsystems Microinverter System Operating Instructions
The operating instructions for the APsystems Microinverter System are also included in the installation manual. These instructions include:
- Turning the system on and off
- Monitoring the system
- Troubleshooting
Troubleshooting
If any issues arise with the APsystems Microinverter System, the troubleshooting section of the installation manual should be consulted. This section includes a list of common problems and their solutions.
Replace a Microinverter
If a microinverter needs to be replaced, the installation manual provides instructions on how to safely remove and replace the microinverter.
Technical Data
The technical data for the DS3 series microinverters are included in the installation manual. This data includes:
- Electrical specifications
- Mechanical specifications
- Environmental specifications
DS3 Series Microinverter Datasheet
The DS3 series microinverter datasheet provides additional technical information about the microinverters, including efficiency ratings, maximum power output, and input voltage range.
DS3 Series – Wiring Diagram
Sample Wiring Diagram – Single Phase
The wiring diagram for the DS3 series microinverters is included in the installation manual. A sample wiring diagram for a single-phase system is also provided to assist with installation.
APsystems Microinverter Installation Map
The APsystems Microinverter Installation Map visually represents the recommended installation configuration for the microinverters and gateway.
Conclusion
The APsystems Microinverter is a safe and effective solution for converting DC power from solar panels into AC power for use in the home or business. By following the instructions provided in the installation manual, users can ensure a safe and effective installation and operation of the microinverter system.
ALTENERGY POWER SYSTEM Inc. global.apsystems.com
APsystems Shanghai:
Rm.B305 No.188, Zhangyang Road, Pudong, Shanghai
200120,P.R.C
Tel: 021-3392-8205 EMAIL: [email protected]
Please scan this QRcodetohave access to our APPsandProducts information
Important Safety Instructions
This manual contains important instructions to follow during installation and maintenance of the APsystems Photovoltaic Grid-connected Microinverter. To reduce the risk of electrical shock and ensure a safe installation and operation of the APsystems Microinverter, thefollowing symbols appear throughout this document to indicate dangerous conditions and important safety instructions. Specifications are subject to change without notice. Please ensure you are usingthemostrecent update found at https://global.apsystems.com/resources/library/
Warning
This indicates a situation where failure to follow instructions may cause aserioushardware failure or personnel danger if not applied appropriately. Use extremecautionwhen performing this task.
NOTICE
This indicates information that is important for optimized microinverter operation. Follow these instructions closely
Safety Instructions
- Only qualified professionals should install and/or replace APsystems Microinverters.
- Perform all electrical installations in accordance with local electrical codes.
- Before installing or using the APsystems Microinverter, please read all instructions and cautionary markings in the technical documents and on the APsystems Microinverter system and the solar array.
- Do NOT disconnect the PV module from the APsystems Microinverter without first disconnecting the AC power.
- Be aware that the body of the APsystems Microinverter is the heat sink andcanreachatemperature of 80°C. To reduce risk of burns, do not touch the body of the Microinverter.
- Do NOT attempt to repair the APsystems Microinverter. If the microinverter is suspected to be faulty, please contact your local APsystems Technical Support to start troubleshooting and obtain a RMA (Return Merchandise Authorization) number tostartthe replacement process if needed. Damaging or opening the APsystems Microinverter will void the warranty.
- Caution!
When connecting a microinverter, it is recommended to first connect the ACBus cable to the ground then connect the AC connector to ensure proper earthing of the microinverter, then do the DC connections. When disconnecting a microinverter disconnect theACbyopening the branch circuit breaker first but maintain the protective earthingconductorinthe branch circuit breaker connected to the microinverter, then disconnect the DC inputs. - Please install AC breakers on the AC side of the inverter
Radio Interference Statement
EMC Compliance:The APsystems Microinverter can radiate radio frequency energy. If notinstalled and used in accordance with the instructions, it may cause harmful interference to radio communication. APsystems Microinverter complies with EMC regulations, which are designedtoprovidereasonable protection against harmful interference in a residential installation. Nonetheless, if the Microinverter does cause harmful interference to radio or television reception, you are encouraged to try to correct the interferences by one of moreof thefollowing measures:
- A) Reorient or relocate the receiving antenna
- B) Increase the separation between the Microinverter and the receiver
- C) Connect the Microinverter into an outlet on a circuit different fromthat towhichthereceiver is connected
If none of the recommendations suggested above bring significant improvement intermsofinterferences, please contact your local APsystems Technical Support.
Symbols in lieu of words 
APsystems Microinverter System Introduction
The APsystems Microinverter is used in utility-interactive grid-tied applications, comprisedofthree key elements:
- APsystems Microinverter
- APsystems Energy Communication Unit (ECU)
- APsystems Energy Monitor and Analysis (EMA) web-based monitoring and analysis system

This integrated system improves safety; maximizes solar energy harvest; increases system reliability, and simplifies solar system design, installation, maintenance, and management.
Safety with APsystems Microinverters
In a typical string inverter installation, PV modules are connected in series. The voltage adds up to reach high voltage value (from 600Vdc up to 1000Vdc) at the end of the string. This extreme high DC voltage brings a risk of electrical shocks or electrical arcs which could cause fire. When using an APsystems microinverter, PV modules are connected in parallel. The Voltageattheback of each PV module never exceeds PV modules Voc, which is lower than 60Vdcfor mostof PV modules used with APsystems microinverters. This low voltage is considered“safetotouch” by fire departments and negates the risk of electrical shock, electrical arcs and fire hazards.
APsystems Microinverters maximize PV energy production
each PV module has individual Maximum Peak Power Tracking (MPPT) control, which ensures that the maximum power is produced to the utility grid regardless of the performanceof theother PV modules in the array. When PV modules in the array are affected by shade, dust, different orientation, or any situation in which one module underperforms compared with the other units, the APsystems Microinverter ensures top performance fromthearraybymaximizing the performance of each module individually within the array.
More reliable than centralized or string inverters
The distributed APsystems Microinverter system ensures that no single point of system failure exists across the PV system. APsystems Microinverters are designed to operate at full powerat ambient outdoor temperatures of up to 65 deg C (or 149 F). The inverter case is designedfor outdoor installation and complies with the IP67 environmental enclosure rating.
Simple to install
APsystems Microinvertes are compatible with most of 60 and 72 cell PV modules or 120and144 half-cut cells PV modules. (In order to confirm compatibility of PVmodulewithAPsystems microinverter, feel free to check our online “E-decider” module compatibilitytool
or contact your local APsystems Technical Support). Installation requires a minimum number of accessories and microinverters offer a lot of versatility to the installer: microinverters can indeed be installed on different roofs with different orientations or with modules having different orientations. In the same way, end-users can extand their system whenever they want with microinverters.
Smart system performance monitoring and analysis
The APsystems Energy Communication Unit (ECU) is installed by simply pluggingit into any wall outlet and providing an Ethernet or Wi-Fi connection to a broadband router or modem. After installing and setting the ECU (see ECU Instruction Manual), the full networkofAPsystems Microinverters automatically report to the APsystems Energy Monitor and Analysis (EMA) web server.
APsystems Microinverter DS3 series Introduction
APsystems 3rd generation of dual microinverters are reaching unprecedented power outputsof 730VA or 880VA to adapt to today’s larger power module. With 2 independent MPPT, encrypted ZigBee signals, the DS3-L and DS3 benefit from an entirely newarchitectureandare fully backwards compatible with the QS1 and YC600 microinverters. The innovative and compact design make the product lighter while maximizing power production. The components are encapsulated with silicone to reduce stress ontheelectronics, facilitate thermal dissipation, enhance waterproof properties and ensure maximum reliability of the system via rigorous testing methods including accelerated life testing. A 24/7 energy access through apps or web based portal facilitate remote diagnosis and maintenance. The new DS3 series is interactive with power grids through a feature referredtoasRPC(Reactive Power Control) to better manage photovoltaic power spikes in the grid. With performance and an efficiency of 97%, a unique integration with 20%less components, APsystems DS3-L & DS3 are a game changer to residential and commercial PV
Key Product Feature:
- One microinverter connects to two modules
- Max output power reaching 730VA or 880VA
- Two input channels with independent MPPT
- Reactive Power Control
- Maximum reliability, Type 6
- Encrypted ZigBee Communication
- Safety protection relay integrated
APsystems Microinverter System Installation
A PV system using APsystems Microinverters is simple to install. Each Microinverter easily mounts on the PV racking, directly beneath the PV module(s). Low voltage DCwires connects from the PV module directly to the Microinverter, eliminating the risk of high DCvoltage. Installation MUST comply with local regulations and technical rules. Special Statement: we advise the installation of an RCD breaker only if requiredbythelocal an electrical code.
- Perform all electrical installations in accordance with local electrical codes.
- Be aware that only qualified professionals should install and/or replace APsystemsMicroinverters.
- . Before installing or using an APsystems Microinverter, please read all instructions and warnings in the technical documents and on the APsystems Microinverter system itself as well as on the PV array.
- . Be aware that installation of this equipment includes the risk of electric shock.
- Do not touch any live parts in the system, including the PV array, when the system has been connected to the electrical grid.
NOTICE
Even if not required by local electrical code, we strongly recommend to install surgeprotection devices in the dedicated AC box
Additional accessories supplied by APsystems
- AC Y3 Bus cable
- AC Y3 Bus Cable End Cap
- AC Y3 Bus Cable Y-CONN Cap
- AC Y3 Bus Cable Unlock Tool ECU
- AC connectors male/female
Other required accessories not supplied by APsystemsIn addition to your PV array and its associated hardware, you may need the following items:
- An AC connection junction box
- Mounting hardware suitable for module racking
- Sockets and wrenches for mounting hardware
Installation Procedures
Step 1 – Verify that grid voltage matches the microinverter rating
Step 2 – Y3 AC Bus Cable distribution
- a. Each connector drop of the AC Bus cable matches the position of the microinverter.
- b. One end of the AC bus cable is used to access the junction box into the power grid. Wire the conductors of the AC bus: L1 – BLACK ; L2 – RED;PE – GREEN.
WARNING
- Wiring color code can be different according to local regulations. Check all the wires of the installation before connecting to the AC bus to be sure they match. Improper cabling can irreparably damage the microinverters: such damage is not coveredbythewarranty
- Do NOT carry the microinverter by the AC cable. This may cause the ACcabletopartiallyor fully disconnect from the unit, resulting in no or poor operation.

Step 3 – Attach the APsystems Microinverters totheRacking
- a. Mark the location of the microinverter on the rack, with respect to the PVmodulejunction box or any other obstructions
- b. Mount one microinverter at each of these locations using hardware recommended by your module racking vendor

WARNING
Install the microinverters (including DC and AC connectors) under the PV module to avoid direct exposure to rain, UV or other harmful weather events. Allowa minimum of 1.5 cm (3/4’’) below and above the casing of the microinverter to allow proper air flow. The racking must be properly grounded as per local electrical code
Step 4 – Ground the system
Y3 AC Bus cable has an embedded PE wire: this might be sufficient to ensure proper grounding of the whole PV array. However, in areas with special grounding requirements, external grounding work may still be needed, using the grounding lug supplied with the Microinverter

Step 5 – Connect the APsystems microinverter toACbuscable
Insert the microinverter AC connector into the trunk cable connector. Make sure tohearthe“click” as a proof of robust connection
Best Practice: Use the AC Bus Cable Unlock Tool to disconnect the connectors.

NOTICE
Check the microinverter technical data page 19 to confirm the maximum allow able number of microinverters on each AC branch of the circuit.
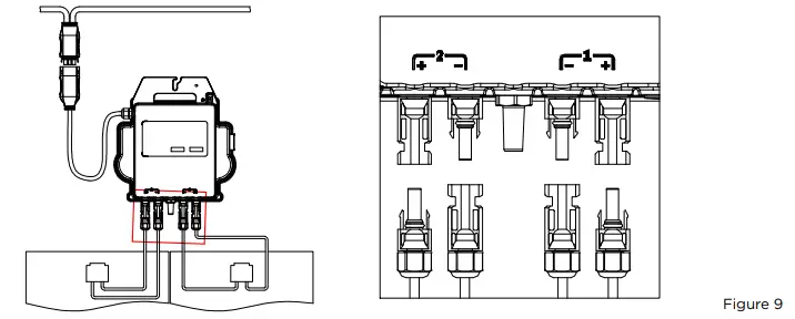
AC connector interface as from left to right
Cover any unused connectors with Bus Cable Y-CONN Cap to protect the unused connectors
Step 6 – Install a Bus Cable End Cap at the endof ACbuscable
Step 7 – Connect APsystems Microinverters tothePVModules
NOTICE
When plugging in the DC cables, the microinverter should immediately blink green ten times. This will happen as soon as the DC cables are plugged in and will show that the microinverter is functioning correctly. This entire check function will start andendwithin 10 seconds of plugging in the unit, so pay careful attention to these lights when connecting the DC cables.
WARNING
Double check to make sure all of the AC and DC wiring has been correctly installed. Ensure that none of the AC and/or DC wires are pinched or damaged. Make sure that all of the junction boxes are properly closed.

WARNING
Each PV panel must be carefully connected to the same channel. Make sure to not split positive and negative DC cables into two different input channels: microinverter will become damaged and warranty will not apply.
Step 8 – Connect APsystems Microinverters toGrid

NOTICE
- Please install bi-polar circuit breakers with proper rated current or according to the local regulation, which are mandatory to connect to grid.
- Leakage current breakers or AFCI/GFCI breakers are not recommended to install
Step 9 – AC Extension Cable
When AC extension cable is needed, users could connect the AC bus cable andACextensioncable in a junction box or use a pair of male/female AC connectors that APsystems provides as optional accessory
Step 10 – Complete the APsystems installation map.
- a. Each APsystems Microinverter has 2 removable serial number labels.
- b. Complete the installation map by sticking the ID label of each microinverter intheright location.
- c. The second serial number label, could be stuck on the solar module frame, whichcould help later to confirm the position of the microinverter without dismantlingthePV module

NOTICE
- . The layout of the microinverters’ serial number installation map is only suitable for typical installation.
- . Installation Map is available in the last page appendix of this manual.
- . Use ECU_APP (available in the EMA Manager) to scan the serial numbers on the map when setting up the ECU (see ECU instruction manual for more info).
APsystems microinverter system operating instructions
To operate the APsystems microinverter PV system:
- Turn ON the AC circuit breaker on each microinverter AC branch circuit.
- Turn ON the main utility-grid AC circuit breaker. Your system will start producing power after approximately one minute of waiting time.
- Microinverter data will be available in the EMA Manager APP or in the EMAwebportal. Alternatively, LED sequences could be an indicator of microinverters status (seesection6.1)
NOTICE
Once the ECU has been commissioned properly, the APsystems Microinverters will start to send performance data to the ECU. The time required for all of the Microinvertersinthe system to report to the ECU will vary depending on the number of Microinvertersinthe system.
Troubleshooting
Qualified personnel can use the following troubleshooting steps if the PVsystemdoesnotoperate correctly:
Status Indications and Error Reporting
Assuming they are easily accessible and visible, Operation LEDs can give a good indication the microinverters status
Start up LED
Ten short green blinks when DC power is first applied to the Microinverter indicate a successful Microinverter startup.
Operation LED
- Flashing Slow Green (5 sec. gap) – Producing power and communicating with
- Flashing Slow Red (5 sec. gap) – Not producing power
- Flashing Fast Green (2 sec. gap) – Not communicating with ECU over 60mins, but still producing power.
- Flashing Fast Red (2 sec. gap) – Not communicating with ECU over 60mins and not producing power.
- Steady Red – default, DC side ground fault protection, see 6.1.3
GFDI Error
A solid red LED indicates the Microinverter has detected a Ground Fault DetectorInterrupter (GFDI) error in the PV system. Unless the GFDI error has been cleared, theLEDwill remain red and the ECU will keep reporting the fault. Please contact your local
APsystems Technical Support
ECU_APP
APsystems ECU_APP (available in the EMA Manager APP) is the recommended tool down-site troubleshooting. When connecting the ECU_APP to the ECU hotspot (pleasecheckECU User Manual for more detailed information), installer can check every microinverter status (production, communication) but also ZigBee signal strength, grid profile and other insightful data helping the troubleshooting.
Installer EMA (web portal or EMA Manager APP)
Before going on-site for troubleshooting, the installer can also check all information remotely using his installer account, either on the web or using the EMA Manager APP(seeEMAManager APP User Manual for more detailed information). Having access to moduledata(DC, AC, voltages and currents) gives the first indication on potential issues.
Trouble Shooting Guide
Professional installers can also refer to our Troubleshooting Guide (https://global.apsystems.com/resources/library/, section libraries)for more in-depth guidelines on how to troubleshoot and fix PV installations powered by APsystemsmicroinverters.
APsystems Technical Support
The APsystems local Technical Support team is available to support professional installers in becoming familiar with our products and to troubleshoot installations when needed
Do not attempt to repair APsystems Microinverters. Please contact your local APsystems Technical Support.
- Never disconnect the DC wire connectors under load. Ensure that no current is flowing in the DC wires prior to disconnecting.
- . Always disconnect AC power before disconnecting the PV module wires fromtheAPsystems Microinverter.
- The APsystems Microinverter is powered by PV module DC power. AFTER disconnecting the DC power, when reconnecting the PV modules to the microinverter, be sure to watch for the quick red light followed by ten short green LED flashes.
Maintenance
APsystems microinverters do not require any specific regular maintenance
Replace a microinverter
Follow the procedure to replace a failed APsystems Microinverter
- A. Disconnect the APsystems Microinverter from the PV Module, in the order shownbelow:
- Disconnect the AC by turning off the branch circuit breaker.
- . Disconnect the inverter AC connector from the AC Bus.
- . Disconnect the PV module DC wire connectors from the microinverter.
- Remove the Microinverter from the PV array racking.
- B. Install a replacement Microinverter to the rack. Remember to observe the flashing green LED light as soon as the new Microinverter is plugged into the DC cables.
- C. Connect the AC cable of the replacement Microinverter to the AC bus.
- D. Close the branch circuit breaker, and verify proper operation of the replacementMicroinverter.
- E. Update the microinverter in the EMA Manager through the “Replace” functional update the system’s map with new serial number labels.
Technical Data
- Be sure to verify that the voltage and current specifications of your PV module are compatible with the range allowed on APsystems Microinverter. Please check the microinverter datasheet.
- DC operating voltage range of the PV module must be within allowable input voltage range of the APsystems Microinverter.
- The maximum open circuit voltage of the PV module must not exceed the specified maximum input voltage of the APsystems.
DS3 series Microinverter Datasheet


- Nominal voltage/frequency range can be extended beyond nominal if required by the utility.
- Limits may vary. Refer to local requirements to define the number of microinverters per branch in your area.
- The inverter may enter to power de-grade mode under poor ventilation
and heat dissipation installation environment. - Recommend no more than 80 inverters register to one ECU for stable
communication. - To be eligible for the warranty, APsystems microinverters need to be monitored via the EMA portal. Please refer to our warranty T&Cs available on global.APsystems.com.
© All Rights Reserved
Specifications are subject to change without notice please ensure you are using the most recent update found at web : global.APsystems.com
DS3 series – Wiring Diagram
Sample Wiring Diagram – Single Phase

APsystems Microinverter Installation Map
The APsystems Installation Map is a diagram of the physical location of each microinverter in your PV installation. Each APsystems microinverterhastwo serial number labels. Peel the one label and affix it to the respective location on the APsystems installation map. Installation Map Template




















