TRANE 4WCC4024E1000A Single Packaged Heat Pump User Manual

SAFETY SECTION
Important — This document contains a wiring diagram, a parts list, and service information. This is customer property and is to remain with this unit. Please return to service information pack upon completion of work.
WARNING
HAZARDOUS VOLTAGE!
Failure to follow this Warning could result in property damage, severe personal injury, or death.
Disconnect all electric power, including remote disconnects before servicing. Follow proper lockout/tagout procedures to ensure the power cannot be inadvertently energized.
WARNING
SAFETY AND ELECTRICAL HAZARD!
Failure to follow this Warning could result in property damage, severe personal injury, or death.
These servicing instructions are for use by qualified personnel only. To reduce the risk of electrical shock, do not perform any servicing other than that contained in these operating instructions unless you are qualified to do so.
CAUTION
GROUNDING REQUIRED!
Failure to inspect or use proper service tools may result in equipment damage or personal injury. Reconnect all grounding devices. All parts of this product that are capable of conducting electrical current are grounded. If grounding wires, screws, straps, clips, nuts, or washers used to complete a path to ground are removed for service, they must be returned to their original position and properly fastened.
WARNING
UNIT CONTAINS R-410A REFRIGERANT!
Failure to use proper service tools may result in equipment damage or personal injury. R-410A operating pressure exceeds the limit of R22. Proper service equipment is required. Service using only R-410A Refrigerant and approved POE compressor oil.
WARNING
SAFETY HAZARD!
Operating the unit without the access panels properly installed may result in severe personal injury or death.
Do not operate the unit without the evaporator fan access panel or evaporator coil access panel in place.
WARNING
WARNING!
This product can expose you to chemicals including lead, which are known to the State of California to cause cancer and birth defects or
other reproductive harm. For more information go to www.P65Warnings.ca.gov.
Important: Wear appropriate gloves, arm sleeve protectors and eye protection when servicing or maintaining this equipment.
Important: Air filters and media wheels or plates shall meet the test requirements in UL 900.
Introduction, Unit Inspection and Specification
Introduction
Read this manual carefully before attempting to install, operate, or perform maintenance on this unit. Installation and maintenance should be performed by qualified service technicians only. This unit is listed by Underwriters Laboratory.
Packaged units are designed for outdoor mounting with a vertical condenser discharge. They can be located either at ground level or on a roof in accordance with local codes. Each unit contains an operating charge of refrigerant as shipped.
Extreme mounting kits are available for slab (BAYEXMK003A), utility curb (BAYEXMK002B) and perimeter curb (BAYEXMK001A) mountings.
Inspect Shipment
- Check for damage after the unit is unloaded. Report promptly to the carrier any damage found to the unit. Do not drop the unit.
Important: To prevent damage to the sides and top of the unit when hoisting, use “spreader bars” see, “Rooftop Installation — No Curb/ Frame,” p. 12.
- Check the unit’s nameplate to determine if the unit is correct for the intended application. The power supply must be adequate for both the unit and all accessories.
- Check to be sure the refrigerant charge has been retained during shipment. Remove the Compressor access panel to access the 1/4″ flare pressure taps.
- If this unit is being installed on a curb, verify that the correct curb is provided with the unit.
• 4WCC4024–036 use model BAYCURB050A,
• 4WCC4042–060 use model BAYCURB051A - If the unit is being hoisted, accessory kit BAYLIFT002A is recommended. It includes a kit of four (4) lifting lugs and instructions.
Notes:
- If practical, install any internal accessories to the unit at the shop.
- The packaged units have been evaluated in accordance with the Code of Federal Regulations, Chapter XX, Part 3280 or the equivalent. “SUITABLE FOR MOBILE HOME USE.”
Product Specification

(a) Rated in accordance with AHRI Standard 210/240.
(b) Rated in accordance with D.O.E. test procedure.
(c) Sound Power values are not adjusted for AHRI 270–95 tonal corrections.
(d) Calculated in accordance with currently prevailing Nat’l Electrical Code.
(e) Standard Air — Dry Coil — Outdoor.
(f) Standard Air — Dry Coil — Indoor
(g) Filters must be installed in return air stream. Square footages listed are based on 300 f.p.m. face velocity. If permanent filters are used size per manufacturer’s recommendation with a clean resistance of 0.05” W.C.
Charging in Cooling above 55°F OD Ambient
If servicing the equipment requires system evacuation, then re-charge the system to the weight specified on the nameplate. Verify the system subcooling using the Subcooling Charging Table and, if necessary, adjust the charge using the procedure below.
- For best results — the indoor temperature should be kept between 70°F to 80°F. Add system heat if needed.
- Whenever charge is removed or added, the system must be operated for a minimum of 20 minutes to stabilize before accurate measurements can be made.
- Measure Liquid Line Temperature and Refrigerant Pressure at service valved in the compressor compartment.
- Locate your liquid line temperature in the left column of the table, and the intersecting liquid line pressure under the subcool value column, Add refrigerant to raise the pressure to match the table, or remove refrigerant to lower the pressure. Again, wait 20 minutes for the system conditions to stabilize before adjusting charge again.
Note: System charge shall never be more than 110% or less than 90% of nameplate charge. If specified subcooling cannot be achieved within those charge bounds, contact your Field Service Representative. - When system is correctly charged, you can refer to System Pressure Curves to verify typical performance.
CHARGING BELOW 55°F
Evacuate system and weigh in nameplate charge or use factory charge. Correct subcooling may be verified when the temperature is above 55°F.

Charging Below 55°F OD Ambient in Heating Only
- The Subcool Charging Method in cooling is NOT recommended below 55°F outdoor ambient.
- The only recommended method of charging at outdoor ambients below 55°F, is to weigh in the charge in the heating mode.
- Use Nameplate charge.
- Check liquid line temperature and pressure (at the OD valves) to obtain a minimum of the subcooling shown in the subcooling table.
- Add charge if the minimum subcooling as shown in the table is not obtained with the nameplate charge.
- It is important to return in the spring or summer to accurately charge the system in the cooling mode at outdoor ambients above 55°F.
Determine Unit Clearances
Figure 1. Space on Sides Requirements

Figure 2. Bottom and Back Duct Openings

Review Location and Recommendation Information
Horizontal Airflow Units
- Location of the unit must allow service clearance around it to ensure adequate serviceability, maximum capacity, and peak operating efficiency.
- These units are designed for outdoor installation.
They may be installed directly on a slab, wood flooring, or on Class A, B, or C roof covering material. The discharge air from the condenser fans must be unrestricted for a minimum of 3 feet above the unit. - Check the handling facilities to ensure the safety of personnel and the unit(s).
- The unit must be mounted level for proper drainage of water through the drain holes in the base pan.
- The unit should not be exposed to direct roof water runoff.
- Flexible duct connectors must be of a flame retardant material. All duct work outside of the structure must be insulated and weatherproofed in accordance with local codes.
- Holes through exterior walls or roof must be sealed in accordance with local codes.
- All fabricated outdoor ducts should be as short as possible.
Clearances
- The recommended clearances for single-unit installations are illustrated in “Determine Unit Clearances,” p. 7.
- Any reduction of the unit clearances indicated in these figures may result in condenser coil starvation or the recirculation of warm condenser air. Actual clearances, which appear to be inadequate should be reviewed with a local engineer.
- See the unit’s nameplate for the absolute minimum clearance between the unit and any combustible surfaces.
Down Airflow Units
- Location of the unit must allow service clearance around it to ensure adequate serviceability, maximum capacity, and peak operating efficiency.
- Refer to the Installation section for instruction on converting the supply and return airflow covers to down airflow.
- The field assembled Roof Mounting Curb (BAYCURB050A or BAYCURB051A) or a field fabricated curb should be in place before the unit is hoisted to the roof top.
The Roof Mounting Curb (frame) must be installed on a flat, level section of the roof (maximum of 1/4″ per foot pitch) and provide a level mounting surface for the unit. Also, be sure to provide sufficient height above the roof to prevent water from entering the unit. - Be sure the mounting curb spans structural members (trusses) of the roof, thereby providing sufficient support for the weight of the unit, the curb, the duct(s), and any factory or field installed accessories.
- The unit must be mounted level for proper drainage of water through the drain holes in the base pan.
- Be sure the hole in the structure for the ducts is large enough to accommodate the fabricated ducts and the insulation surrounding them. Flexible duct connectors must be of a flame retardant material.
All duct work outside of the structure must be insulated and weatherproofed in accordance with local codes. - Holes through exterior walls or roof must be sealed in accordance with local codes.
- These units are design certified for outdoor installation. They may be installed directly on a slab, wood flooring, or on Class A, B, or C roof covering material. The discharge air from the condenser fans must be unrestricted for a minimum of 3 feet above the unit.
- Check the handling facilities to ensure the safety of personnel and the unit(s).
Clearances
- The recommended clearances for single-unit installations are illustrated in “Determine Unit Clearances,” p. 7.
- Any reduction of the unit clearances indicated in these figures may result in condenser coil starvation or the recirculation of warm condenser air. Actual clearances, which appear to be inadequate should be reviewed with a local engineer.
- See the unit’s nameplate for the absolute minimum clearance between the unit and any combustible surfaces.
Unit Installation
Note: The factory ships this unit for horizontal installation.
Ground Level Installation
To Install the unit at ground level:
- Place the unit on a pad the size of the unit or larger. The unit must be mounted level for proper drainage of water through the holes in the base pan. To attach the unit securely to the slab, use extreme mounting kit, BAYEXMK003A.
The pad must not come in contact with the structure. Be sure the outdoor portion of the supply and return air ducts are as short as possible.
Unit requires vibration support as indicated in Table 1, p. 12 - Location of the unit must allow service clearance around it. Clearance of the unit must be given careful consideration. See “Determine Unit Clearances,” p. 7.
Note: Any reduction of the unit clearances indicated in these illustrations may result in condenser coil starvation or the recirculation of warm condenser air. Actual clearances, which appear to be inadequate should be reviewed with a local engineer.
Important: A minimum 0″ clearance to combustible material shall be maintained on air outlet duct. - Attach the supply and return air ducts to the unit as explained in the ductwork Installation section.
- Flexible duct connectors must be of a flame retardant material. Insulate any ductwork outside of the structure with at least two (2) inches of insulation and weatherproof. There must be a weatherproof seal where the duct enters the structure.
- Do not expose the unit to direct roof water runoff.
- Seal all holes through exterior walls in accordance with local codes.
- Continue with the following installation sections to complete the installation: Ductwork, Filter and Electrical Wiring.
Rooftop Installation — Curb Mounting
Convert Horizontal Airflow to Down Airflow
The factory ships the unit for horizontal airflow.
Perform this procedure to convert it to down airflow:
- Remove the three (3) sheet metal screws securing the supply air cover and the four (4) sheet metal screws securing the return air cover from the base of the unit. Remove the covers from the base.
- Place the covers over the horizontal supply and return openings (painted side out). Align the screw holes, and secure using the same screws removed in step 1.
Install Full Perimeter Roof Mounting Curb
- Verify that the roof mounting curb is correct for the unit. There are two curbs depending on the unit cabinet sizes:
• 4WCC4024–036 use model BAYCURB050A,
• 4WCC4042–060 use model BAYCURB051A - Assemble and install the curb following the instructions in the Installer’s Guide included with the appropriate curb.
Figure 3. Typical Ground Level Application
Note: Use the extreme mounting kit, BAYEXMK002AA, to secure the unit to the slab.

Figure 4. Converting Horizontal to Down Airflow

Lifting and Rigging
WARNING
IMPROPER UNIT LIFT!
Failure to properly lift unit could result in death or serious injury or possible equipment or propertyonly damage.
Test lift unit approximately 24 inches to verify proper center of gravity lift point. To avoid dropping of unit, reposition lifting point if unit is not level.
Important: Do not lift the unit without test lifting for balance and rigging. Do not lift the unit in windy conditions or above personnel. Do not lift the unit by attaching clevis, hooks, pins, or bolts to the unit casing, casing hardware, corner lugs, angles, tabs, or flanges. Failure to observe these warnings may result in equipment damage.
- Before preparing the unit for lifting, check the unit dimension drawings for center of gravity for lifting safety (“Determine Unit Clearances,” p. 7). Because of placement of internal components, the unit’s weight may be unevenly distributed. Approximate unit weights are also provided in the unit drawings.
Note: Unit rigging and hoisting requires accessory kit BAYLIFT002BA. It includes a kit of four (4) lifting lugs. - Insert the four lifting lugs in the openings provided in the drip lip on each end of the unit. A tap or jerk to the lug will overcome the interference that arises due to the dimple on the lug.
- When hoisting the unit, be sure that a proper method of rigging is used. Use slings and spreader bars for protection during lifting. Always test-lift the unit to determine the exact unit balance and stability before hoisting it to the installation location.
- When the curb and air ducts have been properly installed, the unit is ready to be hoisted to the roof and set in position.
Important:
- To prevent damage to the sides and top of the unit when hoisting use “spreader bars”.
- The unit must be lowered into position. The P.V.C. rubber tape on the curb flange permits the unit to be repositioned if required without destroying the P.V.C. rubber seals affixed to the mounting curb.
Placing the Unit on the Mounting Curb
- The unit is designed with a perimeter drip lip that is lower than the unit base pan, see Table 2, p. 13.
- Position the unit drip lip down over and in contact with the outside corner of the curb.. Continue to lower the unit on top of the curb, with the unit drip lip astraddle, and in contact with, both the end and side rail of the curb. The unit should now rest on top of the curb. Use the extreme mounting kit, BAYEXMK001A, to add additional hold down strength to the mounting.
Note: The ductwork is installed as part of the curb installation. Do not attach ductwork to the unit and lower the unit with ductwork onto the curb.
Table 1. Vibration Isolators/Snow Feet Locations

Rooftop Installation — Frame Mounting
For rooftop applications using field fabricated frame and ducts use the following procedure:
- Locate and secure the frame to the roof by bolting or welding. Frame must provide adequate center support via a cross member centrally located channel rail. See Table 5, p. 14. Vibration isolators should be installed as indicated in Table 1, p. 12, adjust as necessary for your frame. The isolators must be placed on base pan, not drip lip. Add flashing as required. Flashing must conform to local building codes.
- Prepare the hole in the roof in advance of installing the unit.
- Secure the horizontal or down airflow ducts to the roof. Refer to the previous Convert from Horizontal Airflow to Down Airflow section if conversion is needed.
- All fabricated outdoor ducts should be as short as possible.
- Place the unit on the frame.
- The unit must be mounted level for proper drainage of water through the holes in the base pan.
- Secure the unit to the frame.
- Insulate any ductwork outside of the structure with at least two (2) inches of insulation and then weatherproof. There must be a weatherproof seal where the duct enters the structure.
- The unit should not be exposed to direct roof water runoff.
- Flexible duct connectors must be of a flame retardant material. All duct work outside of the structure must be insulated and weatherproofed in accordance with local codes.
- Access and service clearances for the unit must be given careful consideration when locating the duct entrance openings. “Determine Unit Clearances,” p. 7 provide unit dimensions.
- Continue with the following installation sections to complete the installation: Ductwork, Filter, and Electrical Wiring.
Rooftop Installation — No Curb/ Frame
For roof top applications using field fabricated ducts and sleeper rails rather than a curb or frame, use the following procedure:
- Locate and secure the sleeper rails to the roof by bolting (three (3) rails required). One on each end to support the edges of the unit and one across the center of the unit. The center rail must run inside both drip lips. Vibration isolators should be installed, adjust as necessary for your sleeper rails.
The isolators must be placed on base pan, not drip lip. Add flashing as required. Flashing must conform to local building codes. - Prepare the hole in the roof in advance of installing the unit.
- Secure the horizontal or down airflow ducts to the roof. Refer to the previous Convert from Horizontal Airflow to Down Airflow section if conversion is needed.
- All fabricated outdoor ducts should be as short as possible.
- Place the unit on the rails.
- The unit must be mounted level for proper drainage of water through the holes in the base pan.
- Secure the unit to the rails.
- Insulate any ductwork outside of the structure with at least two (2) inches of insulation and then weatherproof. There must be a weatherproof seal where the duct enters the structure.
- No exposure to direct roof water runoff.
- Flexible duct connectors must be of a flame retardant material. All duct work outside of the structure must be insulated and weatherproofed in accordance with local codes.
- Access and service clearances for the unit must be given careful consideration when locating the duct entrance openings. “Determine Unit Clearances,” p. 7 provide unit dimensions.
- Continue with the following installation sections: Ductwork, Filter and Electrical Wiring.
Table 2. Lifting and Rigging

Table 3. Curb Dimensions

Table 4. Typical Rooftop Horizontal Airflow Application with Frame

Table 5. Typical Rooftop Down Airflow Application with Frame

Ductwork Installation
Attaching Downflow Ductwork to Roof Curb
Supply and return air flanges are provided on the roof curb for easy duct installation. All ductwork must be run and attached to the curb before the unit is set into place.
Attaching Downflow Ductwork to Roof Frame
Follow these guidelines for ductwork construction:
Connections to the unit should be made with three (3) inch canvas connectors to minimize noise and vibration transmission.
Elbows with turning vanes or splitters are recommended to minimize air noise and resistance.
The first elbow in the ductwork leaving the unit should be no closer than two (2) feet from the unit, to minimize noise and resistance.
To prevent leaking, do not attach the ductwork to the bottom of the unit base. Refer to the bottom example in the figure below.
Figure 5. Attaching Down Airflow Ductwork

Attaching Horizontal Ductwork to Unit
All conditioned air ductwork should be insulated to minimize heating and cooling duct losses. Use a minimum of two (2) inches of insulation with a vapor barrier. The outside ductwork must be weatherproofed between the unit and the building.
When attaching ductwork to a horizontal unit, provide a flexible watertight connection to prevent noise transmission from the unit to the ducts. The flexible connection must be indoors and made out of heavy canvas.
Note: Do not draw the canvas taut between the solid ducts.
Figure 6. Attaching Horizontal Airflow Ductwork

Condensate Drain Piping
A 3/4-inch female NPT condensate drain connection is provided on the evaporator access panel end of the unit. Provide a trap and fill it with water before starting the unit to avoid air from being drawn through. Follow local codes and standard piping practices when running the drain line. Pitch the line downward away from the unit. Avoid long horizontal runs. See Figure 7, p. 15.
Note: Do not use reducing fittings in the drain lines.
The condensate drain must be:
- Made of 3/4” pipe size
- Pitched 1/4” per foot to provide free drainage to convenient drain system
- Trapped
- Must be connected to a closed drain system unless the trap is properly vented
Figure 7. Typical Condensate Drain Piping

Air Filter Installation
The packaged unit requires an air filter. The unit does not come with a factory installed filter rack in it, however, two filter frame accessories are offered that will allow the installation of a filter within the unit, BAYFLTR101 & BAYFLTR201. Otherwise a field supplied filter rack must be installed by the installer in the return duct work. Refer to table for field supplied filter racks.
Table 6. Filter Sizes (field supplied filter rack)

(a) Filters must be installed in the return air system. The above square footages are based on 300 F.P.M. face velocity. If permanent filters are used, size per mfg. Recommendation with clear resistance of 0.05”WC.
Important: Air filters and media wheels or plates shall meet the test requirements in UL 900.
Electrical Wiring
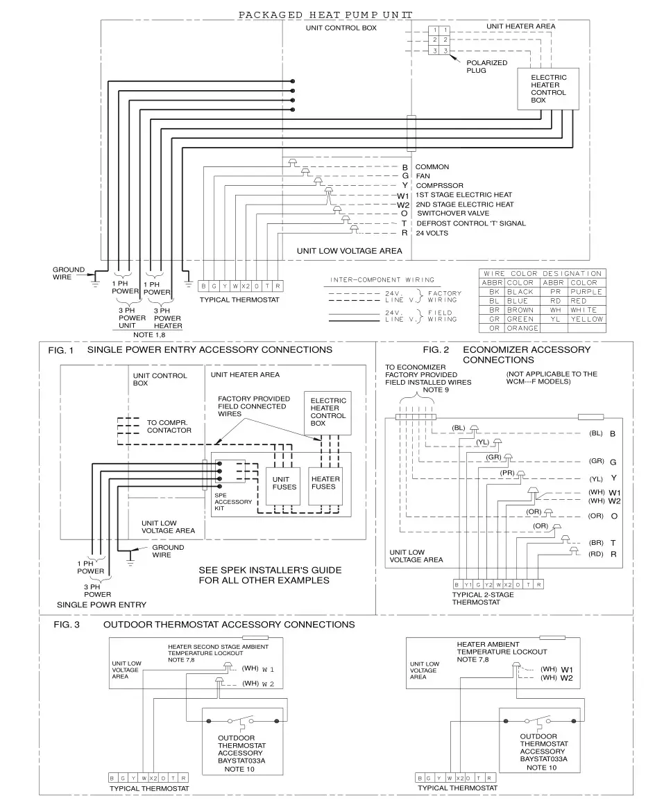
Note: This unit is factory wired for 230V. See wiring diagram for 208V conversion.
Electrical Connections
Electrical wiring and grounding must be installed in accordance with local codes or, in the absence of local codes, with the National Electrical Code ANSI/NFPA 70, Latest Revision.
Electrical Power
It is important that proper electrical power be available for the unit. Voltage variation should remain within the limits stamped on the unit nameplate.
Disconnect Switch
Provide an approved weatherproof disconnect within close proximity and within sight of the unit.If disconnect must be mounted to the cabinet, the location shown in Table 9, p. 16 should be the only one considered.
Over Current Protection
The branch circuit feeding the unit must be protected as shown on the unit’s rating plate.
Power Wiring
The power supply lines must be run in weather-tight conduit to the disconnect and into the side of the unit control box. Provide strain relief for all conduit with suitable connectors.
Provide flexible conduit supports whenever vibration transmission may cause a noise problem within the building structure.
- Remove the Control/Heat access panel. Pass the power wires through the Power Entry hole in the end of the unit. See Table 7, p. 16.
- Connect the high voltage wires to the appropriate contactor terminals. Single phase units use a two (2) pole contactor and three phase units use three
- pole contactor. Connect the ground to the ground lug on the chassis. See Table 9, p. 16.
Ensure all connections are tight.
Table 7. Power Wiring

Table 8. Power Connections

Table 9. Mounted Disconnect Location

Table 10. Field Wiring Diagram

Notes:
- Fused disconnect size, power wiring and grounding of equipment must comply with codes..
- Be sure power supply agrees with equipment and heater nameplate.
- Low voltage wiring to be 18 AWG minimum conductor.
- See heater nameplate for current rating of heater used.
- See unit and heater diagram for electrical connection details.
- If electric heater accessory is not installed, omit the electric heater, associated power wires and the “W” and “X2” thermostat wires.
- Fig 3 demonstrates connection of the outdoor thermostat accessory only. For further unit connection details refer to the other figures.
- The W1 wire is first stage electric heat. If the electric heater accessory has two heating stages, the W2 wire is second stage electric heat..
- When the BAYECON101A/102A or BAYECON200A/201A economizer is installed, the BAYRLAY004A relay accessory kit is required to interface the economizer to the heat pump for proper system operation.
- The BAYSTAT033A outdoor thermostat accessory kit contains a thermostat and a relay. The relay is not required to be used in this application.
Control Wiring (Class II)
Low voltage control wiring should not be run in conduit with power wiring unless Class 1 wire of proper voltage rating is used. Route the thermostat cable or equivalent single leads of No. 18 AWG colored wire from the thermostat subbase terminals through the rubber grommet on the unit. See “Determine Unit Clearances,” p. 7 for the control entry (24V Entry) location. Make connections as shown on the wiring diagrams.
Do not short thermostat wires since this will damage the control transformer.
Refer to the table below for recommended wire sizes and lengths for installing the unit thermostat. The total resistance of these low voltage wires must not exceed one (1) ohm. Any resistance in excess of 1 ohm may cause the control to malfunction because of the
excessive voltage drop.
Table 11. Thermostat Wire Size and Maximum Length

Important: Upon completion of wiring, check all electrical connections, including factory wiring within the unit, and make sure all connections are tight. Replace and secure all electrical box covers and access panels before leaving the unit or turning on the power to the unit.
Unit Startup
Pre-Start Quick Checklist
- Is the unit properly located and level with the proper clearances? See, “Determine Unit Clearances,” p. 7.
- Is the duct work correctly sized, run, taped, insulated, and weatherproofed with proper unit arrangement as shown in the ductwork installation section?
- Is the condensate line properly sized, run, trapped, and pitched and shown in the Condensate Drain Piping section?
- Is the filter of the correct size and quantity? Is it clean and in place? See Air Filter Installation section.
- Is the wiring properly sized and run according to the unit wiring diagram?
- Are all the wiring connections, including those in the unit tight?
- Has the unit been properly grounded and fused with the recommended fuse size?
- Is the thermostat well located, level, and correctly wired? See Electrical Wiring section
- Have the air conditioning systems been checked at the service ports for charge and leak tested if necessary?
- Do the condenser fan and indoor blower turn free without rubbing and are they tight on the shafts?
- Has all work been done in accordance with applicable local and national codes?
- Are all covers and access panels in place to prevent air loss and safety hazards?
Starting the Unit in Cooling Mode
Note: See the section on Sequence of Operation for a description of the cooling operating sequence.
To start the unit in the cooling mode, set the comfort control to COOL and to a setting below room temperature. The condenser fan motor, compressor and evaporator fan motor will operate automatically. Continuous fan mode during Cooling operation may not be appropriate in humid climates. If the indoor air exceeds 60% relative humidity or simply feels uncomfortably humid, it is recommended that the fan only be used in the AUTO mode.
Operating Pressure Checks
After the unit has operated in the cooling mode for a short period of time, install pressure gauges on the gauge ports of the discharge and suction line valves (behind the Compressor access panel). Check the suction and discharge pressures and compare them to the normal operating pressures provided in the unit’s SERVICE FACTS.
Note: Do not use the PRESSURE CURVES from the unit’s SERVICE FACTS to determine the unit refrigerant charge. The correct charge is shown on the unit nameplate. To charge the system accurately, weigh in the charge according to the unit nameplate and check subcooling against the Subcooling Charging Table in the SERVICE FACTS.
Voltage Check
With the compressor operating, check the line voltage at the unit (contactor is located behind the Control access panel). The voltage should be within the range shown on the unit nameplate. If low voltage is encountered, check the size and length of the supply line from the main disconnect to the unit. The line maybe undersized for the length of the run.
Cooling Shut Down
Set the comfort control to OFF or to a setting above room temperature.
Important: De-energize the main power disconnect ONLY when servicing the unit. Power may be required to keep the heat pump compressor warm and to boil off refrigerant in the compressor.
Starting the Unit in Heating Mode
Note: See the section on Sequence of Operation for a description of the heat pump heating operating sequence.
Check that all grills and registers are open and all unit access panels are closed before start-up.
Set the comfort control above room temperature until achieving a first stage call for heat and set the fan to AUTO or ON.
Heating Shut Down
Set the comfort control to OFF or at a setting below room temperature.
Sequence of Operation
General
Operation of the unit heating and cooling cycles is automatic when the system is in the HEAT or COOL functions (the optional automatic changeover thermostat, when in the AUTO position, automatically changes to heat or cool with an appropriate room
temperature change). The fan can be set to ON, causing continuous evaporator (indoor) fan operation or set to AUTO causing fan operation to coincide with heating or cooling run cycles. Continuous fan mode during Cooling operation may not be appropriate in humid climates. If the indoor air exceeds 60% relative humidity or simply feels uncomfortably humid, it is recommended that the fan only be used in the AUTO mode.
Cooling Mode
Note: The TSH and TSC are contacts that are internal to the indoor comfort control.
With the disconnect switch in the ON position, current is supplied to the control transformer. The cooling cycle is enabled through the low voltage side of the control transformer to the “R” terminal on the indoor thermostat. With the comfort control set to AUTO and TSC-1 contacts closed, power is supplied to the “O ” terminal on the indoor thermostat to the switchover valve coil (SOV). This energizes the switch-over valve (SOV) and places it in the cooling position (it is in the heating position when de-energized).
When the indoor temperature rises 1-1/2 degrees, TSC-2 contacts close, supplying power to the “Y” terminal on the indoor thermostat, and to the compressor contactor (CC). This starts the outdoor fan motor and compressor. The TSC-2 contacts also provide power to the “G” terminal which provides power to the indoor fan motor.
Heating Mode
With the comfort control set to ON, current is supplied to the transformer. Starting at the “R” terminal on the indoor comfort control, current goes through the system switch (which is in “AUTO” position) to the TSH-1 contacts. When closed, these contacts supply power to terminal “Y” on the indoor thermostat as well as to the heating anticipator. The switch-over valve will not energize because of the high resistance of the heating anticipator in the thermostat. Power is provided from “Y” to the compressor contactor (CC) which starts the compressor and outdoor fan motor.
The indoor thermostat contact TSH-1 also provides power to “G” terminal on the indoor thermostat energizing the indoor fan motor.
Supplementary Heat
The supplementary electric heat is brought on when the indoor temperature drops 1-1/2 degrees below the thermostat setting. TSH-2 contacts close providing power to the “W” terminal on the indoor thermostat and to the supplementary heater control circuit. An outdoor thermostat may have been added to disallow the second stage (if provided) of electric heat above a selected outdoor temperature. If the outdoor temperature falls below the setting on the outdoor thermostat, this additional heater stage will come on.
When the outdoor air temperature rises, and the outdoor T-stat setpoint is reached, the system will revert back to first stage electric heating.
When the indoor ambient is satisfied, TSH-2 contacts will open and the unit will revert back to the compressor only heating mode and then off. For emergency heat (use of supplementary electric heat only), an emergency (EMERG) heat switch is provided within the comfort control. When placed in the emergency heat position, it will disable the compressor, bypass the outdoor thermostats, if provided, and engage the supplementary electric heaters and indoor fan.
Demand Defrost Operation
During the heating cycle, the outdoor coil may require a defrost cycle which is determined by the demand defrost control (DFC). This control continuously measures the outdoor coil temperature (CBS) and the outdoor ambient temperature (ODS-B) and calculates
the difference or delta-T measurement. When the calculated delta-T is met, the demand defrost control (DFC) opens the circuit to the outdoor fan motor (ODM) and energizes the switch-over valve (SOV), placing the unit in the cooling mode to defrost the outdoor coil. The outdoor coil temperature sensor (CBS) terminates the defrost cycle, or times out after fifteen minutes in defrost, the (DFC) energizes the outdoor fan motor (ODM) and twelve seconds later deenergizes the (SOV), which returns the unit to the heating mode. Supplementary electric heat, if provided, is brought on to control indoor temperature during the defrost cycle.
Final Installation Checklist
Important: Perform a final unit inspection to be sure that factory tubing has not shifted during shipment. Adjust tubing if necessary so tubes do not rub against each other when the unit runs. Also be sure that wiring connections are tight and properly secured.
- Does the unit run and operate as described in the Sequence of Operation section in response to the room thermostat?
- Are the condenser fan and indoor blower operating correctly with proper rotation and without undue noise?
- Is the compressor operating correctly and has the system been checked with a charging chart?
- Has the voltage and running current been checked to determine if it is within limits?
- Has the thermostat been checked for calibration and the air discharge grills adjusted to balance the system?
- Has the ductwork been checked for air leaks and condensation?
- Has the furnace manifold pressure been checked and adjusted if necessary?
- Has the heating air temperature rise been checked?
- Has the unit been checked for tubing and sheet metal rattles? Are there any other unusual noises to be checked?
- Are all covers and panels in place and properly fastened?
- Has the owner been instructed on the proper operation and maintenance of the unit? Be sure to leave this manual with the owner.
Maintenance
Owner Maintenance
Some of the periodic maintenance functions of the unit can be performed by the owner; this includes replacing the disposable or cleaning the permanent air filters, cleaning the unit cabinet, cleaning the condenser coil, and conducting a general unit inspection on a regular basis.
Filters
When the system is in constant operation, inspect the filters at least once each month.
If the unit has disposable-type filters, replace them with new filters of the same type and size. Do not attempt to clean disposable filters.
Permanent-type filters can be cleaned by washing them with a mild detergent and water. Make sure that the filters are thoroughly dry before reinstalling them in the unit (or duct system).
Note: It may be necessary to replace permanent filters annually if washing fails to clean the filter or if the filter shows signs of deterioration. Be sure to use the same type and size as was originally installed.
Condenser Coil
Be sure to keep all vegetation and debris away from the condenser coil area.
Service Maintenance
Cooling Season
To keep the unit operating safely and efficiently, the manufacturer recommends that a qualified service technician check the entire system at least once each year or sooner if needed. The service technician should examine these areas of the unit:
- filters (for cleaning or replacement)
- motors and drive system components
- economizer gaskets (for possible replacement)
- safety controls (for mechanical cleaning)
- electrical components and wiring (for possible replacement and connection tightness)
- condensate drain (for proper sealing and cleaning)
- unit duct connections (to see that they are physically sound and sealed to the unit casing)
- unit mounting support (for structural integrity)
- the unit (for obvious unit deterioration)
Heating Season
Complete the following unit inspections and service routines at the beginning of each heating season.
- Visually inspect the unit to ensure that the airflow required for combustion and condenser coil is not obstructed from the unit.
- Inspect the control panel wiring to verify that all electrical connections are tight and that the wire insulation is intact.
Indoor Fan Motor Speed Tap Setting
The 208/230 units are factory set to medium speed.
Defrost Control

The demand defrost control measures heat pump outdoor ambient temperature with a sensor located outside the outdoor coil. A second sensor located on the outdoor coil is used to measure the coil temperature. The difference between the ambient and the colder coil temperature is the difference or delta-T measurement. This delta-T measurement is representative of the operating state and relative capacity of the heat pump system. Measuring the change in delta-T determines the need for defrost. The coil sensor also serves to sense outdoor coil temperature for termination of the defrost cycle.
Fault Detection
A fault condition is indicated by the flashing Fault LED light on the defrost control board located inside the heat pump control box.
In normal operation, the status LED will flash once each second when idle or twice each second with a call for heating or cooling.
PIN Identification
- TEST_COMMON (Shorting any of the other pins to this pin causes the function of the other pin to be executed. Leaving this pin open results in the normal mode of operation).
- FRC_DFT = Forced Defrost (Short TEST_COMMON to this pin speeds up all defrost. Remove the short after defrost initiates.
Defrost Control Checkout
Normal operation requires:
a. Status LED on board flashing 1 time/second in standby or 2 times/second with a call for heating or cooling.
b. 24V AC between R & B
c. 24V AC between Y, Y0 & B with unit operating
d. Defrost initiation when FRC_DFT pin is shorted to TEST_COMMON pin.
Test Sensors
Using the chart in Table 13, p. 22, locate (as close as possible) the actual sensor temperature. The measured resistance should be relatively close to the resistance value shown in the chart.
Table 12. Defrost Control Thermistor Table


Example:
Sensor temp. = 19°F
Measured Resistance = 46K ohms
This sensor is good since the measured value is relatively close to the chart value.
Table 13. Demand Defrost Quick Specifications

(a) GROUP suffix for drawing number D159982
(b) ≤ (EQUAL OR LESS THAN)
Table 14. LED Fault Codes

- Initiate Adaptive/Timed Defrost so long as Coil Temp Sensor is functional. Monitor actual time in defrost and add or reduce run time until next forced defrost based on achieving a 4 minute (+/- 1) defrost period.
- This Defrost control utilizes a safety method called “Inferred LPCO”. If both Coil Temp Sensor and Ambient Temp Sensor have failed, initiate a 15 minute forced defrost after every 60 minutes of run time. This is in conjunction with the normal Low Pressure trip definitions. An “Inferred LPCO” trip is defined as: A heating cycle that enters defrost in 15 minutes or less and then enters another defrost in the same heating call within 15 minutes of the last defrost call -does not complete a learning algorithm. This could be caused by a condenser fan motor failure or other reasons. The first soft lockout occurs on the 4th defrost that was entered before the learning routine could complete in the same heating call. It is announced with a 5 flash and a 6 flash fault. After this first 15 minute soft lockout, the system will return to normal operation. Should this continue operating in this manner, there will be a 30 minute soft lockout and so on. At the end of the lockout process, if a hard lock is necessary —a flash will be announced and system operation is interrupted. If the ambient temperature climbs above 40 degrees F for more than 30 minutes, this clears this fault count and resumes normal operation.
- Do not track if Y cycles off or if defrost takes 15 minutes (Max Time Override). Ambient Sensor reading is monitored at the end of defrost and should not deviate more than +/-5° F. Ambient Sensor must report a lower temperature than the Coil Sensor immediately after defrost (Coil Sensor should always be higher than Ambient Sensor when defrost terminates).
- Do not track if Y cycles off or if defrost takes 15 minutes (Max Time Override). Coil Sensor reading is monitored at the end of defrost and reading must be less than Ambient Sensor after 15 minutes of run time.
- Once ambient drops to -7° F or lower, wait 5 minutes before soft lockout begins. During soft lock out the Y signal passes through to the X2 output. Resume operation when ambient temperature rises to 3° F or higher and after a 15 minute soft lockout period expires.
- During Hard Lockout, the X2 relay opens so that the Y signal does not pass through.

(a) If LPCO is open, a 3 flash can accommodate any of the faults above and will clear when the LPCO closes.

Pressure Curves
Figure 8. 4WCC4024E1

OUTDOOR TEMPERATURE (Degree F)
COOLINGPERFORMANCECAN BECHECKED WHEN THEOUTDOOR TEMP IS ABOVE65 DEGF.
TOCHECK COOLINGPERFORMANCE, SELECT THEPROPER INDOOR CFM, ALLOW PRESSURES TOSTABILIZE.
MEASUREINDOOR WET BULB. TEMPERATURE, OUTDOOR TEMPERATURE, DISCHARGEAND SUCTION PRESSURES.
ON THEPLOTS LOCATEOUTDOOR TEMPERATURE(1); LOCATEINDOOR WET BULB (2)
FIND INTERSECTION OFOD TEMP. & ID W.B. (3); READ DISCHARGEOR SUCTION PRESSUREIN LEFT. COLUMN (4).
EXAMPLE: (1) OUTDOOR TEMP. 82 F.
(2) INDOOR WET BULB 67 F.
(3) AT INTERSECTION
(4) DISCHARGEPRESSURE@750 CFM CFM IS 336 PSIG.
(5) SUCTION PRESSURE@750 CFM CFM IS 138 PSIG.
ACTUAL:
DISCHARGEPRESSURESHOULD BE+/- 10 PSI OFCHART
SUCTION PRESSURESHOULD BE+/- 3 PSIGOFCHART
Figure 9. 4WCC4030E1

OUTDOOR TEMPERATURE (Degree F)
COOLINGPERFORMANCECAN BECHECKED WHEN THEOUTDOOR TEMP IS ABOVE65 DEGF.
TOCHECK COOLINGPERFORMANCE, SELECT THEPROPER INDOOR CFM, ALLOW PRESSURES TOSTABILIZE.
MEASUREINDOOR WET BULB. TEMPERATURE, OUTDOOR TEMPERATURE, DISCHARGEAND SUCTION PRESSURES.
ON THEPLOTS LOCATEOUTDOOR TEMPERATURE(1); LOCATEINDOOR WET BULB (2);
FIND INTERSECTION OFOD TEMP. & ID W.B. (3); READ DISCHARGEOR SUCTION PRESSUREIN LEFT. COLUMN (4).
EXAMPLE: (1) OUTDOOR TEMP. 82 F.
(2) INDOOR WET BULB 67 F.
(3) AT INTERSECTION
(4) DISCHARGEPRESSURE@950 CFM CFM IS 332 PSIG.
(5) SUCTION PRESSURE@950 CFM CFM IS 147 PSIG.
ACTUAL:
DISCHARGEPRESSURESHOULD BE+/- 10 PSI OFCHART
SUCTION PRESSURESHOULD BE+/- 3 PSIGOFCHART
Figure 10. 4WCC4036E1

OUTDOOR TEMPERATURE (Degree F)
COOLINGPERFORMANCECAN BECHECKED WHEN THEOUTDOOR TEMP IS ABOVE65 DEGF.
TOCHECK COOLINGPERFORMANCE, SELECT THEPROPER INDOOR CFM, ALLOW PRESSURES TOSTABILIZE.
MEASUREINDOOR WET BULB . TEMPERATURE, OUTDOOR TEMPERATURE, DISCHARGEAND SUCTION PRESSURES.
ON THEPLOTS LOCATEOUTDOOR TEMPERATURE(1); LOCATEINDOOR WET BULB (2)
FIND INTERSECTION OFOD TEMP. & ID W.B. (3); READ DISCHARGEOR SUCTION PRESSUREIN LEFT; COLUMN (4).
EXAMPLE: (1) OUTDOOR TEMP. 82 F.
(2) INDOOR WET BULB 67 F.
(3) AT INTERSECTION
(4) DISCHARGEPRESSURE@1050 CFM CFM IS 324 PSIG.
(5) SUCTION PRESSURE@1050 CFM CFM IS 141 PSIG.
ACTUAL:
DISCHARGEPRESSURESHOULD BE+/- 10 PSI OFCHART
SUCTION PRESSURESHOULD BE+/- 3 PSIGOFCHART
Figure 11. 4WCC4042E1

OUTDOOR TEMPERATURE (Degree F)
COOLINGPERFORMANCECAN BECHECKED WHEN THEOUTDOOR TEMP IS ABOVE65 DEGF.
TOCHECK COOLINGPERFORMANCE, SELECT THEPROPER INDOOR CFM, ALLOW PRESSURES TOSTABILIZE.
MEASUREINDOOR WET BULB. TEMPERATURE, OUTDOOR TEMPERATURE, DISCHARGEAND SUCTION PRESSURES.
ON THEPLOTS LOCATEOUTDOOR TEMPERATURE(1); LOCATEINDOOR WET BULB (2);
FIND INTERSECTION OFOD TEMP. & ID W.B. (3); READ DISCHARGEOR SUCTION PRESSUREIN LEFT COLUMN (4).
EXAMPLE: (1) OUTDOOR TEMP. 82 F.
(2) INDOOR WET BULB 67 F.
(3) AT INTERSECTION
(4) DISCHARGEPRESSURE@1350 CFM CFM IS 322 PSIG.
(5) SUCTION PRESSURE@1350 CFM CFM IS PSIG.
ACTUAL:
DISCHARGEPRESSURESHOULD BE+/- 10 PSI OFCHART
SUCTION PRESSURESHOULD BE+/- 3 PSIGOFCHART
Figure 12. 4WCC4048E1

OUTDOOR TEMPERATURE (Degree F)
COOLINGPERFORMANCECAN BECHECKED WHEN THEOUTDOOR TEMP IS ABOVE65 DEGF.
TOCHECK COOLINGPERFORMANCE, SELECT THEPROPER INDOOR CFM, ALLOW PRESSURES TOSTABILIZE.
MEASUREINDOOR WET BULB. TEMPERATURE, OUTDOOR TEMPERATURE, DISCHARGEAND SUCTION PRESSURES.
ON THEPLOTS LOCATEOUTDOOR TEMPERATURE(1); LOCATEINDOOR WET BULB (2);
FIND INTERSECTION OFOD TEMP. & ID W.B. (3); READ DISCHARGEOR SUCTION PRESSUREIN LEFT COLUMN (4).
EXAMPLE: (1) OUTDOOR TEMP. 82 F.
(2) INDOOR WET BULB 67 F.
(3) AT INTERSECTION
(4) DISCHARGEPRESSURE@1600 CFM CFM IS 328 PSIG.
(5) SUCTION PRESSURE@1600 CFM CFM IS 139 PSIG.
ACTUAL:
DISCHARGEPRESSURESHOULD BE+/- 10 PSI OFCHART
SUCTION PRESSURESHOULD BE+/- 3 PSIGOFCHART
Figure 13. 4WCC4060E1

OUTDOOR TEMPERATURE (Degree F)
COOLINGPERFORMANCECAN BECHECKED WHEN THEOUTDOOR TEMP IS ABOVE65 DEGF.
TOCHECK COOLINGPERFORMANCE, SELECT THEPROPER INDOOR CFM, ALLOW PRESSURES TOSTABILIZE.
MEASUREINDOOR WET BULB. TEMPERATURE, OUTDOOR TEMPERATURE, DISCHARGEAND SUCTION PRESSURES.
ON THEPLOTS LOCATEOUTDOOR TEMPERATURE(1); LOCATEINDOOR WET BULB (2);
FIND INTERSECTION OFOD TEMP. & ID W.B. (3); READ DISCHARGEOR SUCTION PRESSUREIN LEFT COLUMN (4).
EXAMPLE: (1) OUTDOOR TEMP. 82 F.
(2) INDOOR WET BULB 67 F.
(3) AT INTERSECTION
(4) DISCHARGEPRESSURE@1850 CFM CFM IS 319 PSIG.
(5) SUCTION PRESSURE@1850 CFM CFM IS 140 PSIG.
ACTUAL:
DISCHARGEPRESSURESHOULD BE+/- 10 PSI OFCHART
SUCTION PRESSURESHOULD BE+/- 3 PSIGOFCHART
Indoor Fan Performance


Refrigerant Circuit

Troubleshooting Chart
P-PRIMARY CAUSES / S-SECONDARY CAUSES

Important Product Information

Notes
Important Product Information

About Trane and American Standard Heating and Air Conditioning
Trane and American Standard create comfortable, energy efficient indoor environments for residential applications. For more information, please visit www.trane.com or www.americanstandardair.com.

The AHRI Certified mark indicates company participation in the AHRI Certification program. For verification of individual certified products, go to ahridirectory.org.
The manufacturer has a policy of continuous data improvement and it reserves the right to change design and specifications without notice. We are committed to using environmentally conscious print practices.
18-BB41D1-1A-EN 19 Aug 2022
Supersedes (New)















