RunTru 4WCA4024C1000A Single Packaged Heat Pump

NOTE: Graphics in this document are for representation only. Actual model may differ in appearance.”
SAFETY WARNING
Only qualified personnel should install and service the equipment. The installation, starting up, and servicing of heating, ventilating, and air-conditioning equipment can be hazardous and requires specific knowledge and training. Improperly installed, adjusted or altered equipment by an unqualified person could result in death or serious injury. When working on the equipment, observe all precautions in the literature and on the tags, stickers, and labels that are attached to the equipment.
SAFETY SECTION
Important-This document contains a wiring diagram, a parts list, and service information. This is customer property and is to remain with this unit. Please return to the service information pack upon completion of work.
- WARNING HAZARDOUS VOLTAGE!
- Failure to follow this warning could result in property damage, severe personal injury, or death.
- Disconnect all electric power, including remote disconnects before servicing. Follow proper lockout/tagout procedures to ensure the power cannot be inadvertently energized.
WARNING SAFETY AND ELECTRICAL HAZARD!
- Failure to follow this warning could result in property damage, severe personal injury, or death.
- These servicing instructions are for use by qualified personnel only. To reduce the risk of electrical shock, do not perform any servicing other than that contained in these operating instructions unless you are qualified to do so.
CAUTION GROUNDING IS REQUIRED!
- Failure to inspect or use proper service tools may result in equipment damage or personal injury.
- Reconnect all grounding devices. All parts of this product that are capable of conducting electrical current are grounded. If grounding wires, screws, straps, clips, nuts, or washers used to complete a path to the ground are removed for service, they must be returned to their original position and properly fastened.
WARNING UNIT CONTAINS R-410A REFRIGERANT!
- Failure to use proper service tools may result in equipment damage or personal injury.
- R-410A operating pressure exceeds the limit of R22. Proper service equipment is required. Service using only R-410A Refrigerant and approved POE compressor oil.
SAFETY HAZARD!
- Operating the unit without the access panels properly installed may result in severe personal injury or death.
- Do not operate the unit without the evaporator fan access panel or evaporator coil access panel in place.
WARNING!
- This product can expose you to chemicals including lead, which are known to the State of California to cause cancer and birth defects or other reproductive harm. For more information go to www.P65Warnings.ca.gov.
- Important: Wear appropriate gloves, arm sleeve protectors and eye protection when servicing or maintaining this equipment.
- Important: Air filters and media wheels or plates shall meet the test requirements in UL 900.
Introduction
- Read this manual carefully before attempting to install, operate, or perform maintenance on this unit.
- Installation and maintenance should be performed by qualified service technicians only. This unit is listed by Underwriters Laboratory.
- Packaged units are designed for outdoor mounting with a vertical condenser discharge. They can be located either at ground level or on a roof in accordance with local codes. Each unit contains an operating charge of refrigerant as shipped.
- Extreme mounting kits are available for slab (BAYEXMK003A), utility curb (BAYEXMK002B), and perimeter curb (BAYEXMK001A) mountings.
This guide is organized as follows:
- Step 1 — Inspect the Shipment
- Step 2 — Determine Unit Clearances
- Step 3 — Review Location & Recommendation
Information
- Step 4 — Unit Installation
- Step 5 — Unit Startup
- Sequence of Operation
- Maintenance
Step 1 — Inspect the Shipment
- Check for damage after the unit is unloaded. Report promptly to the carrier any damage found to the unit. Do not drop the unit.
Important: To prevent damage to the sides and top of the unit when hoisting, use “spreader bars”. - Check the unit’s nameplate to determine if the unit is correct for the intended application. The power supply must be adequate for both the unit and all accessories.
- Check to be sure the refrigerant charge has been retained during shipment. Remove the Compressor access panel to access the 1/4″ flare pressure taps.
- If this unit is being installed on a curb, verify that the correct curb is provided with the unit.
- Use model BAYCURB060A,
- If the unit is being hoisted, the accessory kit
- BAYLIFT002A is recommended. It includes a kit of four (4) lifting lugs and instructions.
- Note: If practical, install any internal accessories to the unit at the shop.
- Note: The packaged units have been evaluated in accordance with the Code of Federal Regulations, Chapter XX, Part 3280 or the equivalent. “SUITABLE FOR MOBILE HOME USE.
Step 2 — Determine Unit Clearances

| MODEL | HEIGHT MM/IN. A | W1 | W2 | W3 | W4 | NET WEIGHT/LBS |
| 4WCA4024C | 918.8 [36-5/32] | 383.9 [15 1/8] | 460.1 [18 1/18] | 568.8 [22 13/32] | 636.1 [25 1/32] | 410 |
| 4WCA4030C | 918.8 [36-5/32] | 383.9 [15 1/8] | 460.1 [18 1/18] | 568.8 [22 13/32] | 636.1 [25 1/32] | 410 |
| 4WCA4036C | 918.8 [36-5/32] | 383.9 [15 1/8] | 460.1 [18 1/18] | 568.8 [22 13/32] | 636.1 [25 1/32] | 430 |
| 4WCA4042C | 918.8 [36-5/32] | 383.9 [15 1/8] | 460.1 [18 1/18] | 568.8 [22 13/32] | 636.1 [25 1/32] | 440 |
| 4WCA4048C | 1045.8 [41-5/32] | 460.1 [18 1/8] | 510.9 [20 1/8] | 645.0 [25 13/32] | 712.3 [28 1/32] | 460 |
| 4WCA4060C | 1045.8 [41-5/32] | 460.1 [18 1/8] | 510.9 [20 1/8] | 645.0 [25 13/32] | 712.3 [28 1/32] | 460 |
Step 3 — Review Location and Recommendation Information
Horizontal Airflow Units
- The location of the unit must allow service clearance around it to ensure adequate serviceability, maximum capacity, and peak operating efficiency.
- These units are designed for outdoor installation. They may be installed directly on a slab, wood flooring, or on Class A, B, or C roof covering material. The discharge air from the condenser fans must be unrestricted for a minimum of 3 feet above the unit.
- Check the handling facilities to ensure the safety of personnel and the unit(s).
- The unit must be mounted level for proper drainage of water through the drain holes in the base pan.
- The unit should not be exposed to direct roof water runoff.
- Flexible duct connectors must be of flame-retardant material. All ductwork outside of the structure must be insulated and weatherproofed in accordance with local codes.
- Holes through exterior walls or roofs must be sealed in accordance with local codes.
- All fabricated outdoor ducts should be as short as possible.
Clearances
- The recommended service clearances for single-unit installations are stated in Table 1.
- Any reduction of the unit clearances indicated in these figures may result in condenser coil starvation or the recirculation of warm condenser air. Actual clearances, which appear to be inadequate should be reviewed with a local engineer.
- See the unit’s nameplate for the absolute minimum clearance between the unit and any combustible surfaces.
Down Airflow Units
- The location of the unit must allow service clearance around it to ensure adequate serviceability, maximum capacity, and peak operating efficiency.
- Refer to the Installation section for instructions on converting the supply and return airflow covers to down airflow.
- The field-assembled Roof Mounting Curb (BAYCURB060A) or a field-fabricated curb should be in place before the unit is hoisted to the rooftop.
- The Roof Mounting Curb (frame) must be installed on a flat, level section of the roof (maximum of 1/4″ per foot pitch) and provide a level mounting surface for the unit. Also, be sure to provide sufficient height above the roof to prevent water from entering the unit.
- Be sure the mounting curb spans structural members (trusses) of the roof, thereby providing sufficient support for the weight of the unit, the curb, the duct(s), and any factory or field-installed accessories.
- The unit must be mounted level for proper drainage of water through the drain holes in the base pan.
- Be sure the hole in the structure for the ducts is large enough to accommodate the fabricated ducts and the insulation surrounding them. Flexible duct connectors must be of flame-retardant material.
- All ductwork outside of the structure must be insulated and weatherproofed in accordance with local codes.
- Holes through exterior walls or roofs must be sealed in accordance with local codes.
- These units are designed and certified for outdoor installation. They may be installed directly on a slab, wood flooring, or on Class A, B, or C roof covering material. The discharge air from the condenser fans must be unrestricted for a minimum of 3 feet above the unit.
- Check the handling facilities to ensure the safety of personnel and the unit(s).
Clearances
- The recommended service clearances for single-unit installations are stated in Table 1.
- Any reduction of the unit clearances indicated in these figures may result in condenser coil starvation or the recirculation of warm condenser air. Actual clearances, which appear to be inadequate should be reviewed with a local engineer.
- See the unit’s nameplate for the absolute minimum clearance between the unit and any combustible surfaces.
Step 4 — Unit Installation
Note: The factory ships this unit for horizontal installation.
To Install the unit at ground level:
- Place the unit on a pad the size of the unit or larger.
The unit must be mounted level for proper drainage of water through the holes in the base pan. To attach the unit securely to the slab, use the extreme mounting kit, BAYEXMK003A.
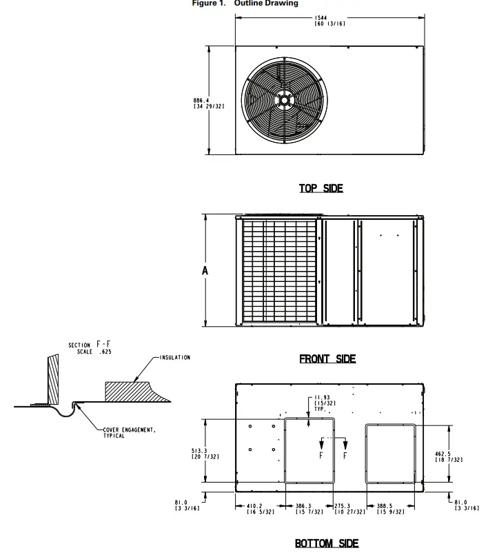
The pad must not come in contact with the structure. Be sure the outdoor portion of the supply and return air ducts are as short as possible. - The location of the unit must allow service clearance around it. Clearance of the unit must be given careful consideration. See Figures 1 and 2.
Note: Any reduction of the unit clearances indicated in these illustrations may result in condenser coil starvation or the recirculation of warm condenser air. Actual clearances, which appear to be inadequate should be reviewed with a local engineer. - Attach the supply and return air ducts to the unit as explained in the ductwork Installation section.
- Flexible duct connectors must be of a flame retardant material. Insulate any ductwork outside of the structure with at least two (2) inches of insulation and weatherproofing. There must be a weatherproof seal where the duct enters the structure.
- Do not expose the unit to direct roof water runoff.
- Seal all holes through exterior walls in accordance with local codes.
- Continue with the following installation sections to complete the installation: Ductwork, Filter and Electrical Wiring.
Rooftop Installation — Curb Mounting Convert Horizontal Airflow to Down Airflow
- The factory ships the unit for horizontal airflow.
- Perform this procedure to convert it to down airflow:
- Remove the three (3) sheet metal screws securing the supply air cover and the four (4) sheet metal screws securing the return air cover from the base of the unit. Remove the covers from the base.
- Place the covers over the horizontal supply and return openings (painted side out). Align the screw holes, and secure using the same screws removed in step 1.
Install Full Perimeter Roof Mounting Curb
- Verify that the roof mounting curb is correct for the unit.
- Use model BAYCURB060A,
- Assemble and install the curb following the instructions in the Installer’s Guide included with the appropriate curb

Table 1. Recommended Service Clearance
| Recommended Service Clearance | BACK SIDE | LEFT SIDE | RIGHT SIDE | FRONT SIDE | TOP |
| 0” | 30” | 42” | 42” | 36” |

Table 2. Lifting and Rigging
Important: Do not lift the unit without test lifting for balance and rigging. Do not lift the unit in windy conditions or above personnel. Do not lift the unit by attaching clevis, hooks, pins, or bolts to the unit casing, casing hardware, corner lugs, angles, tabs, or flanges. Failure to observe these warnings may result in equipment damage.
- Before preparing the unit for lifting, check the unit dimension drawings for center of gravity for lifting safety (Figures 1 and 2). Because of placement of internal components, the unit’s weight may be unevenly distributed. Approximate unit weights are also provided in the unit drawings.
Note: Unit rigging and hoisting requires accessory kit BAYLIFT002A. It includes a kit of four (4) lifting lugs. - Insert the four lifting lugs in the openings provided in the drip lip on each end of the unit. A tap or jerk to the lug will overcome the interference that arises due to the dimple on the lug.
- When hoisting the unit, be sure that a proper method of rigging is used. Use slings and spreader bars for protection during lifting. Always test-lift the unit to determine the exact unit balance and stability before hoisting it to the installation location.
- When the curb and air ducts have been properly installed, the unit is ready to be hoisted to the roof and set in position.
- Important: To prevent damage to the sides and top of the unit when hoisting use “spreader bars”.
- Important: The unit must be lowered into position. The P.V.C. rubber tape on the curb flange permits the unit to be repositioned if required without destroying the P.V.C. rubber seals affixed to the mounting curb.
Placing the Unit on the Mounting Curb
- The unit is designed with a perimeter drip lip that is lower than the unit base pan.
- Position the unit drip lip down over and in contact with the outside corner of the curb. Continue to lower the unit on top of the curb, with the unit drip lip astraddle, and in contact with, both the end and side rail of the curb. The unit should now rest on top of the curb. Use the extreme mounting kit, BAYEXMK001A, to add additional hold down strength to the mounting.
Rooftop Installation—Frame Mounting
For rooftop applications using field fabricated frame and ducts use the following procedure:
- Prepare the hole in the roof in advance of installing the unit.
- Secure the horizontal or down airflow ducts to the roof. Refer to the previous Convert from Horizontal Airflow to Down Airflow section if conversion is needed.
- All fabricated outdoor ducts should be as short as possible.
- Place the unit on the frame.
- The unit must be mounted level for proper drainage of water through the holes in the base pan.
- Secure the unit to the frame.
- Insulate any ductwork outside of the structure with at least two (2) inches of insulation and then weatherproof. There must be a weatherproof seal where the duct enters the structure.
- The unit should not be exposed to direct roof water runoff.
- Flexible duct connectors must be of a flame retardant material. All duct work outside of the structure must be insulated and weatherproofed in accordance with local codes.
- Access and service clearances for the unit must be given careful consideration when locating the duct entrance openings. Figures 1 and 2 provide unit dimensions.
- Continue with the following installation sections to complete the installation: Ductwork, Filter, and Electrical Wiring.
Rooftop Installation—Frame Mounting
For roof top applications using field fabricated ducts and sleeper rails rather than a curb or frame, use the following procedure:
- Locate and secure the sleeper rails to the roof by bolting (three (3) rails required). One on each end to support the edges of the unit and one across the center of the unit. The center rail must run inside both drip lips. Vibration isolators should be installed, adjust as necessary for your sleeper rails. The isolators must be placed on base pan, not drip lip. Add flashing as required. Flashing must conform to local building codes.
- Prepare the hole in the roof in advance of installing the unit.
- Secure the horizontal or down airflow ducts to the roof. Refer to the previous Convert from Horizontal Airflow to Down Airflow section if conversion is needed.
- All fabricated outdoor ducts should be as short as possible.
- Place the unit on the rails.
- The unit must be mounted level for proper drainage of water through the holes in the base pan.
- Secure the unit to the rails.
- Insulate any ductwork outside of the structure with at least two (2) inches of insulation and then weatherproof. There must be a weatherproof seal where the duct enters the structure.
- No exposure to direct roof water runoff.
- Flexible duct connectors must be of a flame retardant material. All duct work outside of the structure must be insulated and weatherproofed in accordance with local codes.
- Access and service clearances for the unit must be given careful consideration when locating the duct entrance openings. Figures 1 and 2 provide unit dimensions.
- Continue with the following installation sections: Ductwork, Filter and Electrical Wiring.


Ductwork Installation
- Attaching Downflow Ductwork to Roof Curb Supply and return air flanges are provided on the roof curb for easy duct installation. All ductwork must be run and attached to the curb before the unit is set into place.
Attaching Downflow Ductwork to Roof Frame
- Follow these guidelines for ductwork construction: Connections to the unit should be made with three (3) inch canvas connectors to minimize noise and vibration transmission.
- Elbows with turning vanes or splitters are recommended to minimize air noise and resistance.
- The first elbow in the ductwork leaving the unit should be no closer than two (2) feet from the unit, to minimize noise and resistance.
- To prevent leaking, do not attach the ductwork to the bottom of the unit base. Refer to the bottom example in the figure below.

Attaching Horizontal Ductwork to Unit
- All conditioned air ductwork should be insulated to minimize heating and cooling duct losses. Use a minimum of two (2) inches of insulation with a vapor barrier. The outside ductwork must be weatherproofed between the unit and the building.
- When attaching ductwork to a horizontal unit, provide a flexible watertight connection to prevent noise transmission from the unit to the ducts. The flexible connection must be indoors and made out of heavy canvas.
Note: Do not draw the canvas taut between the solid ducts.
Condensate Drain Piping
- Follow local codes and standard piping practices when running the drain line. Pitch the line downward away from the unit. Avoid long horizontal runs. See Figure 8, p. 14.

- Note: Do not use reducing fittings in the drain lines.
The condensate drain must be:
- Made of 3/4” pipe size
- Pitched 1/4” per foot to provide free drainage to the convenient drain system
- Trapped
- Must be connected to a closed drain system unless the trap is properly vented

Air Filter Installation
- The filter is field supplied in return duct and sized for 300 feet per minute face velocity.
- Important: Air filters and media wheels or plates shall meet the test requirements in UL 900
electrical wiring
- Note: This unit is factory wired for 230V. See the wiring diagram for 208V conversion.
Electrical Connections
- Electrical wiring and grounding must be installed in accordance with local codes or, in the absence of local codes, with the National Electrical Code ANSI/NFPA 70, Latest Revision.
Electrical Power
- It is important that proper electrical power be available for the unit. Voltage variation should remain within the limits stamped on the unit nameplate.
Disconnect Switch
- Provide an approved weatherproof disconnect within close proximity and within sight of the unit.
Over Current Protection
- The branch circuit feeding the unit must be protected as shown on the unit’s rating plate.
PowerWiring
- The power supply lines must be run in weather-tight conduit to the disconnect and into the side of the unit control box. Provide strain relief for all conduit with suitable connectors.
- Provide flexible conduit supports whenever vibration transmission may cause a noise problem within the building structure.
- Remove the Control/Heat access panel. Pass the power wires through the Power Entry hole in the end of the unit.
- Connect the high voltage wires to the appropriate contactor terminals. Single phase units use a two
- pole contactor and three phase units use three
- pole contactor. Connect the ground to the ground lug on the chassis. Ensure all connections are tight.

Table 6. Field Wiring Diagram
Notes:
- Fused disconnect size, power wiring and grounding of equipment must comply with codes.
- Be sure power supply agrees with equipment and heater nameplate.
- Low voltage wiring to be 18 AWG minimum conductor.
- See heater nameplate for current rating of heater used.
- See unit and heater diagram for electrical connection details.
- If electric heater accessory is not installed, omit the electric heater, associated power wires and the ‘W’ and ‘X2’ thermostat wires.
- The WI (WH) wire is first stage electric heat. If the electric heater accessory has two heating stages, The W2 (WH) wire is second stage electric heat.

ControlWiring (Class II)
- Low voltage control wiring should not be run in conduit with power wiring unless Class 1 wire of proper voltage rating is used. Route the thermostat cable or equivalent single leads of No. 18 AWG colored wire from the thermostat subbase terminals through the rubber grommet on the unit. See Figures 1 and 2 for the control entry (24V Entry) location. Make connections as shown on Table 6, p. 16
- Do not short thermostat wires since this will damage the control transformer.
- Refer to the table below for recommended wire sizes and lengths for installing the unit thermostat. The total resistance of these low voltage wires must not exceed one (1) ohm. Any resistance in excess of 1 ohm may cause the control to malfunction because of the excessive voltage drop.
Table 7. Thermostat Wire Size and Maximum Length
| Wire Size | Maximum Length (Ft) |
| 18 | 75 |
| 16 | 125 |
| 14 | 200 |
- Important: Upon completion of wiring, check all electrical connections, including factory wiring within the unit, and make sure all connections are tight. Replace and secure all electrical box covers and access panels before leaving the unit or turning on the power to the unit.
Step 5— Unit Startup
Pre-Start Quick Checklist
- Is the unit properly located and level with the proper clearances? See Figures 1 and 2.
- Is the duct work correctly sized, run, taped, insulated, and weatherproofed with proper unit arrangement as shown in the ductwork installation section?
- Is the condensate line properly sized, run, trapped, and pitched and shown in the Condensate Drain Piping section?
- Is the filter of the correct size and quantity? Is itclean and in place? See Air Filter Installationsection.
- Is the wiring properly sized and run according to theunit wiring diagram?
- Are all the wiring connections, including those in the unit tight?
- Has the unit been properly grounded and fused with the recommended fuse size?
- Is the thermostat well located, level, and correctly wired? See Electrical Wiring section
- Have the air conditioning systems been checked at the service ports for charge and leak tested if necessary?
- Do the condenser fan and indoor blower turn free without rubbing and are they tight on the shafts?
- Has all work been done in accordance with applicable local and national codes?
- Are all covers and access panels in place to prevent air loss and safety hazards?
Starting the Unit in Cooling Mode
- Note: See the section on Sequence of Operation for a description of the cooling operating sequence.
- To start the unit in the cooling mode, set the comfort control to COOL and to a setting below room temperature. The condenser fan motor, compressor and evaporator fan motor will operate automatically.
- Continuous fan mode during Cooling operation may not be appropriate in humid climates. If the indoor air exceeds 60% relative humidity or simply feels uncomfortably humid, it is recommended that the fan only be used in the AUTO mode.
Operating Pressure Checks
- After the unit has operated in the cooling mode for a short period of time, install pressure gauges on the gauge ports of the discharge and suction line valves (behind the Compressor access panel). Check the suction and discharge pressures and compare them to the normal operating pressures provided in the unit’s SERVICE FACTS.
- Note: Do not use the PRESSURE CURVES from the unit’s SERVICE FACTS to determine the unit refrigerant charge. The correct charge is shown on the unit nameplate. To charge the system accurately, weigh in the charge according to the unit nameplate and check subcooling against the Subcooling Charging Table in the SERVICE FACTS.
Voltage Check
- With the compressor operating, check the line voltage at the unit (contactor is located behind the Control access panel). The voltage should be within the range shown on the unit nameplate. If low voltage is encountered, check the size and length of the supply line from the main disconnect to the unit. The line may be undersized for the length of the run.
Cooling Shut Down
- Set the comfort control to OFF or to a setting aboveroom temperature.
- Important: De-energize the main power disconnect
- ONLY when servicing the unit. Power may be required to keep the heat pump compressor warm and to boil off refrigerant in the compressor. Starting the Unit in Heating Mode
- Note: See the section on Sequence of Operation for a description of the heat pump heating operating sequence.
- Check that all grills and registers are open and all unit access panels are closed before start-up.
- Set the comfort control above room temperature until achieving a first stage call for heat and set the fan to AUTO or ON.
- Heating Shut Down Set the comfort control to OFF or at a setting below room temperature.
Sequence of Operation
General
- Operation of the unit heating and cooling cycles is automatic when the system is in the HEAT or COOL functions (the optional automatic changeover thermostat, when in the AUTO position, automatically changes to heat or cool with an appropriate room temperature change). The fan can be set to ON, causing continuous evaporator (indoor) fan operation or set to AUTO causing fan operation to coincide with heating or cooling run cycles. Continuous fan mode during Cooling operation may not be appropriate in humid climates. If the indoor air exceeds 60% relative humidity or simply feels uncomfortably humid, it is recommended that the fan only be used in the AUTO mode.
Cooling Mode
- Note: The TSH and TSC are contacts that are internalto the indoor comfort control.
- With the disconnect switch in the ON position, current is supplied to the control transformer. The cooling cycle is enabled through the low voltage side of the control transformer to the “R” terminal on the indoor thermostat. With the comfort control set to AUTO and
- TSC-1 contacts closed, power is supplied to the “O ” terminal on the indoor thermostat to the switchover valve coil (SOV). This energizes the switch-over valve (SOV) and places it in the cooling position (it is in the heating position when de-energized).
- When the indoor temperature rises 1-1/2 degrees, TSC- 2 contacts close, supplying power to the “Y” terminal on the indoor thermostat, and to the compressor contactor (CC). This starts the outdoor fan motor and compressor. The TSC-2 contacts also provide power to the “G” terminal which provides power to the indoor fan motor.
Heating Mode
- With the comfort control set to ON, current is supplied to the transformer. Starting at the “R” terminal on the indoor comfort control, current goes through the system switch (which is in “AUTO” position) to the
- TSH-1 contacts. When closed, these contacts supply power to terminal “Y” on the indoor thermostat as well as to the heating anticipator. The switch-over valve will not energize because of the high resistance of the heating anticipator in the thermostat. Power is provided from “Y” to the compressor contactor (CC) which starts the compressor and outdoor fan motor.
- The indoor thermostat contact TSH-1 also provides power to “G” terminal on the indoor thermostat energizing the indoor fan motor.
Supplementary Heat
- The supplementary electric heat is brought on when the indoor temperature drops 1-1/2 degrees below the thermostat setting. TSH-2 contacts close providingpower to the “W” terminal on the indoor thermostat and to the supplementary heater control circuit. An outdoor thermostat may have been added to disallow the second stage (if provided) of electric heat above a selected outdoor temperature. If the outdoor temperature falls below the setting on the outdoor thermostat, this additional heater stage will come on.
- When the outdoor air temperature rises, and the outdoor T-stat setpoint is reached, the system will revert back to first stage electric heating.
- When the indoor ambient is satisfied, TSH-2 contacts will open and the unit will revert back to the compressor only heating mode and then off. For emergency heat (use of supplementary electric heat only), an emergency (EMERG) heat switch is provided within the comfort control. When placed in the emergency heat position, it will disable the compressor, bypass the outdoor thermostats, if provided, and engage the supplementary electric heaters and indoor fan.
- During the heating cycle, the outdoor coil may require a defrost cycle which is determined by the demand defrost control (DFC). This control continuously measures the outdoor coil temperature (CBS) and the outdoor ambient temperature (ODS-B) and calculates the difference or delta-T measurement. When the calculated delta-T is met, the demand defrost control (DFC) opens the circuit to the outdoor fan motor (ODM) and energizes the switch-over valve (SOV), placing the unit in the cooling mode to defrost the outdoor coil. The outdoor coil temperature sensor (CBS) terminates the defrost cycle, or times out after fifteen minutes in defrost, the (DFC) energizes the outdoor fan motor (ODM) and twelve seconds later deenergizes the (SOV), which returns the unit to the heating mode. Supplementary electric heat, if provided, is brought on to control indoor temperature during the defrost cycle.
- The demand defrost control measures heat pump outdoor ambient temperature with a sensor located outside the outdoor coil. A second sensor located on the outdoor coil is used to measure the coil temperature. The difference between the ambient and the colder coil temperature is the difference or delta-T measurement. This delta-T measurement is representative of the operating state and relative capacity of the heat pump system. Measuring the change in delta-T determines the need for defrost. The coil sensor also senses outdoor coil temperature for termination of the defrost cycle.
- Note: Refer to the SERVICE FACTS for fault detecting, test sensor and checkout procedures.
Final Installation Checklist
- Important: Perform a final unit inspection to be sure that factory tubing has not shifted during shipment. Adjust tubing if necessary so tubes do not rub against each other when the unit runs. Also be sure that wiringconnections are tight and properly secured.
- Does the unit run and operate as described in the Sequence of Operation section in response to the room thermostat?
- Are the condenser fan and indoor blower operating correctly with proper rotation and without unduenoise?
- Is the compressor operating correctly and has the system been checked with a charging chart?
- Has the voltage and running current been checked to determine if it is within limits?
- Has the thermostat been checked for calibration and the air discharge grills adjusted to balance the system?
- Has the ductwork been checked for air leaks and condensation?
- Has the furnace manifold pressure been checked and adjusted if necessary?
- Has the heating air temperature rise been checked?
- Has the unit been checked for tubing and sheet metal rattles? Are there any other unusual noises to be checked?
- Are all covers and panels in place and properly fastened?
- Has the owner been instructed on the proper operation and maintenance of the unit? Be sure to leave this manual with the owner.
Sequence of Operation
Heater and Airflow Tables
Table 8. Heater Table
| Heater | Minimum Heater Airflow CFM | |||||
| 4WCA4024C1 | 4WCA4030C1 | 4WCA4036C1 | 4WCA4042C1 | 4WCA4048C1 | 4WCA4060C1 | |
| BAYHTR1V05LUGAA | 600 | 600 | 1000 | 1200 | 1400 | 1500 |
| BAYHTR1H08LUGAA | 820 | 820 | 1000 | 1200 | 1400 | 1500 |
| BAYHTR1H10LUGAA | 900 | 900 | 1100 | 1200 | 1400 | 1500 |
| BAYHTR1H15BRKAA | 1400 | 1400 | 1400 | 1500 | ||
| BAYHTR1H20BRKAA | 1850 | |||||
Table 9. Airflow Tables
| 4WCA4024C1 | ESP | 0.1 | 0.2 | 0.3 | 0.4 | 0.5 | 0.6 | 0.7 | 0.8 | 0.9 | 1 |
| Low | CFM | 898 | 835 | 773 | 710 | ||||||
| WATTS | 112 | 119 | 126 | 132 | |||||||
| Medium | CFM | 947 | 892 | 823 | 761 | 690 | |||||
| WATTS | 209 | 218 | 227 | 236 | 242 | ||||||
| High | CFM | 917 | |||||||||
| WATTS | 386 |
Note: Airflow must not exceed 900 CFM due to condensate blowoff.
| 4WCA4030C1 | ESP | 0.1 | 0.2 | 0.3 | 0.4 | 0.5 | 0.6 | 0.7 | 0.8 | 0.9 | 1 |
| Low | CFM | 1132 | 1093 | 1027 | 981 | 891 | 849 | ||||
| WATTS | 161 | 168 | 178 | 186 | 197 | 204 | |||||
| Medium | CFM | 1105 | 1054 | 1008 | 953 | 892 | |||||
| WATTS | 294 | 304 | 313 | 323 | 333 | ||||||
| High | CFM | 1104 | 1048 | 1006 | 943 | ||||||
| WATTS | 337 | 346 | 356 | 367 |
Note: Airflow must not exceed 1125 CFM due to condensate blowoff.
| 4WCA4036C1 | ESP | 0.1 | 0.2 | 0.3 | 0.4 | 0.5 | 0.6 | 0.7 | 0.8 | 0.9 | 1 |
| Low | CFM | 1369 | 1278 | 1178 | 1078 | 977 | |||||
| WATTS | 202 | 210 | 220 | 230 | 242 | ||||||
| Medium | CFM | 1334 | 1288 | 1241 | 1193 | 1147 | 1103 | 1050 | |||
| WATTS | 322 | 332 | 343 | 353 | 364 | 374 | 384 | ||||
| High | CFM | 1392 | 1284 | ||||||||
| WATTS | 686 | 708 |
Note: Airflow must not exceed 1350 CFM due to condensate blowoff.
| 4WCA4042C1 | ESP | 0.1 | 0.2 | 0.3 | 0.4 | 0.5 | 0.6 | 0.7 | 0.8 | 0.9 | 1 |
| Low | CFM | 1515 | 1450 | 1385 | 1320 | 1265 | 1210 | 1140 | |||
| WATTS | 325 | 337 | 347 | 357 | 365 | 373 | 387 | ||||
| Medium | CFM | 1602 | 1540 | 1485 | 1431 | 1382 | 1333 | 1267 | 1200 | ||
| WATTS | 347 | 357 | 365 | 373 | 387 | 400 | 406 | 412 | |||
| High | CFM | 1598 | 1546 | 1495 | 1447 | 1399 | |||||
| WATTS | 637 | 647 | 657 | 673 | 689 |
Note: Airflow must not exceed 1575 CFM due to condensate blowoff.
| 4WCA4048C1 | ESP | 0.1 | 0.2 | 0.3 | 0.4 | 0.5 | 0.6 | 0.7 | 0.8 | 0.9 | 1 |
| Low | CFM | 1673 | 1596 | 1515 | 1441 | 1372 | |||||
| WATTS | 348 | 365 | 380 | 393 | 404 | ||||||
| Medium | CFM | 1842 | 1772 | 1706 | 1605 | 1530 | 1459 | 1414 | |||
| WATTS | 445 | 465 | 483 | 502 | 517 | 529 | 539 | ||||
| High | CFM | 1794 | 1721 | 1658 | 1590 | 1530 | 1475 | 1432 | 1391 | ||
| WATTS | 550 | 568 | 583 | 597 | 609 | 620 | 628 | 638 |
Note: Airflow must not exceed 1800 CFM due to condensate blowoff.
| Cooling Airflow Table | |||||||||||
| 4WCA4060C1 | ESP | 0.1 | 0.2 | 0.3 | 0.4 | 0.5 | 0.6 | 0.7 | 0.8 | 0.9 | 1 |
| Low | CFM | 1760 | 1691 | 1620 | 1542 | ||||||
| WATTS | 381 | 398 | 414 | 431 | |||||||
| Medium | CFM | 1996 | 1934 | 1875 | 1814 | 1755 | 1683 | 1605 | 1536 | 1466 | |
| WATTS | 505 | 521 | 536 | 553 | 563 | 579 | 595 | 610 | 624 | ||
| High | CFM | 1953 | 1879 | 1815 | |||||||
| WATTS | 984 | 980 | 978 | ||||||||
Note: Airflow must not exceed 2250 CFM due to condensate blowoff.
| Heating Airflow Table | |||||||||||
| 4WCA4060C1 | ESP | 0.1 | 0.2 | 0.3 | 0.4 | 0.5 | 0.6 | 0.7 | 0.8 | 0.9 | 1 |
| Low | CFM | 1980 | 1914 | 1860 | 1792 | 1721 | 1652 | 1577 | 1552 | 1527 | |
| WATTS | 507 | 526 | 541 | 559 | 579 | 594 | 611 | 618 | 624 | ||
| Medium | CFM | 2113 | 2055 | 2002 | 1946 | 1889 | 1827 | 1758 | 1690 | 1619 | |
| WATTS | 606 | 622 | 639 | 653 | 671 | 686 | 704 | 720 | 739 | ||
| High | CFM | 1953 | 1879 | 1815 | |||||||
| WATTS | 984 | 980 | 978 | ||||||||
Note: Airflow must not exceed 2250 CFM due to condensate blowoff.
THE COOLING MODE SIGNAL DETERMINES COOLING/HEATING AIRFLOW. COOLING MODE SIGNAL ENERGIZED PROVIDES COOLING AIRFLOW, AND UNENERGIZED PROVIDES HEATING AIRFLOW.
Maintenance
Owner Maintenance
- Some of the periodic maintenance functions of the unit can be performed by the owner; this includes replacing the disposable or cleaning the permanent air filters, cleaning the unit cabinet, cleaning the condenser coil, and conducting a general unit inspection on a regular basis.
Filters
- When the system is in constant operation, inspect the filters at least once each month.
- If the unit has disposable-type filters, replace them with new filters of the same type and size. Do not attempt to clean disposable filters.
- Permanent-type filters can be cleaned by washing them with a mild detergent and water. Make sure that the filters are thoroughly dry before reinstalling them in the unit (or duct system).
- Note: It may be necessary to replace permanent filters annually if washing fails to clean the filter or if the filter shows signs of deterioration. Be sure to use the same type and size as was originally installed.
Condenser Coil
- Be sure to keep all vegetation and debris away from the condenser coil area.
Service Maintenance
Cooling Season
- To keep the unit operating safely and efficiently, the manufacturer recommends that a qualified service technician check the entire system at least once each year or sooner if needed. The service technician should examine these areas of the unit:
- filters (for cleaning or replacement)
- motors and drive system components
- economizer gaskets (for possible replacement)
- safety controls (for mechanical cleaning)
- electrical components and wiring (for possible replacement and connection tightness)
- condensate drain (for proper sealing and cleaning)
- unit duct connections (to see that they are physically sound and sealed to the unit casing)
- unit mounting support (for structural integrity)
- the unit (for obvious unit deterioration)
Heating Season
- Complete the following unit inspections and service routines at the beginning of each heating season.
- Visually inspect the unit to ensure that the airflow required for combustion and condenser coil is not obstructed from the unit.
- Inspect the control panel wiring to verify that all electrical connections are tight and that the wire insulation is intact.
Indoor Fan Motor Speed Tap Setting
- The 208/230 units are factory set to medium speed.
Important Product Information
- Packaged Unit Serial Number_____________________________________________________
- Packaged Unit Model Number_____________________________________________________
- Date of Installation_______________________________________________________________
- Dealer___________________________________________________________________________
Service Information
Call your installing dealer if the unit is inoperative. Before you call, always check the following to be sure service is required:
- Be sure the main switch that supplies power to the unit is in the ON position.
- Replace any burned-out fuses or reset circuit breakers.
- Be sure the thermostat is properly set.
- Service Phone ___________________________________________________________________
- About Trane and American Standard Heating and Air Conditioning
- Trane and American Standard create comfortable, energy-efficient indoor environments for residential applications. For more information, please visit www.trane.com or www.americanstandardair.com.
- The AHRI Certified mark indicates company participation in the AHRI Certification program. For verification of individual certified products, go to ahridirectory.org.
- The manufacturer has a policy of continuous data improvement and it reserves the right to change design and specifications without notice. We are committed to
using environmentally conscious print practices. 88-4WCA4002-1A-EN 17 Jun 2022 Supersedes 88-4WCA4001-1B-EN (June 2020)




























