HAVIT HV3221 Stylez Step Light
Stylez Step Light Installation Instructions
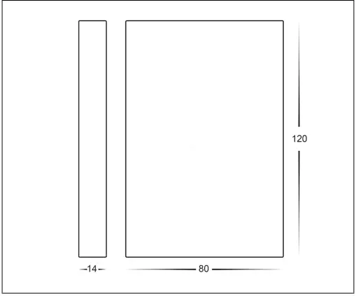
Dimensions
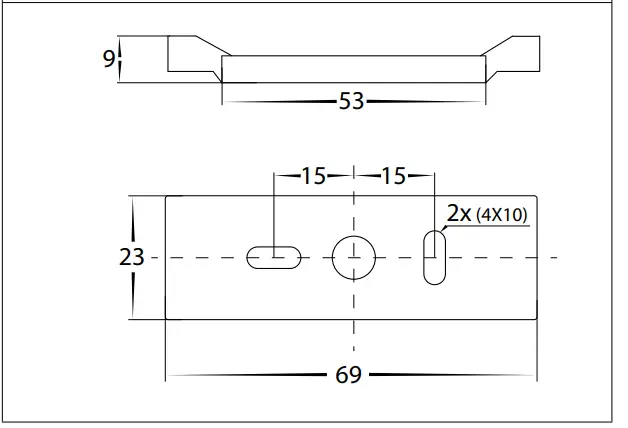
Mounting Base Diagram
important Safety Issues
- This product must be installed by a qualified electrician according to A>/NZS 3000.
- Ensure all electrical mains are disconnected before any installation.
- Modification of this product will void any warranty.
- Havit Lighting does not take responsibility for wrong installation, incorrect use, or use of installation material that does not belong to the system.
- When installing low voltage fittings, Voltage to hitting must be within +or- 5% of voltage required and cannot be installed more than 25m from LED Driver, if not within this allowance warranty will be voided.
- When installing copper or brass fittings, gloves must be worn to avoid any oils transferring to the fitting.
- All 316 stainless steel fittings must have regular cleaning maintenance to avoid any tea staining from forming on the fitting. (Warranty does not cover Tea Staining) All O-rings and seals must be in place correctly to maintain the warranty.
- These instructions may be updated at any time due to product improvements, Please visit the website for the most current installation instructions.
Steps for Installation
- Make sure that the electrical circuit is free of voltage (master switch off) Remove base plate from the fitting by loosening allen screws on side of the fitting.
- Install mounting bracket in the desired location.
- Using an appropriate 12v DC LED Driver
- DO NOT cONNECT LIGHT FITTING DIRECTLY TO 240V Connect the cable
- If more than one fitting is installed, wiring must be done in parallel Strip back the cable on both fitting and cable run and twist the positive cables together.
- Then connect neutral cables together Solder all joins using solder and either a heat gun or butane gas torch.
- Cover connections using an adhesive lined heat shrink or gel cap to make the connection watertight. Failure to do this will void the warranty.
- Heat the heat shrink or rip the gel cap making sure all connections are covered.
- Reattach fitting to base plate making sure Allen screws are tight to avoid water penetration
- Apply silicon around the edge of the fitting to prevent any water from getting inside to electrical connections.
- All connections must be carried out carefully, inspect all contacts before switching back on the electric circuit.
Contact Details: 143 Beauchamp Road Matraville NSW 2036 Australia
Tel: 02 9381 8300
Fax: 02 9666 8881
Email: s[email protected]
Web: www.havit.com.au
Warranty Terms & Conditions
* Additional Information
HAVIT HV3221 Stylez Step Light
Stylez Step Light Installation Instructions

important Safety Issues


















