Virsma Step Light Installation
Instruction Manual![]()
| Product Specifications | ||
| Model No. | HV3276T-BLK-12V | HV3276T-WHT-12V |
| Name | Virsma | |
| Material | Aluminum | |
| Colour | Black | White |
| IP Rating | IP54 | |
| Input Voltage | 12v DC | |
| Lamp Base | Built-in LED | |
| Lamp Wattage | 1x 4w | |
| Colour Temp | TRI Colour – 3000k, 4000k, 5500k | |
| Lumens | 110lm, 115lm, 120lm | |
| CRI | > 80 | |
| Wiring | Parallel | |
| Dimmable | No | |
| Warranty | 2 Years Replacement* | |
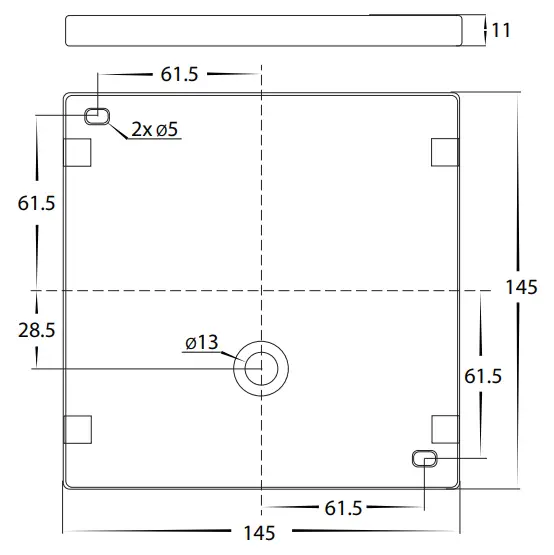
Dimensions | Mounting Base Diagram |
![]() | ![]() |
Important Safety Issues:
- This product must be installed by a qualified electrician according to AS/NZS 3000.
- Ensure all electrical mains are disconnected before any installation.
- Do not exceed maximum wattage restrictions for globes: 240V GU10 = 35w / 12V MR16 = 20w
- Modification of this product will void any warranty.
- Havit Lighting does not take responsibility for wrong installation, incorrect use, or use of installation material that does not belong to the system.
- When installing low voltage fittings, Voltage to fitting must be within +or- 5% of the voltage required and cannot be installed more than 25m from LED Driver, if not within this allowance warranty will be voided.
- Aluminum and 304SS fittings must not be installed within 2km of any saltwater environments.
- When installing copper fittings, gloves must be worn to avoid any oils transferring to the fitting.
- All 316 stainless steel fittings must have regular cleaning maintenance to avoid any tea staining from forming on the fitting. (Warranty does not cover Tea Staining)
- All o-rings and seals must be in place correctly to maintain the warranty.
- These instructions may be updated at any time due to product improvements, Please visit the website for the most current installation instructions.
Steps for Installation:
- Make sure that the electrical circuit is free of voltage (master switch off )
- Loosen Allen screws on side of the fitting and remove the face and set it aside.
- Install the base plate to the wall in the desired location
- Use an appropriate 12v DC LED Driver – DO NOT CONNECT LIGHT FITTING DIRECTLY TO 240V
- Connect the cable – If more than one fitting is installed, wiring must be done in parallel.
- Fitting is preset to 3000k, to change the slide switch to desired color temperature
- Reattach face to base plate making sure Allen screws are tight to avoid water penetration
- Apply silicon around the edge of the fitting to prevent any water from getting inside to electrical connections.
- All connections must be carried out carefully, inspect all contacts before switching back on the electric circuit.
Must be installed by a licensed electrician
| Additional Information | |
|
|
Virsma Step Light Installation Instructions
| Product Specifications | ||
| Model No. | HV3276T-BLK-240V | HV3276T-WHT-240V |
| Name | Virsma | |
| Material | Aluminium | |
| Colour | Black | White |
| IP Rating | IP54 | |
| Input Voltage | 240v AC | |
| Lamp Base | Built in LED | |
| Lamp Wattage | 1x 4w | |
| Colour Temp | TRI Colour – 3000k, 4000k, 5500k | |
| Lumens | 110lm, 115lm, 120lm | |
| CRI | > 80 | |
| Wiring | Parallel | |
| Dimmable | No | |
| Warranty | 2 Years Replacement* | |
Dimensions | Mounting Base Diagram |
![]() | ![]() |
Important Safety Issues:
- This product must be installed by a qualified electrician according to AS/NZS 3000.
- Ensure all electrical mains are disconnected before any installation.
- Modification of this product will void any warranty.
- Havit Lighting does not take responsibility for wrong installation, incorrect use, or use of installation material that does not belong to the system.
- When installing low voltage fittings, Voltage to fitting must be within +or- 5% of the voltage required, if not within this allowance warranty will be voided.
- Aluminum and 304SS fittings must not be installed within 2km of any saltwater environments.
- When installing copper fittings, gloves must be worn to avoid any oils transferring to the fitting.
- All 316 & 304 stainless steel fittings must have regular cleaning maintenance to avoid any tea staining from forming on the fitting. (Warranty does not cover Tea Staining)
- All o-rings and seals must be in place correctly to maintain warranty
- This form may be updated at any time due to product improvements, please check the online installation form for the most current version.
Steps for Installation:
- Make sure that the electrical circuit is free of voltage (master switch off )
- Loosen Allen screws on side of the fitting and remove the face and set it aside.
- Install base plate to the wall in the desired location
- Connect the cable – use wire with earth; connect the earth first, then live and neutral wire
- Fitting is preset to 3000k, to change the slide switch to desired color temperature.
- Reattach face to base plate making sure Allen screws are tight to avoid water penetration
- Apply silicon around the edge of the fitting to prevent any water from getting inside to electrical connections.
- All connections must be carried out carefully, inspect all contacts before switching back on the electric circuit.
Must be installed by a licensed electrician
Warranty Terms & Conditions*
https://havit.com.au/pages/warranty-terms-and-conditions
| Additional Information | |
HV3276T-BLK-240Vhttps://havit.com.au/collections/all/products/hv3276t-wht-virsma-white-square-led-step-lights | HV3276T-WHT-240Vhttps://havit.com.au/collections/all/products/hv3276t-wht-virsma-white-square-led-step-lights-1 |
| Contact Details: | |
| 143 Beauchamp Road Matraville NSW 2036 Australia | Tel: 02 9381 8300 Fax: 02 9666 8881 Email: [email protected] Web: www.havit.com.au |


HV3276T-BLK-12V
HV3276T-WHT-12V
HV3276T-BLK-240V
HV3276T-WHT-240V


















