MODEL NUMBER:
Document Number: 1000 Series CMT Arm
PD196-201R6
Installation Instruction for 1000 Series CMT Arm
PD196I201R5 1000 Ceiling Mount
![]() | CAUTION | ![]() |
| RISK OF ELECTRIC SHOCK. DO NOT OPEN! | ||
| CAUTION: TO REDUCE THE RISK OF ELECTRIC SHOCK, DO NOT REMOVE COVER. NO USER SERVICEABLE PARTS INSIDE. REFER SERVICING TO QUALIFIED SERVICE PERSONNEL | ||
![]() | This symbol indicates that dangerous voltage constituting a risk of electric shock is present within this unit. |
![]() | This symbol indicates that there are important operating and maintenance instructions in the literature accompanying this unit. |
THIS INSTALLATION SHOULD BE MADE BY A QUALIFIED SERVICE PERSON AND SHOULD CONFORM TO ALL LOCAL CODES. READ ANDFOLLOW THE SAFETY INSTRUCTIONS BEFORE ATTEMPTING THIS INSTALLATION.
NOTE to CATV system installer: This reminder is provided to call the CATV system installer’s attention to Article 820-40 of the NEC that provides guidelines for proper grounding and, in particular, specifies that the cable ground shall be connected to the grounding system of the building, as close to the point of cable entry as practical.
![]() | WARNING: OXYGEN ENVIRONMENT DO NOT use in an oxygen tent or oxygen chamber. Such use may cause a fire hazard. |
![]() | WARNING: To avoid the hazards of fire or electric shock, DO NOT expose this TV to rain or moisture. |
DANGER: ARM RECOIL HAZARD The safety brake pin must remain in the SAFETY BRAKE PIN HOLE whenever the television set is removed from the arm or when the arm is removed from the wall bracket to prevent the arm from springing open.
Apparatus shall not be exposed to dripping or splashing and no objects filled with liquids, such as vases, shall be placed on the apparatus. Unplug this unit from the wall outlet before cleaning. Do not use liquid cleaners or aerosol cleaners. Use a damp cloth for cleaning. This unit REQUIRES periodic maintenance. Refer to the maintenance section for instructions.
- Read these instructions.
- Keep these instructions.
- Heed all warnings.
- Follow all instructions.
- Do not use this apparatus near water.
- Clean only with dry cloth.
- Do no block any ventilation openings. Install in accordance with the manufacturer’s instructions.
- Do not install near any heat source such as radiators, heat registers, stove, or other apparatus (including amplifiers) that produce heat.
- Use only with the cart, stand, tripod, bracket or table specified by the manufacturer, or sold with the apparatus. When a cart is used, use caution when moving the cart/apparatus combination to avoid injury from tip-over.
- Do not defeat the safety purpose of the polarized or grounding-type plug. A polarized plug has two blades with one wider than the other. A grounding type plug has
two blades and a third grounding prong. The wide blade or the third prongs are provided for your safety. If the provided plug does not fit into your outlet, consult an electrician for replacement of the obsolete outlet. - Protect the power cord from being walked on or pinched particularly at plugs, convenience receptacles, and the point where they exit from the apparatus.
- Only use attachments/accessories specified by the manufacturer.
- Unplug this apparatus during lightning storms or when unused for long periods of time.
- Refer all servicing to qualified service personnel. Servicing is required when the apparatus has been damaged in any way, such as power-supply cord or plug is damaged, liquid has been spilled or objects have fallen into the apparatus, the apparatus has been exposed to rain or moisture, does not operate normally, or has been dropped.
Contact PDi for complete list of approved TV model numbers for which this arm can be used.
Scope:
How to install a PDI-CMT-SUPPORT.
How to install a 1000 series PDi Ceiling Mount ARM to a PDI-CMT-SUPPORT.
Tool List:
- Safety glasses/goggles
- P1 OR P2 Phillips screwdriver
- 7/16” Socket wrench
- 5/32 Hex key or hex bit and driver
- 3/16 Hex key or hex bit and driver
- SUITABLE tools needed for mounting the PDI-CMT-SUPPORT to the building structure.
- (2) 9/16″ wrenches
- Drill with a 3/8″ drill bit
Bill of Materials:
| Item | Part Number | Description | QTY |
| 1 | PD188-008 | Outer Tube | 1 |
| 2 | PD188-016 | Inner Tube | 1 |
| 3 | PD183-068 | Plastic Bushing | 1 |
| 4 | PD188-012 | Swivel Collar | 1 |
| 5 | PD242-681 | Spacer | 1 |
| 6 | PDISHCS252075 | Screw, Socket Cap Head, 0.250-20 x 0.750″ | 1 |
| 7 | PDI-586 | Plastic Shim | 2 |
| 8 | PDIHHCS252075 | Screw, Hex Head, 0.250-20 x 0.750″ | 4 |
| 9 | PDIHHCS3824250 | Screw, Hex Head, 0.375-24 x 2.50″ | 1 |
| 10 | PDINILN3824 | Nut, Nylock, 0.375-24 | 1 |
| 11 | PD122-001 | Silicon Grease | 1 |
| 12 | PD235-002 | Loctite® #242 Blue | 1 |
Safety steps:
- Always wear safety glasses/goggles to prevent injury from debris.
- Follow the installation/removal instructions for your existing products.
Procedure Overview:
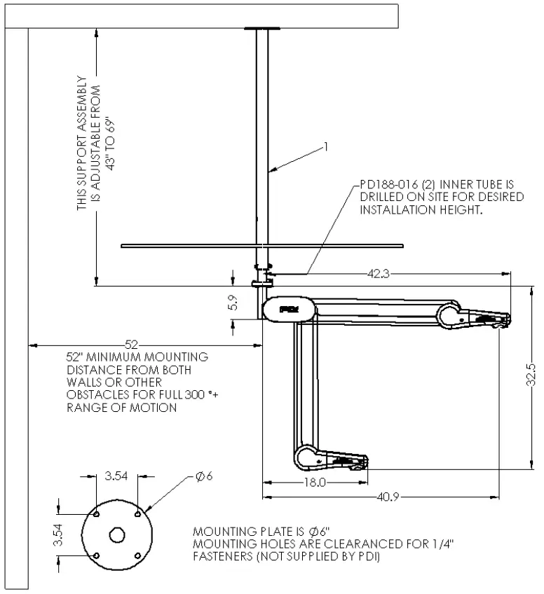
A complete mounting system for attachment to a solid roofing structure above a suspended tile ceiling. Outer tube mounts to a solid surface, inner tube allows adjustment of height to clear the tile ceiling, and then a special arm section attaches to the bottom of the tube. The various CEILING MOUNT ARM model can support up to 21 pounds.

Locate and Mount Outer Tube
- Remove the ceiling tile and locate a mounting position above the patient’s bed at a minimum distance of 52 inches from any walls or other obstacles for full range of motion.
- Mount the P1000 10 PG UniStrut® or mounting channel of equivalent or better strength to the mounting surface following all mounting procedures provided by the manufacturer. Be sure that the UniStrut® is level so the Ceiling Mount will also be level.
Note: Concrete anchors are not a PDi recognized installation method for this mount. PDi recommends either mounting the UniStrut® using beam clamps sold by UniStrut® or drilling through the concrete and bracing the UniStrut® on the other side. - Mount the outer tube, PD188-008, (#1) securely to the UniStrut® using the four (4) mounting holes provided in the plate.

Adjust Height and Drill Inner Tube
- Slide the inner tube, PD188-016, (#2) to the desired height. Insert the plastic sleeve, PD183-068, (#3) until the shoulder is seated in the outer tube, PD188-008, (#1) and rotate until the predrilled holes on both the outer tube, PD188-008, (#1) and the plastic sleeve, PD183-068, (#3) are aligned. Mark the inner tube, PD188-016, (#2) using the predrilled holes as a locator and remove the inner tube, PD188-016. (#2) Drill a clearance hole for a 0.375” screw through both sides of the inner tube, PD188-016, (#2).
- Drop the cables from the hole in the base plate through the outer tube, PD188-008, (#1) and inner tube, PD188016 (#2). The wire should exit the bottom of the tube. Remove the four (4) ¼-20 hex head bolts, PDIHHCS252075, (#8) from the swivel collar, PD188-012 (#4).
- Remove the screw, PDISHCS252075, (#6), and spacer, PD242-681, (#5) and place to one side. Slide one (1) plastic shim washer, PDI-586, (#7) and the swivel collar, PD188-012, (#4) over the inner tube, PD188-016, (#2). Replace the screw, PDISHCS252075, (#6), and spacer, PD242-681, (#5). Replace the inner tube, PD188-016, (#2) and align all drilled holes and slide the 3/8” x 2-1/2” bolt, PDIHHCS3824250, (#9) through and tighten the nut, PDINILN3824 (#10). Cut hole for tube in ceiling tile and replace tile.
- Hold the plastic shim washer, PDI-586, (#7) against the bottom of the inner tube, PD188-016, (#2) and feed the cables through. Apply the silicone grease, PD122-001, (#11) to both sides of the flange at the bottom of the inner tube, PD188-016 (#2). Be sure it does not overlap the swivel collar. Hold the arm assembly against the bottom of the inner tube and feed the cables into the arm. Attach the arm using the four (4) ¼-20 hex head bolts, PDIHHCS252075, (#8) and the supplied thread locking compound LOCTITE® #242 (Blue), PD235-002, (#12) as shown. Tighten the ¼-20 hex head bolts, PDIHHCS252075, (#8) to a torque of 10 ft-lbs.

Final Steps
The PDi arms are specifically designed and adjusted to support a certain load capacity. Use of the arm with any weight other than what is specified for your model is NOT recommended.
- Attach the TV to the nose per TV installation instructions.
- The cable from the arm should be joined with the television cable, wrench tightened, and the connection covered by sliding the plastic boot sections into mating position.
- Remove the safety brake pin from the parking brake hole and keep the pin for future service needs. Attach to coax as pictured below.
- Cycle the arm once or twice to check for free movement – if stiff, a slight loosening of the brake screws will free the movement. DO NOT LOOSEN MORE THAN 1/16 TURN.
- Power the TV on and verify correct operation. Refer to the instructions packed with the TV for programming and operation details.
- Install the plastic covers provided with the arm. Refer to the instructions included with the covers for installation procedure.

Note: Additional cables may be present in the arm and TV depending on the ordered options of the system. Make the appropriate cable connections by matching the cable connector in the nose to the corresponding connector from the TV.
*Plastic covers are to be installed on the arm. Please refer to the instructions packed with the covers for installation procedure.
Arm Maintenance
Very little maintenance should be required for your PDi Arm to give years of trouble-free service if the following lubrication and inspection procedures are followed. Unplug this unit from the wall before cleaning. Do not use liquid cleaners or aerosol cleaners. Use a damp cloth for cleaning.
- INSPECTION – Occasionally check the arm and mount for any evidence of bending or distortion due to a patient using the arm for assistance in getting in or out of bed or any other missuses.
- STRUT ADJUSTMENT – If the ARM shows any tendency to sag under the weight of the TV,
a. Contact PDI Service for assistance. Ph: 1-800-628-9870, ext. 3486
b. email: t1[email protected] - LUBRICATION – At least once a year, a drop of light machine oil should be put on each pivot point in the nose and elbow as shown. DO NOT PUT OIL ON THE FRICTION DAMPER PADS!
- REPLACEMENT OF COAX CABLE – Contact PDI Service for assistance
- TORQUE ADJUSTMENT OF PIVOT SCREWS – All screws in the ARM are tightened securely, at the factory and do not require specific checks with a torque wrench. IF THE THREADS ARE STRIPPED IN THE NOSE, ELBOW, THAT PART NEEDS REPLACEMENT – DISCONTINUE USE IMMEDIATELY.

PDi Communication Systems, Inc. 40
Greenwood Lane Springboro, Ohio 45066 USA
PH 1-800-628-9870 FX 937-743-5664













