STIEBEL ELTRON SK 2 Hydronic Air To Water Heat Pumps

Product Information
The product is a heat pump designed for installation by a professional contractor. The user manual provides instructions for installation and general information about the product.
Preparations
- A strip foundation must be erected at the installation site.
- A gravel bed should be created within the strip foundation.
- A drainage pipe should be laid under the appliance to drain moisture away from the building.
Appliance Description
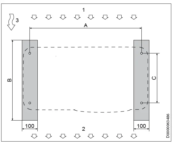
The heat pump has dimensions of 450mm x 303mm x 100mm and has an air intake side, an air discharge side, and a main wind direction.
The product is available in the following models:
- 3 Cs Plus, 3.5 aCs, 07 aCs classic
- 4 Cs Plus, 4.5 aCs, 09 aCs classic
- 6 Cs Plus, 6.5 aCs, 13 aCs classic
- 8 Cs Plus, 8.5 aCs, 17 aCs classic
Specification
The maximum load-bearing capacity of the support is important to note to prevent material losses. The product has a height of 236693mm, width of 303mm, weight of 450kg, and weight loading of 6.5kg.
Product Usage Instructions
- Erect a strip foundation at the installation site.
- Create a sufficiently sized gravel bed within the strip foundation.
- Lay a drainage pipe under the appliance to drain moisture away from the building.
- Mark out the holes on the strip foundation.
- Drill the holes.
- Install the heat pump on the strip foundation.
- Secure the heat pump with suitable fastening material not included in the delivery package.
General information
This document is intended for contractors.
Note
Read these instructions carefully before using the appliance and retain them for future reference.
Pass on the instructions to a new user if required.
Relevant documents
Heat pump operating and installation instructions
Note
Please see appliance operating and installation in-structions for information on the “Guarantee” and “Environment and recycling”.
Units of measurement
Note
All measurements are given in mm unless stated otherwise.
Appliance description
Dimensions
Standard delivery
- 4 screws M8x30
- 4 washers
Preparations
Foundation
- Air intake side
- Air discharge side
- Main wind direction
Erect a strip foundation at the heat pump installation site.
Gravel bed
Drainage pipe
Lay a drainage pipe under the appliance to drain moisture away from the building.
INSTALLATION
Create a sufficiently sized gravel bed within the strip foundation.
Material losses
Note the maximum load-bearing capacity of the sup-port (see chapter “Specification / Data table”).
Material losses
The T-support may bend if the heat pump is subject to any lateral load.
Do not exert any pressure on the sides of the heat pump.
- Mark out the holes on the strip foundation.
- Drill the holes.
- Anchor the T-support to the strip foundation with suitable fixing materials. The fixing materials are not included in the standard delivery.

- Secure the T-support to the underside of the heat pump using the screws and washers provided.
Specification
Data table
STIEBEL ELTRON GmbH & Co. KG Dr.-Stiebel-Str. 33 | 37603 Holzminden
Tel. 05531 702-0 |
Fax 05531 702-480
[email protected]
www.stiebel-eltron.de

















