Outdoor Bottle Filler with Pet Station
Rotocast Granite Finish
Model 603606
User Manual
603606 Outdoor Bottle Filler with Pet Station Rotocast Granite Finish
WARNING
- All installation work must be performed by authorized service personnel.
- Two or more people are recommended to lift and install the unit.
- To avoid the risk of property damage and/or personal injury, ensure the mounting surface is adequate to support 450 lbs.
- Check local codes for plumbing requirements prior to installation.
- Refer to Rough-In Guide (page 4) prior to installation.
- Thoroughly flush all water supply lines of all foreign matter before connecting to the fixture.
- Check for any leaks before use.
- DO NOT attempt to repair or replace any part of this fountain unless it is specifically recommended in this manual. All other services should be referred to a qualified technician.
- For use with clean, clear potable drinking water only.
- Shut-off water supply during installation to reduce the risk of water damage.
- Freezing Caution: Before freezing temperatures occur, refer to the Draining and Winterization section of this manual (pagel2) for proper preparation.
- Installation of a trap on the water drain line may be necessary; remove trap before winterization draining.
- Failure to follow safety warnings and/or installation instructions will void warranty.
Note: This unit is designed to be installed on the surface of an existing or new concrete slab. Included are the necessary vandal-resistant stainless steel bolts and washers needed to anchor this unit. Installer must provide a 1-1/2″ PVC drain line (if applicable) and water supply line. All connections are made inside the item through the access doors, as shown in the drawings. It is recommended to install a shut-off valve (not included) on the water supply.


SPECIFICATIONS
| Features: | Global Industrial Outdoor Bottle Filler with Pet Station Rotocast Granite Finish |
| Finish: | Stone Finish |
| Power | No Electrical Required |
| Bubbler | Vandal Resistant |
| Activation Type: | Push Button |
| Mounting Type: | Floor Mount/Free Standing |
| Product Dimensions: | 12-1/2″L x 23-1/4″W x 59-3/4″H |
| Weight: | 44.5lbs. |
| Installation Location: | Outdoor |
| No. of Stations: | 2 |
PART BREAKDOWN
| Ref. | Qty. | Description | |
| P1 | 1 | Bubbler | |
| P11 | 1 | Drain Tubing 10-1/4″ | |
| H11 | 4 | Hexagon Socket Screws M6*15 | |
| H10 | 1 | Hexagon Wrench | |
| H1 | 1 | Torx Key Wrench | |
| H2 | 1 | Torx Drill Bit | |
| H3 | 4 | Anchor Kit | |
| H9 | 4 | Iron Plate |
REQUIRED TOOLS:

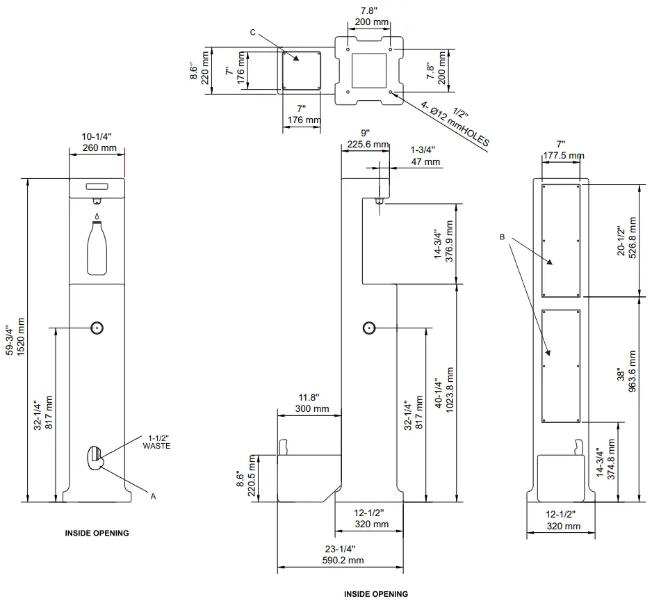
Rough-In Guide

LEGEND:
A = 3/8″ O.D. UNPLATED COPPER TUBE CONNECT – SHUT-OFF VALVE BY OTHERS
B = ACCESS PANEL(7″X20-112″)
C = ACCESS PANEL(7″X7″)
- See Page 12 for Draining and Winterizations
- Actual product configuration may vary based on model ordered.
INSTALLATION
- It is recommended that 2 or more people install this unit.
- This fountain must be mounted on a solid, flat surface with adequate strength (concrete pad recommended) capable of supporting 450 lbs.
- Locate and install plumbing through ground as required. Refer to Rough-In Guide (page 4) for proper location and correct plumbing.
- Install a drainable shut-off valve (not included) if in a freezable environment.
- Installation of a trap on the water drain line may be necessary; check local plumbing codes.
WARNING: The fountain is rated for inlet water pressure of 20-105 PSI. A pressure reducing regulator should be used if the inlet water supply exceeds 105 PSI. Any damage caused by reason of connecting this product to supply line pressure higher than 105 PSI will void warranty.
1. REMOVE ACCESS PANELS
To gain access to the drain and water line connections, remove all access panels detailed below using the provided torx key wrench (H1) or torx drill bit (H2) to remove all (24) M6 x 10 flat-head anti-theft screws on back side of the bottle filler and pedestal, as well as the underside of the drinking fountain and pet station pans:

2. INSTALL BUBBLERS
| 2a. Unscrew and remove nut and washers from Bubblers (P1). | |
| 2b. Locate the hole on the drinking fountain pan surfaces. Align and sandwich with the two washers and tighten the nut to secure the bubbler. | |
| 2c. Bubblers are now properly installed. |
3. MOUNT PEDESTAL TO GROUND
- Locate and install plumbing through ground as required. Refer to Rough-In Guide (page 4) for proper location and correct plumbing.
- This unit is designed to be installed on the surface of an existing or new concrete slab, capable of supporting 450 lbs.
Position fountain base over plumbing and secure to ground using provided anchor kit (H3) mounting hardware (x4).
(H3) Anchor kit consists of:

- (4) M10 Nuts
- (4) M10 Lock Washers
- (4) M10 Standard Washers
- (4) M10 Anchors
- (4) iron plate

6. CONNECT WATER INLET LINES
- Install a shut-off valve (not included) on the water supply.
- All water connections and drains must comply with local codes.
Though the rear access windows, connect water inlet lines as illustrated below:

WATER INLET LINE CONNECTION BREAKDOWN:

- If drinking fountain is being installed in areas where cold temperatures may occur, wrap pipe insulation (P7) around all water inlet lines.
- Installation of a trap on the water drain line may be necessary; check local codes. Always remove trap before winterization draining.
CAUTION: Before freezing temperatures occur, see Draining and Winterizations section of this manual (page 12) for proper preparation
7. CONNECT WATER DRAIN LINES
- All water connections and drains must comply with local codes.
- Through the rear access windows, connect water drain lines as illustrated below.
NOTE: All drain lines attach with quick connect connections. - Installation of a trap on the water drain line may be necessary; check local codes.

WATER DRAIN LINE CONNECTION BREAKDOWN:

Note: Turn on water supply and check all connections for leaks and proper operation.
Reinstall the remaining (4) access panels using the (32) M6 x 10 flat-head anti-theft screws preciously removed from the fountain.
WARNING: Flush all water supply lines thoroughly before initial use.
8. ATTACH PET STATION TO PEDESTAL
Using provided torx key wrench (H1) or torx drill bit (H2), attach the pet station to the pedestal using H11(x4) M6 hexagon socket screws.

START-UP
Initial water flow may have sputter due to air in the water lines; this will be eliminated once air is purged from all water lines. Press and hold the push button until a steady water stream is achieved.
STREAM HEIGHT ADJUSTMENT
To adjust the water stream height, insert a small flathead screwdriver through the access hole in the center of the push button and turn the adjustment screw. Turn clockwise to raise the stream height and counterclockwise to lower the stream height. For best adjustment, the stream should be approximately 1-1/2″ above the top of the bubbler, (see FIG.3).

CAUTION: The fountain is rated for inlet water pressure of 20-105 PSI. A pressure reducing regulator should be used if the inlet water supply exceeds 105 PSI. Any damage caused by reason of connecting this product to supply line pressures lower than 20 PSI or higher than 105 PSI will void warranty.
DRAINING AND WINTERIZATIONS
- Before freezing temperatures occur, turn off the water at the shut-off valve, disconnect the water supply line tubing and blow out lines. Press down on push button to release any air pressure that may remain in the lines.
- Remove trap before winterization draining.
- DO NOT allow water lines to freeze. Cracked or broken components due to freezing are not covered by warranty.
WWW.GLOBALINDUSTRIAL.COM
Customer Service
US: 1-800-645-2986



















