DRAZICE NADO 500/200 v7 Storage Tank

- NADO 500/200 v7
- NADO 750/200 v7
- NADO 1000/200 v7
tel.: +420 / 326 370 911
fax: +420 / 326 370 980
e-mail: [email protected]
CAREFULLY READ THIS MANUAL BEFORE INSTALLING THE TANK!
Dear Customer,
Družstevní závody Dražice – strojírna s.r.o., would like to thank you for your decision to use a product of our brand.
The product is not intended to be controlled by
- a) people (including children) with reduced physical, sensual or mental capacities, or
- b) people with insufficient knowledge and experiences unless supervised by responsible person, or unless properly instructed by such responsible person.
The manufacturer reserves the right for engineering modification of the product. The product is designed for permanent contact with drinkable water.
It is recommended to use the product in indoor environment with air temperatures from +2 °C to +45 °C and a relative humidity up to 80 %.
Product’s reliability and safety is proven by tests implemented by the Engineering Test Institute in Brno. Made in the Czech Republic.
Meaning of pictograms used in the Manual
Important information for heater users.
Abiding by the recommendations of the manufacturer serves to ensure trouble-free operation and the long service life of the product.
Caution!
Important notice to be observed.
FUNCTION DESCRIPTION
Storage tanks serve accumulation of excessive heat from its source. The source may be a solid fuel boiler, heat pump, solar collectors, fireplace inserts, etc. Some types of storage tanks allow combination of connecting even multiple sources.
The NADO type storage tanks serve accumulation of heat in the heating system and allow heating or preheating of HSW (Hot Service Water) in an inner vessel. The incorporation of a storage tank in the heating system with a solid fuel boiler allows an ideal run of a boiler at a favorable temperature during the boiler operation.
The main benefit lies in the period of optimum operation (i.e., with maximum efficiency) when the excessive unconsumed heat accumulates in the storage tank.
The tanks and tubular exchangers are made of steel, without the inner surface treatment, the outer surface of the tank is provided with protective paint. The storage tanks are manufactured in 500, 750 and 1000-liter volumes.
The 500-liter version is additionally equipped with a tubular exchanger of 2.5 m2 surface and the 750 and 1000 liter version with a tubular exchanger of 3.3 m2 surface and two funnels G1½“ mm, with the possibility to install an electric heating element of TJ 6/4“ series with an extended cooling compartment, up to 6 kW. The storage tanks are equipped with a removable 80 mm thick insulation and a lock.
The NADO type enables direct heating of HSW (Hot Service Water) in an inner enameled tank or preheating of water for another water heater. Connection to a boiler usually allows direct HSW heating in an inner vessel to the desired temperature whilst, on the contrary, connection to solar collectors or heat pump only preheats HSW and another, e.g. electric, heater has to be used, in order to reheat the water to the desired temperature, or final electric reheat has to be fitted in the storage tank which is enabled by a TJ 6/4“ series electric heating unit with an extended compartment of up to 6 kW output.
THE DESIGN OF SUITABLE VOLUME AND TANK
INSTALLATION
Ideal size of the storage tank is designed by a design engineer, or a person sufficiently qualified to design heating systems.
Product assembly must be implemented by an authorized person (confirmed in the warranty certificate).
When putting into operation, water has to be filled first into the inner tank for HSW and the operating pressure inside it has to be kept, only then heating water can be filled into the outer storage tank, otherwise the product may get damaged!
The manufacturer explicitly emphasizes the necessity of being particular in testing the tightness of the heating circuit (radiators, piping joints, floor heating, etc.) with the connection of the storage tank. No pressure grow in the storage tank heating water compartment may occur above the maximum operating pressure of 0.3 MPa, if the heating system is pressurized to higher than the maximum operating pressure, the inner enameled tank may get permanently damaged!
TECHNICAL PARAMETERS
| NADO 500/200 v7 | NADO 750/200 v7 | NADO 1000/200 v7 | ||
| STORAGE TANK CAPACITY | l | 475 | 772 | 999 |
| VOLUME OF STORAGE TANK FOR HW HEATING | l | 233 | 233 | 233 |
| WEIGHT | kg | 175 | 212 | 243 |
| TANK DIAMETER | mm | 600 | 790 | 790 |
| TANK DIAMETEK WITH INSULATION | mm | 800 | 990 | 990 |
| HEAT TRANSFER SURFACE OF HEAT EXCHANGER | m2 | 2.5 | 3.3 | 3.3 |
| MAXIMUM TANK PRESSURE | bar | 3 | 3 | 3 |
| MAX. PRESSURE IN EXCHANGER TV | bar | 6 | 6 | 6 |
| MAX. PRESSURE IN HEAT EXCHANGER | bar | 10 | 10 | 10 |
| MAXIMUM TEMPERATURE OF WATER IN THE TANK | °C | 90 | 90 | 90 |
| MAXIMUM TEMPERATURE OF WATER IN THE EXCHANGER | °C | 90 | 90 | 90 |
| MAXIMUM WORKING TEMPERATURE IN THE HEAT EXCHANGER | °C | 110 | 110 | 110 |
| AMOUNT OF 40°C HOT WATER AT 53°C WATER TEMPERATURE IN THE TANK AND INLET WATER 15°C / HOT WATER FLOW |
l/(l/min) |
*260 / 10 |
490 / 10 |
*750 / 10 |
| AMOUNT OF 40°C HOT WATER AT 80°C WATER TEMPERATURE IN THE TANK AND INLET WATER 15 °C / HOT WATER FLOW |
l/(l/min) |
*650 / 10 |
1170 / 10 |
*1450 / 10 |
| MAXIMUM OUTPUT OF EL. HEATING ELEMENT OF TJ 6/4″ SERIES | kW | – | 2×6 | 2×6 |
| ENERGY EFFICIENCY CLASS | B | C | C | |
| STANDING LOSS | W | 76 | 113 | 126 |
IMPORTANT WARNING
Connection of the inner tank to HSW must comply with ČSN 06 0830, a safety valve has to be fitted on the cold water inlet.
It is necessary to activate the heating circuit and remove potential impurities that are captured in the filter; after that the system is fully functional.
The appliance has to be mounted at a convenient place, it means that the appliance must be easily available for potential necessary maintenance, repair or replacement, as the case may be.
No stop fitting can be put between the security fitting of the heating circuit and the storage tank!!!
Recommended operating pressure of hot water circle is 0.4 MPa.
We recommend checking and cleaning the inner vessel from scale and eventual replacement of the anode rod after two years of operation. The anode life is theoretically calculated for two years of operation; however, it changes with water hardness and chemical composition in the place of use.
Prior to commissioning, we recommend that you run the heating circuit and any impurities that are trapped in the filter clean, then the system is fully operational.
Shut down the reservoir cold water intake if you are not using the reservoir for longer than 24 hours or if the object with the heater is without presence of any person.
TECHNICAL DESCRIPTION
- Heating water outlet G1″
- Hot water outlet G3/4″
- Cold water inlet G3,4″
- Funnel for additional heating element TJ 6/4″ with an extended cooling compartment 2x
- Thermowell funnel 6x G1/2″ – for 750l and 1000l only
- Funnel for connecting another heating water source 6x G1″
- Inlet into exchanger G1″ (SOLAR)
- Outlet from exchanger G1″ (SOLAR)
- Funnel for discharge G1″
- Steel receptacle
- Exchanger for connecting solar collectors (heat pump)
- Inner enameled accumulator for service water heating

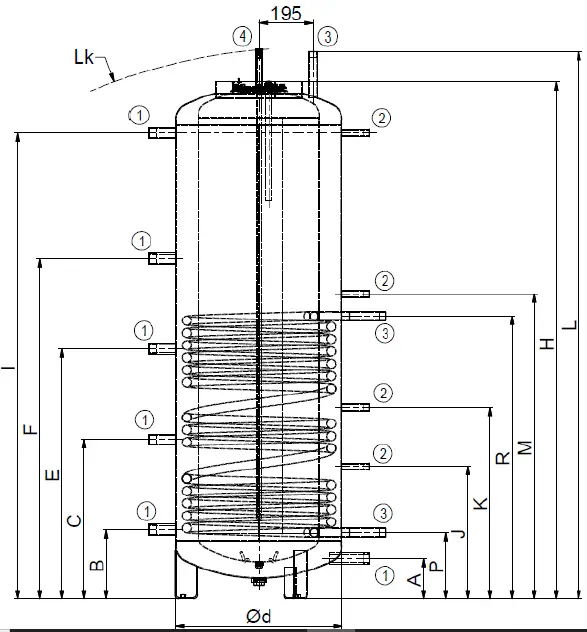
DIMENSIONS AND CONNECTION
NADO 500/200 v7
Funnels 6/4″ are fitted only with NADO 750, 1000/200 v7, for the electric heating element of TJ 6/4″ series with an extended cooling compartment!

| A | B | C | d | E | F | H | I | J | K | L | Lk | M | P | R |
| 146 | 249 | 574 | 600 | 901 | 1226 | 1835 | 1679 | 477 | 690 | 1982 | 2002 | 1099 | 239 | 1019 |
| 1 | G 1″ inner |
| 2 | G 1/2″ inner |
| 3 | G 1″ outer |
| 4 | G 3/4″ outer |
NADO 750/200 v7, NADO 1000/200 v7


| NADO 750/200 v7 | NADO 1000/200 v7 | |
| A | 157 | 159 |
| B | 259 | 261 |
| C | 585 | 587 |
| D | 790 | 790 |
| E | 911 | 913 |
| F | 1237 | 1239 |
| G | – | 1565 |
| H | 1815 | 2115 |
| I | 1609 | 1911 |
| J | 469 | 471 |
| K | 689 | 691 |
| L | 1954 | 2242 |
| Lk | 1994 | 2310 |
| M | 1109 | 1111 |
| N | – | 1411 |
| O | 1609 | 1901 |
| P | 249 | 251 |
| R | 909 | 911 |
| S | 1074 | 1076 |
| T | 275 | 275 |
| 1 | G 1″ inner |
| 2 | G 1/2″ inner |
| 3 | G 1″ outer |
| 4 | G 3/4″ outer |
| 5 | G 1 1/2″ inner |
Thermal insulation NEODUL LB PP
Insulation NEODUL of 80 mm thickness. It consists of an upper cover, flange cover and hole caps. Insulation is supplied in a separate packaging.
We recommend that the insulation was fitted at room temperature.
At temperatures significantly below 20 °C the insulation shrinks. This disables its easy fitting.

DISPOSAL OF PACKAGING MATERIAL AND NON-FUNCTIONING PRODUCT
A service fee for providing return and recovery of packaging material has been paid for the packaging in which the product was delivered. The service fee was paid pursuant to Act No 477/2001 Coll., as amended, at EKO-KOM a.s. The client number of the company is F06020274. Take the water tank packages to a waste disposal place determined by the municipality. When the operation terminates, disassemble and transport the discarded and unserviceable heater to a waste recycling center (collecting yard), or contact the manufacturer.
















