NIBE GROUP MEMBER
OPERATING AND
INSTALLATION MANUAL
INDIRECT WATER TANK
OKC 200 NTR/HP OKC 250 NTR/HP
OKC 300 NTR/HP OKC 400 NTR/HP
OKC 500 NTR/HP OKC 750 NTR/HP
OKC 1000 NTR/HP
OKC 200 NTR Indirect Water Tank
CAREFULLY READ THIS MANUAL BEFORE INSTALLING THE WATER HEATER!
Dear Customer,
The Works Cooperative of Dražice – Machine Plant, Ltd., would like to thank you for your decision to use a product of our brand. With this guide, we will introduce you to the use, construction, maintenance and other information on electrical water heaters.![]()
The product is not intended to be controlled by
a) people (including children) with reduced physical, sensual or mental capacities, or
b) people with insufficient knowledge and experiences unless supervised by responsible person, or unless properly instructed by such responsible person.
The manufacturer reserves the right for engineering modification of the product. The product is designed for permanent contact with drinkable water.
It is recommended to use the product in indoor environment with air temperatures from +2°C to +45°C and a relative humidity up to 80%. Product’s reliability and safety is proven by tests implemented by the Engineering Test Institute in Brno. Made in the Czech Republic.
Meaning of pictograms used in the Manual
Important information for heater users.
Abiding by the recommendations of the manufacturer serves to ensure trouble-free operation and the long service life of the product.
Caution!
Important notice to be observed.
PRODUCT TECHNICAL SPECIFICATION
1.1 FUNCTION DESCRIPTION
The OKC 200 (250, 300, 400, 500, 750, 1000) NTR/HP stationary tank is designed for the preparation of hot sanitary water in combination with heat pump. Reheat can be carried out by the electric heater TJ 6/4″.
1.2 DESIGN AND BASIC DIMENSIONS OF TANK
1.2.1 PRODUCT DESCRIPTION
The tank receptacle is welded of steel plate and, as a unit, protected with enamel that resists to hot water.
For additional corrosion protection two magnesium anodes are mounted in the upper part of the receptacle and in the side flange to adjust the electric potential inside the receptacle, thus reducing effects of corrosion. Inside the vessel there is a welded heat exchanger made of steel pipe with enameled outer coating, and connections of hot and cold water, circulation, and thermostat tank.
The pipe heat exchanger is only intended for the heating circuit.
There is a cleaning and revision aperture on the side of the tank, ended with a flange of 110 mm clearance; the spacing of eight M8 screws is 150 mm. The heater is equipped with a G 1 1/2″ aperture for screwing an additional heater in. This variant is used – if the tank is connected in a system with heat pump – to finish heating water in the upper part of the tank to the desired temperature. Insulation of the receptacle is 50 or 60 mm Freon – free polyurethane foam; the shell of the tank is plastic.
1.2.2 TECHNICAL DATA
| TYPE | OKC 200 NTR/HP | OKC 250 NTR/HP | OKC 300 NTR/HP | OKC 400 NTR/HP | OKC 500 NTR/HP | OKC 750 NTR/HP | OKC 1000 NTR/HP | |
| CAPACITY | l | 208 | 234 | 286 | 352 | 469 | 710 | 930 |
| HEIGHT | mm | 1355 | 1535 | 1558 | 1644 | 1914 | 2039 | 2053 |
| DIAMETER | mm | 584 | 584 | 670 | 700 | 700 | 950 | 1050 |
| MAX. WEIGHT WITHOUT WATER | kg | 102 | 119 | 133 | 190 | 223 | 259 | 324 |
| MAX. OPERATING PRESSURE IN THE TANK | bar | 10 | ||||||
| MAX. OPERATING OVERPRESSURE INTHE EXCHANGER | bar | 10 | ||||||
| MAX. HEATING WATER TEMPERATURE | °C | 110 | ||||||
| MAX. HOT WATER TEMPERATURE | °C | 80 | ||||||
| EXCHANGER HEAT SURFACE | m² | 2.1 | 2.5 | 3.2 | 5.2 | 6.4 | 7 | 9 |
| EXCHANGER VOLUME | l | 13.7 | 17 | 21 | 32 | 39 | 47 | 63 |
| ENERGY EFFICIENCY CLASS | C | |||||||
| STATIC LOSS | W | 82 | 87 | 72 | 90 | 105 | 130 | 142 |
Table 1
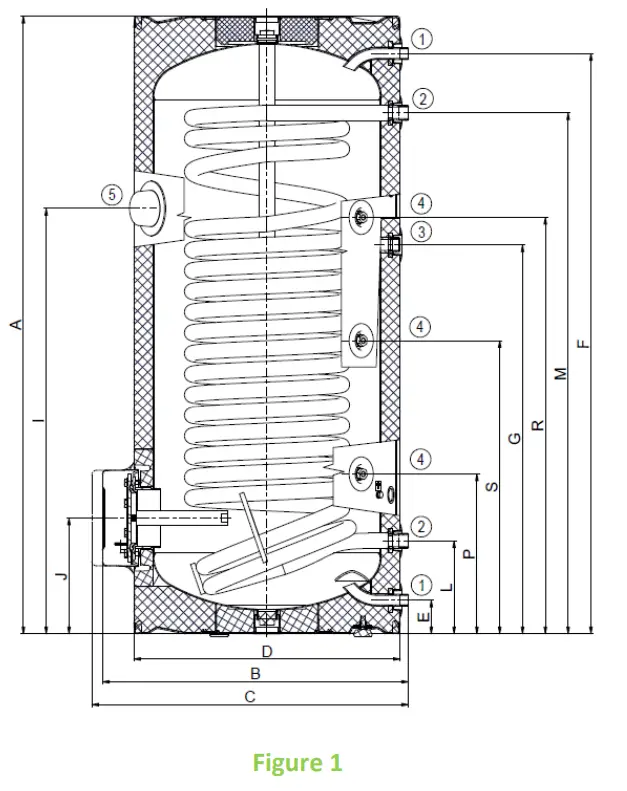
OKC 200 NTR/HP

| 1 | 3/4″ outer |
| 2 | 1″outer |
| 3 | 3/4″ inner |
| 4 | 1/2″ inner |
| 5 | 6/4″ inner |
OKC 200 NTR/HP
| A | 1355 |
| B | 660 |
| C | 710 |
| D | 584 |
| E | 75 |
| F | 1275 |
| G | 855 |
| I | 805 |
| J | 255 |
| L | 205 |
| M | 1145 |
| P | 350 |
| R | 915 |
| S | 645 |
Table 2
OKC 250 NTR/HP

| 1 | 3/4″ outer |
| 2 | 1″outer |
| 3 | 3/4″ inner |
| 4 | 1/2″ inner |
| 5 | 6/4″ inner |
OKC 250 NTR/HP
| A | 1535 |
| B | 660 |
| C | 710 |
| D | 584 |
| E | 75 |
| F | 1455 |
| G | 1055 |
| I | 925 |
| J | 255 |
| L | 205 |
| M | 1325 |
| P | 350 |
| R | 1095 |
| S | 885 |
Table 3
OKC 300 NTR/HP

| 1 | 1″outer |
| 2 | 3/4″ inner |
| 3 | 1/2″ inner |
| 4 | 6/4″ inner |
OKC 300 NTR/HP
| A | 1558 |
| B | 750 |
| C | 775 |
| D | 670 |
| E | 77 |
| F | 1579 |
| G | 760 |
| I | 895 |
| J | 325 |
| L | 219 |
| M | 1309 |
| P | 438 |
| R | 1148 |
| S | 937 |
Table 4
OKC 400 – 500 NTR/HP

| 1 | 1″outer |
| 2 | 3/4″ inner |
| 3 | 5/4″ inner |
| 4 | 1/2″ inner |
| 5 | 6/4″ inner |
| OKC 400 NTR/HP | OKC 500 NTR/HP | |
| A | 1644 | 1914 |
| B | 812 | 812 |
| C | 852 | 852 |
| D | 700 | 700 |
| E | 55 | 55 |
| F | 1521 | 1790 |
| G | 843 | 1023 |
| I | 1138 | 1310 |
| J | 288 | 288 |
| L | 228 | 228 |
| M | 1081 | 1253 |
| P | 592 | 592 |
| R | 1237 | 1409 |
| S | 956 | 1128 |
Table 5
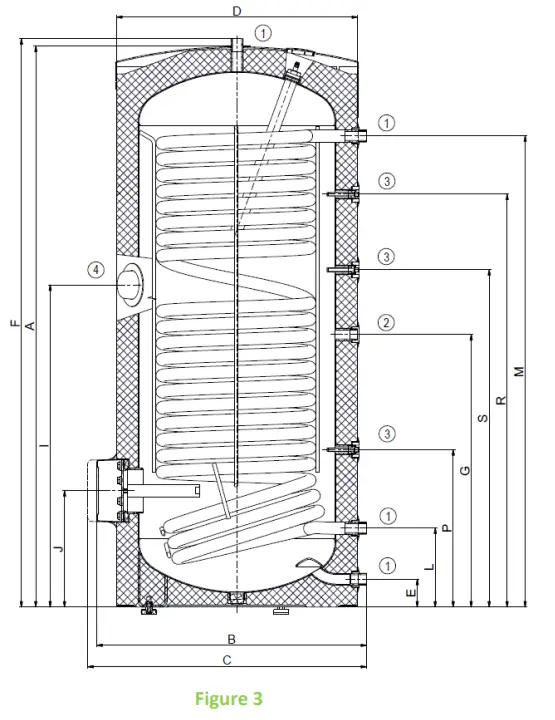
OKC 750 – 1000 NTR/HP

| 1 | 5/4″outer |
| 2 | 6/4″ inner |
| 3 | 3/4″ inner |
| 4 | 5/4″ inner |
| OKC 750 NTR/HP | OKC 1000 NTR/HP | |
| A | 2039 | 2053 |
| B | 1017 | 1117 |
| D | 950 | 1050 |
| D3 | 225 | 225 |
| E | 105 | 105 |
| F | 1891 | 1905 |
| G | 1123 | 1173 |
| I | 1491 | 1547 |
| J | 383 | 391 |
| K | 727 | 780 |
| L | 294 | 301 |
| M | 1433 | 1483 |
Table 6
1.2.3 PRESSURE LOSSES

OPERATION AND FITTING INSTRUCTIONS
2.1 PUTTING THE TANK INTO OPERATION
To connect the tank to water supply system, hot water heating system or power supply and, after testing the safety valve (accordingly with the manual attached to the valve), the tank can be put in operation. Before opening the power supply, the tank must be filled with water. The process of first heating must be executed by licensed professional who has to check it. Both the hot water outlet pipe and safety armature parts may be hot.
Procedure:
a) Check the plumbing and electrical installation, including the connection to hot-water heating system.
Check proper placement of operating and safety thermostat sensors. The sensors must be inserted all the way in; first the operating and then the safety thermostat.
b) open the hot water valve on the combination faucet;
c) open the cold water inlet valve to the tank
d) once water starts draining through the hot water valve, filling of the tank is completed, and the valve must be closed
e) should a leak (of the flange lid) occur, we recommend tightening the screws of the flange lid.
f) when sanitary water is heated with electric energy from hot water heating system, turn off electricity an open the valves on the heating water inlet and outlet, possibly de-aerate the exchanger. Once the operation restarts, keep flushing the tank until the cloud disappears
g) Make sure to fill in properly the warranty certificate.
2.2 CONNECTING A TANK TO HOT WATER SYSTEM

Heater with volume exceeding 200 liters at the outlet hot water piping provide combined temperature and pressure safety fittings according to ČSN EN 1490, or the temperature safety fittings fitted with water temperature sensor placed in the heater or other safety valves DN 20, and the opening overpressure compliant with the maximum operating overpressure of the heater vessel. The safety valve does not replace the safety valve on the cold water inlet. No closing, return armature, and filter may be mounted between the heater and the safety valve.
At fixtures with discharge valve for potential drain of water from the tank have to be mounted on the cold water inlet of the tank.
The cold water inlet of each individually closable heater must be fitted with a seal, test tap or plug to check the non-return valve, as well as a non-return valve and safety valve. Heaters with a volume of more than 200 liters must also be fitted with a pressure gauge. Each independently closing tank must be further provided on the hot water inlet with a test valve, backflow valve, safety valve and manometer.
2.3 PLUMBING FIXTURE
Power water connects to pipes with 3/4″ thread in the bottom part of the tank. Blue – cold water inlet; red – hot water outlet. For potential disconnection of the tank, the sanitary water inlets and outlets must be provided with screw coupling Js 3/4″. The safety valve is mounted on the cold water inlet identified with a blue ring.
Every hot sanitary water pressure tank shall be equipped with membrane spring loaded with safety valve. Nominal clearance of safety valves is defined by standard. Tanks are not equipped with a safety valve. Safety valve shall be easily accessible, fitted as close as possible to the tank. The inlet pipes must have at least the same clearance as the safety valve. Safety valve is placed high enough to secure dripping water drain by gravity. We recommend mounting the safety valve onto a branch pipe. Easier exchange without the necessity of draining water from the tank. Safety valves with fixed pressure settings from the manufacturer are used for the assembly. The starting pressure of the safety valve must be identical to the maximum allowed pressure of the tank, and at least 20 % higher than the maximum pressure in the water main (Table 7). If the water main pressure exceeds such value, a reduction valve must be added to the system. No closing armature may be mounted between the tank and the safety valve. During the assembly, follow the guide provided by the safety equipment manufacturer.
It is necessary to check the safety valve each time before putting it into operation. It is checked by manual moving of the membrane from the seat, turning the make-and-break device button always in the direction of the arrow. After being turned, the button must click back into a notch. Proper function of the make-and-break device results in water draining through the safety valve outlet pipe. In regular operation, such a check needs to be carried out at least once a month, and after each shutdown of the tank longer than 5 days. Water may be dripping off the drain pipe of the safety valve; the pipe must be open into the air, pointed down; environment temperatures must not drop below zero. When draining the tank, use the recommended drain valve. First of all, close water inlet in the tank.
Find necessary pressure values in the below Table 7. Backflow valve must be fitted on the inlet pipe to ensure the right operation of safety valve that prevents spontaneous heater draining of the tank and hot water penetration back into the water main. We recommend that the hot water distribution from the tank is as short as possible in order to reduce heat losses. At least one demountable joint must be mounted between the tank and every supply pipe. Adequate piping and fittings with sufficiently dimensioned maximum temperature and pressure values must be used.
Tanks must be provided with discharge valve mounted on the cold sanitary water inlet to the tank for potential disassembly or repair. When assembling the security equipment, follow the standard.
| SAFETY VALVE START-UP PRESSURE [bar] | ACCEPTABLE OPERATING OVER-PRESSURE OF WATER TANK [bar] | MAXIMUM PRESSURE IN COLD WATER PIPES [bar] |
| 6 | 6 | up to 4,8 |
Table 7
2.4 CONNECTION OF TANK TO HOT WATER DISTRIBUTION SYSTEM
The tank is placed on the floor next to the heating source or in its proximity. The heating circuit shall be connected to marked tank exchanger inputs and outputs, and bleeder valve installed at the highest point. It is necessary to install a filter into the circuit in order to protect pumps, three-way valve, backflow flaps and the exchanger from sedimentation. It is recommended to flush the heating circuit before the assembly. All wiring connections must be properly insulated from heat. If the system works with priority heating of HUW using a three-way valve, always follow the installation instructions of the three-way valve’s manufacturer. Example of group connection of tanks by Tichellman method for equal HSW withdrawal of from all tanks

2.5 CLEANING OF TANK AND EXCHANGE OF ANODE ROD
Repetitive water heating causes limestone sediment on both the enameled tank walls and chiefly the flange lid. The sedimentation depends on the hardness of water heated, its temperature, and amount of hot water consumed.
We recommend checking and cleaning the vessel from scale and eventual replacement anode rod after two years of operation
The anode life is theoretically calculated for two years of operation; however, it changes with water hardness and chemical composition in the place of use. Based on such an inspection, the next term of anode rod exchange may be determined. Have a company in charge of service affairs deal with the cleaning and exchanging of the anode. When draining water from the tank, the combination faucet valve for hot water must be open, preventing the occurrence of under-pressure in the tank receptacle which would stop water from draining.
To prevent the occurrence of bacteria (e.g. Legionella pneumophila) within stack heating it is recommended, if absolutely necessary, to increase the temperature of hot sanitary water (HSW) periodically for a transitional period of time to at least 70 °C. It is also possible to make use of another way of disinfecting HSW.
PROCEDURE OF EXCHANGING ANODE ROD IN UPPER PART OF THE TANK
- Turn off control voltage to the tank
- Drain water from 1/5 tank.
PROCEDURE: Close water inlet in the tank Open the hot water valve on the combination faucet.
Open the drain tap of the tank - Anode is screwed in under the plastic cover in the upper lid of the tank
- Unscrew the anode using adequate wrench
- Pull the anode out and follow reversed steps to install a new one
- During the fitting, make sure the grounding cable (300 l) is connected properly; this is the condition of the anode’s proper functioning
- Fill the tank with water
PROCEDURE OF EXCHANGING ANODE ROD IN SIDE FLANGE
- Turn off control voltage to the tank
- Drain water from the tank.
PROCEDURE: Close water inlet in the tank Open the hot water valve on the combination faucet. Open the drain tap of the tank - One anode is screwed in under the plastic cover in the upper lid of the tank, and the other one is screwed in on the side flange
- Unscrew the anode using adequate wrench
- Pull the anode out and follow reversed steps to install a new one
- Fill the tank with water
2.6 SPARE PARTS
– magnesium anode When ordering spare parts always state the name of the part, the type and type number from the tank’s plate.
IMPORTANT NOTICES
3.1 IMPORTANT NOTICES
Without a proof issued by a professional company about performed electrical and plumbing fixture the warranty shall be void.
Protective magnesium anode must be checked regularly and replaced, if necessary.
No closing armature may be mounted between the tank and the safety valve.
All outlets of hot water must be equipped with combination faucets.
Prior to the first filling the tank with water we recommend that the receptacle’s flange connection nuts are tightened.
3.2 INSTALLATION REGULATIONS
Both the electric and water installation must follow and meet the requirements and regulations relevant in the country of use!
3.3 DISPOSAL OF PACKAGING MATERIAL AND NONFUNCTIONING PRODUCT
A service fee for providing return and recovery of packaging material has been paid for the packaging in which the product was delivered. The service fee was paid pursuant to Act No 477/2001 Coll., as amended, at EKO-KOM a.s. The client number of the company is F06020274. Take the water tank packages to a waste disposal place determined by the municipality. When the operation terminates, disassemble, and transport the discarded and unserviceable heater to a waste recycling center (collecting ard), or contact the manufacturer.
www.dzd.cz
Traditions since 1956
Družstevní závody Dražice-strojírna s.r.o.
Dražice 69, 294 71 Benátky nad Jizerou
tel.: +420 / 326 370 911
fax: +420 / 326 370 980
e-mail: [email protected]

















