
OPERATING AND
INSTALLATION MANUAL
STATIONARY ELECTRIC WATER HEATERS AND
HOT WATER STORAGE TANKS

| OKCE 100 S/2.2 kW OKCE 125 S/2.2 kW | OKCE 160 S, OKCE 200 S, OKCE 250 S | OKCE 300 S,OKCE 400 S, OKCE 500 S OKCE 750 S, OKCE 1000 S |
Dražice 69, 294 71 Benátky nad Jizerou
tel.: +420 / 326 370 911
fax: +420 / 326 370 980
e-mail: [email protected]
www.dzd.cz
CAREFULLY READ THIS MANUAL BEFORE INSTALLING THE WATER HEATER!
Dear Customer,
Družstevní závody Dražice – strojírna s.r.o., would like to thank you for your decision to use a product of our brand. With this guide, we will introduce you to the use, construction, maintenance, and other information on electrical water heaters.
The product is not intended to be controlled by
a) people (including children) with reduced physical, sensual or mental capacities, or
b) people with insufficient knowledge and experiences unless supervised by a responsible person, or unless properly instructed by such a responsible person.
The manufacturer reserves the right for engineering modification of the product. The product is designed for permanent contact with drinkable water.
It is recommended to use the product in an indoor environment with air temperatures from +2 °C to +45 °C and relative humidity up to 80 %.
The product’s reliability and safety is proven by tests implemented by the Engineering Test Institute in Brno.
Made in the Czech Republic.
Meaning of pictograms used in the Manual
Important information for heater users.
Abiding by the recommendations of the manufacturer serves to ensure trouble-free operation and the long service life of the product.
Caution!
Important notice to be observed.
PRODUCT TECHNICAL SPECIFICATION
FUNCTION DESCRIPTION
OKCE S line water heaters and hot water storage tanks use only electricity for heating. Their nominal performance provides a sufficient amount of hot water for flat units, premises, restaurants, and similar establishments.
PRODUCT DESCRIPTION
OKCE 100 – 125 S/2.2kW
The heater tank is welded from a steel sheet; it is entirely coated with hot water-resistant enamel.
For additional corrosion protection, a magnesium anode is mounted in the upper part of the heater to adjust the electric potential inside the tank, reducing the risk of corrosion. The vessels have outlets of hot and cold water and a circulation opening welded to them. A flange is welded onto the upper bottom of the receptacle with a flanged lid screwed to it. A sealing ring is inserted between the flange lid and the flange. Thermowells for placing a heating element and sensors of the regulation thermostat and safety fuse are located in the flanged lid. Electric wiring is placed underneath the plastic removable cover. A temperature indicator is placed on the heater’s housing. The tank is insulated with 42 mm of polyurethane foam. The heater housing is made of steel sheet provided with a powder coating.
OKCE 160 – 300 S
The heater tank is welded from a steel sheet; it is entirely coated with hot water-resistant enamel. For additional corrosion protection, a magnesium anode is mounted in the upper part of the heater to adjust the electric potential inside the tank, reducing the risk of corrosion. The vessels have outlets of hot and cold water and a circulation opening welded to them. At the heaters on the side under the plastic cover, there is a cleaning and revision opening ended with a flange; various performance heating units may be mounted into the opening. The heater includes opening G 6/4″ which enables the assembly of heating unit series TJ G 6/4“. Temperature indicator is placed on the heater’s housing. The tank is insulated with 42 mm of polyurethane foam. The heater housing is made of steel sheet provided with a powder coating.
OKCE 400 – 500 S
The storage tank is welded from a steel sheet; it is entirely coated with hot water-resistant enamel. For additional corrosion protection, a magnesium anode is mounted in the upper part of the tank to adjust the electric potential inside the tank, reducing the risk of corrosion. The vessels have outlets of hot and cold water and a circulation opening welded to them. At the hot water storage tanks on the side under the plastic cover, there is a cleaning and revision opening ended with a flange; various performance heating units may be mounted into the opening. The hot water storage tank includes opening G 6/4″ which enables
the assembly of heating unit series TJ G 6/4″. Temperature indicator is placed on the hot water storage tank’s housing. The tank is insulated with 50 mm of polyurethane foam. The plastic housing (reinforced with polystyrene) is fitted on the hot water storage tank.
OKCE 750 – 1000 S
The storage tank is welded from a steel sheet; it is entirely coated with hot water-resistant enamel. For additional corrosion protection, a magnesium anode is mounted in the upper part of the tank on the side to adjust the electric potential inside the tank, reducing the risk of corrosion. The vessels have outlets of hot and cold water and a circulation opening welded to them. At the hot water storage tanks on the side under the plastic cover, there is a cleaning and revision opening ended with a flange; various performance heating units with various flanges may be mounted into the opening. A temperature indicator is placed on the hot water storage tank’s housing. The heaters include thermal insulation NEODUL with a thickness of 80 mm.
DESIGN AND GENERAL DIMENSIONS OF WATER HEATERS AND HOT WATER STORAGE TANKS

| OKCE 100 S/2.2kW | OKCE 125 S/2.2kW | |
| A | 902 | 1067 |
| D | 524 | 524 |
| E | 892 | 1057 |
| G | 535 | 635 |
| H | 145 | 145 |
Table 1
| ① | 3/4″ outer |
| ② | 3/4″ inner |
| ③ | 1/2″ inner |

| ① | 3/4″ outer |
| ② | 3/4″ inner |
| OKCE 160 S | |
| A | 1045 |
| B | 660 |
| C | 720 |
| D | 584 |
| E | 75 |
| F | 962 |
| G | 515 |
| J | 289 |
Table 2

| ① | 3/4″ outer |
| ② | 3/4″ inner |
| ③ | 6/4″ inner |
| OKCE 200 S | OKCE 250 S | |
| A | 1355 | 1535 |
| B | 660 | 660 |
| C | 720 | 720 |
| D | 584 | 584 |
| E | 75 | 75 |
| F | 1275 | 1455 |
| G | 855 | 1055 |
| I | 810 | 810 |
| J | 285 | 285 |
Table 3

| ① | 1″ outer |
| ② | 3/4″ inner |
| ③ | 6/4″ inner |
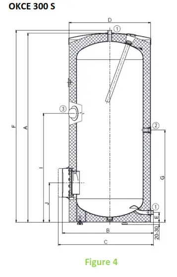
| OKCE 300 S | |
| A | 1558 |
| B | 750 |
| C | 810 |
| D | 670 |
| E | 77 |
| F | 1579 |
| G | 760 |
| I | 895 |
| J | 325 |
Table 4

| ① | 1″ outer |
| ② | 3/4″ inner |
| ③ | 1/2″ inner Sensor well |
| ④ | 6/4″ inner |
| OKCE 400 S | OKCE 500 S | |
| A | 1920 | 1924 |
| B | 750 | 800 |
| C | 810 | 860 |
| D | 650 | 700 |
| E | 79 | 55 |
| F | 1799 | 1790 |
| G | 1194 | 1264 |
| I | 1005 | 1040 |
| J | 304 | 287 |
| P | 514 | 380 |
| R | 1289 | 1409 |
Table 5

| ① | 2″ outer |
| ② | 5/4″ inner |
| ③ | 1/2″ inner |
| ④ | 5/4″ outer |
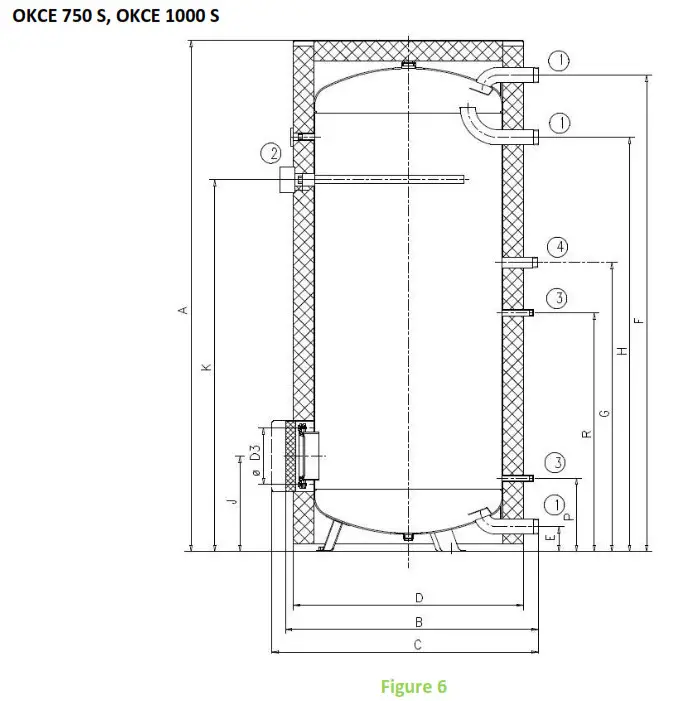
| OKCE 750 S | OKCE 1000 S | |
| A | 2030 | 2050 |
| B | 1030 | 1130 |
| C | max. 1140 | max. 1240 |
| D | 910 | 1010 |
| D3 | 225 | 225 |
| E | 100 | 100 |
| F | 1893 | 1910 |
| G | 1147 | 1155 |
| H | 1642 | 1650 |
| J | 382 | 390 |
| K | 1477 | 1515 |
| P | 292 | 300 |
| R | 947 | 955 |
Table 6
TECHNICAL PARAMETERS
| MODEL | OKCE 100 S /2.2kW | OKCE 125 S /2.2 kW | OKCE 160 S | OKCE 200 S | OKCE 250 S | OKCE 300 S |
| VOLUME [l] | 98 | 128 | 157 | 210 | 250 | 300 |
| WEIGHT [kg] | 39 | 45 | 52 | 72 | 76 | 80 |
| MAXIMUM TANK PRESSURE [bar] | 6 | |||||
| MAX WARM WATER TEMPERATURE [°C] | 80 | |||||
| HEATING PERIOD FROM10°C – 60 °C [h] | 2.6 | 3.3 | According to TPK type (accessory) | |||
| MIXED WATER V40 [l] | 133.17 | 156.44 | 235.47 | 362.16 | 418.23 | 419.08 |
| LOAD PROFILE | M | L | L | XL | XL | XL |
| ENERGY EFFICIENCY CLASS | C | C | C | C | C | C |
| ENERGY EFFICIENCY [%] | 38 | 39 | 39 | 39 | 40 | 38 |
| ANNUAL CONSUMPTION OF EL. ENERGY [kWh] | 1349 | 2637 | 2612 | 4301 | 4215 | 4361 |
Table 7
| MODEL | OKCE 400 S | OKCE 500 S | OKCE 750 S | OKCE 1000 S |
| VOLUME [l] | 389 | 462 | 745 | 969 |
| WEIGHT [kg] | 97 | 106 | 158 | 206 |
| MAXIMUM TANK PRESSURE [bar] | 10 | |||
| MAX WARM WATER TEMPERATURE [°C] | 80 | |||
| HEATING PERIOD FROM 10°C – 60 °C [h] | Based on the selected power input of the built-in unit | |||
| ENERGY EFFICIENCY CLASS | C | C | C | C |
| STATIC LOSS | 99 | 110 | 127 | 140 |
OPERATION AND FITTING INSTRUCTIONS
OPERATING CONDITIONS
The water heater and hot water storage tank shall only be used in accordance with the conditions specified on the power plate and in instructions for electric wiring. Besides legally acknowledged national regulations and standards, also conditions for connection defined in local electric and waterworks have to be adhered to, as well as the installation and operation manual.
The temperature at the place of water heater (hot water storage tank) installation must be higher than +2 °C, and the room must not freeze. The appliance has to be mounted at a convenient place; it means that the appliance must be easily available for potential necessary maintenance, repair or replacement, as the case may be.
If water is strongly calcareous we recommend that any of the common decalcifying devices was installed with the appliance, or that the thermostat was set to the maximum operating temperature of 55 °C (setting to position „OPTIMUM“) – Figure 20. For proper operation, drinkable water of adequate quality shall be used. To avoid potential sediments, we recommend that the water heater (hot water storage tank) was installed together with a water filter.
ELECTRICAL INSTALLATION
2.2.1 WIRING FOR: OKCE 100 S/2.2 KW; OKCE 125 S/2.2 KW
Perform the connection according to the scheme. Factory connection must not be changed! (Figure 8). In the electric wiring, the casing removes the partition corresponding with the input wire diameter of Ø8 or Ø10 (Figure 7). The degree of protection of electric parts of the heater is IP 42. The power input of the electric element is 2200 W.

Connection, repairs, and wiring inspections may only be implemented by a company (person) authorized to such activity.
The expert connection must be confirmed on the warranty certificate.
The water heater is connected to the 230 V/50 Hz electric network using a fixed moving conductor with the circuit breaker (protector).
Wiring diagram:

2.2.2 WIRING FOR: OKCE 160 S, OKCE 200 S, OKCE 250 S, OKCE 300 S, OKCE 400 S, OKCE 500 S
Water heaters and hot water storage tanks must be equipped with a universal electric heating unit with either set or adjustable heating element performance. A heating unit consists of a flange, to which one or three wells for ceramic heating elements and one thermowell are welded (see Figure 9, Figure 10, Figure 12). The unit is fixed with 12 screws M12 with spacing 210 mm. In the wiring plastic cover, there is a thermostat and a safety fuse; heater operation control light; and a lead-in wire bushing.
The sensors must be inserted all the way in; first the thermostat and then the safety fuse.
The performance of the heating unit may be adjusted based on either required heating time or connecting possibilities of electric energy distribution in the place of use.
Parameters of an electric heating unit for:
OKCE 160 S, OKCE 200, OKCE 250, OKCE 300 S, OKCE 400 S, OKCE 500 S
| TYPE | PERFOR MANCE [kW] | VOLTAGE [V/Hz] | BUILD-UP LENGTH L [mm] | IP PROTECTION | WEIGHT [kg] | MOUNTING |
| TPK 210 – 12/2.2 kW | 2.2 | 1 PE-N ~ 230 V/50 Hz | 440 | IP 44 | 6.6 | 12 x M12 |
| TPK 210 – 12/3-6 kW | 3/4/2006 | 3 PE-N ~ 400 V/50 Hz | 440 | IP 44 | 12 | 12 x M12 |
| TPK 210 – 12/5-9 kW | 5/7/2009 | 3 PE-N ~ 400 V/50 Hz | 550 | IP 44 | 13.6 | 12 x M12 |
| TPK 210 – 12/12 kW | 12 | 3 PE-N ~ 400 V/50 Hz | 550 | IP 44 | 14 | 12 x M12 |
Table 9
After the water heater (hot water storage tank) is connected to the electric network, the heating element starts heating water. The element is turned on and off by a thermostat. The thermostat can be set as per your need within the range from 5 °C to 75 °C. We recommend setting service water to a maximum temperature of 60 °C. This temperature ensures an optimal operation of the water heater (hot water storage tank), reduces heat losses, and saves electricity. After reaching the temperature set, the thermostat switches off the electric circuit and thus discontinues water heating. The control light signals if the element is in operation (light is on) or if it is off (the light goes out).
When shutting the water heater (hot water storage tank) out for an extended period, in winter you can set the thermostat to the snowflake sign preventing the water from freezing or turning off the inlet of electricity to the heater (hot water storage tank).
Connection, repairs, and wiring inspections may only be implemented by the company (person) authorized to such activity. Expert connection must be confirmed on the warranty certificate.
Installations in bathrooms, laundry rooms, restrooms and showers, must be in compliance with the valid standard. Adhere to the protection against electric shock injury according to valid standards.
The water heater (hot water storage tank) is connected to the electric network using a solid moving conductor with the circuit breaker (protector).
The degree of protection of electric parts of the heater is IP 44.
Heating unit – flanges


Wiring scheme
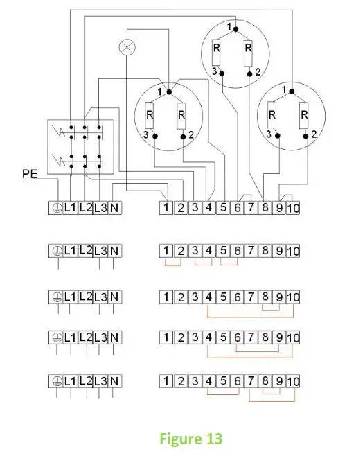
Heating unit 3-6 kW
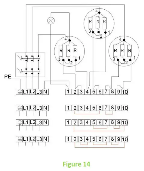
The 3-6 kW heating unit allows 4 types of connection based on either required time of heating or possibilities of electric network in the place of use.
TPK 3-6 kW R ~ 1 kW
To achieve the chosen performance of the heating unit, connect the inlet conductor to L1, L2, L3, and N terminal board, and interconnect the clips on the 1-10 terminal board in accordance with the following schemes:
3 kW 1 PE – N AC 230 V / 50 Hz
3 kW 2 PE – N AC 400 V / 50 Hz
4 kW 3 PE – N AC 400 V / 50 Hz
6 kW 3 PE – N AC 400 V / 50 Hz

Heating unit:
TPK 210-12/5-9 kW
TPK 5-9 kW R ~ 1 kW
TPK 5-9 kW
5 kW 3 PE – N AC 400 V / 50 Hz
7 kW 3 PE – N AC 400 V / 50 Hz
9 kW 3 PE – N AC 400 V / 50 Hz

Heating unit:
TPK 210-12/12kW
TPK 12 kW R ~ 1.33 kW
TPK 12 kW
12 kW 3 PE – N AC 400 V / 50 Hz

2.2.3 WIRING SOLELY FOR: OKCE 300 S, OKCE 400 S, OKCE 500 S, OKCE 750 S OKCE 1000 S
Heating units use
| Capacity | Flange size | Time of heating from 10 °C to 60 °C [hours] | |||||||
| L | mm | 8 | 6 | 5 | 4 | 3 | 2,5 | 2 | 1,5 |
| 750 | Flange 0150 | RDU 18-6 | RDW 18-7.5 | RDW 18-10 | RSW 18 -12 | RSW -18 -15 | |||
| flange 0225 | SE 377-8 | SE 378-9.5 | SE 377-11 | SE 378-14 | SE 377-16 | SE 378-19 | |||
| 1000 | flange 0150 | RDW 18-7.5 | RDW 18-10 | RSW 18 -12 | RSW 18 -15 | ||||
| flange 0225 | SE 377-8 | SE 378-9.5 | SE 377-11 | SE 378-14 | SE 377-16 | SE 378-19 | |||
| Capacity | Flange size | Time of heating from 10 °C to 60 °C [hours] | |||||||
| L | mm | 8 | 6 | 5 | 4 | 3 | 2,5 | 2 | 1,5 |
| 300 | flange 0210 | RDU 18-2.5 | RDU 18-3 | RDU 18-3.8 | RDU 18-5 | RDU 18-6 | RDW 18-7.5 | RDW 18-10 | |
| 400 | flange 0210 | RDU 18-3 | RDU 18-3.8 | RDU 18-5 | RDU 18-6 | RDW 18-7.5 | RDW 18-10 | RSW 18 -12 | RSW 18-15 |
| 500 | flange 0210 | RDU 18-3.8 | RDU 18-5 | RDU 18-6 | RDW 18-7.5 | RDW 18-10 | RSW 18 -12 | RSW 18 -15 | |
Table 10
Electrical heating units REU, RDU, RDW, and RSW can be by reduction flange 210/150 mounted in water heaters and hot water storage tanks with 300, 400 and 500-liter volumes.
Electrical heating units REU, RDU, RDW, and RSW can be by reduction flange 225/150 mounted in hot water storage tank with 750 and 1000 liter volume.
| Type | Output [kW] | Connection | Element length [mm] | Weight [kg] |
| REU 18 – 2.5 | 2.5 | 1 PE-N AC 230 V /50 Hz | 450 | 3 |
| RDU 18 – 2.5 | 2.5 | 3 PE-N AC 400 V / 50 Hz | 450 | 3.3 |
| RDU 18 – 3 | 3 | 3 PE-N AC 400 V / 50 Hz | 450 | 3.4 |
| RDU 18 – 3.8 | 3.8 | 3 PE-N AC 400 V / 50 Hz | 450 | 3.5 |
| RDU 18 – 5 | 5 | 3 PE-N AC 400 V / 50 Hz | 450 | 3.5 |
| RDU 18 – 6 | 6 | 3 PE-N AC 400 V / 50 Hz | 450 | 3.5 |
| RDW 18 – 7.5 | 7.5 | 3 PE-N AC 400 V / 50 Hz | 450 | 3.7 |
| RDW 18 – 10 | 10 | 3 PE-N AC 400 V / 50 Hz | 450 | 4 |
| RSW 18 – 12 | 12 | 3 PE-N AC 400 V / 50 Hz | 530 | 4 |
| RSW 18 – 15 | 15 | 3 PE-N AC 400 V / 50 Hz | 630 | 4.2 |
| SE 377* | 8.0-11-16 | 3 PE-N AC 400 V / 50 Hz | 610 | 8 |
| SE 378* | 9.5-12,7-19 | 3 PE-N AC 400 V / 50 Hz | 740 | 11.5 |
* Only for the hot water storage tank 750 and 1000 liters
Table 11
| Capacity | Time of heating from 10 °C to 60 °C [hours] | |||||||
| L | 8 | 6 | 4.5 | 3.5 | 3 | 2.5 | 1.8 | 1.4 |
| 300 | TPK 210/2,2 | TPK 210/3-6 | TPK 210/3-6 | TPK 210/5-9 | TPK 210/3-6 | TPK 210/5-9 | TPK 210/5-9 | TPK 210/12 |
| Connection | 2.2 kW | 3 kW | 4 kW | 5 kW | 6 kW | 7 kW | 9 kW | 12 kW |
Table 12
| Capacity | Time of heating from 10 °C to 60 °C [hours] | |||||||
| L | 11.3 | 8 | 6 | 4.7 | 4 | 3.4 | 2.6 | 2 |
| 400 | TPK 210/2,2 | TPK 210/3-6 | TPK 210/3-6 | TPK 210/5-9 | TPK 210/3-6 | TPK 210/5-9 | TPK 210/5-9 | TPK 210/12 |
| Connection | 2.2 kW | 3 kW | 4 kW | 5 kW | 6 kW | 7 kW | 9 kW | 12 kW |
Table 13
| Capacity | Time of heating from 10 °C to 60 °C [hours] | |||||||
| L | 14.1 | 9.8 | 7.5 | 6 | 5 | 4.2 | 3.3 | 2.5 |
| 500 | TPK 210/2,2 | TPK 210/3-6 | TPK 210/3-6 | TPK 210/5-9 | TPK 210/3-6 | TPK 210/5-9 | TPK 210/5-9 | TPK 210/12 |
| Connection | 2.2 kW | 3 kW | 4 kW | 5 kW | 6 kW | 7 kW | 9 kW | 12 kW |
Table 14

2.2.4 PLUMBING FIXTURE
Power water connects to pipes with 3/4″ thread in the bottom part of the water heater (hot water storage tank). Blue – cold water supply, red – hot water outlet. For potential disconnection of the water heater (hot water storage tank), the service water inlets and outlets must be provided with screw coupling Js 3/4″. The safety valve is mounted on the cold water inlet identified with a blue ring.
Each water heater (hot water storage tank) must have a safety valve with a membrane spring. Nominal clearance of safety valves is defined by the standard. Heaters 300 l are supplied without safety valve. The safety valve must be easily accessible, as close to the water heater (hot water storage tank) as possible. The inlet pipes must have at least the same clearance as the safety valve. The safety valve is placed high enough to secure dripping water drain by gravity. We recommend mounting the safety valve onto a branch pipe. This allows easier exchange without having to drain the water from the heater. Safety valves with fixed pressure settings from the manufacturer are used for the assembly. Starting pressure of a safety valve must be identical to the maximum allowed water heater (hot water storage tank) pressure, and at least 20 % higher than the maximum pressure in the water main (Table 15). If the water main pressure exceeds such value, a reduction valve must be added to the system. No stop valves can be put between the water heater (hot water storage tank) and the safety valve. During assembly, follow the guide provided by the safety equipment manufacturer. The cold water inlet of each individually closable water heater (storage tank) must be fitted with a seal, test tap or plug to check the nonreturn valve, as well as a non-return valve and safety valve. Water heaters and hot water storage tanks with a volume of more than 200 liters must also be fitted with a pressure gauge.
It is necessary to check the safety valve each time before putting it into operation. It is checked by the manual moving of the membrane from the seat, turning the make-and-break device button always in the direction of the arrow. After being turned, the button must click back into a notch. Proper function of the make-and-break device results in water draining through the safety valve outlet pipe. In common operation, such a check needs to be implemented at least once a month, and after each water heater (hot water storage tank) shut down for more than 5 days. Water may be dripping off the drainpipe of the safety valve; the pipe must be open into the air, pointed down; environment temperatures must not drop below zero. When draining the water heater (hot water storage tank), use the recommended drain valve. First, close the water supply into the water heater (hot water storage tank).
Find necessary pressure values in the below – Table 15. For proper safety valve operation, a backflow valve shall be mounted on the inlet pipes, preventing spontaneous water heater (hot water storage tank) draining and hot water from penetrating back into the water main. We recommend that the hot water distribution from the water heater (hot water storage tank) was as short as possible to minimize heat losses. At least one demountable joint must be mounted between the water heater (hot water storage tank) and every supply pipe. Adequate piping and fittings with sufficiently dimensioned maximum temperature and pressure values must be used.
Water heaters (hot water storage tanks) must be provided with a discharge valve mounted on the cold service water inlet to the water heater (hot water storage tank) for potential disassembly or repair. When assembling the security equipment, follow the standard.
| SAFETY VALVE START-UP PRESSURE [MPa] | ALLOWABLE OPERATING OVERPRESSURE OF WATER HEATER / STORAGE TANK [MPa] | MAXIMUM PRESSURE IN COLDWATER PIPES [MPa] |
| 0.6 | 0.6 | up to 0.48 |
FURTHER INFORMATION
300 – 1000 liter capacity water heaters and hot water storage tank are screwed onto the bottom wooden palette with M12 screws. When the water heater (hot water storage tank) is released from the palette and prior to its putting into operation, 3 adjustable legs supplied as the product accessories have to be installed. With these legs, the water heater (hot water storage tank) may be positioned vertically to the base, within 10 mm.
FIRST COMMISSIONING
After connecting the water heater (hot water storage tank) to the water main, electrical power system, and after checking the safety valve (following the instructions attached to the valve), the water heater (hot water storage tank) can be put into operation. Before opening the power supply, the tank must be filled with water. The process of first heating must be executed by a licensed professional who has to check it. Both the hot water outlet pipe and safety armature parts may be hot.
Procedure:
a) Check the water main and wiring; Check the proper placement of thermostat sensors. The sensors must be inserted all the way in; first the thermostat and then the safety fuse;
b) Open the hot water valve on the combination faucet;
c) open the cold water inlet valve to the water heater (hot water storage tank);
d) when the water starts flowing through the hot water valve, the filling of the water heater (hot water storage tank) is finished and the valve needs to be closed;
e) If a flange lid leak is discovered, the flange lid bolts need to be tightened;
f) Fasten the electric installation cover;
g) When commencing operation, flush the water heater (hot water storage tank) until the cloudiness in the water is gone;
h) Make sure to fill in properly the warranty certificate.
CONNECTING A WATER HEATER AND HOT WATER STORAGE TANK TO A HOT WATER SYSTEM

Water heater (hot water storage tank) with volume exceeding 200 liters at the outlet hot water piping provide combined temperature and pressure safety fittings according to ČSN EN 1490, or the temperature safety fittings fitted with water temperature sensor placed in the heater or other safety valves DN 20, and the opening overpressure compliant with the maximum operating overpressure of the heater vessel. The safety valve does not replace the safety valve on the cold water inlet. No closing, return armature, and filter may be mounted between the water heater (hot water storage tank) and the safety valve.
HEATER CLEANING AND ANODE ROD EXCHANGE
Repetitive water heating causes limestone sediment on both the enameled tank walls and chiefly the flanged lid. Limescale settling depends on the hardness of heated water, its temperature and on the volume of hot water used.
We recommend checking and cleaning the tank from scale and eventual replacement of the anode rod after two years of operation.
The anode life is theoretically calculated for two years of operation; however, it changes with water hardness and chemical composition in the place of use. Based on such an inspection, the next term of anode rod exchange may be determined. Have a company in charge of service affairs deal with the cleaning and exchanging of the anode. When discharging water from the heater, the mixing valve battery for hot water must be open in order to avoid creating under pressure that would prevent water discharge.
To prevent the occurrence of bacteria (e.g. Legionella pneumophila) within stack heating it is recommended, if absolutely necessary, to increase the temperature of hot service water (HSW) periodically for a transitional period of time to at least 70 °C. It is also possible to make use of another way of disinfecting HSW.
SPARE PARTS
– flange lid
– thermostat and thermal fuse
– control lights with wires
– heating unit
– flange lid seal
– magnesium anode
– control button for the thermostat
– set of M12 (or M10) bolts
– insulation flange lid
– capillary thermometer
OPERATION OF THERMOSTAT
SERVICING

The thermostat and no other part of the control panel is not a bearing part that can be used for any handling with the heater.
3.1.1 TEMPERATURE SETTING

Adjusting the thermostat knob to the left backstop does not mean a permanent shutoff of the heating element. When the heater is in use without blocking the daily rate, we do not recommend the temperature to be set above 55 °C. Select the „OPTIMUM“ symbol as the maximum.
MOST FREQUENT FUNCTION FAILURES AND THEIR CAUSES
| FAILURE SYMPTOM | INDICATOR | SOLUTION |
| Water is cold | • Light on | • Heating element failure • Some elements are not heating |
| Water is not warm enough | • Light on | • Some element failure • Failure of a coil in an element |
| Water is cold | • Light off | • Thermostat failure • Safety fuse turned off electricity inlet • Electric supply outside the heater interrupted |
The temperature of the water is not corresponding with the temperature set on the control
- Thermostat failure
Do not attempt to repair the failure yourselves. Seek either expert or service help. It does not take much for an expert to remove the defect. When making a repair appointment, report the type and serial number you find on the performance plate of your water heater (hot water storage tank).
IMPORTANT NOTICES
INSTALLATION REGULATIONS
Without proof issued by a professional company about performed electrical and plumbing fixture, the warranty shall be void.
It is necessary to check the protective magnesium anode periodically and replace it if necessary. No stop valves can be put between the water heater (hot water storage tank) and the safety valve.
If the overpressure in the eater main exceeds 0.48 MPa, a reduction valve must be mounted before the safety valve.
All outlets of hot water must be equipped with combination faucets.
Before the first filling of the water heater (hot water storage tank), it is recommended to tighten the nuts of the flange joint of the tank.
It is not allowed to handle the thermostat, aside from temperature resetting with a control button.
All-electric installation handling, setting, and regulation feature exchange, may only be implemented by a service company.
If you don’t use the water heater (hot water storage tank) for longer than 24 hours, or if the facility with the heater is unattended, close the cold water inlet to the heater.
The water heater (hot water storage tank) shall be used exclusively in accordance with the conditions specified on the performance plate and in the instructions for electric wiring.
Both the electric and water installation must follow and meet the requirements and regulations relevant in the country of use!
TRANSPORT & STORAGE INSTRUCTIONS
The device shall be transported and stored in dry place and protected from weather effects with a temperature range from -15 to +50 °C. During loading and unloading, the instructions stated on the packaging shall be observed.
Due to the transport and thermal dilating, excessive enamel may fall of the water heaters (hot water storage tank) with exchangers on the tank bottom. This occurrence is common and has no effects on the heater’s service life and quality. The decisive enamel layer remains in the vessel. DZD has many years of experience with this occurrence and it is not a reason for complaints.
DISPOSAL OF PACKAGING MATERIAL AND NONFUNCTIONING PRODUCT
A service fee for providing return and recovery of packaging material has been paid for the packaging in which the product was delivered. The service fee was paid pursuant to Act No 477/2001 Coll., as amended, at EKO-KOM a.s. The client number of the company is F06020274. Take the water heater packages to a waste disposal place determined by the town. When the operation terminates, disassemble, and transport the discarded and unserviceable heater to a waste recycling center (collecting yard), or contact the manufacturer.

ASSEMBLY GUIDE FOR ZIP-FASTENER INSULATION
(Only concerns hot water storage tank with the capacity of 750 and 1,000 liters)
Two people are enough to implement the insulation assembly; three people are required for larger storage tank; the assembly must be implemented in areas with a temperature of at least 18 °C.
If the insulation includes tank bottom insulation, the latter must be mounted first. The insulation is then inserted around the storage tank, respecting the pre-pressed insulation openings. By slight pull in the direction of the arrows, pull both sides of the zip-fastener insulation (Figure 21) so that the insulation does not slide and the insulation holes sit on the storage tank inlets and outlets. It must be secured that, before closing, both halves of the zip-fastener are not further than 20 mm (Figure 22) apart. No foam must get into the zip-fastener on closing.
After the insulation coat is properly mounted and the zip-fastener closed, insert the top lid made of foam material and cover it with either a foil cover or a plastic lid. Alternatively, outlet caps can be glues on the connecting points (as indicated in Figure 23).
The insulation must be stored in dry areas only.
We take no responsibility for damages caused by not respecting this guide.

















![Proflo 25l And 50l Electric Storage Water Heater User Manual [25s124, 25s136, 25s124p,50s124, 50s136, 50s124p] Proflo 25l And 50l Electric Storage Water Heater User Manual [25s124, 25s136, 25s124p,50s124, 50s136, 50s124p]](https://static-data1.manualsee.com/1/img/283/59736/2021/02/Proflo-25L-and-50L-Electric-Storage-Water-Heater-User-Manual-25S124-25S136-25S124P50S124-50S136-50S124P.jpg)
