DRAZICE NAD 50 v1 Storage Tanks

PRIOR TO THE INSTALLATION OF THE TANK, READ CAREFULLY THIS MANUAL!
Dear customer,
Družstevní závody Dražice – strojírna s.r.o., would like to thank you for your decision to use a product of our brand.
The manufacturer reserves the right for engineering modification of the product. The product is designed for permanent contact with drinkable water.
FUNCTION DESCRIPTION
Accumulation tanks serve for the accumulation of excessive energy from the heat source. The source may be a solid fuel boiler, heat pump, fireplace inserts, etc.
The NAD type tanks serve for the accumulation of heat in the heating system; the operation agent is heating water. The accumulation tank inclusion in the heating system with the heat source provides ideal operation of the heat source under beneficial temperature conditions. The main benefit is the optimizing of the heat source operation (i.e. with maximum efficiency) when the unconsumed heat accumulates in the tank.
The tanks are made of a steel plate and tested by 1.5 MPa multiple of operation pressure value, without any inner surface treatment. NAD 50 v1, NAD 100 v1 and NAD 250 v1 are insulated with hard polyurethane Freon-free foam with 42 mm thickness, with great insulation ability. Top housing is made of sheet metal and with powder paint surface finish.
The installation conditions
NAD 50 v1 and NAD 100 v1 is stationery and suspension accumulation tank for vertical installation on solid, sufficiently bearing base or wall. NAD 250 v1 is only stationary tank for vertical installation on solid, sufficiently bearing base or wall.
Accumulation tanks NAD 50 v1, NAD 100 v1 and NAD 250 v1 cannot be used for accumulation of TV drinking water.
THE DESIGN OF SUITABLE VOLUME AND TANK INSTALLATION
The design of the accumulation tank volume is performed by the heating designer or a person sufficiently qualified for the design of the heating systems.
Installation of NAD 50 v1, NAD 100 v1 and NAD 250 v1 must be performed by a specialist plumber who will confirm the fact by a stamp in the warranty sheet.
NOTE
- The appliance has to be mounted at a convenient place, it means that the appliance must be easily available for potential necessary maintenance, repair or replacement, as the case may be.
- No stop fitting can be put between the security fitting of the heating circuit and the storage tank!!!
TECHNICAL PARAMETERS
| NAD 50 v1 | NAD 100 v1 | NAD 250 v1 | ||
| TANK DIAMETER | mm | 524 | 584 | 584 |
| HEIGHT | mm | 561 | 803 | 1568 |
| MAXIMUM OPERATING PRESSURE | bar | 3 | 3 | 3 |
| MAXIMUM HEATING WATER TEMPERATURE | °C | 90 | 90 | 90 |
| MAXIMUM OUTPUT OF ADDITIONAL HEATING ELEMENT TJ 6/4” | kW | 3.3* | 6 | 6 |
Only this variant is applicable to the tank.
INFORMATION SHEET
| NAD 50 v1 | NAD 100 v1 | NAD 250 v1 | ||
| ENERGY EFFICIENCY CLASS | B | B | C | |
| STATIC LOSS | W | 31 | 41 | 88 |
| TANK CAPACITY | l | 50 | 120 | 265 |
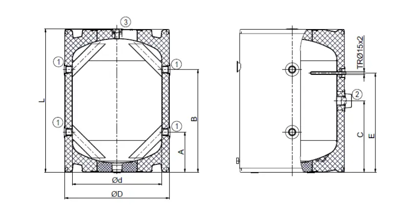
DIMENSIONS AND CONNECTION
NAD 50 v1
NAD 100 v1


- Hot water inlet/ outlet
- Inlet for the installation of electrical heating unit TJ 6/4“
- Deaerating R- Spacing of user-type suspension

| NAD 50 v1 | NAD 100 v1 | |
| A | 215 | 225 |
| B | 345 | 575 |
| C | 265 | 400 |
| d | 440 | 500 |
| D | 524 | 584 |
| E | 365 | 555 |
| L | 561 | 803 |
| R | 300-310 350-372 432-468 | 300-310 350-372 432-468 |
NAD 250 v1

- Hot water inlet/ outlet
- Heating water drainage
- Hot water inlet/ outlet
- Inlet for the installation of electrical heating unit TJ 6/4“

| NAD 250 v1 | |
| A | 228 |
| B | 1308 |
| C | 828 |
| d | 500 |
| D | 584 |
| E | 952 |
| H | 1541 |
| L | 1570 |
| Lk | 1605 |
Recommendation
Prior to commissioning we recommend leaving the heating circuit circulation pump in operation for the period of at least 24 hours. Potential contamination from the system is arrested in the filter. After the filter cleaning, the system is fully operable.
DISPOSAL OF PACKAGING MATERIAL AND NON-FUNCTIONING PRODUCT
A service fee for providing return and recovery of packaging material has been paid for the packaging in which the product was delivered. The service fee was paid pursuant to Act No 477/2001 Coll., as amended, at EKO-KOM a.s. The client number of the company is F06020274. Take the water tank packages to a waste disposal place determined by the municipality. When the operation terminates, disassemble and transport the discarded and unserviceable heater to a waste recycling centre (collecting yard), or contact the manufacturer.



















