SRC-2 Slide Rail Coupling
Product Information
The Slide Rail Coupling SRC-2 is designed to be used with 2 sewage pumps. It is important to read all instructions in the manual before operating or servicing a pump. The product is carefully inspected to ensure proper performance and following the instructions will eliminate potential operating problems. The slide coupling should not be installed in locations classified as hazardous in accordance with the National Electric Code, ANSI/NFPA 70. Barmesa Pumps is not responsible for losses, injury or death resulting from failure to observe safety precautions, misuse, abuse or misapplication of pumps or equipment.
Product Usage Instructions
- Before installation, read the instructions carefully.
- Qualified personnel should conduct servicing of the slide coupling or pump as pumps often handle materials which could cause illness or disease.
- Wear adequate protective clothing when working on a used pump or piping. Never enter a basin after it has been used.
- Keep clear of suction and discharge openings. Do not insert fingers in Slide Coupling or pump with power connected; the rotating cutter and/or impeller can cause serious injury.
- Always wear eye protection when working on pumps. Do not wear loose clothing that may become entangled in moving parts.
- Pumps build up heat and pressure during operation. Allow time for pumps to cool before handling or servicing the pump or any accessory items associated with or near the pump.
- The slide coupling should not be used in swimming pools or water installations where there is human contact with pumped fluid.
- Installation, wiring, and junction connections must be in accordance with the National Electric Code and all applicable state and local codes. Requirements may vary depending on usage and location.
- To reduce the risk of electric shock, always disconnect the pump from the power source before handling any aspect of the pumping system. Lock out power and tag.
- During use of the Barmesa BSR slide coupling or any installation or retrieval of a pump, do not lift, carry or transport the pump or slide coupling by the discharge piping or electrical cables. Use proper lifting equipment.
General Safety Information
- Before installation, read the following instructions carefully. Failure to follow instruction and safety information could cause serious bodily injury, death and/or property damage.
- Each Barmesa product is carefully inspected to insure proper performance. Closely following these instructions will eliminate potential operating problems, assuring years of trouble-free service.
- “Danger” indicates an imminently hazardous situation which, if not avoided, WILL result in death or serious injury.
- WARNING: “Warning” indicates an imminently hazardous situation which, if not avoided, MAY result in death or serious injury.
- CAUTION: “Caution” indicates a potentially hazardous situation which, if not avoided, MAY result in minor or moderate injury.
- Barmesa Pumps is not responsible for losses, injury or death resulting from failure to observe these safety precautions, misuse, abuse or misapplication of pumps or equipment.
- ALL RETURNED PRODUCTS MUST BE CLEANED, SANITIZED, OR DECONTAMI NAT ED PRIOR TO S HIPMENT , TO INSURE EMPLOYEES WILL NOT BE EXPOSED TO HEALTH HAZARDS IN HANDLING SAID MATERIAL. ALL APPLICABLE LAW SAND
- Installation, wiring, and junction connections must be in accordance with the National Electric Code and all applicable state and local codes. Requirements may vary depending on usage and location.
- Installation and servicing is to be conducted by qualified personnel only.
- Keep clear of suction and discharge openings. Do not insert fingers in Slide Coupling or pump with power connected; the rotating cutter and/or impeller can cause serious injury.
- Always wear eye protection when working on pumps. Do not wear loose clothing that may become entangled in moving parts.
- Pumps build up heat and pressure during operation. Allow time for pumps to cool before handling or servicing the pump or any accessory items associated with or near the pump.
- Barmesa pump s or Barmesa Slide Couplings are not intended for use in swimming pools or water installations where there is human contact with pumped fluid.
- Risk of electric shock. To reduce risk of electric shock, always disconnect pump from power source before handling any aspect of the pumping system. Lock out power and tag.
- During use of the Barmesa BSR slide coupling or any installation or retreival of a pump, do not lift, carry or hang pump by the electrical cables. Damage to the electrical cables can cause shock, burns or death. Never handle connected power cords with wet hands. Use appropriate lifting device.
- Slide Couplings as well as pumps often handle materials which could cause illness or disease. Wear adequate protective clothing when working on a used pump or piping. Never enter a basin after it has been used.
- Failure to permanently ground the pump, motor and controls before connecting to power can cause shock, burns or death.
These Slide Couplings are not to be installed in locations classified as hazardous in accordance with the National Electric Code, ANSI/NFPA 70.
Specifications & Drawings
- MODEL: SRC-2
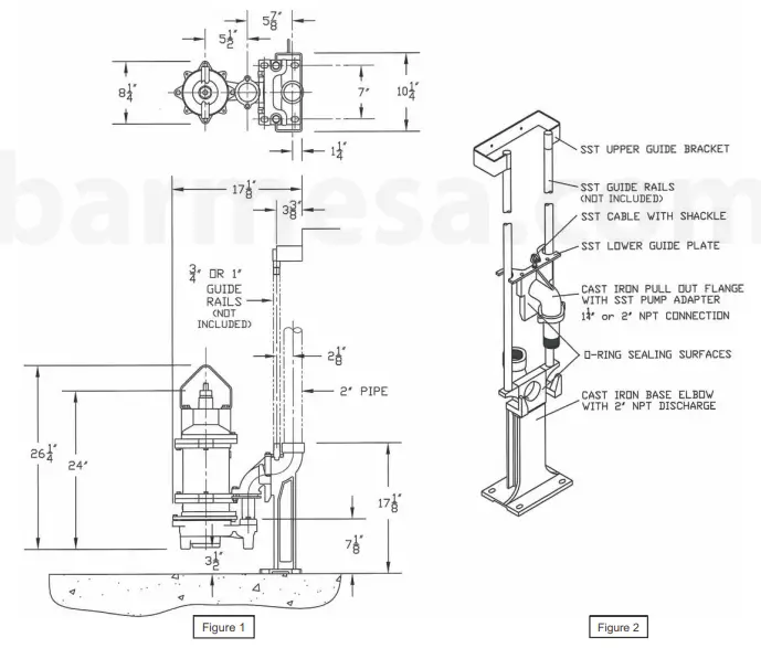
- LOCATION: This SRC-2 is designed for wet wells, tanks, or lift stations where it is necessary to remove a pump from service and reinstall the pump without maintenance personnel entering the pit to unbolt the pump flanges.
- STATIONARY ELBOW: Cast iron ASTM A-48 class 30.
- MOVABLE FITTING: Ductile iron ASTM A-536.
- GUIDE RAIL CAP: Bracket: 304 stainless steel. Plugs: ductile iron ASTM A-536-84.
- HARDWARE: 304 series stainless steel.
- O-RINGS: Buna-N , 70 ±5 Duro.
- GASKETS: Rubber.
- PAINT: Air dry enamel, water based.

General Information
Introduction
The Slide Rail Couplings (SRC) are precision engineered and manufactured of the highest quality castings. Each one is individually inspected by a quality assurance program to allow years of continuous service. Through proper installation this unit will provide superior service. This manual will provide basic information for installation, maintenance, and repair.
Receiving
Upon receiving this unit, inspect it for damage or shortages. If damage has occurred, file a claim immediately with the delivery company that delivered your equipment. If the manual is removed from the crating, do not lose or misplace it.
Storage
This unit has been packaged and protected for shipping and indoor storage. If it is to be stored outside for an extended period, additional protection is suggested.
- Short Term: For best results, place the Barmesa Slide Coupling (SRC) in a dry atmosphere with constant temperature for up to six (6) months.
- Long Term: Any length of time exceeding six (6) months,
but not more than twenty four (24) months. The units should be stored in a temperature controlled area, a roofed over walled enclosure that provides protection from the elements (rain, snow, wind blown dust, etc.), and whose temperature can be maintained between +40°F and +120°F. If extended high humidity is expected to be a problem, all exposed parts should be inspected before storage and all surfaces that have the paint scratched, damaged, or worn should be recoated. All surfaces should then be sprayed with a rust-inhibiting oil.
Service Centers
For the location of the nearest Service Center, check your Barmesa Pumps representative.
Installation
- Location: The Slide Rail Coupling model SRC-2, when used in conjunction with Barmesa Pumps Sewage 2″, is recommended for operation in a wet well, tank, or lift station.
- Installing Pump to Slide Rail Coupling – (See Figure 1)
- Pump Body Leg Removal: It is advisable to remove the pump body legs if they are within one inch of the floor when the pump is in the operating position.
- Installation Descent Speed: When lowering pump into wet well on the guide rails, do not exceed a descent speed of 3.2 inches per second or 16 feet per minute.
Maintenance and Repair
- Maintenance: Whenever the pump is lifted for inspection, it is recommended any foreign material be flushed from moveable fitting, guide plugs, and stationary base elbow face before replacement in wet well.
Replacement Parts
Ordering Replacement Parts
When ordering replacement parts, always furnish the following information:
- Product Model
- Part Description
- Part Number
- Quantity Required
- Shipping Instructions
- Billing Instructions
Product improvements are made from time to time. The latest part design will be furnished if it is interchangeable with the old part.
BARMESA PUMPS FACTORY WARRANTY
Barmesa Pumps warrants that products of our manufacture will be free of defects in material and workmanship under normal use and service for 18 months from date of manufacture or 12 months from installation date whichever occurs first. This warranty gives you specific legal rights, which vary from state to state.
This warranty is a limited warranty, and no warranty related claims of any nature whatsoever shall be made against Barmesa Pumps, until the ultimate consumer or his/her successor notifies us in writing of the defect and delivers the product and/or defective parts) freight prepaid to our factory or nearest authorized service station as instructed by Barmesa Pumps. THERE SHALL BE NO FURTHER LIABILITY WHETHER BASED ON WARRANTY. NEGLIGENCE OR OTHERWISE. PRODUCT SHALL BE EITHER REPLACED OR REPAIRED AT THE ELECTION OF BARMESA PUMPS. Guarantees relating to performance specifications provided in addition to the foregoing material and workmanship warranties on a product manufactured by Barmesa Pumps, if any, are subject to possible factory testing. Any additional guarantees, in the nature of certified performance specifications or time frame must be in writing and such writing must be signed by our authorized factory manager at time of order placement and/or at time of quotation. Due to inaccuracies in field testing and should a conflict arises between the results of field testing conducted by or for the user, Barmesa Pumps reserves the right to have the product returned to our factory for additional testing.
This warranty shall not apply when damage is caused by
- improper installation,
- improper voltage,
- lightning,
- excessive sand or other abrasive material,
- corrosion build-up due to excessive chemical content or
- uncontrollable acts of god.
Any modification of the original equipment will also void the warranty. We will not be responsible for loss, damage or labor cost due to interruption of service caused by defective pumps, parts or systems. Barmesa Pumps will not accept charges incurred by others without our prior written approval.
This warranty is void if our inspection reveals the product was used in a manner inconsistent with normal industry practice and/or our specific recommendations. The purchaser is responsible for communication of all necessary information regarding the application and use of the product.
UNDER NO CIRCUMSTANCES WILL WE BE RESPONSIBLE FOR ANY OTHER DIRECT OR CONSEQUENTIAL DAMAGES, INCLUDING BUT NOT LIMITED TO TRAVEL EXPENSES, CONTRACTOR FEES, UNAUTHORIZED REPAIR SHOP EXPENSES, LOST PROFITS, LOST INCOME, LABOR CHARGES, DELAYS IN PRODUCTION. IDLE PRODUCTION. WHICH DAMAGES ARE CAUSED BY ANY DEFECTS IN MATERIAL AND/OR WORKMANSHIP AND/OR DAMAGE OR DELAYS IN SHIPMENT. THIS WARRANTY IS EXPRESSLY IN LIEU OF ANY OTHER EXPRESS OR IMPLIED WARRANTY. No rights extended under this warranty shall be assigned to any other person, whether by operation of law or otherwise, without our prior written approval.
IMPORTANT
If you have a claim under the provision of the warranty, contact Barmesa Pumps or your authorized Barmesa Pumps Distributor:
[email protected]
www.barmesapumps.com




















