dormakaba 48H-49H Mortise Locks

Installation Specifications
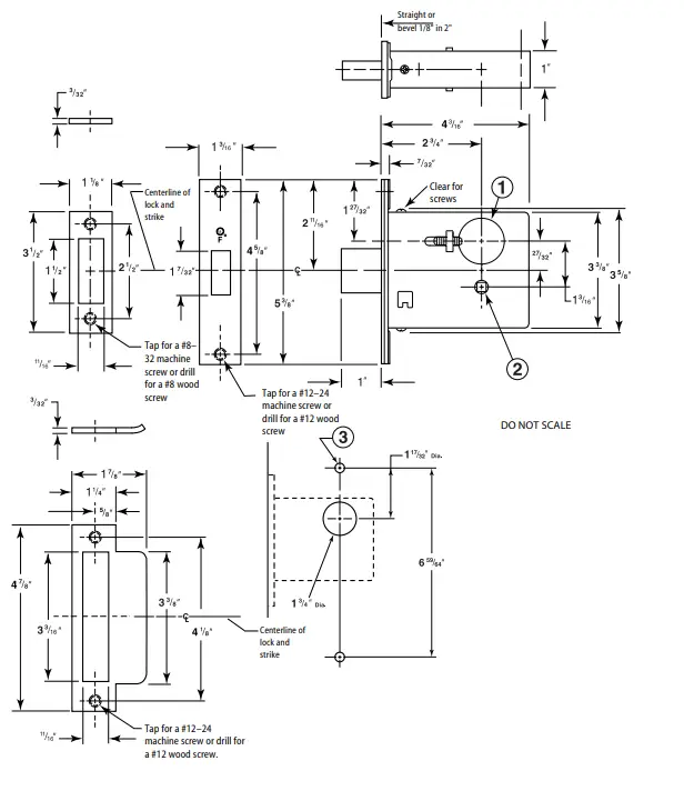
- Template Number: H17
- Series: 48H-49H
- Trim Style: M
- Door Thickness: 1 3/4″ – 5″

Notes
A 13 /4″ diameter cylinder hole is required for 1E7J4 & 1E7K4 high-security cylinders on 49H when M trim is not used.
- See Template H11 for complete strike and strike box specifications.
Hole pattern chart

- BEST is a trademark of dormakaba USA Inc. ©2021 All rights reserved.



















