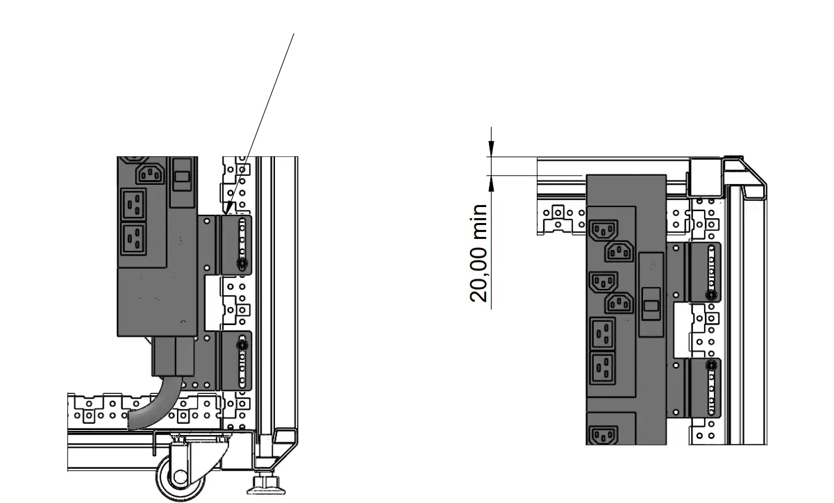
nvent 60630-320 BET B Rackpower iPDU Mounting Bracket

Protect the PDUs for unhooking during the transport with cable ties.
Apply the installation and using instructions from the PDU.
PARTS

INSTALLATION INSTRUCTIONS


FOR SEISMIC FRAME

FOR DEEPER MOUNTING, ORDER 21630-318

CUSTOMERS SUPPORT

nVent.com
60630-320_BET Rev.B














