POTTER 2020001 BSC Break Safe Contacts Owner’s Manual
UL Listed
Dimensions:
Plunger Assembly: 3.06″L x 2.19″W x 1.63″H 7,8cm L x 5,6cm W x 4,1cm H Base: 4.13″L x 1.75″W x 1.19″H 10,5cm L x 4,4cm W x 3,0cm H
Weight: 11 oz. (308 g)
Enclosure: Base and Plunger Assembly: Acid treated aluminum Finish: Baked grey spatter enamel Other parts nickel plated to resist corrosion.
Contacts:
Material: Blade Contacts – Silver Plunger Contacts – Gold Treated Copper Ratings: SPDT (Form C) 0.1 Amp at 130VDC 1.0 Amp at 30VDC/AC
Tamper: Mechanically activated when base is removed from safe body.
Environmental Limitations: Indoor use only
The Model BSC Break Safe Contact is exterior mounted, tamper proof and operates with open, closed or double circuit.
The Model BSC can be mounted in several positions, depending on the style of safe, by simply loosening the set screws in the plunger assembly (See Figures 1 and 2). Insure set screws are tightly secured after repositioning plunger assembly.
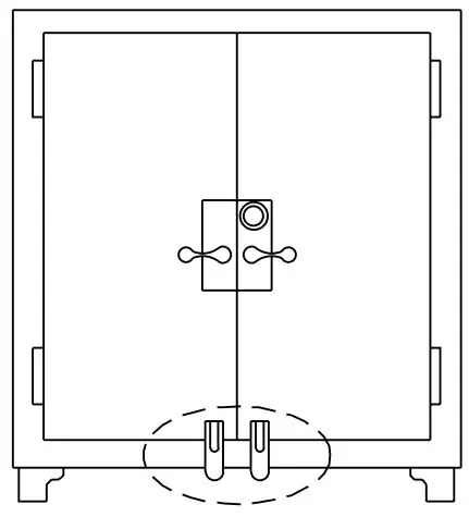
The base is mounted on the safe body and the plunger is mounted on the door (See Figure 3). The wire entrance to the base is threaded to accept a 1/2″ conduit fitting. See EVD Bulletin for complete safe protection.
FIG. 2 MOUNTING ADJUSTMENT

FIG. 1 BSC TYPICAL SAFE INSTALLATION
DOUBLE DOOR SAFE
NOTE: ON DOUBLE DOOR SAFES, BOTH DOORS MUST HAVE CONTACTS FOR UL CERTIFICATED SYSTEMS.
SINGLE DOOR SAFE
NOTE: FOR SAFES WITH ROUND DOORS, SEE SCV BULLETIN 5400551.
FIG. 3 INTERNAL CONTACT DRAWING

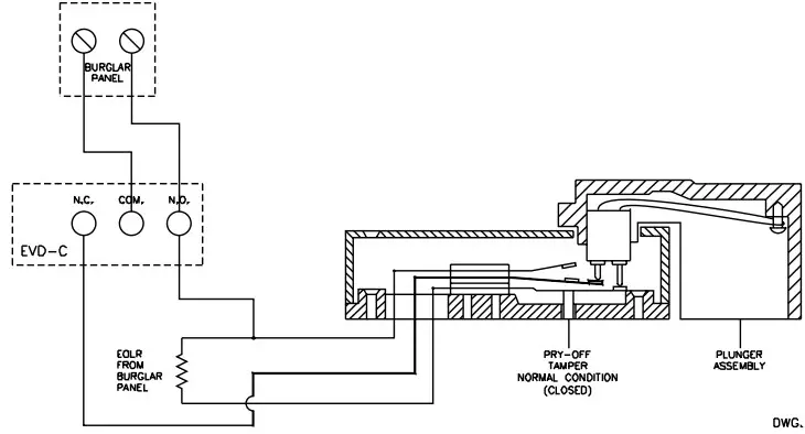
When installing the BSC in an EVD-C pickup loop:
Wire normally closed only!
If the BSC is installed in an EVD-C pickup loop, it must be wired in series, before the last EVD-P on the loop. The wire from terminal #4 of the EVD-C goes to the common (center) contact of the BSC.
The normally closed (bottom) contact would go to terminal #2 of the EVD-P.
The shield from terminal #3 of the EVD would connect to the normally open (top) contact, then continue to terminal #1 of the EVD-P.
- If it is wired directly to the relay contacts on any EVD:
- For a normally open circuit that shorts on alarm:
- Connect EOL resistor from burglar panel across N.O. and N.C. (top and bottom) contacts.
- Connect N.O. (top) contact to the N.O. relay contact of the EVD.
- Connect common (center) to the N.C. relay contact of the EVD.
- Connect zone of burglar panel to the common and N.O. relay contacts of the EVD. (See Fig. 4)
FIG. 4

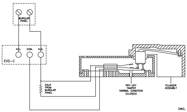
For a normally closed circuit that opens on alarm:
- Connect EOL resistor from burglar panel across N.O. and common (top and center) contacts.
- Connect N.O. (top) contact to the N.O. relay contact of the EVD.
- Connect N.C. (bottom) contact to the common relay contact of the EVD.
- Connect zone of burglar panel to the N.O. and N.C. relay contacts of the EVD. (See Fig. 5)
FIG. 5

Potter Electric Signal Company
- 2081 Craig Road, St. Louis, MO, 63146-4161
- Phone: 800-325-3936/Canada 888-882-1833
- ww.pottersignal.com


















