Kraus Single Handle Kitach Faucet Instruction Manual

www.kraususa.com | Toll Free: 1.800.775.0703
© 2019 Kraus USA Inc. I REV. December 18, 2019
Congratulations on the purchase of your new Kraus plumbing fixture!
Please keep the box and packaging materials until your product is completely installed. If you have any questions, require technical assistance, or have any problems with your product:
DO NOT RETURN TO STORE
Please contact our Customer Service Team 1-800-775-0703 / [email protected]
Have the model number available, and retain a copy of your receipt with purchase date for reference.
If for any reason this product does not meet your expectations, please be sure to repack this product in the original box and packaging material to avoid damage during transit.
Prior to Installation:
- Make sure you have all necessary parts by checking the diagram and parts list. If any part is missing or damaged, please contact Kraus Customer Service at 800-775-0703 for a replacement
- Turn off the cold and hot water at the angle stops and turn on the old faucet to release any built up pressure
- Flush angle stops to release any debris prior to installation
- Pre-drilled hole size requirement: 1-3/8″ (min) 1-1/2″ (max)
- Max countertop thickness: 1-3/8
- 1 hole installation
For technical assistance or replacement parts, please contact Kraus Customer Service and one of our representatives will be happy to help: Toll-Free: 800-775-0703 or [email protected]
Diagram and Parts List

- Faucet Body
- Mounting Hardware
- A. Rubber & Metal Washer
- B. Mounting Nut
- C. Mounting Screws
- Hot & Cold Waterlines
- Aerator
- Aerator Key
- Hex Wrench
Tools you will need

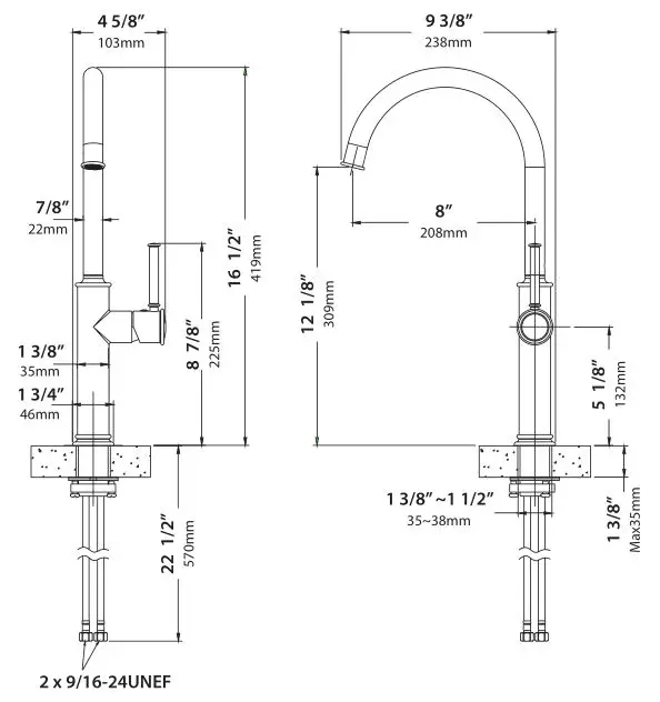
Faucet Dimension

Installer Tip:
Shut off main water supply before installing new faucet
Step 1: Remove mounting hardware
Remove the mounting screws (2C), mounting nut (2B), and rubber & metal washer (2A) from the mounting pipe

Step 2: Faucet installation
Insert faucet body (1) into hole in countertop. Install mounting hardware (2A, B, C) from underneath the countertop

Step 3 : Secure mounting hardware
Adjust direction of faucet body (1) so that handle is on right side of faucet. Tighten mounting nut (2B) until snug.

Step 4: Connect waterlines to main valve
Attach waterlines(3) to angle stops and tighten until snug. Turn on angles stops and check for leaks (DO NOT TURN FAUCET ON)

Step 5: Flush faucet
After installing faucet, remove aerator (4) with included aerator key (5). Turn water on for 30 seconds to remove any debris. Reassemble aerator (4).

Replacement Parts

Care & Maintenance
To keep the product clean & shining, follow the steps below:
- Rinse with clean water & dry with a soft cloth
- Do not clean with soaps, acid, polish, abrasives or harsh cleaners
- Do not use cloth with a coarse surface
- Unscrew the aerator and clean when necessary
This installation manual is subject to change without further notice.
Troubleshooting
If you have followed the instructions carefully and your faucet still does not work properly,

Maintenance – Cartridge Replacement
Step 1: Remove button located at the top of the handle. Loosen the set screw with a hex wrench. Remove the handle and unscrew cartridge cover by hand

Step 2: Unscrew the locking nut with an adjustable wrench. Remove ceramic disc cartridge

Step 3: Place the new cartridge in the handle seat. Secure the cartridge with the locking nut and assemble the handle

Codes / Standards Applicable:

FAUCET WARRANTY
Kraus products are manufactured and tested to the highest quality standards by Kraus USA Inc. (“Kraus”). Kraus extends this warranty to the original purchaser for personal household use of the “Faucet” in its original location. The warranty is non-transferable.
Kraus warrants the structure and finish of the product to be free from defects in material and workmanship under normal usage for the lifetime of the product. The warranty commences from the initial date of purchase by the owner or trade professional, from an authorized Kraus dealer, through the lifetime of the original owner or end-user.
Kraus warrants the mechanical component (sprayhead assembly) of the product to be free from defects in material and workmanship under normal usage for a period of one (1) year. The warranty commences from the initial date of purchase by the owner or trade professional, from an authorized Kraus dealer, through the one (1) year term of the original owner or end-user.
Kraus warrants the mechanical component (cartridge) of the product to be free from defects in material and workmanship under normal usage for a period of five (5) years. The warranty commences from the initial date of purchase by the owner or trade professional, from an authorized Kraus dealer, through the five (5) year term of the original owner or end-user.
Any product reported to the authorized dealer or to Kraus as being defective within the warranty period will be repaired or replaced with a product of equal value at the option of Kraus. This warranty extends to the original owner or end-user, and is not transferable to a subsequent owner.
RESTRICTIONS
This warranty does not cover antediluvian, discontinued, or display products, whether such items are purchased at discount outlets, unauthorized dealers, and/or sold on clearance. This warranty does not cover instances of negligence, misuse, abuse, improper installation, carelessness, accident, hard water or mineral deposits, exposure to corrosive materials, misapplication, damages caused by improper maintenance, alteration of the product, or failure to follow care or installation instructions enclosed with your product. Avoid using abrasive cleaners such as powders, bleach, ammonia, alcohol, or chlorine. Avoid using abrasive pads, steel wool, or wire brushes, as these will damage and wear down the finish. This warranty does not apply to Products that have not been installed or operated in accordance with instructions supplied by Kraus and all applicable rules, regulations, and legislation pertaining to such installations.
This warranty does not apply unless the Kraus product is installed by a fully insured and licensed trade professional. Kraus insists that such professionals have experience in the installation of bathroom and kitchen manufactured goods.
This warranty does not cover labor charges or costs of removal and reinstallation of said product. This warranty does not allow recovery of incidental or consequential damages, such as loss of use, delay, property damage, or other consequential damages, and Kraus accepts no liability for such damages.
This warranty does not cover Marine or Outdoor Installation.
Except as otherwise provided above, Kraus makes no warranties, expressed or implied, including warranties of merchantability and fitness for a particular purpose, or compliance with any code. Shipping charges will be covered for the first (1) year of the warranted replacement part or product (HI, AK, and Puerto Rico shipping charges may apply). International shipping fees are not included.
COMMERCIAL WARRANTY
Kraus extends the above warranty for a period of one (1) year to purchasers of products for industrial, commercial, and business use.
All incidental or consequential damages are specifically excluded. No additional warranties, express or implied, are given, including but not limited to any implied warranty of merchantability or fitness for a particular purpose.
Some states do not allow the exclusion or limitation of incidental or consequential damages or limitations on how long an implied warranty lasts, so the above limitations or exclusions may not apply to you.
This warranty gives you specific legal rights, and you may also have other rights which vary from state to state.
If you are a homeowner please contact a Kraus Customer Service Representative at:
Kraus USA, Inc.
12 Harbor Park Drive
Port Washington, NY 11050
Toll-free 800-775-0703
[email protected]
If you are a plumbing contractor or trade professional please contact a Kraus Pro Representative at:
Kraus USA, Inc.
12 Harbor Park Drive
Port Washington, NY 11050
516-801-8955
[email protected]
If you are an Authorized Partner please contact a Partner Support Representative at:
Kraus USA, Inc.
12 Harbor Park Drive
Port Washington, NY 11050
516-801-8954
[email protected]
In requesting warranty service, please be ready to provide:
1. Proof of purchase.
2. A description of the problem.
Download the Kraus Care & Maintenance Guide at: http://www.kraususa.com/maintenance
IMPORTANT
Register Your Kraus Product
Activate Your Warranty Access Premium Customer Support
Get Product Information
REGISTER TODAY
http://www.kraususa.com/registration
![]()




















