Eco Fasten GF-1 Complete Mount and Flashing Assembly

GF-1
GF-1 is our most versatile solution for composition shingle roofs. Install the flashing using a single fastener for a quick & easy installation. When using the GF-1 flashing grommet and an EcoFasten compression bracket, a watertight seal is created, maintaining the integrity of the roof.
FEATURES
- Mill or black finish
- Patented Watertight Technology
- Installs without removing shingles
- Single lag bolt attachment
- Compatible with a variety of compression brackets
- Florida Product Approved for any combination of 8″x12″ GF-1 flashing with the Click Fit L-foot & Lag Screw
SYSTEM COMPONENTS

- L-FOOT SCL-101 BLK 3″ (OTHER OPTIONS AVAILABLE)
- 5/16″ LAG BOLT (AVAILABLE IN 3″ AND 4″)
- 5/16″ EPDM BONDED WASHER
- GF-1 FLASHING GLV MLL 8X12″ GALVALUME FLASHING WITH PREINSTALLED EPDM RUBBER GASKET
(AVAILABLE IN 8X10 & 8X12, WITH MILL & BLACK FINISH OPTIONS)
INSTALLING GF-1
- Snap horizontal lines across the roof to mark the mount rows, then locate the rafter and mark the installation position of each GF-1 flashing.

- Drill a 7/32″ pilot hole into the rafter or structural member for the lag screw. Backfill with sealant compatible with the roof type.

- Slide flashing up under the next row of shingles directly above the pilot hole, taking care to align the hole in the flashing with the pilot hole.

- Thread the EPDM bonded washer onto the lag bolt followed by one of EcoFasten’s compression brackets and then insert the lag bolt into the gasketed hole in the flashing.

- Drive the lag bolt down into the rafter using an impact driver. Torque range is between 100-400 torque inch-pounds depending on the type of wood and time of year. The visual indicator for proper torque is when the EPDM on the underside of the bonded washer begins to push out the sides as the washer compresses. Do not over torque.

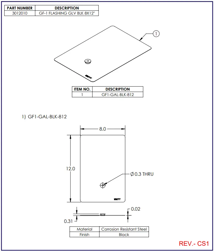
CUT SHEET: GF-1 FLASHING GLV BLK 8X12″

CUT SHEET: GF-1 FLASHING GLV MLL 8X12″

CUT SHEET: GF-1 FLASHING GLV MLL 8X12″
CUT SHEET: GF-1 FLASHING GLV MLL 8X12″

CUT SHEET: GF-1 FLASHING GLV MLL 8X12″

CUT SHEET: L-FOOT L-102 BLK 3”

CUT SHEET: L-FOOT L-102 MLL 6”

CUT SHEET: L-FOOT SCL-101 MLL 3”

CUT SHEET: L-FOOT SCL-101 BLK 3”

CUT SHEET: CF UNIV L-FOOT MLL 3″

CUT SHEET: LAG SCREW SS .313X4

CUT SHEET: EPDM BOND WASHER SS .313″ (51)

CUT SHEET: RI COMP SLIDE AL BLK

SYSTEM COMPONENTS
- GF-1 Flashing:
All flashing options come with a pre-installed integrated EPDM grommet and one bonded stainless steel EPDM washer. Flashing are available in three options:
1. 8 x 12″ .032 gauge galvalume with mill or black (kynar painted) finish.
2. 8 x 10″ .032 gauge galvalume with black (kynar painted) finish.
3. 8 x 12″ .032 gauge aluminum with black (kynar painted) finish. - Aluminum Compression Bracket:
Compatible with a variety of Eco Fasten compression brackets. Eco Fasten compression brackets are made out 6000 series aluminum with options available for mill or black finishes depending on the bracket. - Recommended Fasteners
5/16″x4″ lag bolts. 3″ option also available. - Recommended Sealant:
If required by roof manufacturer, sealant shall be roof manufacturer approved.
DELIVERY / STORAGE / HANDLING
Inspect material upon delivery. Notify manufacturer within 24 hours of any missing or defective items. Keep material dry, covered and off the ground until installed.
FLORIDA PRODUCT APPROVAL
Approved for any combination of 8″x12″ GF-1 flashing with the ClickFit L-foot & Lag Screw.
PATENTS
Visit www.efpatents.com for patent information.
DESIGN REQUIREMENTS
- Bracket spacing to be recommended by project engineer.
- It is important to design new structures or assess existing structures to make sure they withstand retained loads.
EXAMINATION
- Substrate: Inspect structure on which brackets are to be installed and verify that it will withstand any additional loading that may be incurred.
- Notify General Contractor of any deficiencies before installing EcoFasten Solar brackets.
- Verify that roofing material has been installed correctly prior to installing solar attachment bracket.
INSTALLATION
Comply with architectural drawings and project engineer’s recommendation for location of system. Comply with Manufacturer’s written installation instructions for installation and layout.






















