Danfoss Differential Pressure Relief Controller AVPA

Safety Notes
Prior to assembly and commissioning to avoid injury of persons and damages of the devices, it is absolutely necessary to carefully read and observe these instructions. Necessary assembly, start-up, and maintenance work must be performed only by qualified, trained and authorized personnel. Prior to assembly and maintenance work on the controller, the system must be:
- depressurized,
- cooled down,
- emptied and
- cleaned.
Please comply with the instructions of the system manufacturer or system operator.
Definition of Application
The controller is used for differential pressure relief control of water and water glycol mixtures for heating, district heating and cooling systems. The technical parameters on the product labels determine the use.
Assembly
Admissible Installation Positions 
Medium temperatures up to 100 °C:
- Can by installed in any position. Medium temperatures > 100 °C:
- Installation permitted only in horizontal pipelines with the actuator oriented downwards.
Installation Location and Installation Scheme

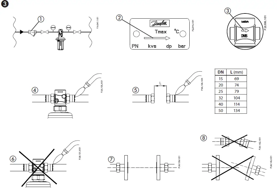
AVPA by-pass mounting
Valve Installation

- Clean pipeline system prior to assembly.
- The installation of a strainer ① in front of the controller is strongly recommended.
- Install pressure indicators in front of and behind the system part to be controlled.
- Install valve
- The flow direction indicated on the product label ② or on the valve must be observed ③.
- The valve with mounted weld-on tailpieces may only be spot welded to the pipeline ④. The weld-on tailpieces may be welded only without the valve and seals! ⑤⑥ If these instructions are not observed, high welding temperatures may destroy the seals.
- Flanges ⑦ in the pipeline must be in parallel position and sealing surfaces must be clean and without any damage. Tighten screws in flanges crosswise in 3 steps up to the maximum torque (50 Nm).
- Caution: Mechanical loads of the valve body by the pipelines are not permitted ⑧
Insulation

For medium temperatures up to 100 °C the pressure actuator ① may also be insulated.
Start-up
The valve is closed without pressure. The valve opens when the differential pressure ① rises above the adjusted set-point.
Filling the system, first start-up
- Slowly open shut-off devices ② in the flow pipeline.
- Slowly open shut-off devices ③ in the return pipeline.
Leak and Pressure Tests
Non-compliance may cause damages at the actuator or the valve.
A pressure test of the entire system must be carried out in accordance with manufacturer’s instructions.
The maximum test pressure is 1.5 × PN PN – see product label !
Putting out of operation
- Slowly close shut-off devices ② in the flow pipeline.
- Slowly close shut-off devices ③ in the return pipeline.
Settings

Differential Pressure Setting
The diff. pressure setting range is indicated on the product label ①.
Procedure:
- Start system, see section “Filling the system, first start-up“. Completely open all shut-off devices in the system.
- Start pump operation ②
- Adjustment
Observe pressure indicators ③ or/and alternatively see handle scale indication. Increase the setting ④ (stress the spring): PN16 turn to the right (clockwise), PN25 turn to the left (counter-clockwise). Decrease the setting ⑤ (relieve the spring): PN16 turn to the left (counter-clockwise), PN25 turn to the right (clockwise).
Seal

The set-point adjuster can be sealed by a seal wire ①, if necessary.
Dimensions


- Conical ext. thread acc. to EN 10226-1
- Flanges PN 25, acc. to EN 1092-2
Any information, including, but not limited to information on selection of product, its application or use, product design, weight, dimensions, capacity or any other technical data in product manuals, catalogues descriptions, advertisements, etc. and whether made available in writing, orally, electronically, online or via download, shall be considered informative, and is only binding if and to the extent, explicit reference is made in a quotation or order confirmation. Danfoss cannot accept any responsibility for possible errors in catalogues, brochures, videos and other material. Danfoss reserves the right to alter its products without notice. This also applies to products ordered but not delivered provided that such alterations can be made without changes to form, fit or function of the product. All trademarks in this material are property of Danfoss A/S or Danfoss group companies. Danfoss and the Danfoss logo are trademarks of Danfoss A/S. All rights reserved.
References
Danfoss - Engineering Tomorrow | Danfoss
Home (Domovská stránka) | Danfoss
Danfoss Deutschland | Klima | Kälte | Heizung | Antriebe | Hydraulik | Danfoss
Danfoss España: Soluciones innovadoras y ahorro de energía | Danfoss
Főlap | Danfoss
Pagrindinis puslapis | Danfoss
Danfoss Engineering Tomorrow - ontdek energie-efficiënte en innovatieve oplossingen voor uw branche | Danfoss
Danfoss – Engineering Tomorrow | Danfoss
Группа Danfoss A/S остановила деятельность на территории Российской Федерации и Республики Беларусь. | Danfoss
Danfoss Slovenija, Danfoss Trata, ogrevanje, hlajenje, ogrevalna tehnika, hladilna tehnika, frekvenčni pretvorniki | Danfoss



















