AXOR 39031000 Citterio Wash Basin Mixer

Technical Information
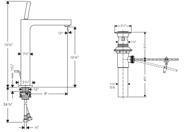
Recommended water pressure 15 – 75 PSI
Max. water pressure 145 PSI
Recommended hot water temp. 120° – 140° F*
Max. hot water temp 176°F*
Flow rate 1.2 GPM
Hole size in mounting surface 1⅜”
Max. depth of mounting surface 1½”
*Please know and follow all applicable local plumbing codes when setting the temperature on the water heater.
Installation Considerations
- For best results, Hansgrohe recommends that this unit be installed by a licensed, professional plumber.
- Please read over these instructions thoroughly before beginning installation. Make sure that you have all tools and supplies needed to complete the installation.
- Keep this booklet and the receipt (or other proof of date and place of purchase) for this product in a safe place. The receipt is required should it be necessary to request warranty parts.
Tools Required



Installation

- Place the faucet and sealing ring on the mounting surface.
- Install the friction washer, metal washer, and mounting nut.
- Tighten the tensioning screws.
- Install the pull rod.

Connect the hoses to the stops.
Use two wrenches, as shown, to prevent hose twisting.
Remove the aerator.

Flush the hot and cold supplies for at least two minutes.
Install the aerator.
Do not over-tighten the aerator.
Installation


Petroleum-based plumbers putty can damage the surface of some sinks. Please consult the manufacturer of the sink regarding compatible sealants.
Replacement Parts

xx = Colors / Couleurs / Acabados
00 = Chrome
82 = Brushed Nickel
User Instructions

Cleaning

Cleaning Recommendation for Hansgrohe Products
Modern bathroom faucets, kitchen faucets and shower products are made from different materials to comply with the needs of the market with regard to design and functionality. To avoid damage to the product, it is necessary to take proper care of it.
For best results:
- Prevent the buildup of mineral scale and /or soap residue by cleaning your Hansgrohe product(s) when needed.
- Select a cleaning agent specifically intended for the type of product.
- Do not use these types of cleaners as they will cause damage to your Hansgrohe product:
- Any cleaning agent containing hydrochloric acid, formic acid, lye, or acetic acid.
- Abrasive cleaning powders, pads, or brushes.
- Steam cleaners.
- “No rinse” cleaning agents.
- Always follow the instructions provided by the manufacturer of the cleaning agent.
- Do not mix cleaning agents, unless directed by the manufacturer.
- Do not spray cleaners directly onto the product as drops could enter openings and gaps and cause damage. When using spray cleaners, spray the cleaner onto a soft cloth or sponge.
- Always rinse your Hansgrohe product thoroughly with clear water and polish dry with a soft cloth after cleaning.
Important - Residue from soaps, shampoos, hair dye, and other toiletries and cosmetics can cause damage. Rinse the prod-uct with clean water after each use.
- Residue from basin/tub/tile cleaner can cause damage to faucets and fittings. Immediately rinse any over-spray from the Hansgrohe product.
- Do not store any cleaning agents under your Hansgrohe product, such as in a vanity unit, as the fumes may damage the product.
- Damage to the product caused by improper care or the use of improper cleaning agents is not covered by the warranty.
- If a component of the product is damaged, replace it, as there is risk of injury.
Limited Consumer Warranty
This product has been manufactured and tested to the highest quality standards by Hansgrohe, Inc. (“Hansgrohe”). This warranty is limited to Hansgrohe products that are purchased by a consumer in the United States or Canada after March 1, 1996, and installed in either the United States or in Canada.
WHO IS COVERED BY THE WARRANTY
This warranty extends to the original purchaser only. This warranty is non-transferable.
WHAT IS COVERED BY THE WARRANTY
The warranty covers only your Hansgrohe manufactured product. Hansgrohe warrants this product against defects in mate-rial or workmanship as follows:
Hansgrohe will replace at no charge for parts only or, at its option, replace any product or part of the product that proves defective because of improper workmanship and/or material, under normal installation, use, service and maintenance. If Hansgrohe is unable to provide a replacement and repair is not practical or cannot be made in timely fashion, Hansgrohe may elect to refund the purchase price in exchange for the return of the product.
LENGTH OF WARRANTY
Replacement or repaired parts of products will be covered for the term of this warranty, as stated in the following two sentences. If you are a consumer who purchased the product for use primarily for personal, family or household purposes, this warranty extends for as long as you own the product and the home in which the product is originally installed. If you purchased the product for use primarily for any other purpose, including, without limitation, a commercial purpose, this war-ranty extends only (i) for 1 year, with respect to Hansgrohe & Commercial products, and (ii) for 5 years, with respect to Axor products.
THIS WARRANTY DOES NOT COVER, AND HANSGROHE WILL NOT PAY FOR:
- Conditions, malfunctions or damage not resulting from defects in material or workmanship.
- Conditions, malfunctions or damage resulting from (1) normal wear and tear, improper installation, improper maintenance, misuse, abuse, negligence, accident or alteration; (2) the use of abrasive or caustic cleaning agents or “no-rinse” cleaning products, or the use of the product in any manner contrary to the product instructions; or (3) conditions in the home such as excessive water pressure or corrosion.
- Labor and other expenses for disconnection, deinstallation, or return of the product for warranty service (including but not limited to proper packaging and shipping costs), or for installation or reinstallation of the product.
- Accessories, connected materials and products, or related products not manufactured by Hansgrohe.
- Any Hansgrohe or Axor product sold for display purposes.
- Hansgrohe Water Filtration System is subject to a 1-year limited warranty. Warranty does not include replacement filters.
TO OBTAIN WARRANTY PARTS OR INFORMATION
Contact your Hansgrohe retailer, or contact Technical Service at:
- Hansgrohe, Inc.
- 1492 Bluegrass Lakes Parkway Alpharetta, GA 30004
- Toll-free 800-334-0455
In requesting warranty service, you will need to provide:
- The sales receipt or other evidence of the date and place of purchase.
- A description of the problem.
- Delivery of the product or the defective part, postage prepaid and carefully packed and insured, to:
- Hansgrohe, Inc.
- 1492 Bluegrass Lakes Parkway Alpharetta, GA 30004
- Toll-free 800-334-0455
When warranty service is completed, any repaired or replacement product or part will be returned to you postage prepaid.
EXCLUSIONS AND LIMITAION
REPAIR OR REPLACEMENT (OR, IN LIMITED CIRCUMSTANCES,REFUND OF THE PURCHASE PRICE) AS PROVIDED UNDER THIS WARRANTY IS THE EXCLUSIVE REMEDY OF THE PURCHASER.HANSGROHE NEITHER ASSUMES NOR AUTHORIZES ANY PERSON TO CREATE FOR IT ANY OTHER OBLIGATION OR LIABILITY IN CONNECTION WITH THIS PRODUCT. HANSGROHE SHALL NOT BE LIABLE TO PURCHASER OR ANY OTHER PERSON FOR ANY INCIDENTAL,SPECIAL OR CONSEQUENTIAL DAMAGES,ARISING OUT OF BREACH OF THIS WARRANTY OR ANY IMPLIED WARRANTY (INCLUDING BUT NOT LIMITED TO ANY IMPLIED WARRANTY OF MERCHANTABILITY).
Some States do not allow the exclusion or limitation of incidental or consequential damages, so the above limitation or exclu-sion may not apply to you. This warranty gives you specific legal rights,and you may also have other rights that vary from state to state.
TO THE EXTENT PERMITTED BY LAW,ANY IMPLIED WARRANTIES OF MERCHANTABILITY AND FITNESS FOR A PARTICULAR PURPOSE,ARE LIMITED TO THE DURATION OF THE EXPRESS WARRANTY.
Some states do not allow limitations on how long an implied warranty may last, so the above limitations may not apply to you.
You may be required by law to give us a reasonable opportunity to correct or cure any failure to comply before you can bring any action in court against us under the Magnuson-Moss Warranty Act.
PRODUCT INSTRUCTIONS AND QUESTIONS
Upon purchase or prior to installation, please carefully inspect your Hansgrohe product for any damage or visible defect. Prior to installing, always carefully study the enclosed instructions on the proper installation and the care and maintenance of this product. If you have questions at any time about the use, installation or performance of your Hansgrohe product, or this warranty, please write us or call us toll-free at 800-334-0455.
- Hansgrohe, Inc.
- 1490 Bluegrass Lakes Parkway
- Alpharetta, GA 30004 Tel. 800-334-0455
- Fax 770-889-1783
- www.hansgrohe-usa.com



















