Instruction Manual
PA10010882 Touch Industrial Open Frame 15


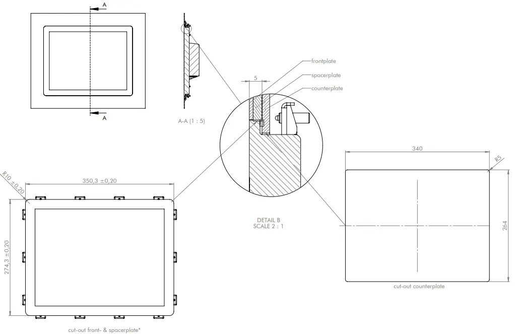
| General tolerances DIN ISO 2768-mK | Drawn by: CH | Drawing for mechanical measurements only. For more details see datasheet. | |||
| Document type: general arrangement drawing | Proved by: JT | Article designation: Touch Industrial Open Frame 15 | |||
| Release date: 2022-05-10 | |||||
| Drawing number: PA10010882 | Scale: 1:3 | ||||
![]() | |||||
| A3 | |||||
| Rev. | Date | Name | |||
Proprietary notice ISO 16016 to be considered

















