URBANA U37 Fireplace

Product Information
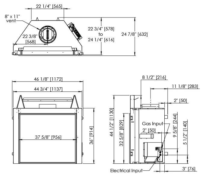
The U37 Fireplace is a gas-powered fireplace that requires an 8 x 11 Rigid Co-Axial vent for proper ventilation. It has a minimum framing dimension of 22 3/4 inches (578 mm) to 24 1/4 inches (616 mm) and a gas input of 2 [50]. The recommended minimum clearance to combustibles are as follows:
- A – Finishing edge to side wall: 0 mm
- B – Minimum clearance to enclosure ceiling: 44 3/4 inches (1137 mm)
- C – Minimum clearance to mantel height: 89 mm
- D – Front of door to edge of floor protection: 2020 mm
- E – Minimum alcove width: 981 mm
Product Usage Instructions
Before installing the U37 Fireplace, refer to the owner’s manual for specific installation requirements and additional product instructions. When framing the unit, care must be taken to consider the final floor thickness, as the bottom of the fireplace must sit flush with the finished floor to ensure proper fit of the surround components.
The vent size required for this fireplace is an 8 x 11 Rigid Co-Axial vent. The minimum framing dimensions required are between 22 3/4 inches (578 mm) and 24 1/4 inches (616 mm). It is important to adhere to the recommended minimum clearance to combustibles to ensure safe usage of the fireplace.
If installing the Cool Surface System Framing, there are two framing options to consider:
- Framing Option 1: Front Discharge (flush wall installations) – Construct the framing in a way that provides a minimum 42 inch (1067mm) by 3 inch (76mm) gap at the top of the facing wall. These dimensions must be respected and not deviated from when using combustible materials inside the chase.
- Framing Option 2: Open Chase (built-out installations) – The chase must be constructed in a way that stops short of the ceiling, leaving it totally vented above. Minimum framing dimensions must be followed when constructing this option and not deviated from when using combustible materials.
Refer to the installation manual for additional details on installation requirements and optional features like the Cool Surface System Framing.
Minimum Framing Dimensions
Note: When framing the unit, care must be taken to consider the final floor thickness, the bottom of the fireplace must sit flush with the finished floor to ensure proper fit of the surround components
- Vent size: 8 x 11” Rigid Co-Axial
Clearance to Combustibles
| A – Finishing edge to side wall | 3 1/2″ | 89 mm |
| B – Minimum clearance to enclosure ceiling† | 79 ½” | 2020 mm |
| C – Minimum clearance to mantel height | 38 5/8” | 981 mm |
| D – Front of door to edge of floor protection | 0″ | 0 mm |
| E – Minimum alcove width | 44 3/4″ | 1137 mm |
Additional ceiling height required if using 5×8 co-axial venting, refer to installation manual.
Non-Combustible Board Placement

Fireplace Dimensions

Minimum Venting Requirements
This appliance uses a 11” (280 mm) exhaust / 8” (203mm) air intake vent pipe system. For safe and proper operation of the appliance follow the venting instructions exactly. Deviation from the minimum vertical length can create difficulty in burner start-up and sooting. Allow several minutes for the flame to stabalize after ignition under extreme vent configurations. It is recommended for vent lengths that pass through unheated spaces (garages, attics, crawl spaces) be insulated to minimize condensation.
NOTE: At least 3” (76mm) of clearance is required above vent when passing through an exterior wall when horizontally terminating.
Mantel Projections
Mantel graph dimensions are measured from the bottom of the fireplace, if you wish to reference the mantel height from the tiling edge subtract 32 5/8 inches (829mm) from the mantel height depicted on the graph. If you plan to install a TV above your fireplace refer to the appropriate section of the owner’s manual for available options. It is acceptable to install a combustible mantel over top of the non-combustible board. If using the Cool Surface System, refer to the graph on the following page to determine the required mantel height.
Mantel Projections with Cool Surface System
Activating the Cool Surface System decreases the required height of the mantel. Use the graph on the right to determine the mantel height when using the Cool Surface System. Mantel graph dimensions are measured from the bottom of the fireplace, if you wish to reference the mantel height from the tiling edge subtract 32 5/8 inches (829mm) from the mantel height depicted on the graph. If you plan to install a TV above your fireplace refer to the appropriate section of the owner’s manual for available options. It is acceptable to install a combustible mantel over top of the non-combustible board.
Cool Surface System Framing
Framing Option 1:
Front Discharge (flush wall installations)
Construct the framing in a way that provides a minimum 42 inch (1067mm) by 3 inch (76mm) gap at the top of the facing wall. It is essential that these dimensions are respected and not to deviate away from them when using combustible materials inside the chase.
Note: If you wish to construct the CSS air discharge part way up a tall wall then it is essential to build a false ceiling inside the chase at the desired height to direct the rising heat out of the gap.
Framing Option 2:
Open Chase (built-out installations)
This could be considered the most discreet option when considering the CSS. The chase must be constructed in a way that stops short of the ceiling, leaving it totally vented above. Minimum framing dimensions must be followed when constructing this option and not to deviated from them when using combustible materials. Consider Optional 3: Valance to work in conjunction with this option.
Framing Option 3: Valance
A valance may be desired to accentuate or hide the CSS outlet. Consider framing option 1 or 2 to utilize the valance feature. This is an optional decorative feature that covers up the CSS outlet gap. Minimum opening and valance dimensions must be followed to ensure safe heat dissipation. Combustible materiel is acceptable when constructing the valance. It is acceptable to wrap the valance around the three sides of a built out chase (Option 2).

Framing Option 4: Side Discharge
Construct the framing in a way that provides two gaps, one on each side of the chase as shown in Figure 7. Each gap should be a minimum of 21 inch (533mm) by 3 inch (76mm). It is essential that these dimensions are followed and not to deviated from them when using combustible materials inside the chase.

Optional: False Ceiling
If your ceiling dimension is greater than the minimum (See Figure 1) You may want the CSS air discharge lower on the wall. This false ceiling is required to properly evacuate heat from the chase. 






















