URBANA LUXURY FIREPLACES U30T Urbana Tall Series Fireplaces

Product Information
The product is a U30T fireplace that requires installation with both an intake at the bottom of the chase and a heat release at the top of the chase. The fireplace can be installed using a variety of styles, as illustrated in the accompanying diagrams. The product must be installed according to the dimensions, clearances, and areas outlined in the installation guide to avoid the risk of fire hazards. The product requires minimum chase framing, and all chase framing maybe wood 2×4 construction or the like. The combustible material is permitted for any area within chase specifications; no steel studs are required. The fireplace is not load-bearing and must be constructed to fully support the finishing material.
Instructions:
- Before installation, refer to the owner’s manual for specific installation requirements and additional product instructions.
The U30T fireplace must be installed with both an intake at the bottom of the chase and a heat release at the top of the chase. - Choose an installation style as shown in the accompanying diagrams, and refer to Table 1 for the required dimensions corresponding to the letters in the illustrations.
- Ensure that the minimum dimensions, clearances, and areas outlined in the installation guide are followed along with those stated in the Installation Manual to avoid the risk of fire hazards.
- Construct a chase framing that may be wood 2×4 construction or the like. The combustible material is permitted for any area within chase specifications; no steel studs are required.
- Frame beyond minimum framing for taller ceilings, overhangs, etc.
- Enclose the top of the chase; it cannot be opened to joists or rafters above.
- Ensure that the fireplace is not load-bearing and that the chase is constructed to fully support the finishing material.
- Install the fireplace on a solid plywood or similar floor with a minimum width equal to the fireplace leveling legs.
- The framing above the fireplace cannot be constructed before fireplace installation, as the fireplace and its required shielding will not fit.
- Keep a minimum clearance of 7 inches to a sidewall constructed or finished with combustible material.
- Note that sidewall clearance is not applicable for a closed-off side if using a corner kit.
- Maintain a minimum clearance of 5 feet to a sprinkler head from the chase heat release in any direction.
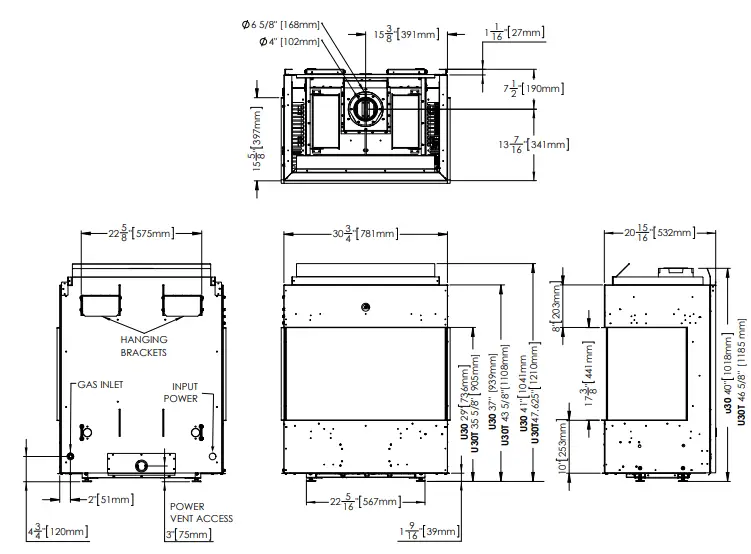
- The minimum thimble height should be 43 5/8 inches for U30T.
Dimension
TOP RELEASE / OPEN CHASE
Top only heat release with front and sides intake
FRONT & SIDES W/ FALSE CEILING
Heat release and intake on front & sides, chase false ceiling
CHASE DIMENSIONS & CLEARANCES
The U30 fireplace must be installed with both an intake at the bottom of the chase and a heat release at the top of the chase. A variety of installation styles are permitted as shown in the follow-ing illustrations. Refer to Table 1 for the required dimensions cor-responding to the letters in the illustrations.
WARNING RISK OF FIRE HAZARD – The minimum dimensions, clearances and areas outlined within this guide MUST be followed along with those stated in the Installation Manual.
TABLE 1
LETTER MINIMUM DIMENSION
- A 71 5/8” (1794 mm)
- B 21” (533 mm)
- C 30 3/4” (788 mm)
- D 9 15/16” (253 mm)
- E Minimum 1 1/2” (38 mm)
- F Minimum 120 in2 (774 cm2)
- G Minimum 90in2 (580 cm2)
- H 24” (610 mm)
- I 0 – 1 1/2” (0-38 mm) Max
- J Minimum 2” (51 mm)
CLEARANCES
- Heat release and intake on the front of the chase only.
- Heat release and intake on the sides of the chase only.
- Note – Installations with only 1 side of the chase utilized for either intake or heat release are not permitted.
ALCOVE / SIDEWALL CLEARANCE
- Minimum clearance to a sidewall constructed or finished with combustible material.
- Note – Side wall clearance not applicable for closed-off side if using corner kit.

SPRINKLER CLEARANCES
- Minimum clearance to a sprinkler head from the chase heat release in any direction.

IMPORTANT NOTE:
- Framing above the fireplace CANNOT BE CONSTRUCTED prior to fireplace installation, the fireplace and its required shielding WILL NOT FIT!
MINIMUM CHASE FRAMING
- All chase framing may be wood 2×4 construction or the like. Combustible material is permitted for any area within chase specifications; no steel studs are required. Chase may be framed beyond minimum framing for taller ceilings, overhangs etc. Note – Top of chase must be enclosed, cannot be open to joists or rafters above.
- Note – The fireplace is not load bearing and the chase must be constructed to fully support finishing material.

MINIMUM THIMBLE HEIGHT
- As measured from the bottom of the fireplace to the center line of the vent. The fireplace uses 4” x 6-5/8” co-axial rigid or flex venting.
- Note – additional adaptors (50-3788) required for flex venting

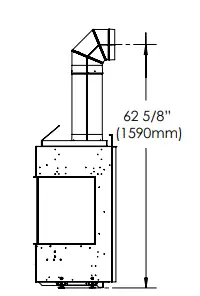
MINIMUM CHASE ELBOW CLEARANCE
- This clearance only applies to an elbow that is located within the chase. Once outside of the chase standard venting clearances apply.

POWER AND GAS
- The incoming gas and power connections are located on the left and right on the back of the fireplace as shown.
- The incoming power junction box is located underneath the left side louver and is removable to aid with wiring.
EXTENDED HEARTH / PLINTH
- An extended hearth or plinth may be constructed around the base of the fireplace up to the bottom tiling edge. Combustible material is permitted for construction and finishing of the plinth. Alternatively the optional 50-3824 Steel Framing Base Kit can also be used . The finished depth of the plinth cannot exceed 12” [305 mm] and minimum intake dimensions must be maintained. If raising the unit is desired a Flush Framing Base Kit (50-4002) may be used to achieve a rise of 6”-11” off the floor.
- Note: 50-3824 & 50-4002 cannot be used together

OVERHANG / MANTLE CLEARANCES
- An overhanging chase or mantle may be constructed above the fireplace comprised of combustible framing and finishing material. The maximum finished depth of an overhanging chase or mantle cannot exceed 12” [305 mm]. There is no minimum height restriction and the finished surface can be flush with the top tiling edge.

HDTV CLEARANCES
- A TV may installed above the fireplace either on a flat wall or within a shelf or recess as shown below. When flat wall mounting a TV, the minimum permitted height may need to be increased to prevent the mounting screws from penetrating the fireplace cabinet.
- It is the responsibility of the home owner to confirm that the TV is within its maximum allowable operating temperature range once installed. Sherwood Industries is not liable for any TV malfunctions or adverse effects that may be incurred.
MINIMUM VENTING
- The fireplace utilizes 4” x 6-5/8” rigid co-axial venting. Alternatively 4” x 7” flex venting may be used when using additional vent adaptors (50-3788). Refer to the Installation Manual for more detailed venting and restriction information.

HORIZONTAL TERMINATION CLEARANCES
- The clearances shown in the illustration must be followed when horizontally terminating the fireplace. Additionally, a termination guard must be used when the termination is installed in an area where it could be contacted. Only high wind terminations are permitted for installation.
- Note – Termination clearances not applicable for power vent installations. See power vent manual.

- Soffit measured from top of the termination
- Sidewall measured from side of the termination
- urbanafireplaces.com
- Manufactured by Sherwood Industries Ltd.
- Victoria, BC, Canada Printed in Canada.



















