REGENCY HZO42 Outdoor Gas Fireplace

Specifications
| Model | HZO42-NG | HZO42-ULPG |
| Fuel Type | Natural Gas | Propane |
| Gas Consumption | 47 mj. | 47mj. |
| Manifold Pressure | 0.88 kPa | 2.49 kPa |
| Injector Size | #29 | #47 |
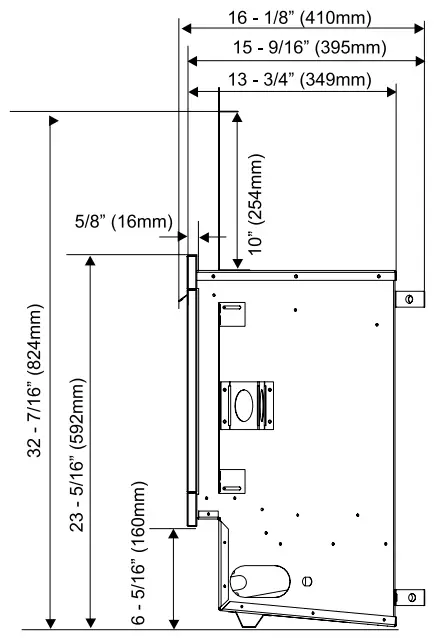
Unit Dimensions



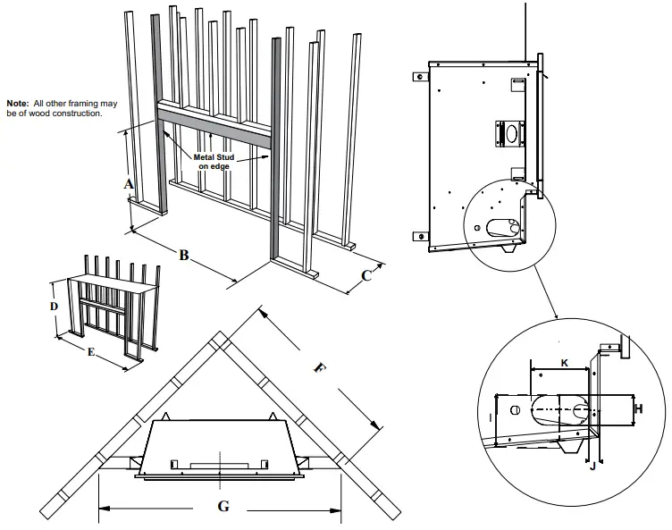
Framing Dimensions
| Framing Dimensions | Description | HZO42 |
| A | Header Height | 830 mm |
| B | Side Stud Width | 1072 mm |
| C | Minimum framing depth | 508 mm |
| D | Minimum Height to Combustibles | 1334 mm |
| E | Minimum framing width | 1524 mm |
| F | Corner Wall Depth | 1027 mm |
| G | Corner Facing Wall Width | 1376 mm |
| H | Gas Connection Opening Height | 51 mm |
| I | Gas Connection Height | 98 mm |
| J | Gas Connection Inset | 20 mm |
| K | Gas Connection Opening Width | 98 mm |
| * Framing depth measurement is noted with the nailing strips set as far forward on the firebox as possible. The nailing strips can be adjusted back up to 25mm to allow for varying thicknesses in non-combustible material & wall finishes. | ||

MINIMUM CLEARANCES TO COMBUSTIBLES
The clearances listed below are minimum distances unless otherwise stated.
A major cause of fires is failure to maintain required clearances (air space) to combustible materials. It is of the greatest importance that this fireplace be installed only in accordance with these instructions.
Caution Requirements
The top, back and sides of the fireplace are defined by standoffs. The metal ends of the standoff may NOT be recessed into combustible construction.
WARNING
Fire hazard is an extreme risk if these clearances (air space) to combustible materials are not adhered to. It is of greatest importance that this fireplace be installed only in accordance with these instructions.
HZO42 Clearance Requirements
| Clearance: | Dimension | Measured From: |
| A: Sidewall | 280 mm | Side of Fireplace Opening |
| B: Ceiling | 914 mm | Top of Fireplace Opening |
| C: Mantel Height (min.) | 457 mm | Top of Fireplace Opening |
| D: Mantel Depth (max.) | 304 mm | From Wall |
| E: Alcove Width | 1148 mm | Wall to Wall (Minimum) |
| F: Alcove Depth | 914 mm | Front to Back Wall (Maximum) |
| Notes: | 0mm | No Hearth Required |

MANTEL CLEARANCES
Due to the extreme heat this fireplace emits, the mantel clearances are critical. Combustible mantel clearances from top of front facing are shown in the diagram on the right.
Note: Ensure the paint that is used on the mantel and the facing is “heat resistant” or the paint may dis color.
NON-COMBUSTIBLE REQUIREMENTS
- A minimum thickness of 12 mm non-combustible board complant with AS1530-1 and AS1530-3 is required.

FINISHING
IMPORTANT FINISHING DETAIL NOTE
Before placing unit into final position – it is important to know the total thickness / height of finished hearth. The base of the fireplace should be level or higher than the finished hearth height.
If material such as brick, stone, etc extends past the faceplate depth (38mm), when finishing around the faceplate, the minimum opening dimensions noted below must be adhered to ensuring for the removal of the faceplate and for the safe operation of this appliance.
For material such as brick, stone, etc that extend up to 38mm, the minimum opening dimensions noted below must be adhered, when finishing around the faceplate. This is to ensure the removal of the faceplate and for the safe operation of this appliance.
Unit shown without faceplate
For facing finishing material over 38mm thick use the outer out for your faceplate template.
LOCATING YOUR GAS FIREPLACE
- When selecting a location for your fireplace, ensure that the clearances are met.
- This appliance must be installed in an open-air situation with natural ventilation, without stagnant areas, where gas leakage and products of combustion are rapidly dispersed by wind and natural convection.
- Certain materials or items, when placed under or near the appliance, will be subjected to radiant heat and could become damaged.
- Typically an outdoor space is not enclosed but, any enclosure in which the appliance is used shall comply with one of the following: An enclosure with walls on all sides, but at least one permanent opening at ground level and no overhead cover.

Within a partial enclosure that includes an overhead cover and no more that two walls.
Within a partial enclosure that includes an overhead cover and more than two walls, the following shall apply:
- At least 25% of the total wall area is completely open, and
- At least 30% of the remaining wall area is open and unrestricted






















