FORUM 55″
Outdoor Electric Fireplace
Specifications
Scan QR code for installation manual for final dimensions and requirements.
| ACTUAL DIMENSIONS | WIDTH | HEIGHT | DEPTH | GLASS SIZE |
| SF-OD55 | 58″ [1473] | 18-1/8″ [460] | 8-1/4″ [210] | 55-1/2″ x 15-7/16″ [1410 x 392] |
BUILT-IN (frameless look without front)

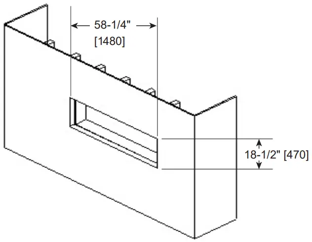
RECESSED (with self-trimming front)

| FRAMING DIMENSIONS | WIDTH | HEIGHT | DEPTH |
| 58-1/4″ [1480] | 18-1/2″ [470] | 9″ [229] |
Note: Reference instruction manual for complete installation guidelines.
Electrical Connection Requirements:
This Appliance ships with a GFCI protected power cord installed. A minimum 15 AMP, 120V/60Hz circuit is required. If hardwiring for an outdoor appliance, the circuit must be Ground Fault Circuit Interrupter (GFCI) Protected.
| US | CSA C22.2 No 250; UL 962 |
| INTERNATIONAL | CSA C22.2 No 250; UL 962 |
Product information provided is not complete and is subject to change without notice. Product installation must adhere strictly to instructions accompanying product to avoid risk of fire and potential injury.
SimpliFire — A Brand of Hearth & Home Technologies
7571 215th Street West | Lakeville, MN 55044
888-427-3973 | 952-985-6000 | fireplaces.com
SFE-OD55_0223















